アプリで簡単 物件探し 通知 共有 アプリならではの機能を使ってみる
中古マンション

セ・ビアン・メゾン小茂根 1階 2SLDK

情報提供元
SUUMO
セ・ビアン・メゾン小茂根 機能、品質、安全性など、建築・環境に求められる基本的な要件はもちろん、暮らしへの提案をも含んだ全体的な質の高さを感じて頂ける筈です。是非一度、現地をご覧になってみてください。
価格 2980万円  (管理費等:1万3500円/月(委託(巡回)))
修繕積立金 15,300円
交通
所在地 東京都板橋区小茂根2周辺地図
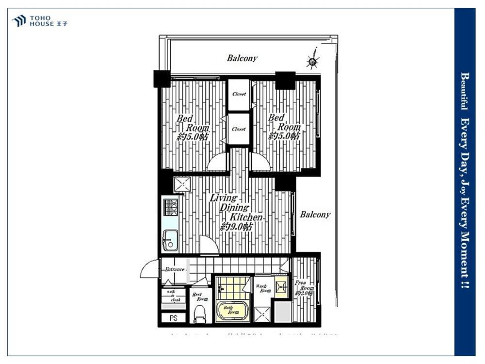
間取り 2SLDK 専有面積 50.84m2(壁芯)
所在階/階数 1階/5階建 方位
築年月 1984年4月 築年数 築41年7ヶ月
おすすめポイント
□□ Report from Toho House Oji □□【TOHO HOUSE CLUBでのアフターサービス】ご購入後の「おウチ」と「お金」のご相談窓口をご用意しております!・金利上昇時のリスクヘッジ、借換え相談、繰上返済のタイミング、各種保険の見直し・・・etc・おウチの設備保証や定期点検、駆け付けサービス・・・etc購入前のタイミングは勿論、購入後のご不安につきましてもご相談可能です!まずはお気軽に現地をご覧下さいませ。物件の詳細について、ご見学希望のお客様は下記番号までお気軽にご連絡下さい。お問い合わせ専用フリーダイヤル : 0120-104-570
日当り良好・閑静な住宅街・角部屋・管理人巡回・瑕疵保険(国交省指定法人)・瑕疵保証(不動産会社独自)・フラット35S適合
お問い合わせ先
東宝ハウスライフソリューションズグループ(株)東宝ハウス王子2課
物件を見たい、物件や住環境の詳しい情報やローン相談など、
お問い合わせ先
東宝ハウスライフソリューションズグループ(株)東宝ハウス王子2課

詳細情報

価格 2980万円 管理費等 1万3500円/月(委託(巡回))
駐車場 修繕積立金 15,300円
所在地 東京都板橋区小茂根2周辺地図
交通
  • 東武東上線 ときわ台駅 徒歩13分乗換案内
  • 東京メトロ有楽町線 小竹向原駅 徒歩14分乗換案内
  • 東武東上線 中板橋駅 徒歩19分乗換案内
物件名 セ・ビアン・メゾン小茂根
築年月(築年数) 1984年4月(築41年7ヶ月) 間取り 2SLDK
総戸数 専有面積 50.84m2(壁芯)
所在階/階数 1階/5階建 バルコニー面積 17.9m2
方位 建物構造 RC
管理形態 委託管理
維持費等 土地権利 所有権
用途地域 1種住居 借地期間・地代
現況 引渡可能年月 即時
情報提供元 SUUMO [030Z78509689] 情報公開日
情報更新日 次回更新予定日 随時

設備など

ペット相談可 - 即入居可 南向き -
角部屋 駐車場空き有り - トランクルーム -
オートロック - 宅配ボックス - 浴室乾燥機
床暖房 - ウォークインクローゼット - 管理人常駐 -
最上階 - 2階以上 - タワーマンション -
設備 バルコニー・トイレ・収納スペース・洗面所・エレベーター・浴室乾燥機・シャンプードレッサ・温水洗浄便座・システムキッチン・風呂・浄水器・2面バルコニー・衣類乾燥機・食器洗浄乾燥機・リフォーム・バイク置き場・駐輪場・シューズインクローク
リフォーム履歴 2025年9月内装リフォーム完了
リノベーション履歴 -
備考 <物件名>セ・ビアン・メゾン小茂根/<駐車場>無/委託(巡回)/<土地権利>所有権/<間取り>2LDK+S(納戸)/<リフォーム>●リフォーム:2025年9月内装リフォーム完了/<用途地域>近隣商業あり/<特徴>~私のための、隠れ家メゾン。都心近接、小茂根の静かなる心地よさ~、瑕疵保険(国交省指定)保証利用可・瑕疵保証付(不動産会社独自)・フラット35・S適合証明書・即引渡可・2沿線以上利用可
販売戸数:1戸/管理費等帯:13500円/修繕積立金帯:15300円
特記事項 日当り良好・閑静な住宅街・角部屋・管理人巡回・瑕疵保険(国交省指定法人)・瑕疵保証(不動産会社独自)・フラット35S適合

省エネ性能

エネルギー消費性能 -
断熱性能 -
目安光熱費 -

東京都板橋区小茂根2 周辺地図情報

地図
※地図上に表示される物件の位置は付近住所に所在することを表すものであり、実際の物件所在地とは異なる場合がございます。
   正確な物件所在地は、取扱い不動産会社にお問い合わせください。
物件を見たい、物件や住環境の詳しい情報やローン相談など、
お問い合わせ先
東宝ハウスライフソリューションズグループ(株)東宝ハウス王子2課

不動産会社情報

お問い合わせ先 商号:東宝ハウスライフソリューションズグループ(株)東宝ハウス王子2課
免許番号:東京都知事(1)第110657号
所在地:東京都北区王子本町1-17-6
TEL:0120-104570
取引態様:媒介
管理コード:●名倉奨
共有する
QRコード
物件を見たい、物件や住環境の詳しい情報やローン相談など、
お問い合わせ先
東宝ハウスライフソリューションズグループ(株)東宝ハウス王子2課

板橋区の暮らしデータ

人口などの統計情報

世帯数 314133世帯
人口総数 572927人
転入者数 46136人
転入率(人口1000人当たり)
80.53人
転出者数 37895人
転出率(人口1000人当たり)
66.14人
土地平均価格
住宅地
488053円/m2
商業地
851462円/m2

結婚・育児の助成金

子育て関連の独自の取り組み (1)すくすくカード事業。(2)赤ちゃんの駅事業。(3)児童館における乳幼児親子向けプログラム及び相談事業の拡充。(4)乳幼児親子専用のお部屋「すくすくサロン」の児童館全館設置。(5)発達が気になる乳幼児親子向け事業「ほっとプログラム」の実施、その親子が安心して過ごせるお部屋「ほっとサロン」の設置。(6)東京家政大学内の緑豊かで安全な環境で実施される「森のサロン」(地域子育て支援拠点事業)。(7)子育て出張相談。(8)いたばし子育て応援アプリの配信。
出産祝い あり
公立保育所数 37所(うち0歳児保育を実施している保育所:30所)
私立保育所数 105所(うち0歳児保育を実施している保育所:97所)
保育所入所待機児童数 0人
認定こども園数 3園 預かり保育実施園数 公立:1園 私立:29園
学校給食 【小学校】完全給食【中学校】完全給食
公立中学校の学校選択制 実施(新入学時)
子ども・学生等医療費助成<通院>対象年齢 18歳3月末まで 子ども・学生等医療費助成<入院>対象年齢 18歳3月末まで

板橋区の治安・ごみ収集情報

公共料金・インフラ

ガス料金(22m3使用した場合の月額) 東京瓦斯株式会社(東京地区等)3926円
水道料金(口径20mmで20m3の月額) 東京都水道局2816円
下水道料金(20m3を使用した場合の月額) 東京都下水道局2068円
下水道普及率 100.0%

安心・安全

建物火災出火件数 104件
人口10000人当たり
1.78件
刑法犯認知件数 2916件
人口1000人当たり
4.99件
ハザード・防災マップ あり

医療

一般病院総数 41ヶ所
一般診療所総数 399ヶ所
小児科医師数 181人
小児人口10000人当たり
31.10人
産婦人科医師数 87人
15~49歳女性人口1万人当たり
6.47人
介護保険料基準額(月額) 6520円

ごみ

家庭ごみ収集(可燃ごみ) 無料
備考
引越しなどで、1日に10kg以上の資源、可燃ごみ、不燃ごみを出す場合は、通常とは別に臨時に有料にて収集を行う(家庭から出るもので、分別されたものに限る)。
家庭ごみの分別方式 3分別11種〔可燃ごみ 不燃ごみ 資源(古紙[新聞、雑誌、段ボール、紙パック、紙箱・紙袋・OA用紙]、びん、缶、ペットボトル、プラスチック)〕 拠点回収:廃食用油 古布・古着 使用済小型家電 食品用トレイ 紙パック ボトル容器 乾電池、ハブラシ
家庭ごみの戸別収集 一部実施(【板橋区高齢者・障害者ごみ戸別収集サービス】障がい者・高齢者のみ実施)
粗大ごみ収集 あり
備考
有料。事前申込制。
生ごみ処理機助成金制度 なし
上限金額
-
上限比率
-

板橋区の住まいの給付金

中古購入

利子補給制度 なし
補助/助成金制度 なし

増築・改築・改修

利子補給制度 なし
補助/助成金制度 あり
上限金額
100万円
備考
【耐震補強工事助成】工事費の1/2で上限75万円。高齢者等の場合は、工事費の2/3で上限100万円。2000年5月31日以前に建築された木造住宅(2階建て以下)、個人の建物所有者等、区民税等を滞納していない、国認定の耐震診断法による評点が1.0未満で、その診断結果に基づいた評点1.0以上の耐震計画の補強工事である、建築基準法における重大な違反がない等の条件あり。
暮らしデータ提供元:生活ガイド.com
※行政機関により公表していない地域及びデータがございます。東京23区以外の政令指定都市は、市全体のデータとして表示しています。
※提供データには細心の注意を払っておりますが、調査後に変更がある場合があります。 最新の情報につきましては各市区役所までお問い合わせいただくか、自治体HPなどをご確認ください。

この物件を見た人はこんな物件も見ています

OCN×ドコモ光新規お申込みで合計最大137,280円相当おトク!特典の内訳・適用条件など詳細はこちら

板橋区内の各駅の住みやすさ

住宅ローンの返済額一覧

物件価格 2980万円に対して、年率 で、頭金 の場合
↓ボーナス 35年間 30年間 25年間 20年間 15年間 10年間
0万円 64,377円/月 74,198円/月 87,958円/月 108,607円/月 143,037円/月 211,919円/月
5万円 55,291円/月 65,223円/月 79,091円/月 99,848円/月 134,386円/月 203,374円/月
10万円 46,206円/月 56,247円/月 70,224円/月 91,090円/月 125,734円/月 194,829円/月
15万円 37,120円/月 47,271円/月 61,357円/月 82,331円/月 117,083円/月 186,284円/月
20万円 ローン不可 38,296円/月 52,491円/月 73,572円/月 108,431円/月 177,738円/月
25万円 ローン不可 ローン不可 ローン不可 64,814円/月 99,780円/月 169,193円/月
30万円 ローン不可 ローン不可 ローン不可 56,055円/月 91,128円/月 160,648円/月
支払い利息合計 2,248,980円~ 1,924,000円~ 1,597,750円~ 1,278,160円~ 955,990円~ 636,500円~
※元利均等返済方式で試算しています。 「円」の単位以下の端数金額は「切り捨て」として計算しております。
※金利は、固定金利として計算しております。
※上記の住宅ローン返済額一覧は、あくまで試算であり、将来の金利動向により、実際のご返済額とは異なります。
※ボーナス支払総額が総支払額の50%を超えている場合、上記の表では「ローン不可」となります。
※住宅ローン返済額一覧の数値は、住宅ローンのお申し込みやご融資をお約束するものではございません。
物件を見たい、物件や住環境の詳しい情報やローン相談など、
お問い合わせ先
東宝ハウスライフソリューションズグループ(株)東宝ハウス王子2課

掲載情報の著作権は提供元企業等に帰属します。
Copyright:(C) 2025 Recruit Co., Ltd.
アプリで簡単 物件探し 大手不動産サイトの情報から一括検!プッシュ通知で物件を見逃さない
App Storeからダウンロード Google Playで手に入れよう QRコード