アプリで簡単 物件探し 通知 共有 アプリならではの機能を使ってみる
中古マンション

ライオンズステーションプラザ新越谷 4階 3LDK

情報提供元
SUUMO
ライオンズステーションプラザ新越谷
価格 4980万円  (管理費等:1万5700円/月(委託(通勤)))
修繕積立金 14,980円
交通
所在地 埼玉県越谷市南越谷4周辺地図
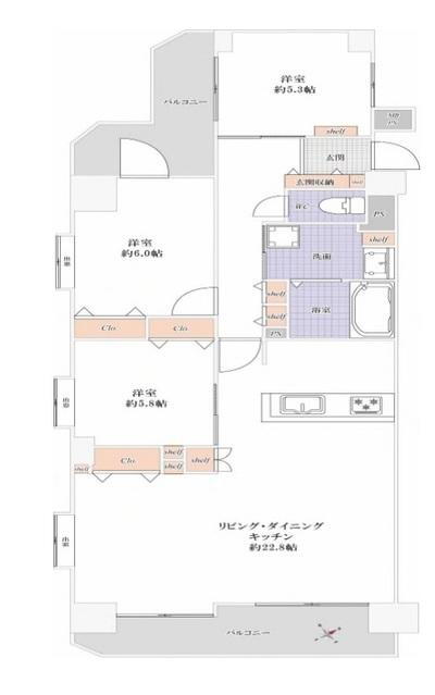
間取り 3LDK 専有面積 83.24m2
所在階/階数 4階/10階建 方位 南東
築年月 1998年1月 築年数 築27年10ヶ月
おすすめポイント
「エステート白馬が選ばれる5つのポイント」1.提携FPへの無料個別相談サービス社外の中立的なファイナンシャルプランナーと無料相談できます。ローン返済計画・教育・老後の資金等も含めてシミュレーションをご提案。2.物件情報が豊富越谷市を中心にたくさんの情報をご用意。インターネット広告前の物件も多数取り揃えております。3.リフォーム、注文建築越谷店はショールームとなっており、リフォーム、注文建築部門の相談スペースです。一級建築士をはじめとした専門スタッフがおりますのでご見学と合わせて、リフォームや注文建築についてご相談可。4.年中無休(年末年始除く)で営業営業時間 9:30~19:00
角部屋・管理人日勤
物件を見たい、物件や住環境の詳しい情報やローン相談など、
お問い合わせ先
(株)エステート白馬越谷店

詳細情報

価格 4980万円 管理費等 1万5700円/月(委託(通勤))
駐車場   修繕積立金 14,980円
所在地 埼玉県越谷市南越谷4周辺地図
交通
物件名 ライオンズステーションプラザ新越谷
築年月(築年数) 1998年1月(築27年10ヶ月) 間取り 3LDK
総戸数 88戸 専有面積 83.24m2
所在階/階数 4階/10階建 バルコニー面積 12.87m2
方位 南東 建物構造 SRC
管理形態 委託管理
維持費等 土地権利 所有権
用途地域 借地期間・地代
現況 引渡可能年月 相談
情報提供元 SUUMO [030Z78663642] 情報公開日
情報更新日 次回更新予定日 随時

設備など

ペット相談可 - 即入居可 - 南向き -
角部屋 駐車場空き有り - トランクルーム -
オートロック - 宅配ボックス - 浴室乾燥機
床暖房 - ウォークインクローゼット - 管理人常駐 -
最上階 - 2階以上 タワーマンション -
設備 バルコニー・収納スペース・エレベーター・管理人日勤・浴室乾燥機・システムキッチン・風呂・対面K・2面バルコニー・衣類乾燥機・食器洗浄乾燥機・リフォーム
リフォーム履歴 2024年2月完了
 水回り設備交換:キッチン・浴室・トイレ
 内装リフォーム:壁・床
 その他:洗面所
※年月は一番古いリフォーム箇所を表します
リノベーション履歴 -
備考 <物件名>ライオンズステーションプラザ新越谷/委託(日勤)/<土地権利>所有権/<間取り>3LDK/<リフォーム>●リフォーム:2024年2月完了(水回り設備交換:キッチン・浴室・トイレ、内装リフォーム:壁・床、その他:洗面所)※年月は一番古いリフォーム箇所を表します/<特徴>駅徒歩3分・広くてゆとりある暮らしはいかがですか、フラット35Sに対応・2沿線以上利用可・LDK20畳以上・スーパー 徒歩10分以内・内装リフォーム
販売戸数:1戸/管理費等帯:15700円/修繕積立金帯:14980円
法令等制限:管理員日勤 越谷市立南越谷小学校(270m) 越谷市立富士中学校(560m)
特記事項 角部屋・管理人日勤

省エネ性能

エネルギー消費性能 -
断熱性能 -
目安光熱費 -

埼玉県越谷市南越谷4 周辺地図情報

地図
※地図上に表示される物件の位置は付近住所に所在することを表すものであり、実際の物件所在地とは異なる場合がございます。
   正確な物件所在地は、取扱い不動産会社にお問い合わせください。
物件を見たい、物件や住環境の詳しい情報やローン相談など、
お問い合わせ先
(株)エステート白馬越谷店

不動産会社情報

お問い合わせ先 商号:(株)エステート白馬越谷店
免許番号:国土交通大臣(6)第005817号
所在地:埼玉県越谷市大字袋山1321-7
TEL:0120-315586
取引態様:媒介
管理コード:100135792571
共有する
QRコード
物件を見たい、物件や住環境の詳しい情報やローン相談など、
お問い合わせ先
(株)エステート白馬越谷店

越谷市の暮らしデータ

人口などの統計情報

世帯数 142590世帯
人口総数 343062人
転入者数 13809人
転入率(人口1000人当たり)
40.25人
転出者数 12936人
転出率(人口1000人当たり)
37.71人
土地平均価格
住宅地
142558円/m2
商業地
323143円/m2

結婚・育児の助成金

子育て関連の独自の取り組み こしがや「プラス保育」幼稚園事業(保育施設希望者にやさしい長時間預かり保育を行う私立幼稚園と認定こども園[教育部分]をこしがや「プラス保育」幼稚園と認定。「プラス保育枠」[保育所等の条件を満たす就労・就学等の方が利用できる。園ごとに定員あり]として利用する場合、8時~18時の預かり保育を原則無料で行う)。
出産祝い なし
公立保育所数 18所(うち0歳児保育を実施している保育所:14所)
私立保育所数 21所(うち0歳児保育を実施している保育所:19所)
保育所入所待機児童数 4人
認定こども園数 10園 預かり保育実施園数 公立:- 私立:19園
学校給食 【小学校】完全給食【中学校】完全給食
公立中学校の学校選択制 一部実施(1年生のみ)
子ども・学生等医療費助成<通院>対象年齢 18歳3月末まで 子ども・学生等医療費助成<入院>対象年齢 18歳3月末まで

越谷市の治安・ごみ収集情報

公共料金・インフラ

ガス料金(22m3使用した場合の月額) 東京瓦斯株式会社(東京地区等)3926円
東彩ガス株式会社(越谷・春日部地区)4893円
水道料金(口径20mmで20m3の月額) 越谷・松伏水道企業団2805円
下水道料金(20m3を使用した場合の月額) 越谷市2574円
下水道普及率 84.3%

安心・安全

建物火災出火件数 50件
人口10000人当たり
1.46件
刑法犯認知件数 2772件
人口1000人当たり
8.11件
ハザード・防災マップ あり

医療

一般病院総数 12ヶ所
一般診療所総数 200ヶ所
小児科医師数 73人
小児人口10000人当たり
17.66人
産婦人科医師数 39人
15~49歳女性人口1万人当たり
5.67人
介護保険料基準額(月額) 6000円

ごみ

家庭ごみ収集(可燃ごみ) 無料
備考
-
家庭ごみの分別方式 10分別14区別〔可燃ごみ 不燃ごみ 古紙類(新聞紙、雑誌、段ボール、雑紙、紙パック) ペットボトル 缶 びん 古着類 危険ごみ 白色トレイ せん定枝・刈草〕
家庭ごみの戸別収集 一部実施(【ふれあい収集】ごみ集積所に排出することが困難な高齢者のみの世帯・障がい者のみの世帯に対し戸別収集を行う)
粗大ごみ収集 あり
備考
有料。戸別収集。事前申込制。一辺の長さが50cm以上または、重量が10kg以上のものが粗大ごみ。
生ごみ処理機助成金制度 なし
上限金額
-
上限比率
-

越谷市の住まいの給付金

中古購入

利子補給制度 なし
補助/助成金制度 なし

増築・改築・改修

利子補給制度 なし
補助/助成金制度 あり
上限金額
(1)7万円(2)50万円(3)10万円
備考
(1)【既存建築物耐震診断補助金】2000年5月31日以前の耐震基準に基づき建築された2階建て以下の木造一戸建て住宅で、市の簡易耐震診断による総合評価が1.0未満であること。診断費用の2/3に相当する額かつ7万円を上限として助成。(2)【既存建築物耐震改修補助金】(1)と同じ木造一戸建て住宅で、一般耐震診断による安全性の総合評価が1.0未満であること。工事費用の23%に相当する額かつ50万円(1981年6月1日から2000年5月31日までの耐震基準に基づき建築されたものは30万円)を上限として助成。(3)【住宅・店舗改修促進補助金】市内の施工業者を利用し、機能の維持、向上等のために住宅・店舗の改修工事を行う場合に、その工事費の一部を助成。補助対象経費の20%(上限10万円)。他要件あり。
暮らしデータ提供元:生活ガイド.com
※行政機関により公表していない地域及びデータがございます。東京23区以外の政令指定都市は、市全体のデータとして表示しています。
※提供データには細心の注意を払っておりますが、調査後に変更がある場合があります。 最新の情報につきましては各市区役所までお問い合わせいただくか、自治体HPなどをご確認ください。

この物件を見た人はこんな物件も見ています

OCN×ドコモ光新規お申込みで合計最大137,280円相当おトク!特典の内訳・適用条件など詳細はこちら

越谷市内の各駅の住みやすさ

住宅ローンの返済額一覧

物件価格 4980万円に対して、年率 で、頭金 の場合
↓ボーナス 35年間 30年間 25年間 20年間 15年間 10年間
0万円 116,294円/月 134,036円/月 158,892円/月 196,194円/月 258,390円/月 382,822円/月
5万円 107,208円/月 125,061円/月 150,025円/月 187,435円/月 249,739円/月 374,277円/月
10万円 98,123円/月 116,085円/月 141,158円/月 178,677円/月 241,087円/月 365,731円/月
15万円 89,037円/月 107,109円/月 132,291円/月 169,918円/月 232,436円/月 357,186円/月
20万円 79,952円/月 98,134円/月 123,425円/月 161,159円/月 223,784円/月 348,641円/月
25万円 70,866円/月 89,158円/月 114,558円/月 152,400円/月 215,133円/月 340,096円/月
30万円 61,781円/月 80,182円/月 105,691円/月 143,642円/月 206,481円/月 331,551円/月
支払い利息合計 4,065,250円~ 3,471,680円~ 2,883,000円~ 2,299,040円~ 1,719,530円~ 1,144,860円~
※元利均等返済方式で試算しています。 「円」の単位以下の端数金額は「切り捨て」として計算しております。
※金利は、固定金利として計算しております。
※上記の住宅ローン返済額一覧は、あくまで試算であり、将来の金利動向により、実際のご返済額とは異なります。
※ボーナス支払総額が総支払額の50%を超えている場合、上記の表では「ローン不可」となります。
※住宅ローン返済額一覧の数値は、住宅ローンのお申し込みやご融資をお約束するものではございません。
物件を見たい、物件や住環境の詳しい情報やローン相談など、
お問い合わせ先
(株)エステート白馬越谷店

掲載情報の著作権は提供元企業等に帰属します。
Copyright:(C) 2025 Recruit Co., Ltd.
アプリで簡単 物件探し 大手不動産サイトの情報から一括検!プッシュ通知で物件を見逃さない
App Storeからダウンロード Google Playで手に入れよう QRコード