アプリで簡単 物件探し 通知 共有 アプリならではの機能を使ってみる
中古マンション

所沢コーポラスA棟 7階 3LDK

情報提供元
SUUMO
所沢コーポラスA棟 西武池袋線「所沢」駅徒歩9分。通勤・通学に便利な立地でありながら、周囲は落ち着いた住宅街。近隣にはスーパーやドラッグストア、教育施設も揃い、生活利便性と自然環境がバランスよく整ったロケーションです。
価格 2180万円  (管理費等:9200円/月(一部委託(通勤)))
修繕積立金 3,000円
交通
所在地 埼玉県所沢市大字北秋津周辺地図
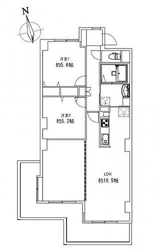
間取り 3LDK 専有面積 61m2(壁芯)
所在階/階数 7階/10階建 方位
築年月 1976年9月 築年数 築49年2ヶ月
おすすめポイント
◆西武池袋線「所沢」駅 徒歩9分◇リノベーションで一新された美しい2LDK!◆最新システムキッチン採用!食洗器付で家事の負担を軽減。◇衣類乾燥や予備暖房に便利な浴室乾燥機付。◆追い焚き機能付◎快適な温度で疲れを癒します。◇現況空室のためいつでもご見学可能です。周辺にはスーパーやドラッグストア、公園など生活利便施設も充実。自然と都市機能が調和した住環境が魅力です。当社では多数の金融機関と取引をしているため、常に最新情報をご提供できます。お客様のライフプランに合わせたベストな住宅ローン選びをお手伝いします。ご不安なことは、どんなことでもご相談ください。
日当り良好・閑静な住宅街・バリアフリー・管理人日勤
物件を見たい、物件や住環境の詳しい情報やローン相談など、
お問い合わせ先
花菱不動産(株)

詳細情報

価格 2180万円 管理費等 9200円/月(一部委託(通勤))
駐車場 空無 修繕積立金 3,000円
所在地 埼玉県所沢市大字北秋津周辺地図
交通
物件名 所沢コーポラスA棟
築年月(築年数) 1976年9月(築49年2ヶ月) 間取り 3LDK
総戸数 120戸 専有面積 61m2(壁芯)
所在階/階数 7階/10階建 バルコニー面積 3.9m2
方位 建物構造 鉄骨
管理形態
維持費等 土地権利 所有権
用途地域 1種低層 借地期間・地代
現況 引渡可能年月 即時
情報提供元 SUUMO [030Z78075825] 情報公開日
情報更新日 次回更新予定日 随時

設備など

ペット相談可 - 即入居可 南向き
角部屋 - 駐車場空き有り - トランクルーム -
オートロック - 宅配ボックス - 浴室乾燥機
床暖房 - ウォークインクローゼット - 管理人常駐 -
最上階 - 2階以上 タワーマンション -
設備 トイレ・収納スペース・洗面所・エレベーター・浴室乾燥機・シャンプードレッサ・温水洗浄便座・システムキッチン・モニタ付インターホン・風呂・浄水器・衣類乾燥機・食器洗浄乾燥機・管理人日勤・リフォーム・高速ネット対応・バイク置き場・駐輪場・リノベーション
リフォーム履歴 2025年7月完了
 水回り設備交換:キッチン・浴室
 内装リフォーム:壁・床・全室
※年月は一番古いリフォーム箇所を表します
リノベーション履歴 -
備考 <物件名>所沢コーポラスA棟/<駐車場>空無/<土地権利>所有権/<間取り>3LDK/<リフォーム>●リフォーム:2025年7月完了(水回り設備交換:キッチン・浴室、内装リフォーム:壁・床・全室)※年月は一番古いリフォーム箇所を表します/<用途地域>1種住居あり/<特徴>【即日内見可】~2025年7月末完成直後~、フラット35Sに対応・即引渡可・2沿線以上利用可・スーパー 徒歩10分以内・市街地が近い
販売戸数:1戸/管理費等帯:9200円/修繕積立金帯:3000円
特記事項 日当り良好・閑静な住宅街・バリアフリー・管理人日勤

省エネ性能

エネルギー消費性能 -
断熱性能 -
目安光熱費 -

埼玉県所沢市大字北秋津 周辺地図情報

地図
※地図上に表示される物件の位置は付近住所に所在することを表すものであり、実際の物件所在地とは異なる場合がございます。
   正確な物件所在地は、取扱い不動産会社にお問い合わせください。
物件を見たい、物件や住環境の詳しい情報やローン相談など、
お問い合わせ先
花菱不動産(株)

不動産会社情報

お問い合わせ先 商号:花菱不動産(株)
免許番号:国土交通大臣(1)第009840号
所在地:東京都渋谷区渋谷3-1-6 TMSビル6階
TEL:03-6809-0814
取引態様:媒介
共有する
QRコード
物件を見たい、物件や住環境の詳しい情報やローン相談など、
お問い合わせ先
花菱不動産(株)

所沢市の暮らしデータ

人口などの統計情報

世帯数 152510世帯
人口総数 343529人
転入者数 15623人
転入率(人口1000人当たり)
45.48人
転出者数 14079人
転出率(人口1000人当たり)
40.98人
土地平均価格
住宅地
177192円/m2
商業地
416667円/m2

結婚・育児の助成金

子育て関連の独自の取り組み (1)大学との連携による「ところっこ・親子で楽しむ運動遊び」を実施。(2)「ところっこ子育てガイド」を配布。
出産祝い なし
公立保育所数 19所(うち0歳児保育を実施している保育所:10所)
私立保育所数 36所(うち0歳児保育を実施している保育所:36所)
保育所入所待機児童数 6人
認定こども園数 9園 預かり保育実施園数 公立:1園 私立:18園
学校給食 【小学校】完全給食【中学校】完全給食
公立中学校の学校選択制 未実施(所沢市区域外就学・指定校変更承認基準により、特例を認める場合あり)。
子ども・学生等医療費助成<通院>対象年齢 18歳3月末まで 子ども・学生等医療費助成<入院>対象年齢 18歳3月末まで

所沢市の治安・ごみ収集情報

公共料金・インフラ

ガス料金(22m3使用した場合の月額) 東京瓦斯株式会社(東京地区等)3926円
武州瓦斯株式会社4281円
大東ガス株式会社4335円
水道料金(口径20mmで20m3の月額) 所沢市2332円
下水道料金(20m3を使用した場合の月額) 所沢市1639円
下水道普及率 95.2%

安心・安全

建物火災出火件数 37件
人口10000人当たり
1.08件
刑法犯認知件数 1944件
人口1000人当たり
5.68件
ハザード・防災マップ あり

医療

一般病院総数 20ヶ所
一般診療所総数 225ヶ所
小児科医師数 62人
小児人口10000人当たり
16.41人
産婦人科医師数 36人
15~49歳女性人口1万人当たり
5.34人
介護保険料基準額(月額) 5634円

ごみ

家庭ごみ収集(可燃ごみ) 無料
備考
-
家庭ごみの分別方式 4分別12種〔燃やせるごみ 資源物(容器包装プラスチック、ペットボトル、びん・かん・スプレー缶、新聞、雑誌、雑がみ、段ボール、小型家電製品、古着・古布) 破砕ごみ類 有害ごみ〕集団資源回収:新聞、雑誌・雑がみ、段ボール、布類、スチール缶、アルミ缶、紙パック、生きびん
家庭ごみの戸別収集 一部実施(【ふれあい収集】毎週1回/要支援2以上の65歳以上の高齢者のみ及び障害者手帳2級以上の方のみの、身近な人の協力を得ることができない世帯が対象)
粗大ごみ収集 あり
備考
有料。事前申込制。納付済シール貼付し、収集日に排出。三分類定額制(品目により金額が異なる500円・1,000円・2,000円)。
生ごみ処理機助成金制度 なし
上限金額
-
上限比率
-

所沢市の住まいの給付金

中古購入

利子補給制度 なし
補助/助成金制度 なし

増築・改築・改修

利子補給制度 あり
上限金額
-
備考
【勤労者住宅補修資金貸付制度】市内に1年以上住所を有し、同一事業所に1年以上勤務している20歳から60歳までの勤労者が居住している市内の住宅の補修に対して、500万円を限度に貸し付けを行う。その利息の一部に対し利子補給を行う。10年以内の貸付期間で全期間固定金利の場合貸付利率は0.34%、さらに三世代同居の場合は、償還開始から3年間は利子の年0.34%分を市から申込者に補助金として年1回交付。
補助/助成金制度 あり
上限金額
(1)5万円(2)30万円
備考
(1)【我が家の耐震診断補助事業】1981年5月31日以前に着工した戸建ておよび兼用住宅が対象。診断は費用の2/3、上限5万円。(2)【我が家の耐震改修補助事業】1981年5月31日以前に着工した戸建ておよび兼用住宅が対象。改修は費用の23%、上限30万円を補助。
暮らしデータ提供元:生活ガイド.com
※行政機関により公表していない地域及びデータがございます。東京23区以外の政令指定都市は、市全体のデータとして表示しています。
※提供データには細心の注意を払っておりますが、調査後に変更がある場合があります。 最新の情報につきましては各市区役所までお問い合わせいただくか、自治体HPなどをご確認ください。

この物件を見た人はこんな物件も見ています

OCN×ドコモ光新規お申込みで合計最大137,280円相当おトク!特典の内訳・適用条件など詳細はこちら

所沢市内の各駅の住みやすさ

住宅ローンの返済額一覧

物件価格 2180万円に対して、年率 で、頭金 の場合
↓ボーナス 35年間 30年間 25年間 20年間 15年間 10年間
0万円 43,610円/月 50,263円/月 59,584円/月 73,572円/月 96,896円/月 143,558円/月
5万円 34,524円/月 41,288円/月 50,717円/月 64,814円/月 88,245円/月 135,013円/月
10万円 25,439円/月 32,312円/月 41,851円/月 56,055円/月 79,593円/月 126,468円/月
15万円 ローン不可 ローン不可 32,984円/月 47,296円/月 70,942円/月 117,922円/月
20万円 ローン不可 ローン不可 ローン不可 38,538円/月 62,290円/月 109,377円/月
25万円 ローン不可 ローン不可 ローン不可 ローン不可 53,639円/月 100,832円/月
30万円 ローン不可 ローン不可 ローン不可 ローン不可 ローン不可 92,287円/月
支払い利息合計 1,523,410円~ 1,301,040円~ 1,083,050円~ 865,760円~ 649,140円~ 433,180円~
※元利均等返済方式で試算しています。 「円」の単位以下の端数金額は「切り捨て」として計算しております。
※金利は、固定金利として計算しております。
※上記の住宅ローン返済額一覧は、あくまで試算であり、将来の金利動向により、実際のご返済額とは異なります。
※ボーナス支払総額が総支払額の50%を超えている場合、上記の表では「ローン不可」となります。
※住宅ローン返済額一覧の数値は、住宅ローンのお申し込みやご融資をお約束するものではございません。
物件を見たい、物件や住環境の詳しい情報やローン相談など、
お問い合わせ先
花菱不動産(株)

掲載情報の著作権は提供元企業等に帰属します。
Copyright:(C) 2025 Recruit Co., Ltd.
アプリで簡単 物件探し 大手不動産サイトの情報から一括検!プッシュ通知で物件を見逃さない
App Storeからダウンロード Google Playで手に入れよう QRコード