アプリで簡単 物件探し 通知 共有 アプリならではの機能を使ってみる
中古住宅

東京都荒川区荒川8丁目 荒川区役所前駅 中古一戸建て・中古住宅

情報提供元
LIFULL HOME'S
周辺環境
価格 7280万円
交通
所在地 東京都荒川区荒川8丁目周辺地図
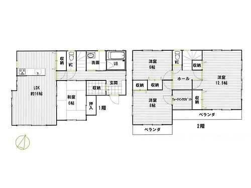
間取り 5LDK
建物面積 97.63m2 土地面積 60.01m2
築年月 2012年12月 築年数 築13年
お問い合わせ先
エムイーPLUS城東 株式会社
物件を見たい、物件や住環境の詳しい情報やローン相談など、
お問い合わせ先
エムイーPLUS城東 株式会社

詳細情報

価格 7280万円
所在地 東京都荒川区荒川8丁目周辺地図
交通
  • 都電荒川線 荒川区役所前駅 徒歩8分乗換案内
  • 都電荒川線 荒川二丁目駅 徒歩9分乗換案内
間取り 5LDK 築年月(築年数) 2012年12月(築13年)
建物面積 97.63m2 建物構造・規模 木造3階建
土地面積 60.01m2 土地権利 所有権
私道面積 借地期間・地代
接道状況 南6m公道接面5m 一方道路
セットバック 駐車場 空有 (1台) 無料
用途地域 工業地域 都市計画 市街化区域
建ぺい率/容積率 60%/200% 現況 空室
地目 宅地 引渡可能時期 即時
情報提供元 LIFULL HOME'S [1230340080103] 情報公開日
情報更新日 次回更新予定日 2025年11月14日

設備など

1種低層地域 - 即入居可 売主・代理 -
駐車2台以上 - 平屋 - 本下水
都市ガス カウンターキッチン - 床暖房 -
ウォークインクローゼット - バリアフリー -
設備 上水道・都市ガス・本下水・バス・トイレ別・コンロ2口以上・室内洗濯機置き場・バルコニー・フローリング・クローゼット・シューズボックス
リフォーム履歴 -
リノベーション履歴 -
備考 【物件周辺の生活情報】
・学校
荒川区立瑞光小学校(900m)、荒川区立第一中学校(700m)
  【設備・特記事項備考】専用バス・専用トイレ・全居室収納
国土法届出:不要
特記事項

省エネ性能

エネルギー消費性能 -
断熱性能 -
目安光熱費 -

東京都荒川区荒川8丁目 周辺地図情報

地図
※地図上に表示される物件の位置は付近住所に所在することを表すものであり、実際の物件所在地とは異なる場合がございます。
   正確な物件所在地は、取扱い不動産会社にお問い合わせください。
物件を見たい、物件や住環境の詳しい情報やローン相談など、
お問い合わせ先
エムイーPLUS城東 株式会社

不動産会社情報

お問い合わせ先 商号:エムイーPLUS城東 株式会社
免許番号:東京都知事(3)第95782号
所在地:東京都足立区南花畑2丁目7-8
取引態様:媒介
管理コード:80103
所属協会など:(公社)首都圏不動産公正取引協議会、(公社)全日本不動産協会東京都本部
共有する
QRコード

お電話でのお問い合わせ

電話をかける(携帯・PHS可)
お問い合わせダイヤル
通話無料0037-634-68370
営業時間 09:00~21:00 (定休日:年中無休)
音声案内に従って数字を入力
お問い合わせ番号
52285-2970
不動産会社につながります
不動産会社のスタッフと
直接電話で話せます。
※不動産会社がお電話に出られなかった場合、株式会社LIFULLは電話会社が提供するサービスを介してお客様の発信者番号を受領後、折り返し専用の電話番号を発番してお問合せの不動産会社に通知します(お客様の発信者番号がお問合せの不動産会社に通知されることはございません)
※光IP電話、及びIP電話からはご利用になれません
※0037で始まる電話番号に携帯電話からお問合せいただいた方には、ショートメッセージ(SMS)によるお問合せ完了通知をお届けする場合があります
物件を見たい、物件や住環境の詳しい情報やローン相談など、
お問い合わせ先
エムイーPLUS城東 株式会社

荒川区の暮らしデータ

人口などの統計情報

世帯数 111799世帯
人口総数 219268人
転入者数 20084人
転入率(人口1000人当たり)
91.60人
転出者数 16107人
転出率(人口1000人当たり)
73.46人
土地平均価格
住宅地
658167円/m2
商業地
975875円/m2

結婚・育児の助成金

子育て関連の独自の取り組み (1)補充学習「あらかわ寺子屋」実施。(2)24時間365日電話相談。(3)子どもの居場所づくり・子ども食堂(4)ツインズサポート(5)親子ふれあい入浴。(6)新米パパ講座。(7)地域子育て教室(パパスクール、ママ企画講座)。(8)地域教育力向上支援事業。(9)家庭教育学級。(10)あらかわ親育ち支援事業。(11)産後ケア事業(12)荒川たんぽぽセンター、教育センター。(13)就学援助費/就学奨励費。(14)子育て交流サロン。(15)区民住宅を活用した多子世帯支援。(16)中央図書館・文化館等の複合施設での乳幼児一時預かりの実施。(17)子育て支援アプリの配信。(18)保育士等支援奨学金事業補助金・保育従事職員宿舎借上支援事業補助金。(19)子育て応援施設のあらかわ遊園。(20)ひとり親家庭フードパントリー事業。
出産祝い あり
公立保育所数 18所(うち0歳児保育を実施している保育所:16所)
私立保育所数 41所(うち0歳児保育を実施している保育所:39所)
保育所入所待機児童数 33人
認定こども園数 2園 預かり保育実施園数 公立:1園 私立:4園
学校給食 【小学校】完全給食【中学校】完全給食
公立中学校の学校選択制 実施
子ども・学生等医療費助成<通院>対象年齢 18歳3月末まで 子ども・学生等医療費助成<入院>対象年齢 18歳3月末まで

荒川区の治安・ごみ収集情報

公共料金・インフラ

ガス料金(22m3使用した場合の月額) 東京瓦斯株式会社(東京地区等)3926円
水道料金(口径20mmで20m3の月額) 東京都水道局2816円
下水道料金(20m3を使用した場合の月額) 東京都下水道局2068円
下水道普及率 100.0%

安心・安全

建物火災出火件数 39件
人口10000人当たり
1.79件
刑法犯認知件数 1326件
人口1000人当たり
6.10件
ハザード・防災マップ あり

医療

一般病院総数 12ヶ所
一般診療所総数 194ヶ所
小児科医師数 31人
小児人口10000人当たり
13.04人
産婦人科医師数 20人
15~49歳女性人口1万人当たり
3.98人
介護保険料基準額(月額) 6920円

ごみ

家庭ごみ収集(可燃ごみ) 無料
備考
引越し等で、臨時に大量のごみを排出する場合は有料。
家庭ごみの分別方式 3分別11種〔可燃ごみ 不燃ごみ 資源(古紙[新聞、雑誌・雑がみ類、段ボール、牛乳パック]、びん、缶、ペットボトル、食品トレイ、古布)〕 拠点回収:使用済中型家電 使用済小型家電 廃食油 蛍光管 水銀体温計・水銀血圧計 インクカートリッジ
家庭ごみの戸別収集 一部実施(世帯員自らがごみを集積所まで持ち出すことが困難で、他の者の協力が得られない以下の世帯が対象となる。高齢者[65歳以上の者のうち要介護2以上]又は障害者[身体・精神障害の程度2級以上の者又は愛の手帳の交付を受けている者]のみの世帯)
粗大ごみ収集 あり
備考
有料。事前申込制。荒川区粗大ごみ処理券を購入。
生ごみ処理機助成金制度 あり
上限金額
20000円
上限比率
50.0%

荒川区の住まいの給付金

中古購入

利子補給制度 なし
補助/助成金制度 なし

増築・改築・改修

利子補給制度 なし
補助/助成金制度 あり
上限金額
(1)360万円(2)180万円
備考
(1)【木造建物耐震化推進事業】2000年5月31日以前の建築物で、区の耐震診断を受け、耐震補強工事の必要があると判定された建物(その他条件あり)は、補助率4/5かつ上限180万円。高齢者世帯で2年以上居住の世帯は上限360万円。高齢者世帯とは(a)70歳以上のひとり暮らしの世帯。(b)70歳以上の方とその配偶者で構成されている世帯。(c)70歳以上の方とその兄弟姉妹で構成されている世帯。(d)70歳以上の方とその親で構成されている世帯。(e)(b)または(c)の世帯とその親で構成されている世帯を指す。その他要件あり。(2)【非木造建物耐震化推進事業】非木造住宅の場合は、補助率4/5かつ上限180万円。
暮らしデータ提供元:生活ガイド.com
※行政機関により公表していない地域及びデータがございます。東京23区以外の政令指定都市は、市全体のデータとして表示しています。
※提供データには細心の注意を払っておりますが、調査後に変更がある場合があります。 最新の情報につきましては各市区役所までお問い合わせいただくか、自治体HPなどをご確認ください。

この物件を見た人はこんな物件も見ています

OCN×ドコモ光新規お申込みで合計最大137,280円相当おトク!特典の内訳・適用条件など詳細はこちら

住宅ローンの返済額一覧

物件価格 7280万円に対して、年率 で、頭金 の場合
↓ボーナス 35年間 30年間 25年間 20年間 15年間 10年間
0万円 175,998円/月 202,850円/月 240,466円/月 296,919円/月 391,046円/月 579,360円/月
5万円 166,913円/月 193,874円/月 231,599円/月 288,160円/月 382,395円/月 570,815円/月
10万円 157,827円/月 184,899円/月 222,732円/月 279,401円/月 373,743円/月 562,270円/月
15万円 148,742円/月 175,923円/月 213,865円/月 270,643円/月 365,092円/月 553,724円/月
20万円 139,656円/月 166,947円/月 204,999円/月 261,884円/月 356,440円/月 545,179円/月
25万円 130,571円/月 157,972円/月 196,132円/月 253,125円/月 347,789円/月 536,634円/月
30万円 121,485円/月 148,996円/月 187,265円/月 244,367円/月 339,137円/月 528,089円/月
支払い利息合計 6,140,930円~ 5,244,720円~ 4,355,200円~ 3,473,040円~ 2,597,610円~ 1,729,420円~
※元利均等返済方式で試算しています。 「円」の単位以下の端数金額は「切り捨て」として計算しております。
※金利は、固定金利として計算しております。
※上記の住宅ローン返済額一覧は、あくまで試算であり、将来の金利動向により、実際のご返済額とは異なります。
※ボーナス支払総額が総支払額の50%を超えている場合、上記の表では「ローン不可」となります。
※住宅ローン返済額一覧の数値は、住宅ローンのお申し込みやご融資をお約束するものではございません。
物件を見たい、物件や住環境の詳しい情報やローン相談など、
お問い合わせ先
エムイーPLUS城東 株式会社

掲載情報の著作権は提供元企業等に帰属します。
Copyright:(C) 2025 LIFULL Co.,Ltd.
アプリで簡単 物件探し 大手不動産サイトの情報から一括検!プッシュ通知で物件を見逃さない
App Storeからダウンロード Google Playで手に入れよう QRコード