アプリで簡単 物件探し 通知 共有 アプリならではの機能を使ってみる
中古住宅

東京都狛江市東和泉3 和泉多摩川駅 中古一戸建て・中古住宅

情報提供元
SUUMO
東京都狛江市東和泉3 和泉多摩川駅 中古一戸建て・中古住宅
価格 7980万円
交通
所在地 東京都狛江市東和泉3周辺地図
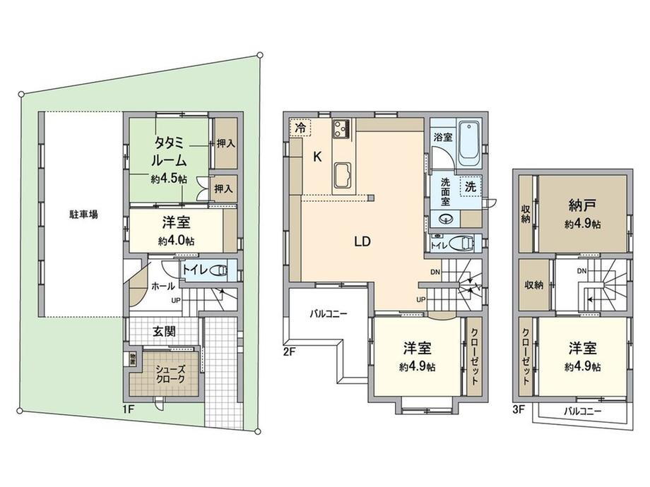
間取り 3SLDK
建物面積 103.83m2(31.40坪)(登記) 土地面積 84.23m2(25.47坪)(登記)
築年月 2015年11月 築年数 築10年
おすすめポイント
-物件のおすすめポイント-▼立地・小田急電鉄小田原線「和泉多摩川」駅 徒歩4分 他▼特徴・約16帖のLDKはバルコニー付きの3面採光・2階リビング設計でプライバシーにも配慮・開放感のあるオープンキッチン・ベビーカーなども収納できるシューズクローク・上部にも窓付き、浴室TVでバスタイムが楽しめる浴室・電動シャッター付きガレージ有(車種による)▼周辺環境・スーパー「まいばすけっと和泉多摩川駅東店」徒歩3分(約210m)※建物部分に車庫部分を含む■ ご希望の住まい探しをお手伝いします ━━━━━・・・物件の詳細・ご相談はお気軽にお問い合わせください。
お問い合わせ先
三井のリハウス成城センター三井不動産リアルティ(株)
物件を見たい、物件や住環境の詳しい情報やローン相談など、
お問い合わせ先
三井のリハウス成城センター三井不動産リアルティ(株)

詳細情報

価格 7980万円
所在地 東京都狛江市東和泉3周辺地図
交通
間取り 3SLDK 築年月(築年数) 2015年11月(築10年)
建物面積 103.83m2(31.40坪)(登記) 建物構造・規模 木造3階建
土地面積 84.23m2(25.47坪)(登記) 土地権利 所有権
私道面積 借地期間・地代
接道状況 南西10m接面5m 駐車場
用途地域 1種中高 都市計画
建ぺい率/容積率 60%/200% 現況
地目 引渡可能時期 相談
情報提供元 SUUMO [030Z78434675] 情報公開日
情報更新日 次回更新予定日 随時

設備など

1種低層地域 - 即入居可 - 売主・代理 -
駐車2台以上 - 平屋 - 本下水 -
都市ガス カウンターキッチン - 床暖房 -
ウォークインクローゼット - バリアフリー -
設備 収納スペース・都市ガス・システムキッチン・モニタ付インターホン・風呂・対面K・車庫・トイレ2ヶ所・上水道・シューズインクローク
リフォーム履歴 -
リノベーション履歴 -
備考 <物件名>東和泉3(和泉多摩川駅) 7980万円/<駐車場>車庫/<土地権利>所有権/<間取り>3LDK+S(納戸)/<特徴>■三井のリハウス■南西側接道の3階建て最寄駅・スーパーまで徒歩4分圏内、スーパー 徒歩10分以内・システムキッチン・LDK15畳以上・前道6m以上・和室
販売戸数:1戸
特記事項

省エネ性能

エネルギー消費性能 -
断熱性能 -
目安光熱費 -

東京都狛江市東和泉3 周辺地図情報

地図
※地図上に表示される物件の位置は付近住所に所在することを表すものであり、実際の物件所在地とは異なる場合がございます。
   正確な物件所在地は、取扱い不動産会社にお問い合わせください。
物件を見たい、物件や住環境の詳しい情報やローン相談など、
お問い合わせ先
三井のリハウス成城センター三井不動産リアルティ(株)

不動産会社情報

お問い合わせ先 商号:三井のリハウス成城センター三井不動産リアルティ(株)
免許番号:国土交通大臣(15)第000777号
所在地:東京都世田谷区成城2-40-6 クロスシー成城学園前ビル1階
TEL:00786-01793783
取引態様:媒介
管理コード:FQ7ATA12
共有する
QRコード
物件を見たい、物件や住環境の詳しい情報やローン相談など、
お問い合わせ先
三井のリハウス成城センター三井不動産リアルティ(株)

狛江市の暮らしデータ

人口などの統計情報

世帯数 42578世帯
人口総数 82102人
転入者数 4634人
転入率(人口1000人当たり)
56.44人
転出者数 4858人
転出率(人口1000人当たり)
59.17人
土地平均価格
住宅地
368800円/m2
商業地
447000円/m2

結婚・育児の助成金

子育て関連の独自の取り組み (1)ひだまりセンター(狛江市子育て・教育支援複合施設)を設置し、子ども家庭支援センター、児童発達支援センター、教育支援センターの3つの機能が一体となり、発達の程度やライフステージに応じた切れ目のない支援体制を構築している。(2)プレーパーク事業では、子どもたちが自由にのびのびと楽しく外遊びができる場所づくりに取り組んでいる。
出産祝い あり
公立保育所数 4所(うち0歳児保育を実施している保育所:4所)
私立保育所数 16所(うち0歳児保育を実施している保育所:16所)
保育所入所待機児童数 12人
認定こども園数 1園 預かり保育実施園数 公立:- 私立:3園
学校給食 【小学校】完全給食【中学校】完全給食
公立中学校の学校選択制 未実施
子ども・学生等医療費助成<通院>対象年齢 18歳3月末まで 子ども・学生等医療費助成<入院>対象年齢 18歳3月末まで

狛江市の治安・ごみ収集情報

公共料金・インフラ

ガス料金(22m3使用した場合の月額) 東京瓦斯株式会社(東京地区等)3926円
水道料金(口径20mmで20m3の月額) 東京都水道局2816円
下水道料金(20m3を使用した場合の月額) 狛江市1537円
下水道普及率 100.0%

安心・安全

建物火災出火件数 8件
人口10000人当たり
0.94件
刑法犯認知件数 316件
人口1000人当たり
3.73件
ハザード・防災マップ あり

医療

一般病院総数 1ヶ所
一般診療所総数 66ヶ所
小児科医師数 21人
小児人口10000人当たり
21.98人
産婦人科医師数 14人
15~49歳女性人口1万人当たり
7.92人
介護保険料基準額(月額) 6450円

ごみ

家庭ごみ収集(可燃ごみ) 有料
備考
指定ごみ袋有料(可燃ごみ・不燃ごみ・プラスチック類ごみ共通)。
家庭ごみの分別方式 5分別19種〔可燃物(可燃ごみ、落ち葉・下草、おむつ) 不燃ごみ 有害ごみ(蛍光管、電球型蛍光管、乾電池、小型充電式電池、小型家電、水銀含有物) プラスチック類ごみ 資源物(新聞・ダンボール・牛乳パック・その他雑紙・シュレッダー紙、古布、ビン類・ガラス・陶磁器、発火物、缶類、ペットボトル、金属)〕 予約制:植木せん定枝
家庭ごみの戸別収集 実施
粗大ごみ収集 あり
備考
有料。事前申込制。シール制(300円、500円、1,000円)。
生ごみ処理機助成金制度 あり
上限金額
18000円
上限比率
50.0%

狛江市の住まいの給付金

中古購入

利子補給制度 なし
補助/助成金制度 なし

増築・改築・改修

利子補給制度 なし
補助/助成金制度 あり
上限金額
(1)12万円(2)100万円
備考
(1)【木造住宅耐震診断助成】1981年5月31日以前の建築基準で建築された木造住宅等が対象。耐震診断に要する費用の2/3の額を助成。ただし、上限12万円。(2)【木造住宅耐震改修助成】1981年5月31日以前の建築基準で建築された木造住宅等が対象。耐震改修に要する費用の1/2の額を助成。ただし、耐震改修後の評点が1.0以上とする場合は上限80万円、耐震改修後の評点が0.7以上1.0未満とする場合は上限額30万円。また、耐震改修に併せて、リフォーム工事を行う場合は当該工事費の1/5の額を助成。ただし、上限20万円。他要件あり。
暮らしデータ提供元:生活ガイド.com
※行政機関により公表していない地域及びデータがございます。東京23区以外の政令指定都市は、市全体のデータとして表示しています。
※提供データには細心の注意を払っておりますが、調査後に変更がある場合があります。 最新の情報につきましては各市区役所までお問い合わせいただくか、自治体HPなどをご確認ください。

この物件を見た人はこんな物件も見ています

OCN×ドコモ光新規お申込みで合計最大137,280円相当おトク!特典の内訳・適用条件など詳細はこちら

狛江市内の各駅の住みやすさ

住宅ローンの返済額一覧

物件価格 7980万円に対して、年率 で、頭金 の場合
↓ボーナス 35年間 30年間 25年間 20年間 15年間 10年間
0万円 194,169円/月 223,793円/月 265,293円/月 327,574円/月 431,420円/月 639,176円/月
5万円 185,084円/月 214,818円/月 256,426円/月 318,815円/月 422,768円/月 630,631円/月
10万円 175,998円/月 205,842円/月 247,559円/月 310,057円/月 414,117円/月 622,086円/月
15万円 166,913円/月 196,866円/月 238,692円/月 301,298円/月 405,465円/月 613,540円/月
20万円 157,827円/月 187,891円/月 229,826円/月 292,539円/月 396,814円/月 604,995円/月
25万円 148,742円/月 178,915円/月 220,959円/月 283,781円/月 388,162円/月 596,450円/月
30万円 139,656円/月 169,939円/月 212,092円/月 275,022円/月 379,511円/月 587,905円/月
支払い利息合計 6,772,750円~ 5,784,200円~ 4,803,300円~ 3,830,240円~ 2,864,930円~ 1,907,340円~
※元利均等返済方式で試算しています。 「円」の単位以下の端数金額は「切り捨て」として計算しております。
※金利は、固定金利として計算しております。
※上記の住宅ローン返済額一覧は、あくまで試算であり、将来の金利動向により、実際のご返済額とは異なります。
※ボーナス支払総額が総支払額の50%を超えている場合、上記の表では「ローン不可」となります。
※住宅ローン返済額一覧の数値は、住宅ローンのお申し込みやご融資をお約束するものではございません。
物件を見たい、物件や住環境の詳しい情報やローン相談など、
お問い合わせ先
三井のリハウス成城センター三井不動産リアルティ(株)

掲載情報の著作権は提供元企業等に帰属します。
Copyright:(C) 2025 Recruit Co., Ltd.
アプリで簡単 物件探し 大手不動産サイトの情報から一括検!プッシュ通知で物件を見逃さない
App Storeからダウンロード Google Playで手に入れよう QRコード