アプリで簡単 物件探し 通知 共有 アプリならではの機能を使ってみる
中古住宅

東京都府中市西原町2 谷保駅 中古一戸建て・中古住宅

情報提供元
SUUMO
東京都府中市西原町2 谷保駅 中古一戸建て・中古住宅
価格 2890万円
交通
所在地 東京都府中市西原町2周辺地図
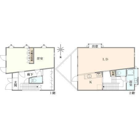
間取り 1LDK
建物面積 70.62m2(21.36坪)(登記) 土地面積 77.23m2(23.36坪)(登記)
築年月 1992年3月 築年数 築33年8ヶ月
おすすめポイント
■屋根は耐久性に優れたステレンス鋼板を使用■トイレ2か所■2階部分にロフトスペース有■カースペース有■公営水道・都市ガス・本下水■お車でのご移動も容易な立地⇒周辺にはエリア主要道路である幹線道路 (下記の2路線)がございます。 ・東八道路 ・新府中街道 三鷹市方面や多摩市方面へ容易に アクセスできます。
角地
お問い合わせ先
野村の仲介+府中センター野村不動産ソリューションズ(株)
物件を見たい、物件や住環境の詳しい情報やローン相談など、
お問い合わせ先
野村の仲介+府中センター野村不動産ソリューションズ(株)

詳細情報

価格 2890万円
所在地 東京都府中市西原町2周辺地図
交通
間取り 1LDK 築年月(築年数) 1992年3月(築33年8ヶ月)
建物面積 70.62m2(21.36坪)(登記) 建物構造・規模 木造2階建
土地面積 77.23m2(23.36坪)(登記) 土地権利 所有権
私道面積 借地期間・地代
接道状況 北4m接面10.3m 東4m接面5.4m 二方道路 駐車場
用途地域 1種低層 都市計画
建ぺい率/容積率 40%/80% 現況
地目 引渡可能時期 相談
情報提供元 SUUMO [030Z78636961] 情報公開日
情報更新日 次回更新予定日 随時

設備など

1種低層地域 即入居可 - 売主・代理 -
駐車2台以上 - 平屋 - 本下水
都市ガス カウンターキッチン - 床暖房 -
ウォークインクローゼット - バリアフリー -
設備 都市ガス・モニタ付インターホン・風呂・浄水器・上水道・本下水
リフォーム履歴 -
リノベーション履歴 -
備考 <物件名>西原町2(谷保駅) 2890万円/<駐車場>車庫/<土地権利>所有権/<間取り>1LDK/<特徴>・「船」をイメージした建築士こだわりの住宅・角地 ・閑静な住宅街に立地、角地・2階建・浴室に窓・TVモニタ付インターホン・都市ガス
販売戸数:1戸
法令等制限:高度地区、・契約不適合責任免責 ・建ぺい率、容積率オーバー
特記事項 角地

省エネ性能

エネルギー消費性能 -
断熱性能 -
目安光熱費 -

東京都府中市西原町2 周辺地図情報

地図
※地図上に表示される物件の位置は付近住所に所在することを表すものであり、実際の物件所在地とは異なる場合がございます。
   正確な物件所在地は、取扱い不動産会社にお問い合わせください。
物件を見たい、物件や住環境の詳しい情報やローン相談など、
お問い合わせ先
野村の仲介+府中センター野村不動産ソリューションズ(株)

不動産会社情報

お問い合わせ先 商号:野村の仲介+府中センター野村不動産ソリューションズ(株)
免許番号:国土交通大臣(5)第006101号
所在地:東京都府中市府中町1-1-5 府中Renolikeビル1階
TEL:0120-982-751
取引態様:専任媒介
管理コード:FA3BX005
共有する
QRコード
物件を見たい、物件や住環境の詳しい情報やローン相談など、
お問い合わせ先
野村の仲介+府中センター野村不動産ソリューションズ(株)

府中市の暮らしデータ

人口などの統計情報

世帯数 123766世帯
人口総数 260078人
転入者数 15231人
転入率(人口1000人当たり)
58.56人
転出者数 14174人
転出率(人口1000人当たり)
54.50人
土地平均価格
住宅地
329579円/m2
商業地
599125円/m2

結婚・育児の助成金

子育て関連の独自の取り組み (1)子育て情報誌(子育てのたまて箱)の発行。(2)子育て情報配信アプリの運営。(3)産前産後家庭サポート事業(出産前後の妊産婦のいる家庭等に援助員を派遣し、育児や家事等の支援を行う事業)の実施。
出産祝い なし
公立保育所数 11所(うち0歳児保育を実施している保育所:11所)
私立保育所数 45所(うち0歳児保育を実施している保育所:44所)
保育所入所待機児童数 0人
認定こども園数 0園 預かり保育実施園数 公立:- 私立:16園
学校給食 【小学校】完全給食【中学校】完全給食
公立中学校の学校選択制 未実施
子ども・学生等医療費助成<通院>対象年齢 18歳3月末まで 子ども・学生等医療費助成<入院>対象年齢 18歳3月末まで

府中市の治安・ごみ収集情報

公共料金・インフラ

ガス料金(22m3使用した場合の月額) 東京瓦斯株式会社(東京地区等)3926円
水道料金(口径20mmで20m3の月額) 東京都水道局2816円
下水道料金(20m3を使用した場合の月額) 府中市908円
下水道普及率 100.0%

安心・安全

建物火災出火件数 43件
人口10000人当たり
1.64件
刑法犯認知件数 1002件
人口1000人当たり
3.81件
ハザード・防災マップ あり

医療

一般病院総数 12ヶ所
一般診療所総数 188ヶ所
小児科医師数 170人
小児人口10000人当たり
53.58人
産婦人科医師数 46人
15~49歳女性人口1万人当たり
8.50人
介護保険料基準額(月額) 5995円

ごみ

家庭ごみ収集(可燃ごみ) 有料
備考
指定ごみ袋有料。指定ごみ袋にごみ処理手数料を含む。
家庭ごみの分別方式 12分別15種別〔可燃ごみ 不燃ごみ 容器包装プラスチック 有害ごみ びん かん ペットボトル 古布 紙類(段ボール、古紙、新聞、紙パック) 危険ごみ おむつ 落ち葉・下草〕 拠点回収:携帯電話・スマートフォン はがき 家庭廃食用油
家庭ごみの戸別収集 実施
粗大ごみ収集 あり
備考
有料。品目別料金(粗大ごみシール)設定。粗大ごみコールセンターで、電話・インターネットで事前申し込み制。直接持込みは通常料金の半額。
生ごみ処理機助成金制度 あり
上限金額
20000円
上限比率
50.0%

府中市の住まいの給付金

中古購入

利子補給制度 なし
補助/助成金制度 なし

増築・改築・改修

利子補給制度 なし
補助/助成金制度 あり
上限金額
(1)12万円(2)110万円
備考
(1)【耐震診断助成】費用の2/3、限度額12万円。(2)【耐震改修助成】費用の1/2、限度額110万円。(1)、(2)とも1981年5月31日以前に建築された一戸建ての住宅が対象。
暮らしデータ提供元:生活ガイド.com
※行政機関により公表していない地域及びデータがございます。東京23区以外の政令指定都市は、市全体のデータとして表示しています。
※提供データには細心の注意を払っておりますが、調査後に変更がある場合があります。 最新の情報につきましては各市区役所までお問い合わせいただくか、自治体HPなどをご確認ください。

この物件を見た人はこんな物件も見ています

OCN×ドコモ光新規お申込みで合計最大137,280円相当おトク!特典の内訳・適用条件など詳細はこちら

府中市内の各駅の住みやすさ

住宅ローンの返済額一覧

物件価格 2890万円に対して、年率 で、頭金 の場合
↓ボーナス 35年間 30年間 25年間 20年間 15年間 10年間
0万円 62,040円/月 71,506円/月 84,766円/月 104,666円/月 137,846円/月 204,228円/月
5万円 52,955円/月 62,530円/月 75,899円/月 95,907円/月 129,195円/月 195,683円/月
10万円 43,869円/月 53,554円/月 67,032円/月 87,148円/月 120,543円/月 187,138円/月
15万円 34,784円/月 44,579円/月 58,165円/月 78,390円/月 111,892円/月 178,593円/月
20万円 ローン不可 ローン不可 49,299円/月 69,631円/月 103,240円/月 170,048円/月
25万円 ローン不可 ローン不可 ローン不可 60,872円/月 94,589円/月 161,503円/月
30万円 ローン不可 ローン不可 ローン不可 ローン不可 85,937円/月 152,957円/月
支払い利息合計 2,167,860円~ 1,851,520円~ 1,540,150円~ 1,230,080円~ 921,610円~ 613,580円~
※元利均等返済方式で試算しています。 「円」の単位以下の端数金額は「切り捨て」として計算しております。
※金利は、固定金利として計算しております。
※上記の住宅ローン返済額一覧は、あくまで試算であり、将来の金利動向により、実際のご返済額とは異なります。
※ボーナス支払総額が総支払額の50%を超えている場合、上記の表では「ローン不可」となります。
※住宅ローン返済額一覧の数値は、住宅ローンのお申し込みやご融資をお約束するものではございません。
物件を見たい、物件や住環境の詳しい情報やローン相談など、
お問い合わせ先
野村の仲介+府中センター野村不動産ソリューションズ(株)

掲載情報の著作権は提供元企業等に帰属します。
Copyright:(C) 2025 Recruit Co., Ltd.
アプリで簡単 物件探し 大手不動産サイトの情報から一括検!プッシュ通知で物件を見逃さない
App Storeからダウンロード Google Playで手に入れよう QRコード