アプリで簡単 物件探し 通知 共有 アプリならではの機能を使ってみる
中古住宅

東京都中野区上高田1 東中野駅 中古一戸建て・中古住宅

情報提供元
SUUMO
東京都中野区上高田1 東中野駅 中古一戸建て・中古住宅
価格 10980万円
交通
所在地 東京都中野区上高田1周辺地図
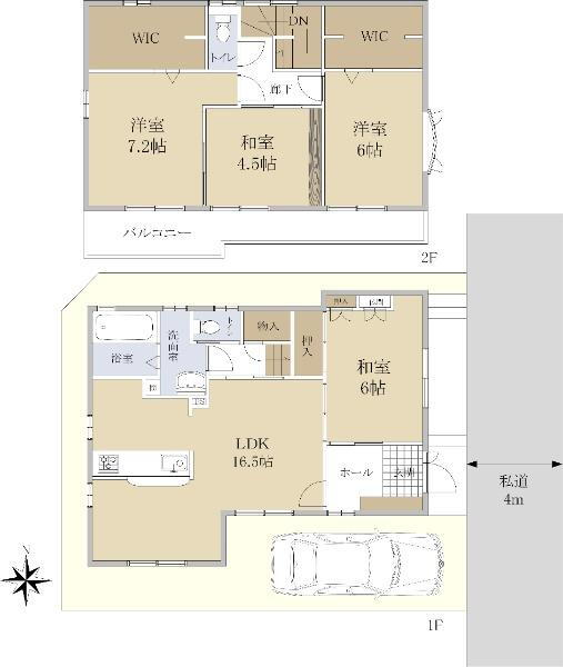
間取り 4LDK
建物面積 107.44m2(32.50坪) 土地面積 98.29m2(29.73坪)(登記)
築年月 2002年12月 築年数 築22年11ヶ月
おすすめポイント
【本物件建物について】■大和ハウス工業株式会社 施工■構造:軽量鉄骨造 地上2階建 1階:56.88㎡ 2階:50.56㎡■間取り:4LDK 床下収納・クローゼットなど収納が豊富です。■築年月:2002年12月築■20年点検実施済み(2022年9月)【リフォーム履歴】・外壁塗装・屋根塗装(2019年1月)・給湯器交換(2019年12月)・モニター付インターホン交換(2019年12月)・2階トイレ シャワートイレ交換(2021年1月)・1階トイレ(トイレ本体・クロス・フロア)交換(2023年8月)・洗面化粧台交換(2023年8月)
日当り良好・閑静な住宅街・整形地
お問い合わせ先
住友不動産ステップ(株)中野営業センター
物件を見たい、物件や住環境の詳しい情報やローン相談など、
お問い合わせ先
住友不動産ステップ(株)中野営業センター

詳細情報

価格 10980万円
所在地 東京都中野区上高田1周辺地図
交通
間取り 4LDK 築年月(築年数) 2002年12月(築22年11ヶ月)
建物面積 107.44m2(32.50坪) 建物構造・規模 軽量鉄骨2階建
土地面積 98.29m2(29.73坪)(登記) 土地権利 所有権
私道面積 23.29m2 借地期間・地代
接道状況 東4m接面20.6m 駐車場
用途地域 1種低層 都市計画
建ぺい率/容積率 60%/150% 現況
地目 引渡可能時期 相談
情報提供元 SUUMO [030Z78641966] 情報公開日
情報更新日 次回更新予定日 随時

設備など

1種低層地域 即入居可 - 売主・代理 -
駐車2台以上 - 平屋 - 本下水 -
都市ガス カウンターキッチン - 床暖房 -
ウォークインクローゼット バリアフリー -
設備 バルコニー・収納スペース・洗面所・ウォークインクローゼット・シャンプードレッサ・風呂・トイレ2ヶ所・床下収納・IHクッキングヒータ・都市ガス・リフォーム
リフォーム履歴 2023年8月完了
 水回り設備交換:トイレ
2019年1月完了
 その他リフォーム:外壁・屋根
※年月は一番古いリフォーム箇所を表します
リノベーション履歴 -
備考 <物件名>上高田1(東中野駅) 1億980万円/<土地権利>所有権/<間取り>4LDK/<リフォーム>●リフォーム:2023年8月完了(水回り設備交換:トイレ)、2019年1月完了(その他リフォーム:外壁・屋根)※年月は一番古いリフォーム箇所を表します/<特徴>◆大和ハウス工業(株)施工 ◆軽量鉄骨造 ◆3駅4路線利用可能、修繕・点検の記録・2沿線以上利用可・スーパー 徒歩10分以内・内外装リフォーム・陽当り良好
販売戸数:1戸
法令等制限:地勢:平坦/駐車場有り/カーポート1台分(車種による)
特記事項 日当り良好・閑静な住宅街・整形地

省エネ性能

エネルギー消費性能 -
断熱性能 -
目安光熱費 -

東京都中野区上高田1 周辺地図情報

地図
※地図上に表示される物件の位置は付近住所に所在することを表すものであり、実際の物件所在地とは異なる場合がございます。
   正確な物件所在地は、取扱い不動産会社にお問い合わせください。
物件を見たい、物件や住環境の詳しい情報やローン相談など、
お問い合わせ先
住友不動産ステップ(株)中野営業センター

不動産会社情報

お問い合わせ先 商号:住友不動産ステップ(株)中野営業センター
免許番号:国土交通大臣(13)第002077号
所在地:東京都中野区中野2-24-11 ナカノサウステラ2階
TEL:0120-832842
取引態様:一般媒介
管理コード:15812033
共有する
QRコード
物件を見たい、物件や住環境の詳しい情報やローン相談など、
お問い合わせ先
住友不動産ステップ(株)中野営業センター

中野区の暮らしデータ

人口などの統計情報

世帯数 207944世帯
人口総数 337377人
転入者数 36387人
転入率(人口1000人当たり)
107.85人
転出者数 31624人
転出率(人口1000人当たり)
93.73人
土地平均価格
住宅地
665091円/m2
商業地
1828545円/m2

結婚・育児の助成金

子育て関連の独自の取り組み (1)妊娠・出産・子育てトータルケア事業。妊産婦との面接や出産・育児に関する個別支援プランの提供等を実施。(2)ブックスタート事業。絵本を開く楽しい「体験」と「絵本」をセットで提供。トートバックに絵本2冊とリーフレットを入れて配布。(3)実質ひとり親家庭への子育て支援給付事業の実施。離婚調停中で離婚成立前から実質的にひとり親家庭となった家庭に対する金銭給付の実施。(4)リトルベビーハンドブックの作成。2,500グラム以下の低出生体重児等の子どもを育てる家庭にハンドブックを配布。(5)ひとり親家庭住宅支援。区内在住のひとり親または実質ひとり親が区内転居する場合の初期費用等を補助。(6)区立小・中学校の学校給食費の無償化及び区立学校在籍以外の学齢期の児童生徒への給食費相当の支援。
出産祝い なし
公立保育所数 10所(うち0歳児保育を実施している保育所:8所)
私立保育所数 83所(うち0歳児保育を実施している保育所:65所)
保育所入所待機児童数 0人
認定こども園数 5園 預かり保育実施園数 公立:2園 私立:18園
学校給食 【小学校】完全給食【中学校】完全給食
公立中学校の学校選択制 未実施
子ども・学生等医療費助成<通院>対象年齢 18歳3月末まで 子ども・学生等医療費助成<入院>対象年齢 18歳3月末まで

中野区の治安・ごみ収集情報

公共料金・インフラ

ガス料金(22m3使用した場合の月額) 東京瓦斯株式会社(東京地区等)3926円
水道料金(口径20mmで20m3の月額) 東京都水道局2816円
下水道料金(20m3を使用した場合の月額) 東京都下水道局2068円
下水道普及率 100.0%

安心・安全

建物火災出火件数 57件
人口10000人当たり
1.65件
刑法犯認知件数 1976件
人口1000人当たり
5.73件
ハザード・防災マップ あり

医療

一般病院総数 8ヶ所
一般診療所総数 325ヶ所
小児科医師数 59人
小児人口10000人当たり
19.54人
産婦人科医師数 17人
15~49歳女性人口1万人当たり
2.06人
介護保険料基準額(月額) 6274円

ごみ

家庭ごみ収集(可燃ごみ) 無料
備考
家庭から出るごみも、引越しなどで一度に多量(45リットルのごみ袋で5袋以上)に出す場合は有料。45リットル300円、70リットル500円、90リットル600円。
家庭ごみの分別方式 3分別6種〔燃やすごみ 陶器・ガラス・金属ごみ 資源(びん、缶、ペットボトル、プラスチック製容器包装と製品プラスチック)〕 拠点回収:紙パック 古布 乾電池 小型充電式電池 廃蛍光管 廃食用油 ※新聞 雑誌 ダンボール等の古紙及び古着 古布は町会・自治会等が実施する「集団回収」で回収
家庭ごみの戸別収集 一部実施(自らごみを集積所まで持ち出すことが困難で、訪問介護や親族、ボランティア等の協力が得られない、身体障がい者、要支援者や要介護者だけで構成される世帯に訪問収集を実施)
粗大ごみ収集 あり
備考
有料。事前申込制。
生ごみ処理機助成金制度 なし
上限金額
-
上限比率
-

中野区の住まいの給付金

中古購入

利子補給制度 なし
補助/助成金制度 なし

増築・改築・改修

利子補給制度 なし
補助/助成金制度 なし
暮らしデータ提供元:生活ガイド.com
※行政機関により公表していない地域及びデータがございます。東京23区以外の政令指定都市は、市全体のデータとして表示しています。
※提供データには細心の注意を払っておりますが、調査後に変更がある場合があります。 最新の情報につきましては各市区役所までお問い合わせいただくか、自治体HPなどをご確認ください。

この物件を見た人はこんな物件も見ています

OCN×ドコモ光新規お申込みで合計最大137,280円相当おトク!特典の内訳・適用条件など詳細はこちら

中野区内の各駅の住みやすさ

住宅ローンの返済額一覧

物件価格 10980万円に対して、年率 で、頭金 の場合
↓ボーナス 35年間 30年間 25年間 20年間 15年間 10年間
0万円 272,045円/月 313,550円/月 371,694円/月 458,954円/月 604,449円/月 895,530円/月
5万円 262,959円/月 304,574円/月 362,827円/月 450,196円/月 595,798円/月 886,985円/月
10万円 253,874円/月 295,599円/月 353,960円/月 441,437円/月 587,146円/月 878,440円/月
15万円 244,789円/月 286,623円/月 345,093円/月 432,678円/月 578,495円/月 869,895円/月
20万円 235,703円/月 277,647円/月 336,227円/月 423,920円/月 569,843円/月 861,349円/月
25万円 226,618円/月 268,672円/月 327,360円/月 415,161円/月 561,192円/月 852,804円/月
30万円 217,532円/月 259,696円/月 318,493円/月 406,402円/月 552,540円/月 844,259円/月
支払い利息合計 9,480,670円~ 8,096,720円~ 6,723,600円~ 5,361,440円~ 4,010,150円~ 2,669,820円~
※元利均等返済方式で試算しています。 「円」の単位以下の端数金額は「切り捨て」として計算しております。
※金利は、固定金利として計算しております。
※上記の住宅ローン返済額一覧は、あくまで試算であり、将来の金利動向により、実際のご返済額とは異なります。
※ボーナス支払総額が総支払額の50%を超えている場合、上記の表では「ローン不可」となります。
※住宅ローン返済額一覧の数値は、住宅ローンのお申し込みやご融資をお約束するものではございません。
物件を見たい、物件や住環境の詳しい情報やローン相談など、
お問い合わせ先
住友不動産ステップ(株)中野営業センター

掲載情報の著作権は提供元企業等に帰属します。
Copyright:(C) 2025 Recruit Co., Ltd.
アプリで簡単 物件探し 大手不動産サイトの情報から一括検!プッシュ通知で物件を見逃さない
App Storeからダウンロード Google Playで手に入れよう QRコード