アプリで簡単 物件探し 通知 共有 アプリならではの機能を使ってみる
RSS

猿島郡五霞町(茨城県)の中古一戸建て・中古住宅 物件一覧

茨城県猿島郡五霞町の中古住宅、中古一軒家などの中古一戸建て物件をご紹介します。中古物件、中古一軒家、中古建売住宅などの中古一戸建て物件情報を探すならgoo住宅・不動産。価格・建物面積・土地面積・間取り・人気のこだわり条件から物件を簡単検索。理想のマイホーム探しをgoo住宅・不動産がサポートします。

探したい物件のエリア・検索条件を変更して再検索

エリア
検索条件
5 並び替え
チェックした物件を一括で
選択 物件タイプ
画像
所在地/交通
(駅/バス 所要時間)
価格 間取り
建物面積
土地面積 築年月
築年数

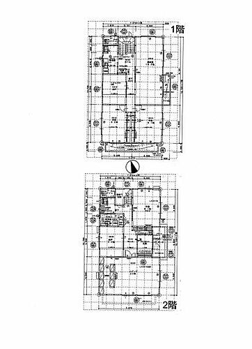
茨城県猿島郡五霞町大字元栗橋 1499万円 3LDK

  • 中古住宅
  • 茨城県猿島郡五霞町大字元栗橋 中古住宅
    間取り図
茨城県猿島郡五霞町大字元栗橋
東武日光線 幸手駅 徒歩33分
1499
万円
3LDK
89.42m2
101.14m2 1995年12月(築30年3ヶ月)
  • 2階建て
  • 南道路
  • 駐車場あり
  • 所有権
  • リフォームリノベーション
おすすめポイント
☆お問い合わせ☆・「見学予約する」「資料請求する」からのお問い合わせは24時間受付中!・ネットに掲載していない物件もご紹介できます!・お気軽にお問い合わせください!☆現地ご案内について☆・平日や夜の時間帯のご案内も可能!・ご自宅や最寄り駅など、ご指定の場所まで送迎します!☆個別相談会☆・住宅ローン・資金のご相談をしたい方も大歓迎◎・他社様で住宅ローンが難しいと言われた方!・転職後で審査に不安がある方!・お借入れがある方(車/カード/キャッシング/リボ)等不動産のプロ『株式会社MINATO』が後悔のないマイホーム選びの為に全力でお家探しをサポートさせて頂きます!

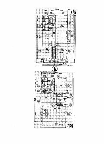
茨城県猿島郡五霞町大字元栗橋 1499万円 3LDK

  • 中古住宅
  • 茨城県猿島郡五霞町大字元栗橋 中古住宅
    間取り図
茨城県猿島郡五霞町大字元栗橋
東武日光線「幸手」2.7Km
1499
万円
3LDK
89.42m2
101.14m2 1995年12月(築30年3ヶ月)
  • 2階建て
  • 南道路
  • 所有権
  • リフォームリノベーション
おすすめポイント
◎リフォーム済みでいつでもご案内OK!◎生まれ変わった住宅を現地でご体感ください♪五霞町インター、道の駅も近くてお出かけ便利エリア♪権現堂も徒歩7分!有名な桜スポットです!!ご家族暮らしでも、単身で広々利用でもピッタリな物件♪詳細は↓↓はなまるハウス加須営業所へ各種問い合わせボタン or 無料通話『0120-25-5870』◆ご見学について◆毎日、ご見学できます♪事前に日程調整や鍵の手配等、必要な場合があります。お早めにご連絡をいただけると、お待たせすることなくスムーズにご案内できます。『0120-25-5870』または『見学予約ボタン』よりご予約下さい♪

茨城県猿島郡五霞町大字元栗橋 1499万円 4LDK

  • 中古住宅
  • 茨城県猿島郡五霞町大字元栗橋 中古住宅
    間取り図
茨城県猿島郡五霞町大字元栗橋
東武日光線「幸手」2.7Km
1499
万円
4LDK
94.6m2
174.06m2 2005年3月(築21年)
  • 2階建て
  • 南道路
  • 駐車場あり
  • 駐車3台
  • 設計住宅性能評価付
  • システムキッチン
  • 所有権
おすすめポイント
*----------------------*▼おすすめポイント・耐震等級3で最高等級を取得♪・前面道路が6mでラクラク駐車♪・日当たり良好!明るいお部屋・閑静な住宅街で安心▼周辺環境・五霞小学校(約3100m)・五霞中学校(約3100m)・ミニストップ 五霞原宿台店(約800m)・ベルク 幸手北店(約1600m)*---------------------*▼本日ご見学可能「今から見たい!」「お一人でも安心」お気軽にお問い合わせ♪住宅ローンのご相談も随時お任せください!

茨城県猿島郡五霞町大字元栗橋 1499万円 4LDK

  • 中古住宅
  • 茨城県猿島郡五霞町大字元栗橋 中古住宅
    間取り図
茨城県猿島郡五霞町大字元栗橋
東武鉄道日光線 幸手駅 徒歩33分
1499
万円
4LDK
94.6m2
174.06m2 2005年3月(築21年)
  • 2階建て
  • 南道路
  • 所有権
  • リフォームリノベーション
おすすめポイント
陽だまりの広々4LDKの住まいは飯田産業施工の安心住宅◎24時間換気システム付きでトイレ2ヶ所+L字型キッチン♪屋根・外壁塗装済×車5台駐車OK!整備された私道に15m接道の好環境でゆとりある住まいを

茨城県猿島郡五霞町大字小手指 1880万円 5LDK

  • 中古住宅
  • 茨城県猿島郡五霞町大字小手指 中古住宅
    間取り図
茨城県猿島郡五霞町大字小手指
東武鉄道日光線 南栗橋駅 徒歩38分
1880
万円
5LDK
181.77m2
564.51m2 2016年11月(築9年4ヶ月)
  • 2階建て
  • 駐車場あり
  • 所有権
チェックした物件を一括で
  • チェックした物件をまとめて
5
表示件数

申し訳ございません。条件にあう物件が少なかったため
以下は「結城郡八千代町と猿島郡境町」の物件情報を表示しています。

結城郡八千代町と猿島郡境町の中古住宅・中古一戸建て 物件一覧

結城郡八千代町と猿島郡境町の物件一覧画面へのリンク
チェックした物件を一括で
選択 物件タイプ
画像
所在地/交通
(駅/バス 所要時間)
価格 間取り
建物面積
土地面積 築年月
築年数

茨城県猿島郡境町新吉町 1698万円 5LDK

  • 中古住宅
  • 茨城県猿島郡境町新吉町 中古住宅
    間取り図
茨城県猿島郡境町新吉町
東武日光線 幸手駅 11000m
1698
万円
5LDK
143.56m2
793.38m2 1979年6月(築46年9ヶ月)
  • 2階建て
  • 南道路
  • 駐車場あり
  • システムキッチン
  • 所有権
  • 即入居可
  • リフォームリノベーション
おすすめポイント
◇大きな敷地に大きな戸建て♪ゆとりの生活をお楽しみください♪◇大型5LDKのリフォーム済み♪◇まずはお気軽にお問い合わせください♪

茨城県猿島郡境町大字下砂井 1480万円 8DK

  • 中古住宅
  • 茨城県猿島郡境町大字下砂井 中古住宅
茨城県猿島郡境町大字下砂井
東武日光線 南栗橋駅 徒歩8.0km
1480
万円
8DK
182.14m2
1117.97m2 1971年4月(築54年11ヶ月)
  • 2階建て
  • 駐車場あり
  • 駐車3台
  • システムキッチン
  • 所有権
おすすめポイント
◆まずはお気軽にお問い合わせください!・弊社は不動産、家造りにおいてのトータルサポートを行っております。・住宅ローンに強く、お客様一人ひとりにあったご提案をさせていただきます。・スタッフ一同、誠心誠意ご対応させていただきます!◆経験知識が豊富なスタッフが在籍!迅速な対応を心掛けております。・お問合せを受けてから即日ご対応をさせていただきます。・その他物件情報も多数ございます!お気軽にお問い合わせください。

茨城県猿島郡境町松岡町 348万円 4DK

  • 中古住宅
  • 茨城県猿島郡境町松岡町 中古住宅
    間取り図
茨城県猿島郡境町松岡町
JR宇都宮線「栗橋」10.5Km
348
万円
4DK
72.62m2
111.42m2 1978年10月(築47年5ヶ月)
  • 2階建て
  • 所有権
  • 即入居可
おすすめポイント
※司法書士・ガス会社は売主指定※境界非明示※私道持分あり

茨城県猿島郡境町大字猿山 498万円 8DK

  • 中古住宅
  • 茨城県猿島郡境町大字猿山 中古住宅
    間取り図
茨城県猿島郡境町大字猿山
JR宇都宮線「栗橋」13.5Km
498
万円
8DK
155.28m2
1513.41m2 1971年12月(築54年3ヶ月)
  • 平屋
  • 所有権
  • 即入居可
おすすめポイント
※司法書士・ガス会社は売主指定※境界非明示※未登記の付属建物あり※線引き前宅地のため再建築可能(事前相談要)

茨城県猿島郡境町大字下砂井 900万円 9DK

  • 中古住宅
  • 茨城県猿島郡境町大字下砂井 中古住宅
茨城県猿島郡境町大字下砂井
東武日光線「南栗橋」13.6Km
900
万円
9DK
182.14m2
1117.97m2 1971年4月(築54年11ヶ月)
  • 2階建て
  • 駐車場あり
  • 駐車3台
  • 所有権
おすすめポイント
敷地面積338坪!9DK◆家庭菜園も可能◆間取りが9DKでゆとりのあるお家です◆日当たり良好で明るいお家◆駐車場スペースあり◆敷地が広く、使い方の幅が広がります【周辺環境】ファミリーマート境猿山店まで 1281m◆コスモ石油境バイパスまで   1632m◆境町立長田小学校まで    1265m◆境山﨑郵便局まで       1732m

茨城県結城郡八千代町大字松本 1498万円 10DK

  • 中古住宅
  • 茨城県結城郡八千代町大字松本 中古住宅
    間取り図
茨城県結城郡八千代町大字松本
関東鉄道常総線「下妻」9.6Km
1498
万円
10DK
252.99m2
359.77m2 1980年12月(築45年3ヶ月)
  • 3階建て以上
  • 南道路
  • 駐車場あり
  • 駐車3台
  • 所有権
おすすめポイント
「お家探し」「ご売却」は地域密着型不動産  県西地区に強い『ひたちホーム株式会社』におまかせ下さい!お客様にお会いできること、スタッフ一同、心よりお待ちしております♪

茨城県猿島郡境町大字志鳥 2200万円 7LDK

  • 中古住宅
  • 茨城県猿島郡境町大字志鳥 中古住宅
茨城県猿島郡境町大字志鳥
湘南新宿ライン宇須「古河」11.3Km
2200
万円
7LDK
182.11m2
2480.51m2 1996年4月(築29年11ヶ月)
  • 2階建て
  • 南道路
  • 駐車場あり
  • 駐車3台
  • 所有権
おすすめポイント
広々とした延床面積182.11㎡の居室空間、更に何も置かなくても心のゆとりになる庭がある暮らしが叶います。また閑静な住宅街の住戸で、その上奥行き(出幅)を一般的なバルコニーより広めにとったワイドバルコニー付なので、洗濯物が多い日でもバッチリです。ちなみに家族それぞれのマイカー生活を支える駐車場3台分付です。家族みんなのワガママにも応える7LDK。是非その目でお確かめください。

茨城県結城郡八千代町大字菅谷 2500万円 4LDK

  • 中古住宅
  • 茨城県結城郡八千代町大字菅谷 中古住宅
    間取り図
茨城県結城郡八千代町大字菅谷
関東鉄道常総線「下妻」7.2Km
2500
万円
4LDK
99.37m2
274.1m2 2022年11月(築3年4ヶ月)
  • 平屋
  • 南道路
  • 駐車場あり
  • システムキッチン
  • 所有権
  • 即入居可
おすすめポイント
◆おすすめポイント◆・約21.2帖のLDK!勾配天井の為、開放的な空間!・シャッターやアクセントクロス等オプション多数!・築2年未満の築浅平屋戸建・カースペース4台駐車可能・ウォークスルークロークなど収納充実◆周辺環境◆・八千代町立中結城小学校  徒歩約17分・八千代第一中学校     徒歩約22分・カスミ 八千代店     徒歩約 4分・ドラッグストア クラモチ 徒歩約 4分・セブンイレブン      徒歩約 5分

茨城県結城郡八千代町大字塩本 380万円 2DK

  • 中古住宅
  • 茨城県結城郡八千代町大字塩本 中古住宅
    間取り図
茨城県結城郡八千代町大字塩本
関東鉄道常総線「下妻」11.8Km
380
万円
2DK
42.14m2
273.82m2 1946年1月(築80年2ヶ月)
  • 平屋
  • 所有権
おすすめポイント
≪≪お家選びで失敗したくない,損したくない≫≫ 私たちSumikaは、【お客様に素敵な未来の形】をご提供致します! 『親切・丁寧・安心』がモットーです(^^♪≪≪Sumikaの強み≫≫◇業界歴10年以上、不動産のプロスタッフによる安心対応(^_-)-☆◇親身な接客に自信あり! Google評価をぜひご覧ください(^^)/ ◇周辺物件の一括資料請求!窓口ひとつで手間いらず♪◆ローンのおまとめ相談は【Sumika 0296-49-6020】まで♪◇◇ 損しない、楽しいおうち探しをSumikaで始めてみませんか? ◇◇

茨城県結城郡八千代町大字東原 1490万円 3DK

  • 中古住宅
  • 茨城県結城郡八千代町大字東原 中古住宅
    間取り図
茨城県結城郡八千代町大字東原
関東鉄道常総線「下妻」7.2Km
1490
万円
3DK
76.34m2
321.47m2 1985年4月(築40年11ヶ月)
  • 平屋
  • 駐車場あり
  • 駐車3台
  • システムキッチン
  • 所有権
  • 即入居可
おすすめポイント
土地321.47㎡(約97坪)のゆとりある敷地に建つ、平家3DKの住宅です!階段のない平家建てのため生活動線がシンプルで、長く安心してお住まいいただけます♪駐車は3台以上可能で、ご家族用・来客用としても十分なスペースを確保!市街化区域内に位置しており、将来的な建替えや土地活用も検討しやすい点が魅力です。建物は現況のまま利用可能なため、購入後すぐに新生活を始めたい方にもオススメ♪居住用はもちろん、セカンドハウスや事業兼住宅としての利用も可能です。弊社の売主物件につき、スムーズなご案内が可能です。リフォームや将来の住まい方についても、お気軽にご相談ください。

茨城県猿島郡境町大字志鳥 2200万円 7DK

  • 中古住宅
  • 茨城県猿島郡境町大字志鳥 中古住宅
茨城県猿島郡境町大字志鳥
東武日光線「南栗橋」11Km
2200
万円
7DK
182.11m2
2480.51m2 1996年4月(築29年11ヶ月)
  • 2階建て
  • 南道路
  • 駐車場あり
  • 駐車3台
  • 所有権
おすすめポイント
≪≪お家選びで失敗したくない,損したくない≫≫ 私たちSumikaは、【お客様に素敵な未来の形】をご提供致します! 『親切・丁寧・安心』がモットーです(^^♪≪≪Sumikaの強み≫≫◇業界歴10年以上、不動産のプロスタッフによる安心対応(^_-)-☆◇親身な接客に自信あり! Google評価をぜひご覧ください(^^)/ ◇周辺物件の一括資料請求!窓口ひとつで手間いらず♪◆ローンのおまとめ相談は【Sumika 0296-49-6020】まで♪◇◇ 損しない、楽しいおうち探しをSumikaで始めてみませんか? ◇◇

茨城県猿島郡境町大字一ノ谷 2600万円 2SDK

  • 中古住宅
  • 茨城県猿島郡境町大字一ノ谷 中古住宅
    間取り図
茨城県猿島郡境町大字一ノ谷
東武日光線「幸手」14.1Km
2600
万円
2SDK
85.86m2
242.23m2 2020年12月(築5年3ヶ月)
  • 平屋
  • 駐車場あり
  • 駐車2台
  • システムキッチン
  • 所有権
  • 即入居可
おすすめポイント
2LDK+2S(納戸)薪ストーブ付きのオシャレな平屋住宅です内覧できますのでお気軽にご連絡下さい◇立地◇・東武日光線「幸手駅」→14.1km・森戸小学校→1.4km・第二中学校→2.1km・カスミ(スーパー)→3.3km・ドンキホーテ(スーパー)→3.2km・ローソン(コンビニ)→1.3km◆(株)エコスホーム TEL:0280-23-5408◆資料請求等お気軽にご連絡下さい♪

茨城県猿島郡境町大字一ノ谷 2600万円 3SLDK

  • 中古住宅
  • 茨城県猿島郡境町大字一ノ谷 中古住宅
    間取り図
茨城県猿島郡境町大字一ノ谷
東武日光線「幸手」13.5Km
2600
万円
3SLDK
104.23m2
242.23m2 2020年12月(築5年3ヶ月)
  • 平屋
  • システムキッチン
  • 所有権
おすすめポイント
≪≪お家選びで失敗したくない,損したくない≫≫ 私たちSumikaは、【お客様に素敵な未来の形】をご提供致します! 『親切・丁寧・安心』がモットーです(^^♪≪≪Sumikaの強み≫≫◇業界歴10年以上、不動産のプロスタッフによる安心対応(^_-)-☆◇親身な接客に自信あり! Google評価をぜひご覧ください(^^)/ ◇周辺物件の一括資料請求!窓口ひとつで手間いらず♪◆ローンのおまとめ相談は【0296-49-6020】まで♪◇◇ 損しない、楽しいおうち探しをSumikaで始めてみませんか? ◇◇

茨城県猿島郡境町新吉町 1698万円 4SLDK

  • 中古住宅
  • 茨城県猿島郡境町新吉町 中古住宅
    間取り図
茨城県猿島郡境町新吉町
東武日光線 南栗橋駅 徒歩8.0km
東武日光線 幸手駅 徒歩8.0km
東武日光線 杉戸高野台駅 徒歩8.0km
1698
万円
4SLDK
143.56m2
798.38m2 1979年6月(築46年9ヶ月)
  • 2階建て
  • 南道路
  • 駐車場あり
  • 駐車3台
  • システムキッチン
  • 所有権
  • 即入居可
  • リフォームリノベーション
おすすめポイント
駐車3台以上可、即引渡可、土地100坪以上、スーパー 徒歩10分以内、内装リフォーム、システムキッチン、陽当り良好、前道6m以上、和室、庭10坪以上、庭、家庭菜園、シャワー付洗面化粧台、トイレ2ヶ所、浴室1坪以上、2階建、南面バルコニー、オートバス、温水洗浄便座、南庭、浴室に窓、TVモニタ付インターホン、通風良好、花火大会鑑賞

茨城県猿島郡境町大字上小橋 4000万円 4LDK

  • 中古住宅
  • 茨城県猿島郡境町大字上小橋 中古住宅
茨城県猿島郡境町大字上小橋
東武日光線 南栗橋駅 徒歩8.0km
東武日光線 幸手駅 徒歩8.0km
東武日光線 杉戸高野台駅 徒歩8.0km
4000
万円
4LDK
118.4m2
275.72m2 2023年1月(築3年2ヶ月)
  • 2階建て
  • 南道路
  • 駐車場あり
  • 駐車2台
  • システムキッチン
  • 所有権
おすすめポイント
◆周辺環境◆・境町立境小学校 徒歩13分・境町立境第一中学校 徒歩15分・カスミフードスクエア 境店 徒歩5分◆不動産の事ならトレース不動産へお任せください◆新築・中古住宅の購入、注文住宅のご提案、土地・建物の売却等幅広く活動しております!不動産経験10年以上の経験豊富なスタッフが常駐しております!誠実・信頼のできるご提案、接客を心掛けております!下記関連リンクから弊社HPをチェック!インスタグラムで不動産情報を日々発信中!お気軽にお問い合せください。

茨城県猿島郡境町新吉町 1698万円 4LDK

  • 中古住宅
  • 茨城県猿島郡境町新吉町 中古住宅
    間取り図
茨城県猿島郡境町新吉町
東武鉄道日光線 幸手駅 徒歩11.0km
1698
万円
4LDK
143.56m2
793.38m2 1976年6月(築49年9ヶ月)
  • 2階建て
  • 南道路
  • 駐車場あり
  • 駐車3台
  • システムキッチン
  • 所有権
  • 即入居可
  • リフォームリノベーション
おすすめポイント
内装リフォーム済、4LDK再生住宅です!敷地239坪、駐車4台以上可能。3坪の物置も付属しています。

茨城県結城郡八千代町大字平塚 680万円 3DK

  • 中古住宅
  • 茨城県結城郡八千代町大字平塚 中古住宅
    間取り図
茨城県結城郡八千代町大字平塚
関東鉄道常総線 下妻駅 徒歩10.8km
680
万円
3DK
59.61m2
361.88m2 1992年6月(築33年9ヶ月)
  • 2階建て
  • 南道路
  • システムキッチン
  • 所有権
  • 即入居可
  • リフォームリノベーション
チェックした物件を一括で

条件を選択

価格
間取り
建物面積
土地面積
築年数
駅からの時間
人気のこだわり条件

さらに詳しくこだわり条件を選択

建物構造
階数
立地・特徴
キッチン
設備
駐車場
条件
性能・評価
瑕疵保険
お得な条件
画像・動画
情報の新しさ
フリーワード

価格相場

更新日:2026年02月09日

猿島郡五霞町の価格相場

  ワンルーム 1K・1DK 1LDK・2K・2DK 2LDK・3K・3DK 3LDK・4K・4DK
中古一戸建て - - - - -

周辺エリアの価格相場

  古河市 猿島郡境町 久喜市 幸手市 北葛飾郡杉戸町
中古一戸建て - - - - -
※このデータはgoo住宅・不動産に掲載されている中古一戸建ての平均価格(管理費・駐車場代などを除く)を算出したものです。ただし5戸以上の掲載があるものについてのみ対象とします。
※周辺エリアの価格相場はワンルームの平均価格(管理費・駐車場代などを除く)を算出したものです。

茨城県の人気の街アクセスランキング(中古一戸建て)

※このランキングは2026年01月01日~31日における各ページのアクセス数から算出しています。

他のエリアから探す

猿島郡五霞町の詳細地域から一戸建て物件を探す

大字小手指大字元栗橋

特集から探す

300万円以下500万円以下1,000万円以下1,500万円以下2,000万円以下3,000万円以下4,000万円以下5,000万円以下間取り図あり駅近・駅10分以内売主・代理第1種低層地域即入居可能駐車場2台分以上リフォーム・リノベーション済

茨城県猿島郡五霞町で他のジャンルから探す

アプリで簡単 物件探し 大手不動産サイトの情報から一括検!プッシュ通知で物件を見逃さない
App Storeからダウンロード Google Playで手に入れよう QRコード