アプリで簡単 物件探し 通知 共有 アプリならではの機能を使ってみる
RSS

西宮市大井手町の中古一戸建て・中古住宅 物件一覧

西宮市大井手町の一戸建て、中古住宅、一軒家などの一戸建て物件を簡単検索。理想の物件探しをgoo住宅・不動産がサポートします。

探したい物件のエリア・検索条件を変更して再検索

エリア
  • 近くのエリアから探す
  •     兵庫県西宮市:
  • 大井手町
検索条件

申し訳ございません。条件にあう物件が見つかりませんでした。
再度条件を設定して、検索をしてください。
以下は「老松町と大島町」の物件情報を表示しています。

老松町と大島町の中古住宅・中古一戸建て 物件一覧

老松町と大島町の物件一覧画面へのリンク
チェックした物件を一括で
選択 物件タイプ
画像
所在地/交通
(駅/バス 所要時間)
価格 間取り
建物面積
土地面積 築年月
築年数

兵庫県西宮市老松町 7,980万円 4LDK

  • 中古住宅
  • 兵庫県西宮市老松町 中古住宅
    間取り図
兵庫県西宮市老松町
阪急甲陽線 苦楽園口駅 徒歩15分
阪急神戸線 夙川駅 徒歩19分
7,980
万円
4LDK
105.7m2
149.97m2 2025年1月(築1年5ヶ月)
  • 2階建て
  • 駐車場あり
  • 駐車3台
  • 所有権
おすすめポイント
-物件のおすすめポイント-▼立地・阪急甲陽線「苦楽園口」徒歩15分 他▼特徴・ご家族が集うLDは上部吹抜け仕様・お料理中も会話が楽しめる対面式キッチン・コミュニケーションを育むリビング階段・キッチンと洗面室が近く、家事動線良好・玄関近くの和室は2WAY、多用途に活用可・WIC等、各洋室・和室に収納を設置・植栽やガーデニングが楽しめる、南東向きのお庭付▼周辺環境・コープ苦楽園 徒歩6分(約460m)・セブンイレブン西宮北夙川通り店 徒歩2分(約125m)■ ご希望の住まい探しをお手伝いします ━━━━━・・・物件の詳細・ご相談はお気軽にお問い合わせください。

兵庫県西宮市老松町 1,500万円 3DK

  • 中古住宅
  • 兵庫県西宮市老松町 中古住宅
兵庫県西宮市老松町
阪急甲陽線 苦楽園口駅 徒歩16分
JR東海道本線 芦屋駅 徒歩29分
阪急神戸線 夙川駅 徒歩19分
1,500
万円
3DK
69.18m2
67.56m2 1970年1月(築56年5ヶ月)
  • 2階建て
  • 都市ガス
  • 駐車場あり
  • 所有権
おすすめポイント
阪急甲陽園「苦楽園口」徒歩約16分、落ち着いた住環境が魅力の西宮老松町に建つ3DK戸建。周辺は閑静な住宅街で、子育て世帯にも人気のエリア。カーポートもある為、雨天時でも移動がスムーズに行えます。各居室にゆとりを確保した使いやすい間取りで、ご家族それぞれのプライベート空間も大切にできます。静かな住環境と利便性を兼ね備えた立地で、初めてのマイホーム用にもご検討いただけます。※連棟式住宅となります。※ご質問があれば、担当までお問い合わせください。※現況空室、内覧希望の際はお気軽にお問い合わせください。

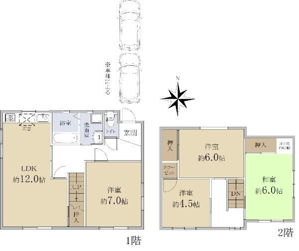
兵庫県西宮市老松町 2,900万円 4LDK

  • 中古住宅
  • 兵庫県西宮市老松町 中古住宅
    間取り図
兵庫県西宮市老松町
阪急甲陽線 苦楽園口駅 徒歩18分
阪急神戸線 夙川駅 徒歩22分
2,900
万円
4LDK
83.43m2
92.89m2 1977年5月(築49年1ヶ月)
  • 2階建て
  • 都市ガス
  • システムキッチン
  • 浴室乾燥機
  • 所有権
  • リフォームリノベーション
おすすめポイント
【交通】●阪急「苦楽園口駅」徒歩18分●阪急「夙川駅」徒歩22分【ポイント】◇4LDK◇LDK約12.0帖◇北側前面公道幅員:約5.9m◇カースペースあり(車種による)◇室内丁寧にお使いです◇耐震基準適合証明書あり【リフォーム履歴】~2014年2月~ ◆システムキッチン交換 ◆洗面台交換 ◆浴室ユニットバス入替 ◆壁・天井クロス貼替(LDK)◆フローリング貼替(LDK・1階廊下・2階洋室)◆畳入替(和室)◆トイレ温水洗浄便座導入 ◆CF貼替(浴室・トイレ)

兵庫県西宮市老松町 1,500万円 3DK

  • 中古住宅
  • 兵庫県西宮市老松町 中古住宅
兵庫県西宮市老松町
阪急電鉄甲陽線 苦楽園口駅 徒歩16分
東海道本線 芦屋駅 徒歩29分
1,500
万円
3DK
69.18m2
67.56m2 1970年1月(築56年5ヶ月)
  • 2階建て
  • 都市ガス
  • 駐車場あり
  • 所有権
おすすめポイント
★閑静な住宅街で落ち着いた暮らし ★駐車スペース有 (車種による制限有)★西宮×人気の苦楽園エリア ★阪急甲陽園「苦楽園口」駅徒歩約16分
チェックした物件を一括で

条件を選択

価格
間取り
建物面積
土地面積
築年数
駅からの時間
人気のこだわり条件

さらに詳しくこだわり条件を選択

建物構造
階数
立地・特徴
キッチン
設備
駐車場
条件
性能・評価
瑕疵保険
お得な条件
画像・動画
情報の新しさ
フリーワード

西宮市の暮らしデータ

人口などの統計情報

世帯数 215454世帯
人口総数 480818人
転入者数 20404人
転入率(人口1000人当たり)
42.44人
転出者数 20392人
転出率(人口1000人当たり)
42.41人
土地平均価格
住宅地
277734円/m2
商業地
571500円/m2

結婚・育児の助成金

子育て関連の独自の取り組み (1)父子手帳(父親の育児参加促進のため、妊娠中のパートナーへの配慮のほか、赤ちゃんのあやし方やお風呂の入れ方等、イラストを交えて紹介した育児マニュアルを発行。母子健康手帳交付時に一体的に配布)。
出産祝い なし
公立保育所数 22所(うち0歳児保育を実施している保育所:19所)
私立保育所数 29所(うち0歳児保育を実施している保育所:28所)
保育所入所待機児童数 76人
認定こども園数 43園 預かり保育実施園数 公立:3園 私立:30園
学校給食 【小学校】完全給食【中学校】完全給食
公立中学校の学校選択制 一部実施(通学区域特認校制度を実施)
子ども・学生等医療費助成<通院>対象年齢 18歳3月末まで 子ども・学生等医療費助成<入院>対象年齢 18歳3月末まで

西宮市の治安・ごみ収集情報

公共料金・インフラ

ガス料金(22m3使用した場合の月額) 大阪瓦斯株式会社4544円
水道料金(口径20mmで20m3の月額) 西宮市2909円
下水道料金(20m3を使用した場合の月額) 西宮市1777円
下水道普及率 99.9%

安心・安全

建物火災出火件数 51件
人口10000人当たり
1.05件
刑法犯認知件数 3110件
人口1000人当たり
6.40件
ハザード・防災マップ あり

医療

一般病院総数 23ヶ所
一般診療所総数 552ヶ所
小児科医師数 126人
小児人口10000人当たり
20.73人
産婦人科医師数 48人
15~49歳女性人口1万人当たり
4.87人
介護保険料基準額(月額) 6400円

ごみ

家庭ごみ収集(可燃ごみ) 無料
備考
単純指定袋制。袋代にごみ収集・処理料金等を含まず。
家庭ごみの分別方式 6分別12種〔もやすごみ もやさないごみ 資源A(新聞、ダンボール、紙パック、古着) 資源B(雑誌、古本、チラシ、紙箱) ペットボトル その他プラ〕 拠点回収:使用済小型家電令和8年1月より一部地域で先行して分別区分を変更し、同年4月より市内全域で分別区分を変更。変更後の分別区分 6分別14種〔もやすごみ その他不燃ごみ 缶・ペットボトル びん 資源(新聞、ダンボール、紙パック、古着、雑誌、古本、チラシ、紙箱) プラスチック資源〕 拠点回収:使用済小型家電
家庭ごみの戸別収集 一部実施(【にこやか収集】要件を満たす障がい者、高齢者、要介護者が対象)
粗大ごみ収集 あり
備考
有料。事前申込制。300~3,600円/点。
生ごみ処理機助成金制度 なし
上限金額
-
上限比率
-

西宮市の住まいの給付金

中古購入

利子補給制度 なし
補助/助成金制度 なし

増築・改築・改修

利子補給制度 なし
補助/助成金制度 あり
上限金額
(1)10万円(2)100万円(3)30万円
備考
(1)【住宅リフォーム助成事業】市内施工業者によるリフォーム工事費用を一部助成。費用の10%、上限10万円。(2)【住宅耐震改修促進事業】1981年以前着工の住宅の耐震化に補助。(3)【人生いきいき住宅改造助成事業】バリアフリー改修工事費用の一部を補助。※すべてその他要件あり。
暮らしデータ提供元:生活ガイド.com
※行政機関により公表していない地域及びデータがございます。東京23区以外の政令指定都市は、市全体のデータとして表示しています。
※提供データには細心の注意を払っておりますが、調査後に変更がある場合があります。 最新の情報につきましては各市区役所までお問い合わせいただくか、自治体HPなどをご確認ください。

価格相場

西宮市の価格相場

  ワンルーム 1K・1DK 1LDK・2K・2DK 2LDK・3K・3DK 3LDK・4K・4DK
中古一戸建て - - 4,462万円 3,897万円 4,291万円

周辺エリアの価格相場

  神戸市東灘区 尼崎市 芦屋市 伊丹市 宝塚市
中古一戸建て 5,113万円 2,776万円 8,526万円 2,786万円 2,789万円
※このデータはgoo住宅・不動産に掲載されている中古一戸建ての平均価格(管理費・駐車場代などを除く)を算出したものです。ただし5戸以上の掲載があるものについてのみ対象とします。
※周辺エリアの価格相場は2LDK・3K・3DKの平均価格(管理費・駐車場代などを除く)を算出したものです。

兵庫県の人気の街アクセスランキング(中古一戸建て)

※このランキングは2026年04月01日~30日における各ページのアクセス数から算出しています。

他のエリアから探す

近辺の市区から探す

大阪市福島区大阪市此花区大阪市西淀川区豊中市池田市神戸市東灘区神戸市灘区尼崎市芦屋市伊丹市宝塚市川西市

特集から探す

300万円以下500万円以下1,000万円以下1,500万円以下2,000万円以下3,000万円以下4,000万円以下5,000万円以下間取り図あり駅近・駅10分以内売主・代理第1種低層地域即入居可能駐車場2台分以上リフォーム・リノベーション済

西宮市大井手町で他のジャンルから探す

アプリで簡単 物件探し 大手不動産サイトの情報から一括検!プッシュ通知で物件を見逃さない
App Storeからダウンロード Google Playで手に入れよう QRコード