アプリで簡単 物件探し 通知 共有 アプリならではの機能を使ってみる
RSS

松本駅(長野県)の土地(宅地・分譲地・売地) 物件一覧

松本駅(長野県)の土地、分譲地、売地、宅地などの土地物件をご紹介します。売り地、分譲土地、住宅用土地などの土地情報を探すならgoo住宅・不動産。価格・土地面積・建築条件・立地・人気のこだわり条件から物件を簡単検索。理想の物件探しをgoo住宅・不動産がサポートします。

探したい物件の路線・検索条件を変更して再検索

路線
検索条件
28 並び替え
チェックした物件を一括で
選択 物件タイプ
画像
所在地/交通
(駅/バス 所要時間)
価格
坪単価
土地面積 用途地域
建築条件
建ぺい率
容積率
new

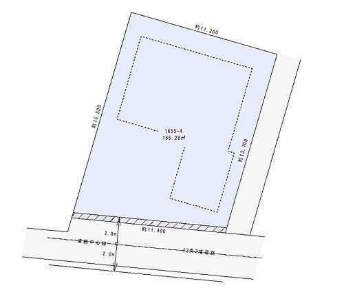
長野県松本市白板1 土地

  • 土地
  • 長野県松本市白板1 土地
    間取り図
長野県松本市白板1
JR大糸線 北松本駅 徒歩4分
JR大糸線 松本駅 徒歩10分
JR篠ノ井線 松本駅 徒歩10分
5480
万円
315.11m2 2種住居
なし
60%
200%
  • 建築条件なし
  • 都市ガス
  • 上物有り
おすすめポイント
◇土地面積:315.11㎡(95.32坪)◇前面道路:東側公道 幅員約7.7mに約18.3m接道◇現況:建物有り◇建築条件付き土地ではございません!お好きなハウスメーカー・工務店にて施工可能です。◇2駅利用可能JR大糸線『北松本』駅まで徒歩4分JR大糸線/JR篠ノ井線『松本』駅まで徒歩10分◇生活施設充実徒歩5分圏内にコンビニ、公園、小学校あり徒歩10分圏内にスーパー、ドラッグストア、郵便局、総合病院あり

長野県松本市井川城2 土地

  • 建築条件付土地
  • 長野県松本市井川城2 建築条件付土地
長野県松本市井川城2
JR篠ノ井線 南松本駅 徒歩16分
JR篠ノ井線 松本駅 徒歩22分
1680
万円
151.04m2 1種住居
あり
60%
200%
  • 更地
  • 本下水
おすすめポイント
資金計画・ローン関係もお任せ下さい。弊社ではお客様にあった資金計画のご提案からローン申し込みのお手伝いまでさせて頂きます。事前審査でいろいろな銀行を回っていただく必要がなく、弊社が窓口となります。物件ツアーでご案内いたします。ご希望条件をヒアリングさせていただき、いくつかの物件をまとめてご案内する、物件ツアーを行っております。1日で3~7件程ご案内させて頂いております。

長野県松本市井川城2 土地

  • 建築条件付土地
  • 長野県松本市井川城2 建築条件付土地
長野県松本市井川城2
JR篠ノ井線 松本駅 徒歩18分
1650
万円
161.64m2 1種住居
あり
60%
200%
  • 更地
  • 本下水
  • 都市ガス
おすすめポイント
\ここに注目/◆敷地面積48.89坪◆プライバシーを確保しやすい北側道路◆更地【周辺環境】◆セブンイレブン松本井川城店まで徒歩7分◆業務スーパー ユー・パレット松本店まで徒歩12分◆ショッピングモール「ライフスクエア COMO庄内」まで徒歩17分自由設計の注文住宅を建築できます。(ヤマダホームズ施工) 建物プラン作成いたします。【お電話が苦手な方でも、安心なネット予約可能!他プランもご提案いたします】ネット上だと不安... 「プロ目線で見る、土地選びのポイント」を現地で体感しませんか。「来場予約」または「下部のカレンダー」より、簡単にネット予約が可能です。

長野県松本市井川城2 土地

  • 建築条件付土地
  • 長野県松本市井川城2 建築条件付土地
長野県松本市井川城2
JR篠ノ井線 松本駅 徒歩18分
1780
万円
183.99m2 1種住居
あり
60%
200%
  • 更地
  • 本下水
  • 都市ガス
おすすめポイント
\ここに注目/◆敷地面積55.65坪◆プライバシーを確保しやすい北側道路◆更地【周辺環境】◆セブンイレブン松本井川城店まで徒歩7分◆業務スーパー ユー・パレット松本店まで徒歩12分◆ショッピングモール「ライフスクエア COMO庄内」まで徒歩17分自由設計の注文住宅を建築できます。(ヤマダホームズ施工) 建物プラン作成いたします。【お電話が苦手な方でも、安心なネット予約可能!他プランもご提案いたします】ネット上だと不安... 「プロ目線で見る、土地選びのポイント」を現地で体感しませんか。「来場予約」または「下部のカレンダー」より、簡単にネット予約が可能です。

長野県松本市大字里山辺 土地

  • 建築条件付土地
  • 長野県松本市大字里山辺 建築条件付土地
    間取り図
長野県松本市大字里山辺
JR大糸線 松本駅 バス24分/「辻堂(長野県)」バス停 停歩2分
1070
万円
179.29m2 1種住居
あり
60%
200%
  • 更地
  • 本下水
おすすめポイント
Point!◇徒歩圏内にコンビニ・スーパーあり!生活しやすい環境です。◇近隣に大規模分譲地が立ち並び、若い世帯が多い地域になります。 小中学校への通学もお友達と一緒で安心!Area!◇セブンイレブン松本里山辺店まで700m(徒歩9分)◇デリシア惣社店まで1300m(徒歩17分)◇里山辺郵便局まで250m(徒歩4分)◇山辺中学校まで1100m(徒歩14分)◇山辺小学校まで2300m(徒歩29分)

長野県松本市大字里山辺 土地

  • 建築条件付土地
  • 長野県松本市大字里山辺 建築条件付土地
    間取り図
長野県松本市大字里山辺
JR大糸線 松本駅 バス24分/「辻堂(長野県)」バス停 停歩2分
1125
万円
185.8m2 1種住居
あり
60%
200%
  • 更地
  • 本下水
おすすめポイント
Point!◇徒歩圏内にコンビニ・スーパーあり!生活しやすい環境です。◇近隣に大規模分譲地が立ち並び、若い世帯が多い地域になります。 小中学校への通学もお友達と一緒で安心!Area!◇セブンイレブン松本里山辺店まで700m(徒歩9分)◇デリシア惣社店まで1300m(徒歩17分)◇里山辺郵便局まで250m(徒歩4分)◇山辺中学校まで1100m(徒歩14分)◇山辺小学校まで2300m(徒歩29分)

長野県松本市大字里山辺 土地

  • 建築条件付土地
  • 長野県松本市大字里山辺 建築条件付土地
    間取り図
長野県松本市大字里山辺
JR大糸線 松本駅 バス24分/「辻堂(長野県)」バス停 停歩2分
1150
万円
183.12m2 1種住居
あり
60%
200%
  • 更地
  • 本下水
おすすめポイント
Point!◇徒歩圏内にコンビニ・スーパーあり!生活しやすい環境です。◇近隣に大規模分譲地が立ち並び、若い世帯が多い地域になります。 小中学校への通学もお友達と一緒で安心!Area!◇セブンイレブン松本里山辺店まで700m(徒歩9分)◇デリシア惣社店まで1300m(徒歩17分)◇里山辺郵便局まで250m(徒歩4分)◇山辺中学校まで1100m(徒歩14分)◇山辺小学校まで2300m(徒歩29分)

長野県松本市大字惣社 土地

  • 建築条件付土地
  • 長野県松本市大字惣社 建築条件付土地
    間取り図
長野県松本市大字惣社
JR大糸線 松本駅 徒歩3.2km
1417
万円
183.74m2 1種中高
あり
60%
200%
  • 更地
  • 本下水
おすすめポイント
◇デリシア・コンビニが近くて便利!◇子どもを安心して通わせられる学校の近さが魅力!Area!◇デリシア惣社店まで160m(徒歩2分)◇セブンイレブン松本里山辺店まで520m(徒歩7分)◇清水小学校まで710m(徒歩9分)◇清水中学校まで850m(徒歩11分)※宅地延長道路 52.34㎡あります。

長野県松本市大字惣社 土地

  • 建築条件付土地
  • 長野県松本市大字惣社 建築条件付土地
    間取り図
長野県松本市大字惣社
JR大糸線 松本駅 徒歩3.2km
1470
万円
202.53m2 1種中高
あり
60%
200%
  • 更地
  • 本下水
おすすめポイント
◇デリシア・コンビニが近くて便利!◇子どもを安心して通わせられる学校の近さが魅力!Area!◇デリシア惣社店まで160m(徒歩2分)◇セブンイレブン松本里山辺店まで520m(徒歩7分)◇清水小学校まで710m(徒歩9分)◇清水中学校まで850m(徒歩11分)※宅地延長道路 40.20㎡あります。

長野県松本市渚4 土地

  • 土地
  • 長野県松本市渚4 土地
    間取り図
長野県松本市渚4
松本電気鉄道 渚駅 徒歩9分
JR篠ノ井線 松本駅 徒歩20分
1550
万円
244.42m2 準工業
なし
60%
200%
  • 建築条件なし
  • 更地
  • 本下水
おすすめポイント
・建築条件なしのため、お好きなハウスメーカーで建築可能・公営水道・公共下水いずれも引込済・アルピコ交通上高地線「渚」駅まで徒歩9分(約700m)で、通勤、通学がしやすい立地です。・総区画数2区画(販売中区画数1区画)

長野県松本市庄内1 土地

  • 土地
  • 長野県松本市庄内1 土地
    間取り図
長野県松本市庄内1
JR大糸線 松本駅 徒歩13分
2420
万円
267.5m2 1種住居
なし
60%
160%
  • 建築条件なし
  • 更地

長野県松本市開智2 土地

  • 建築条件付土地
  • 長野県松本市開智2 建築条件付土地
    間取り図
長野県松本市開智2
JR大糸線 北松本駅 徒歩16分
JR大糸線 松本駅 徒歩22分
1932.3
万円
182.54m2 1種住居
あり
60%
200%
  • 更地
  • 本下水
  • 都市ガス
おすすめポイント
◆開智小学校・中央図書館・松本城すぐ近く○東邦建工(株)の建築条件付○開智小学校まで徒歩約2分と、子育て世帯にも安心の立地○イオンモール松本などの商業施設も利用しやすく、日々の生活にも便利○都市ガスエリアで設備も整っています■ 周辺環境 ━━━━━…‥・◯セブンイレブン松本北深志店(約500m)◯西友元町店(約1.3km)◯松本市中央図書館(約540m)◯開智公園(約400m)◯聖テレジア幼稚園(約270m)◯城西病院(約830m)◯開智小学校(約90m)◯旭町中学校(約2.4km)

長野県松本市沢村1 土地

  • 土地
  • 長野県松本市沢村1 土地
    間取り図
長野県松本市沢村1
JR大糸線 松本駅 徒歩27分
1100
万円
232.26m2 1種中高
なし
60%
184%
  • 建築条件なし
  • 更地
  • 本下水
おすすめポイント
閑静な住宅地です!

長野県松本市大字里山辺 土地

  • 土地
  • 長野県松本市大字里山辺 土地
    間取り図
長野県松本市大字里山辺
JR篠ノ井線 松本駅 バス26分/「辻堂」バス停 停歩5分
1530
万円
216.3m2 1種住居
なし
60%
188%
  • 建築条件なし
  • 更地
  • 南道路
  • 本下水
  • 角地
おすすめポイント
・公営水道、公共下水宅内引込済

長野県松本市旭2 土地

  • 土地
  • 長野県松本市旭2 土地
    間取り図
長野県松本市旭2
JR大糸線 北松本駅 徒歩32分
JR篠ノ井線 松本駅 徒歩35分
2200
万円
243.16m2 1種中高
なし
60%
164%
  • 建築条件なし
  • 更地
  • 本下水
  • 都市ガス
おすすめポイント
【周辺施設】・セブンイレブン松本旭1丁目店まで徒歩6分(約450m)・デリシア元町店まで徒歩11分(約850m)・松本北深志郵便局まで徒歩10分(約750m)・信州大学医学部附属病院まで徒歩11分(約850m)・松本いずみ幼稚園まで徒歩11分(約850m)

長野県松本市大字大村 土地

  • 土地
  • 長野県松本市大字大村 土地
    間取り図
長野県松本市大字大村
JR大糸線 松本駅 徒歩3.9km
1800
万円
394m2 1種低層
なし
50%
80%
  • 建築条件なし
  • 更地
  • 本下水
  • 1種低層地域

長野県松本市大字岡田下岡田 土地

  • 土地
  • 長野県松本市大字岡田下岡田 土地
    間取り図
長野県松本市大字岡田下岡田
JR大糸線 松本駅 徒歩4.8km
800
万円
573m2 1種中高
なし
60%
160%
  • 建築条件なし
  • 更地
  • 本下水
おすすめポイント
東側の眺望良好です!

長野県松本市女鳥羽3 土地

  • 土地
  • 長野県松本市女鳥羽3 土地
    間取り図
長野県松本市女鳥羽3
JR大糸線 北松本駅 徒歩30分
JR大糸線 松本駅 徒歩32分
2180
万円
276.45m2 1種中高
なし
60%
200%
  • 建築条件なし
  • 更地
  • 本下水
  • 都市ガス
おすすめポイント
【周辺環境】□イオンモール松本…車6分□西友元町店…車4分□DCM松本元町店…車4分□信大附属病院…徒歩9分□松本市役所…車6分□ドン・ボスコ保育園…車4分□旭町小学校…徒歩3分□旭町中学校…徒歩19分 【おすすめポイント】ゆったり83坪の土地面積平屋や広い駐車スペース、お庭などマイホームの夢が広がります。【スマイルハウスの住宅】◆注文住宅も企画住宅も! 多様なニーズに対応できる 様々なプランや間取りをご提案◆耐震性・耐火性・気密性に◎ 強固で安心の2×4工法 ◆お引き渡し後10年間の定期点検など アフターメンテナンス充実

長野県松本市大字里山辺 土地

  • 土地
  • 長野県松本市大字里山辺 土地
長野県松本市大字里山辺
JR篠ノ井線 松本駅 徒歩35分
1400
万円
171.88m2 1種中高
なし
70%
168%
  • 建築条件なし
  • 更地
  • 本下水
おすすめポイント
B号地は、公簿171.88㎡(約51.99坪)の建築条件なしの宅地です。公営水道・公共下水は、引込済です。周辺にはコンビニやスーパーが徒歩圏内にあり、日々の暮らしに便利な環境がそろっています。 ・総区画数6区画・販売区画数1区画 <設備の概要>・飲用水:公営水道・汚水、雑排水:公共下水・ガス:個別プロパン
チェックした物件を一括で

長野県松本市蟻ケ崎4 土地

  • 土地
  • 長野県松本市蟻ケ崎4 土地
    間取り図
長野県松本市蟻ケ崎4
JR大糸線 北松本駅 徒歩16分
JR大糸線 松本駅 徒歩27分
600
万円
211.65m2 1種中高
なし
60%
160%
  • 建築条件なし
  • 本下水
  • 上物有り
おすすめポイント
現在ある古屋の解体の負担についてはご相談させて頂きます。現況でのお引き渡しの場合は、価格等のご相談にも応じさせて頂きます。

長野県松本市大字里山辺 土地

  • 土地
  • 長野県松本市大字里山辺 土地
    間取り図
長野県松本市大字里山辺
JR大糸線 松本駅 徒歩3.4km
JR大糸線 北松本駅 徒歩3.4km
980
万円
178.73m2 1種住居
なし
60%
160%
  • 建築条件なし
  • 本下水
おすすめポイント
建築条件はありません。売主様負担により、既存家屋を解体、撤去された後の引き渡しとなります。敷地の南北境界線上にあるブロック塀は、隣地との共有物となるため、本売買時の解体には含まれません。売主様負担により、既存家屋を解体、撤去された後の引き渡しとなります。既存建物は解体させて頂く予定であり、建物の残存は予定しておりません。大変恐縮ですが、現存建物の内部はご案内できず、また、写真等も公開しておりません。予めご了承ください。

長野県松本市大字里山辺 土地

  • 土地
  • 長野県松本市大字里山辺 土地
    間取り図
長野県松本市大字里山辺
JR大糸線 松本駅 徒歩3.4km
JR大糸線 北松本駅 徒歩3.4km
2100
万円
303.7m2 1種住居
なし
60%
160%
  • 建築条件なし
  • 本下水
おすすめポイント
建築条件はありません。売主様負担により、既存家屋を解体、撤去された後の引き渡しとなります。既存建物は解体させて頂く予定であり、建物の残存は予定しておりません。大変恐縮ですが、現存建物の内部はご案内できず、また、写真等も公開しておりません。予めご了承ください。上水道は、本物件北側の県道にある本管から、私設管を用いて引き込みされております。

長野県松本市沢村2 土地

  • 土地
  • 長野県松本市沢村2 土地
長野県松本市沢村2
JR大糸線 北松本駅 徒歩26分
JR大糸線 松本駅 徒歩31分
3300
万円
451.2m2 1種中高
なし
60%
200%
  • 建築条件なし
  • 南道路
  • 本下水
  • 上物有り
おすすめポイント
人気の高いエリアで、幅広く活用できる建物付き売り土地

長野県松本市井川城2 土地

  • 建築条件付土地
  • 長野県松本市井川城2 建築条件付土地
    間取り図
長野県松本市井川城2
JR篠ノ井線 南松本駅 徒歩16分
JR大糸線 松本駅 徒歩24分
1417
万円
170.39m2 1種住居
あり
60%
160%
  • 更地
  • 本下水
  • 即引渡し可
おすすめポイント
土地50坪以上、即引渡し可、市街地が近い、陽当り良好、閑静な住宅地、平坦地、周辺交通量少なめ

長野県松本市大字水汲 土地

  • 土地
  • 長野県松本市大字水汲 土地
    間取り図
長野県松本市大字水汲
JR大糸線 北松本駅 徒歩4.0km
JR大糸線 松本駅 徒歩4.4km
1980
万円
318.99m2 1種低層
なし
50%
80%
  • 建築条件なし
  • 更地
  • 本下水
  • 即引渡し可
  • 1種低層地域
おすすめポイント
土地50坪以上、即引渡し可、山が見える、市街地が近い、陽当り良好、閑静な住宅地、建築条件なし、緑豊かな住宅地、前面棟無

長野県松本市大字里山辺 土地

  • 土地
  • 長野県松本市大字里山辺 土地
長野県松本市大字里山辺
篠ノ井線 松本駅 徒歩3.4km
500
万円

11.04万円
149.81m2 1種中高
なし
60%
200%
  • 建築条件なし
  • 更地
  • 本下水
  • 即引渡し可
おすすめポイント
こちらの物件は旗竿地です。最も狭い部分は約2.4mですので車両の出入りなど注意が必要となります。建築等で有効に使える部分は30~32坪程度とお考え下さい。上下水道は引き込み済みです。南側隣接地がこち

長野県松本市大字岡田伊深 土地

  • 土地
  • 長野県松本市大字岡田伊深 土地
    間取り図
長野県松本市大字岡田伊深
大糸線 松本駅 徒歩7.2km
480
万円

2.96万円
537.88m2 無指定
なし
50%
80%
  • 建築条件なし
  • 南道路
おすすめポイント
売買対象面積は実測公簿537.88平米(約162坪)です。但し竹林の傾斜地が含まれますので、建築等に利用できる面積は約430平米(約130坪)となります。市街化調整区域ですが既存宅地につき、住宅の建設が可能です。

長野県松本市高宮北 土地

  • 土地
  • 長野県松本市高宮北 土地
    間取り図
長野県松本市高宮北
篠ノ井線 松本駅 徒歩24分
松本電気鉄道 渚駅 徒歩17分
1634.5
万円

35万円
154.39m2 準工業
なし
70%
200%
  • 建築条件なし
  • 更地
  • 平坦地
  • 即引渡し可
おすすめポイント
建築条件なし!近隣は商業施設が多数あります。
チェックした物件を一括で
  • チェックした物件をまとめて
28
表示件数

条件を選択

価格
土地面積
駅からの時間
建築条件
現況
立地・特徴
条件
画像・動画
情報の新しさ
フリーワード
松本駅のおすすめ新築一戸建て

松本駅の新築一戸建て情報をもっと見る

松本市の暮らしデータ

人口などの統計情報

世帯数 104707世帯
人口総数 234111人
転入者数 9385人
転入率(人口1000人当たり)
40.09人
転出者数 9208人
転出率(人口1000人当たり)
39.33人
土地平均価格
住宅地
45458円/m2
商業地
132686円/m2

結婚・育児の助成金

子育て関連の独自の取り組み (1)子どもの権利に関する条例・子どもにやさしいまちづくり推進計画(子どもの権利相談室及び擁護委員の設置)。(2)不妊・不育症治療費助成事業。(3)歯科管理登録事業。(4)同時通園または低所得世帯の保育料の減免。(5)ひとり親家庭のファミリーサポート利用料助成。(6)発達障害児等の継続的支援。(7)子ども用品を回収し希望者に配布。(8)「ファーストスプーン」贈呈。(9)誕生記念樹贈呈。(10)絵本贈呈(ブックスタート、セカンドブック)小学校にサードブック設置。(11)小学生以下のインフルエンザ予防接種費用の一部助成。(12)おたふくかぜ予防接種費用の一部助成。(13)子育てクーポン(「3歳未満児家庭サポートクーポン」・「多子世帯子育てクーポン」電子クーポン)配布。
出産祝い あり
公立保育所数 43所(うち0歳児保育を実施している保育所:41所)
私立保育所数 3所(うち0歳児保育を実施している保育所:3所)
保育所入所待機児童数 7人
認定こども園数 17園 預かり保育実施園数 公立:3園 私立:4園
学校給食 【小学校】完全給食【中学校】完全給食
公立中学校の学校選択制 一部実施([小規模特認校制]自然環境に恵まれ、特色ある教育活動を推進している小規模校への就学を希望する場合、申請により指定校変更が可能)
子ども・学生等医療費助成<通院>対象年齢 18歳3月末まで 子ども・学生等医療費助成<入院>対象年齢 18歳3月末まで

松本市の治安・ごみ収集情報

公共料金・インフラ

ガス料金(22m3使用した場合の月額) 松本ガス株式会社4493円
水道料金(口径20mmで20m3の月額) 松本市3960円
下水道料金(20m3を使用した場合の月額) 松本市(四賀地区)4920円
松本市(松本地区)3140円
松本市(梓川地区)3960円
松本市(波田地区)3830円
下水道普及率 97.3%

安心・安全

建物火災出火件数 23件
人口10000人当たり
0.95件
刑法犯認知件数 1301件
人口1000人当たり
5.40件
ハザード・防災マップ あり

医療

一般病院総数 13ヶ所
一般診療所総数 231ヶ所
小児科医師数 97人
小児人口10000人当たり
35.22人
産婦人科医師数 44人
15~49歳女性人口1万人当たり
10.10人
介護保険料基準額(月額) 5780円

ごみ

家庭ごみ収集(可燃ごみ) 無料
備考
指定ごみ袋は有料だが、袋代にごみ収集・処理料金等を含まず。
家庭ごみの分別方式 4分別24種〔可燃ごみ 埋立ごみ 破砕ごみ 資源物(プラスチック資源、アルミ缶、スチール缶、その他金属、新聞、雑誌その他紙類、段ボール、紙パック、古布、ビールびん、ジュースびん、一升びん、白色びん、茶びん、その他色びん、小型家電、ペットボトル、蛍光管・体温計、乾電池、スプレー缶・ライター、廃食用油)〕
家庭ごみの戸別収集 未実施
粗大ごみ収集 あり
備考
有料(品目は、机、ステレオ、ミシン(足踏式ミシン等の大型のもの)、カーペット(4.5畳以上のもの)、スプリングマット、スプリング入り椅子(1人用)、スプリング入り椅子(2人用以上)、ベッド枠、物干し台、物干し竿(金属製)、スキー・スノーボード用具一式)。
生ごみ処理機助成金制度 あり
上限金額
40000円
上限比率
50.0%

松本市の住まいの給付金

新築建築

利子補給制度 あり
上限金額
6万円
備考
【勤労者住宅建設資金利子補給】(a)長野県労働金庫からの融資であること。(b)自己又は扶養親族が居住する専用住宅であること。(c)新築又は増改築の延床面積が40m2以上280m2以下であること。(d)補給対象の融資額は、300万円が上限。(e)借入期間が5年以下の場合は、3万円が上限。
補助/助成金制度 あり
上限金額
30万円
備考
【カラマツ材住宅補助金】請負額100万円以上、長野県産材カラマツを20万円以上使用。使用量に応じて10万円~30万円を補助。

新築購入

利子補給制度 あり
上限金額
6万円
備考
【勤労者住宅建設資金利子補給】(a)長野県労働金庫からの融資であること。(b)自己又は扶養親族が居住する専用住宅であること。(c)新築又は増改築の延床面積が40m2以上280m2以下であること。(d)補給対象の融資額は、300万円が上限。(e)借入期間が5年以下の場合は、3万円が上限。
補助/助成金制度 なし
暮らしデータ提供元:生活ガイド.com
※行政機関により公表していない地域及びデータがございます。東京23区以外の政令指定都市は、市全体のデータとして表示しています。
※提供データには細心の注意を払っておりますが、調査後に変更がある場合があります。 最新の情報につきましては各市区役所までお問い合わせいただくか、自治体HPなどをご確認ください。

価格相場

更新日:2026年03月30日

松本駅の価格相場

  50㎡~80㎡ 80㎡~100㎡ 100㎡~150㎡ 150㎡~200㎡ 200㎡以上
土地 - - - 1391万円 1772万円

周辺駅の価格相場

  南松本 田沢 平田 明科 村井
土地 - - - - -
※このデータはgoo住宅・不動産に掲載されている土地の平均価格(管理費・駐車場代などを除く)を算出したものです。ただし5戸以上の掲載があるものについてのみ対象とします。
※周辺駅の価格相場は広さ100㎡~150㎡の平均価格(管理費・駐車場代などを除く)を算出したものです。

長野県の人気の街アクセスランキング(土地)

※このランキングは2026年03月01日~31日における各ページのアクセス数から算出しています。

他のエリアから探す

松本駅周辺の駅から探す

篠ノ井線
広丘村井平田南松本松本田沢明科西条坂北
大糸線
松本北松本島内島高松梓橋
松本電気鉄道
松本西松本信濃荒井大庭

特集から探す

建築条件なし売主・代理第1種低層地域

アプリで簡単 物件探し 大手不動産サイトの情報から一括検!プッシュ通知で物件を見逃さない
App Storeからダウンロード Google Playで手に入れよう QRコード