加古川市八幡町船町の中古一戸建て・中古住宅 物件一覧

加古川市/八幡町船町

変更する

条件

指定なし

変更する
1が該当しました。

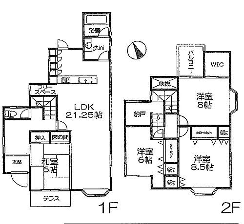
  • 兵庫県加古川市八幡町船町 780万円 4LDK

    780万円

    間取り 4LDK
    建物面積 126.46m2
    土地面積 136.59m2
    築年月1993年12月(築32年)
    • 最寄り駅加古川線 厄神駅 徒歩4分
    その他の交通
    住所兵庫県加古川市八幡町船町
    • 2階建て
    • 駐車場あり
    • カウンターキッチン
    • システムキッチン
    • オール電化
    • 所有権
    JR厄神駅徒歩4分の収益物件 オール電化 納戸やWICなど収納スペースたっぷり 21帖の広々LDK
    株式会社みなと住建 加古川本店
  • 1

加古川市/八幡町船町

変更する

条件

指定なし

変更する
申し訳ございません。条件にあう物件が少なかったため
以下は「加古川市」の物件情報を表示しています。

加古川市の中古住宅・中古一戸建て 物件一覧

  • NEW
    兵庫県加古川市野口町北野 1480万円 2LDK

    1480万円

    間取り 2LDK
    建物面積 100.08m2
    土地面積 149.17m2
    築年月1998年4月(築27年8ヶ月)
    • 最寄り駅山陽本線 東加古川駅 徒歩19分
    • 加古川線 日岡駅 徒歩3.8km
    その他の交通
    住所兵庫県加古川市野口町北野
    • 2階建て
    • 駐車場あり
    • 駐車2台
    • 所有権
    • 即入居可
    JR「東加古川駅」徒歩19分の中古戸建物件♪広々LDK20帖なのでゆったりとした生活ができますね☆駐車スペース2台有!
    株式会社アールエステート

  • NEW
    兵庫県加古川市平岡町高畑 1180万円 4LDK

    1180万円

    間取り 4LDK
    建物面積 91.08m2
    土地面積 100.19m2
    築年月1998年11月(築27年1ヶ月)
    • 最寄り駅山陽本線 東加古川駅 徒歩14分
    • 山陽本線 土山駅 徒歩35分
    その他の交通
    住所兵庫県加古川市平岡町高畑
    • 2階建て
    • 都市ガス
    • 駐車場あり
    • 駐車2台
    • システムキッチン
    • 所有権
    JR「東加古川駅」まで徒歩14分!駅まで平坦な道です! お車縦列で2台駐車可能☆ 周辺非常に閑静な住宅街となってります♪ 周辺もきれいな街並みです!
    株式会社アールエステート

  • 兵庫県加古川市別府町本町2丁目 777万円 4LDK

    777万円

    間取り 4LDK
    建物面積 111.02m2
    土地面積 158.34m2
    築年月1982年8月(築43年4ヶ月)
    • 最寄り駅山陽電気鉄道本線 別府駅 徒歩13分
    その他の交通
    住所兵庫県加古川市別府町本町2丁目
    • 2階建て
    • 所有権
    • 即入居可
    ◆家を買うならハウスドゥ 加古川駅南!◆不動産に関する問題を一緒に解決!
    ハウスドゥ 加古川駅南 INFINEX株式会社

  • 兵庫県加古川市別府町別府 1680万円 3LDK
    パノラマあり

    1680万円

    間取り 3LDK
    建物面積 90.25m2
    土地面積 105m2
    築年月1997年1月(築28年11ヶ月)
    • 最寄り駅山陽電気鉄道本線 別府駅 徒歩15分
    • 山陽本線 東加古川駅 徒歩21分
    その他の交通
    住所兵庫県加古川市別府町別府
    • 2階建て
    • 南道路
    • 都市ガス
    • 駐車場あり
    • 駐車2台
    • システムキッチン
    室内リフォーム済ですぐに新生活をスタート出来ます。学校区「平岡南小学校」「平岡南中学校」!カーポート付駐車スペース2台ございます♪
    株式会社アールエステート

  • 兵庫県加古川市別府町別府 1750万円 5LDK

    1750万円

    間取り 5LDK
    建物面積 160.04m2
    土地面積 236.75m2
    築年月1990年7月(築35年5ヶ月)
    • 最寄り駅山陽電気鉄道本線 別府駅 徒歩4分
    その他の交通
    住所兵庫県加古川市別府町別府
    • 2階建て
    • 所有権
    ◆家を買うならハウスドゥ 加古川駅南!◆不動産に関するあらゆる問題を一緒に解決していきましょう!
    ハウスドゥ 加古川駅南 INFINEX株式会社

  • 兵庫県加古川市尾上町長田 980万円 4DK

    980万円

    間取り 4DK
    建物面積 91.88m2
    土地面積 129.92m2
    築年月1979年7月(築46年5ヶ月)
    • 最寄り駅山陽電気鉄道本線 尾上の松駅 徒歩11分
    • 山陽電気鉄道本線 浜の宮駅 徒歩17分
    その他の交通
    住所兵庫県加古川市尾上町長田
    • 2階建て
    • 都市ガス
    • 駐車場あり
    • システムキッチン
    • 所有権
    • 即入居可
    尾上の松駅から徒歩11分!4DK・駐車1台可!(車種によります)
    ハウスドゥ 加古川駅南 INFINEX株式会社

  • 兵庫県加古川市加古川町平野 1580万円 4LDK
    パノラマあり

    1580万円

    間取り 4LDK
    建物面積 81.97m2
    土地面積 100m2
    築年月1996年2月(築29年10ヶ月)
    • 最寄り駅山陽本線 加古川駅 徒歩16分
    • 山陽電気鉄道本線 浜の宮駅 徒歩38分
    その他の交通
    住所兵庫県加古川市加古川町平野
    • 2階建て
    • 都市ガス
    • 駐車場あり
    • システムキッチン
    • 所有権
    近隣に商業施設が充実♪広々4LDKで陽当たり良好!駐車1台可(車種による)
    ハウスドゥ 加古川駅南 INFINEX株式会社

  • 兵庫県加古川市上荘町都台2丁目 1750万円 6SLDK

    1750万円

    間取り 6SLDK
    建物面積 296.39m2
    土地面積 558.21m2
    築年月1995年12月(築30年)
    • 最寄り駅加古川線 厄神駅 徒歩35分
    その他の交通
    住所兵庫県加古川市上荘町都台2丁目
    • 2階建て
    • 駐車場あり
    • 駐車2台
    • 所有権
    • 即入居可
    ◆敷地広々168坪に、89坪のお家♪◆収納スペースもたっぷり♪◆マルアイ八幡店まで徒歩約38分♪◆子供も大人もペットも楽しめる「みとろの丘/見土呂フルーツパーク」まで徒歩約13分♪◆…
    ハウスドゥ 東加古川駅南 有限会社藤川組

  • 兵庫県加古川市平岡町新在家 2680万円 5SLDK
    パノラマあり

    2680万円

    間取り 5SLDK
    建物面積 113.44m2
    土地面積 208.6m2
    築年月1981年2月(築44年10ヶ月)
    • 最寄り駅山陽本線 東加古川駅 徒歩13分
    • 山陽電気鉄道本線 別府駅 徒歩30分
    その他の交通
    住所兵庫県加古川市平岡町新在家
    • 2階建て
    • 駐車場あり
    • 駐車3台
    • システムキッチン
    • 所有権
    • 即入居可
    JR「東加古川駅」徒歩13分!オール電化住宅☆納戸だけでなく、各居室収納付で片付けラクラク☆近隣にコンビニ、スーパー多数アリで住環境充実☆お車3台駐車可!
    株式会社アールエステート

  • 兵庫県加古川市平岡町高畑 2480万円 4LDK

    2480万円

    間取り 4LDK
    建物面積 146.51m2
    土地面積 99.36m2
    築年月2007年3月(築18年9ヶ月)
    • 最寄り駅山陽本線 土山駅 徒歩28分
    • 山陽電気鉄道本線 播磨町駅 徒歩38分
    その他の交通
    住所兵庫県加古川市平岡町高畑
    • 2階建て
    • 駐車場あり
    • 駐車3台
    • カウンターキッチン
    • 所有権
    【駐車場並列4台分!】マイカー利用、来客時も安心■納戸+全居室収納で荷物がすっきり片付きます■玄関横の和室は客間としての利用にも便利です■明石西ICまで10分!車での遠出にも便利な立地
    センチュリー21 株式会社フロンティア住宅販売 姫路店

  • 兵庫県加古川市野口町長砂 1699万円 3LDK

    1699万円

    間取り 3LDK
    建物面積 91.51m2
    土地面積 134.13m2
    築年月1992年3月(築33年9ヶ月)
    • 最寄り駅山陽電気鉄道本線 浜の宮駅 徒歩20分
    • 山陽電気鉄道本線 別府駅 徒歩25分
    その他の交通
    住所兵庫県加古川市野口町長砂
    • 2階建て
    • 都市ガス
    • 駐車場あり
    • 駐車2台
    • カウンターキッチン
    • システムキッチン
    ・山陽電鉄浜の宮駅まで徒歩約20分 ・2025年12月リフォーム完了予定 ・野口南小学校・中部中学校
    有限会社輝広

  • 兵庫県加古川市平岡町新在家 2680万円 5SLDK

    2680万円

    間取り 5SLDK
    建物面積 113.44m2
    土地面積 208.6m2
    築年月1981年2月(築44年10ヶ月)
    • 最寄り駅山陽本線 東加古川駅 徒歩13分
    • 山陽電気鉄道本線 別府駅 徒歩30分
    その他の交通
    住所兵庫県加古川市平岡町新在家
    • 2階建て
    • 駐車場あり
    • システムキッチン
    • オール電化
    • 所有権
    ◇JR東加古川駅より徒歩約13分◇敷地面積約63坪、オール電化住宅◇トイレ1・2階にあり
    センチュリー21不動産流通センター

  • 兵庫県加古川市尾上町安田 2980万円 4SLDK

    2980万円

    間取り 4SLDK
    建物面積 93.96m2
    土地面積 145.33m2
    築年月2018年9月(築7年3ヶ月)
    • 最寄り駅山陽電気鉄道本線 浜の宮駅 徒歩15分
    • 山陽電気鉄道本線 尾上の松駅 徒歩20分
    その他の交通
    住所兵庫県加古川市尾上町安田
    • 2階建て
    • 都市ガス
    • 駐車場あり
    • 駐車2台
    • カウンターキッチン
    • システムキッチン
    ◇H30年9月築住宅性能評価付き4SLDK◇電気とガスのハイブリット住宅◇駐車場2台 軽自動車1台可
    センチュリー21不動産流通センター

  • 兵庫県加古川市野口町古大内 1130万円 3LDK
    パノラマあり

    1130万円

    間取り 3LDK
    建物面積 72.86m2
    土地面積 101.44m2
    築年月1979年12月(築46年)
    • 最寄り駅山陽本線 東加古川駅 徒歩29分
    • 山陽電気鉄道本線 別府駅 徒歩21分
    その他の交通
    住所兵庫県加古川市野口町古大内
    • 2階建て
    • 都市ガス
    • 駐車場あり
    • システムキッチン
    • 浴室乾燥機
    • 所有権
    【全居室6帖以上】R7年4月室内フルリフォーム済!■前道6m以上で、車の出入りもスムーズ■ウォークインクローゼット3箇所で収納が充実■小学校が徒歩5分圏内にありお子様の登下校にも安心の距離
    センチュリー21 株式会社フロンティア住宅販売 姫路店

  • 兵庫県加古川市野口町長砂 1699万円 3LDK

    1699万円

    間取り 3LDK
    建物面積 91.51m2
    土地面積 134.13m2
    築年月1992年3月(築33年9ヶ月)
    • 最寄り駅山陽電気鉄道本線 浜の宮駅 徒歩20分
    • 山陽電気鉄道本線 別府駅 徒歩25分
    その他の交通
    住所兵庫県加古川市野口町長砂
    • 2階建て
    • 都市ガス
    • 駐車場あり
    • 駐車2台
    • カウンターキッチン
    • システムキッチン
    ◇2025年12月 リフォーム完成予定 キッチン・ユニットバス・トイレ・洗面台新調 外壁・屋根塗装
    センチュリー21不動産流通センター

  • 兵庫県加古川市西神吉町岸 1680万円 5SLDK
    パノラマあり

    1680万円

    間取り 5SLDK
    建物面積 142.42m2
    土地面積 137.52m2
    築年月2000年3月(築25年9ヶ月)
    • 最寄り駅山陽本線 宝殿駅 徒歩11分
    • 山陽電気鉄道本線 伊保駅 徒歩3.6km
    その他の交通
    住所兵庫県加古川市西神吉町岸
    • 2階建て
    • 駐車場あり
    • 駐車2台
    • カウンターキッチン
    • システムキッチン
    • オール電化
    ・2025年2月リフォーム ・軽量鉄骨造5SLDK ・オール電化 ・西神吉小学校、神吉中学校
    有限会社輝広

  • 兵庫県加古川市野口町長砂 1699万円 3LDK

    1699万円

    間取り 3LDK
    建物面積 91.51m2
    土地面積 134.13m2
    築年月1992年3月(築33年9ヶ月)
    • 最寄り駅山陽電気鉄道本線 浜の宮駅 徒歩20分
    • 山陽電気鉄道本線 別府駅 徒歩25分
    その他の交通
    住所兵庫県加古川市野口町長砂
    • 2階建て
    • 都市ガス
    • 駐車場あり
    • 駐車2台
    • カウンターキッチン
    • システムキッチン
    【R7年12月リフォーム予定】リビング20帖以上■車並列2台可能!カーポート付きなので愛車を風雨から守ります■全居室6帖以上、各居室に収納スペースを確保しています居■南西向きで日当たり良好
    センチュリー21 株式会社フロンティア住宅販売 姫路店

  • 兵庫県加古川市野口町長砂 1699万円 3LDK

    1699万円

    間取り 3LDK
    建物面積 91.51m2
    土地面積 134.13m2
    築年月1992年3月(築33年9ヶ月)
    • 最寄り駅山陽電気鉄道本線 浜の宮駅 徒歩20分
    • 山陽電気鉄道本線 別府駅 徒歩25分
    その他の交通
    住所兵庫県加古川市野口町長砂
    • 2階建て
    • 都市ガス
    • 駐車場あり
    • カウンターキッチン
    • システムキッチン
    • 所有権
    ◆家を買うならハウスドゥ 加古川駅南!◆不動産に関する問題を一緒に解決!
    ハウスドゥ 加古川駅南 INFINEX株式会社

  • 兵庫県加古川市平岡町高畑 2880万円 3LDK

    2880万円

    間取り 3LDK
    建物面積 78.24m2
    土地面積 126.37m2
    築年月2022年1月(築3年11ヶ月)
    • 最寄り駅山陽本線 東加古川駅 徒歩23分
    • 山陽電気鉄道本線 播磨町駅 徒歩37分
    その他の交通
    住所兵庫県加古川市平岡町高畑
    • 2階建て
    • 駐車場あり
    • カウンターキッチン
    • システムキッチン
    • オール電化
    • 所有権
    【オール電化物件】火を使わない安心安全な生活■北西角地で風通し良好開放感のあるおうち■令和4年新築の築浅物件です■太陽光発電eソラシード搭載■本日ご案内可能
    センチュリー21 株式会社フロンティア住宅販売 姫路店

  • 兵庫県加古川市西神吉町岸 1680万円 5SLDK
    パノラマあり

    1680万円

    間取り 5SLDK
    建物面積 142.42m2
    土地面積 137.52m2
    築年月2000年3月(築25年9ヶ月)
    • 最寄り駅山陽本線 宝殿駅 徒歩11分
    • 山陽電気鉄道本線 伊保駅 徒歩3.6km
    その他の交通
    住所兵庫県加古川市西神吉町岸
    • 2階建て
    • カウンターキッチン
    • システムキッチン
    • オール電化
    • 所有権
    • 即入居可
    閑静な住宅街にある5SLDK中古戸建物件♪JR「宝殿駅」徒歩11分!全居室6帖以上でゆったり生活☆スーパーまで徒歩6分、コンビニまで徒歩9分でお買い物も便利♪お車2台駐車可能
    株式会社アールエステート

  • 兵庫県加古川市尾上町口里 2490万円 5SLDK

    2490万円

    間取り 5SLDK
    建物面積 152.36m2
    土地面積 165.3m2
    築年月2007年11月(築18年1ヶ月)
    • 最寄り駅山陽電気鉄道本線 浜の宮駅 徒歩4分
    • 山陽本線 加古川駅 徒歩3.9km
    その他の交通
    住所兵庫県加古川市尾上町口里
    • 2階建て
    • 駐車場あり
    • 駐車2台
    • カウンターキッチン
    • システムキッチン
    • 所有権
    ・駐車2台並列可 ・山陽電鉄浜の宮駅徒歩4分 ・2世帯住宅 ・浜の宮小学校、浜の宮中学校
    有限会社輝広

  • 兵庫県加古川市西神吉町岸 1680万円 5SLDK

    1680万円

    間取り 5SLDK
    建物面積 142.42m2
    土地面積 137.52m2
    築年月2000年3月(築25年9ヶ月)
    • 最寄り駅山陽本線 宝殿駅 徒歩11分
    • 山陽電気鉄道本線 伊保駅 徒歩3.6km
    その他の交通
    住所兵庫県加古川市西神吉町岸
    • 2階建て
    • 駐車場あり
    • 駐車2台
    • カウンターキッチン
    • システムキッチン
    • 所有権
    ◇水回り・内装リフォーム済◇5LDK+納戸◇全居室6帖以上、LDK21帖◇JR宝殿駅徒歩約11分
    センチュリー21不動産流通センター

  • 兵庫県加古川市西神吉町岸 1680万円 5SLDK
    パノラマあり

    1680万円

    間取り 5SLDK
    建物面積 142.42m2
    土地面積 137.52m2
    築年月2000年3月(築25年9ヶ月)
    • 最寄り駅山陽本線 宝殿駅 徒歩13分
    その他の交通
    住所兵庫県加古川市西神吉町岸
    • 2階建て
    • 駐車場あり
    • カウンターキッチン
    • システムキッチン
    • 所有権
    • 即入居可
    令和7年2月リフォーム済!室内リビング広々かつ各部屋キレイです☆即内覧可能です♪◆家を買うならハウスドゥ 加古川駅南!◆不動産に関するあらゆる問題を一緒に解決していきましょう!
    ハウスドゥ 加古川駅南 INFINEX株式会社

  • 兵庫県加古川市西神吉町岸 1680万円 5SLDK

    1680万円

    間取り 5SLDK
    建物面積 142.42m2
    土地面積 137.52m2
    築年月2000年3月(築25年9ヶ月)
    • 最寄り駅山陽本線 宝殿駅 徒歩11分
    • 山陽電気鉄道本線 伊保駅 徒歩3.6km
    その他の交通
    住所兵庫県加古川市西神吉町岸
    • 2階建て
    • 駐車場あり
    • 駐車2台
    • カウンターキッチン
    • システムキッチン
    • オール電化
    【R7.2月リフォーム】■駐車スペース付きで、お車をお持ちの方も安心です■全居室収納付きで、荷物がスッキリ片付きます■全室2面採光で陽当たり良好です
    センチュリー21 株式会社フロンティア住宅販売 姫路店

  • 兵庫県加古川市別府町新野辺 970万円 4DK
    パノラマあり

    970万円

    間取り 4DK
    建物面積 72.9m2
    土地面積 103.8m2
    築年月1982年4月(築43年8ヶ月)
    • 最寄り駅山陽電気鉄道本線 別府駅 徒歩17分
    • 山陽電気鉄道本線 浜の宮駅 徒歩20分
    その他の交通
    住所兵庫県加古川市別府町新野辺
    • 2階建て
    • 駐車場あり
    • システムキッチン
    • 所有権
    • 即入居可
    • リフォームリノベーション
    ◆家を買うならハウスドゥ 加古川駅南!◆不動産に関するあらゆる問題を一緒に解決していきましょう!
    ハウスドゥ 加古川駅南 INFINEX株式会社

  • 兵庫県加古川市平岡町新在家 890万円 3LDK
    パノラマあり

    890万円

    間取り 3LDK
    建物面積 72.46m2
    土地面積 115.99m2
    築年月1979年11月(築46年1ヶ月)
    • 最寄り駅山陽本線 東加古川駅 徒歩23分
    その他の交通
    住所兵庫県加古川市平岡町新在家
    • 2階建て
    • 駐車場あり
    • カウンターキッチン
    • システムキッチン
    • 所有権
    • リフォームリノベーション
    ◆家を買うならハウスドゥ 加古川駅南!◆不動産に関する問題を一緒に解決!
    ハウスドゥ 加古川駅南 INFINEX株式会社

  • 兵庫県加古川市平岡町新在家 2680万円 5SLDK
    パノラマあり

    2680万円

    間取り 5SLDK
    建物面積 113.44m2
    土地面積 208.6m2
    築年月1981年2月(築44年10ヶ月)
    • 最寄り駅山陽本線 東加古川駅 徒歩13分
    • 山陽電気鉄道本線 別府駅 徒歩29分
    その他の交通
    住所兵庫県加古川市平岡町新在家
    • 2階建て
    • 駐車場あり
    • システムキッチン
    • 所有権
    • 即入居可
    • リフォームリノベーション
    ◆家を買うならハウスドゥ 加古川駅南!◆不動産に関するあらゆる問題を一緒に解決していきましょう!
    ハウスドゥ 加古川駅南 INFINEX株式会社

  • 兵庫県加古川市別府町別府 880万円 4LDK

    880万円

    間取り 4LDK
    建物面積 88.59m2
    土地面積 104.29m2
    築年月1997年5月(築28年7ヶ月)
    • 最寄り駅山陽電気鉄道本線 別府駅 徒歩6分
    • 山陽電気鉄道本線 浜の宮駅 徒歩22分
    その他の交通
    住所兵庫県加古川市別府町別府
    • 2階建て
    • 駐車場あり
    • カウンターキッチン
    • 所有権
    ◇山陽電鉄別府駅徒歩約6分!◇全居室6帖以上、広い小屋裏収納あり◇小学校徒歩約11分、中学校約8分
    センチュリー21不動産流通センター

  • 兵庫県加古川市野口町坂元北4丁目 5700万円 6LDK

    5700万円

    間取り 6LDK
    建物面積 142.16m2
    土地面積 261.18m2
    築年月2009年9月(築16年3ヶ月)
    • 最寄り駅山陽本線 加古川駅 徒歩25分
    • 山陽本線 東加古川駅 徒歩30分
    その他の交通
    住所兵庫県加古川市野口町坂元北4丁目
    • 2階建て
    • 南道路
    • 駐車場あり
    • 駐車3台
    • 浴室乾燥機
    • 所有権
    セキスイハイムの注文住宅、全室エアコン新調、ソーラーシステム搭載。
    株式会社ホームセレクション

  • 兵庫県加古川市尾上町口里 2490万円 5SLDK

    2490万円

    間取り 5SLDK
    建物面積 152.36m2
    土地面積 165.3m2
    築年月2007年11月(築18年1ヶ月)
    • 最寄り駅山陽電気鉄道本線 浜の宮駅 徒歩4分
    • 山陽電気鉄道本線 尾上の松駅 徒歩23分
    その他の交通
    住所兵庫県加古川市尾上町口里
    • 2階建て
    • 駐車場あり
    • 駐車2台
    • カウンターキッチン
    • システムキッチン
    • 所有権
    二世帯可能!浴室・洗面所・LDKが2か所♪◆家を買うならハウスドゥ 加古川駅南!◆不動産に関するあらゆる問題を一緒に解決していきましょう!
    ハウスドゥ 加古川駅南 INFINEX株式会社

  • 兵庫県加古川市加古川町友沢 3980万円 3LDK
    パノラマあり

    3980万円

    間取り 3LDK
    建物面積 146.2m2
    土地面積 122.01m2
    築年月2024年3月(築1年9ヶ月)
    • 最寄り駅山陽電気鉄道本線 尾上の松駅 徒歩31分
    • 山陽電気鉄道本線 荒井駅 徒歩32分
    その他の交通
    住所兵庫県加古川市加古川町友沢
    • 2階建て
    • 都市ガス
    • 駐車場あり
    • 駐車2台
    • システムキッチン
    • 浴室乾燥機
    2024年築 未入居物件!友沢で新生活始めませんか!◆家を買うならハウスドゥ 加古川駅南!◆不動産に関するあらゆる問題を一緒に解決していきましょう!
    ハウスドゥ 加古川駅南 INFINEX株式会社

  • 兵庫県加古川市志方町横大路 2580万円 3SLDK

    2580万円

    間取り 3SLDK
    建物面積 112.83m2
    土地面積 214.46m2
    築年月2017年9月(築8年3ヶ月)
    • 最寄り駅山陽本線 宝殿駅 徒歩3.2km
    • 山陽本線 曽根駅 徒歩5.9km
    その他の交通
    住所兵庫県加古川市志方町横大路
    • 2階建て
    • 南道路
    • 駐車場あり
    • 駐車3台
    • カウンターキッチン
    • システムキッチン
    ・志方西小学校・志方中学校 ・セキスイハイム施工 ・オール電化 ・長期優良住宅 ・太陽光設置
    有限会社輝広

  • 兵庫県加古川市加古川町中津 1780万円 3LDK
    パノラマあり

    1780万円

    間取り 3LDK
    建物面積 88.19m2
    土地面積 77.39m2
    築年月2020年5月(築5年7ヶ月)
    • 最寄り駅加古川線 日岡駅 徒歩14分
    • 山陽本線 加古川駅 徒歩21分
    その他の交通
    住所兵庫県加古川市加古川町中津
    • 2階建て
    • 都市ガス
    • カウンターキッチン
    • システムキッチン
    • 浴室乾燥機
    • 所有権
    ◆家を買うならハウスドゥ 加古川駅南!◆不動産に関するあらゆる問題を一緒に解決していきましょう!
    ハウスドゥ 加古川駅南 INFINEX株式会社

  • 兵庫県加古川市別府町新野辺 1980万円 3LDK
    パノラマあり

    1980万円

    間取り 3LDK
    建物面積 90.25m2
    土地面積 112.23m2
    築年月1996年8月(築29年4ヶ月)
    • 最寄り駅山陽電気鉄道本線 別府駅 徒歩18分
    • 山陽電気鉄道本線 浜の宮駅 徒歩24分
    その他の交通
    住所兵庫県加古川市別府町新野辺
    • 2階建て
    • 都市ガス
    • 駐車場あり
    • 駐車2台
    • カウンターキッチン
    • システムキッチン
    まるで新築のような快適空間です♪広々3LDK・リフォーム済物件です!お気軽にハウスドゥ加古川駅南店までお問い合わせください♪
    ハウスドゥ 加古川駅南 INFINEX株式会社

  • 兵庫県加古川市加古川町美乃利 3980万円 4SLDK

    3980万円

    間取り 4SLDK
    建物面積 106.82m2
    土地面積 123.57m2
    築年月2017年11月(築8年1ヶ月)
    • 最寄り駅山陽本線 加古川駅 徒歩13分
    • 加古川線 日岡駅 徒歩29分
    その他の交通
    住所兵庫県加古川市加古川町美乃利
    • 2階建て
    • 駐車場あり
    • 駐車2台
    • システムキッチン
    • オール電化
    • 浴室乾燥機
    ◇広いパントリー・土間収納+ロフトで収納充実◇関西住宅販売の注文住宅◇普通車2台駐車可(車種による)
    センチュリー21不動産流通センター

  • 兵庫県加古川市加古川町大野 3800万円 3LDK

    3800万円

    間取り 3LDK
    建物面積 119.03m2
    土地面積 368.87m2
    築年月2006年1月(築19年11ヶ月)
    • 最寄り駅加古川線 日岡駅 徒歩8分
    • 山陽本線 加古川駅 徒歩23分
    その他の交通
    住所兵庫県加古川市加古川町大野
    • 2階建て
    • 都市ガス
    • 駐車場あり
    • 駐車2台
    • カウンターキッチン
    • システムキッチン
    ・敷地111.5坪 ・建物36坪 ・加古川線日岡駅まで徒歩約8分 ・駐車場2台可 ・氷丘小・氷丘中
    有限会社輝広

  • 兵庫県加古川市平荘町里 1980万円 4LDK

    1980万円

    間取り 4LDK
    建物面積 149.76m2
    土地面積 178.63m2
    築年月2004年2月(築21年10ヶ月)
    • 最寄り駅山陽本線 加古川駅 バス19分/「里」バス停 停歩1分
    その他の交通
    住所兵庫県加古川市平荘町里
    • 2階建て
    • 駐車場あり
    • 駐車2台
    • カウンターキッチン
    • システムキッチン
    • 所有権
    【セキスイハイム施工】2世帯住宅としても使用可能◎■2台駐車可能!カーライフをお楽しみいただけます■収納豊富な間取りでお部屋を広くお使いいただけます■セブンイレブン加古川平荘町店徒歩約4分
    センチュリー21 株式会社フロンティア住宅販売 姫路店

  • 兵庫県加古川市平岡町一色 2080万円 4LDK

    2080万円

    間取り 4LDK
    建物面積 101.01m2
    土地面積 121.65m2
    築年月2009年4月(築16年8ヶ月)
    • 最寄り駅山陽電気鉄道本線 別府駅 徒歩8分
    その他の交通
    住所兵庫県加古川市平岡町一色
    • 2階建て
    • 都市ガス
    • 駐車場あり
    • 駐車2台
    • カウンターキッチン
    • 所有権
    住宅流通サービス株式会社

  • 兵庫県加古川市野口町長砂 2080万円 5LDK

    2080万円

    間取り 5LDK
    建物面積 117.18m2
    土地面積 140.72m2
    築年月2005年8月(築20年4ヶ月)
    • 最寄り駅山陽電気鉄道本線 浜の宮駅 徒歩22分
    • 山陽電気鉄道本線 別府駅 徒歩21分
    その他の交通
    住所兵庫県加古川市野口町長砂
    • 2階建て
    • カウンターキッチン
    • システムキッチン
    • 所有権
    ◆この物件のおすすめPoint◆・太陽光発電システム搭載・令和4年9月リフォーム歴あり・全居室6帖以上・駐車場2台以上可能
    5STAR HOME株式会社

  • 兵庫県加古川市平岡町八反田 2880万円 4LDK

    2880万円

    間取り 4LDK
    建物面積 98.64m2
    土地面積 130.02m2
    築年月2024年7月(築1年5ヶ月)
    • 最寄り駅山陽電気鉄道本線 別府駅 徒歩6分
    • 山陽電気鉄道本線 播磨町駅 徒歩28分
    その他の交通
    住所兵庫県加古川市平岡町八反田
    • 2階建て
    • 南道路
    • 駐車場あり
    • 駐車2台
    • カウンターキッチン
    • システムキッチン
    閑静な住宅街にある設備充実オール電化物件♪山陽電鉄「別府駅」徒歩6分!食器洗い乾燥機付きで家事も楽々♪イトーヨーカドー加古川店まで徒歩8分でお買い物には困りません☆お車2台駐車可能。
    株式会社アールエステート
もっと見る

ドコモでんきに切り替えるだけでdポイントが貯まる!詳細はこちらをチェック

条件を追加する

お気に入りの物件を見逃さない!

プッシュ通知で最新の物件情報が届く

goo住宅・不動産アプリ

goo住宅・不動産
アプリ

App Storeからダウンロード
Google Playで手に入れよう

暮らしデータ

加古川市の人口などの統計情報

世帯数 107075世帯
人口総数 258691人
転入者数 8245人
転入率(人口1000人当たり)
31.87人
転出者数 7948人
転出率(人口1000人当たり)
30.72人
土地平均価格 住宅地 81219円/m2
商業地 138450円/m2

加古川市の結婚・育児の助成金

出産・子育て
子育て関連の独自の取り組み (1)子育て支援予防接種助成事業(任意の予防接種のうち、おたふく風邪・三種混合ワクチンの接種料金の一部[2,000円・各1回限り]を助成)。(2)不妊不育症治療費助成事業(不妊・不育症の検査・治療を受けた夫婦に費用の一部を助成。一般不妊治療3万円/年、特定不妊治療5万円/回、不育症治療10万円/年を上限。所得制限なし)。(3)無料託児サービス(主に在宅で子育てをする家庭を対象に、市内2ヶ所の子育てプラザ内で加古川市在住の6ヶ月から就学前の子どもを無料で預かるサービスを実施している)。(4)育児休業からの復職に伴う利用申し込み(育児休業からの復職を予定している保護者を対象に、早期から年度途中の入園予約を受付)。
出産祝い あり
備考
記念樹を贈呈(出生日から1年以内の申込みに限る)。
公立保育所数 3ヶ所
0歳児保育を実施 3ヶ所
私立保育所数 13ヶ所
0歳児保育を実施 13ヶ所
保育所入所待機児童数 12人
認定こども園数 31園
預かり保育実施園数-公立 16園
預かり保育実施園数-私立 2園
学校給食 【小学校】完全給食【中学校】完全給食
公立中学校の学校選択制 未実施
子ども・学生等医療費助成<通院>対象年齢 18歳3月末まで
子ども・学生等医療費助成<入院>対象年齢 18歳3月末まで

加古川市の治安・ごみ収集情報

公共料金・インフラ
ガス料金(22m3使用した場合の月額) 大阪瓦斯株式会社4544円
水道料金(口径20mmで20m3の月額) 加古川市2596円
下水道料金(20m3を使用した場合の月額) 加古川市2530円
下水道普及率 92.4%
安心・安全
建物火災出火件数 36件
人口10000人当たり 1.38件
刑法犯認知件数 1752件
人口1000人当たり 6.72件
ハザード・防災マップ あり
医療
一般病院総数 12ヶ所
一般診療所総数 179ヶ所
小児科医師数 50人
小児人口10000人当たり
16.09人
産婦人科医師数 18人
15~49歳女性人口1万人当たり
3.72人
介護保険料基準額(月額) 5600円
ごみ
家庭ごみ収集(可燃ごみ) 無料
備考
-
家庭ごみの分別方式 3分別17種〔燃やすごみ 燃やさないごみ 資源物(カン[飲食料用カン、スプレー缶・カセットボンベ]、ビン[無色びん、茶色びん、その他の色びん]、ペットボトル、紙[新聞紙・折込チラシ、段ボール、雑誌・雑がみ、紙パック]、衣類、蛍光灯、乾電池、ライター、剪定枝)〕 拠点回収:使用済小型家電 ライター インクカートリッジ 水銀使用製品
家庭ごみの戸別収集 一部実施(【加古川市さわやか収集】実施要綱に該当する高齢者、心身障がい者等を対象に家庭ごみ戸別収集を実施)
粗大ごみ収集 あり
備考
有料。事前申込制。
生ごみ処理機助成金制度 あり
上限金額 30000円
上限比率 50.0%

加古川市の住まいの給付金

暮らしデータ提供元:生活ガイド.com
※行政機関により公表していない地域及びデータがございます。東京23区以外の政令指定都市は、市全体のデータとして表示しています。
※提供データには細心の注意を払っておりますが、調査後に変更がある場合があります。 最新の情報につきましては各市区役所までお問い合わせいただくか、自治体HPなどをご確認ください。

価格相場

更新日:

加古川市の価格相場

間取り 価格相場 物件
ワンルーム - 物件一覧へ
1K・1DK - 物件一覧へ
1LDK・2K・2DK 986万円 物件一覧へ
2LDK・3K・3DK 1825万円 物件一覧へ
3LDK・4K・4DK 2551万円 物件一覧へ

周辺エリアの価格相場

エリア 価格相場 物件
高砂市 - 物件一覧へ
加古郡稲美町 - 物件一覧へ
加古郡播磨町 - 物件一覧へ
※このデータはgoo住宅・不動産に掲載されている中古一戸建ての平均価格(管理費・駐車場代などを除く)を算出したものです。ただし5戸以上の掲載があるものについてのみ対象とします。
※周辺エリアの価格相場はワンルームの平均価格(管理費・駐車場代などを除く)を算出したものです。

兵庫県の人気の街アクセスランキング(中古一戸建て)

駅別ランキング

エリア別ランキング

路線別ランキング

他の地域のランキングをもっと見る

※このランキングは2025年10月01日~31日における各ページのアクセス数から算出しています。

住まいのコラム

その他の条件から探す

  1. goo住宅・不動産
  2. 中古一戸建て
  3. 兵庫県
  4. 加古川市
  5. 八幡町船町の中古一戸建て 物件一覧

お役立ち情報