東京メトロ副都心線(東京都)の1LDKの賃貸物件(賃貸マンション・アパート) 物件一覧(55ページ目)
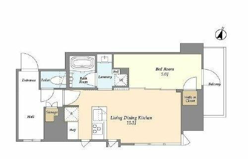
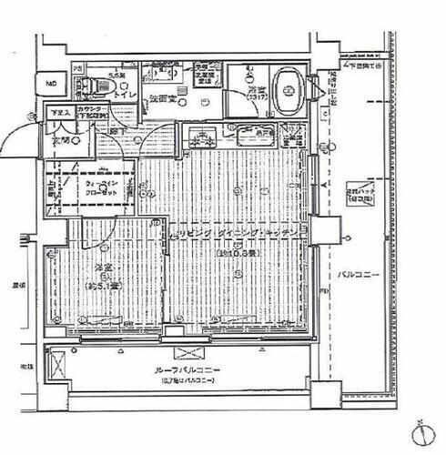
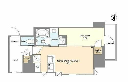
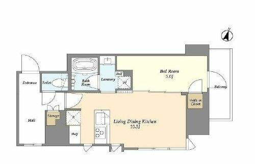
1人暮らしだけど1ルームじゃ物足りない方にチェックしてほしい1LDK物件を紹介します。1LDKはリビングやキッチンのほかに1部屋確保できるので、生活スペースを分けたい方に最適。広々としたLDKの物件を選べば、ゆったりとくつろげる理想のお部屋に住めるでしょう。数多くある1LDK物件から、好みの設備や広さを備えるお部屋を見つけてくださいね。
