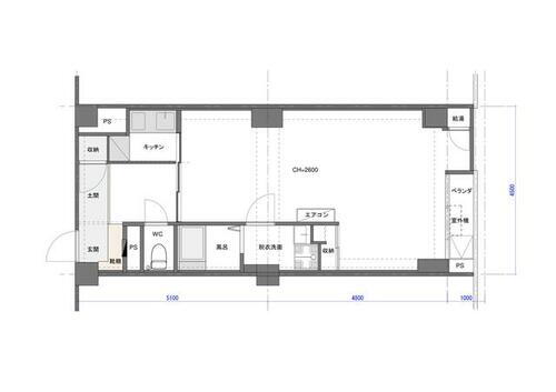
千駄ケ谷駅(東京都)のガスコンロ2クチの賃貸物件(賃貸マンション・アパート) 物件一覧(11ページ目)
毎日のお料理を効率的に楽しみたい!
ガスコンロ2クチの賃貸物件特集
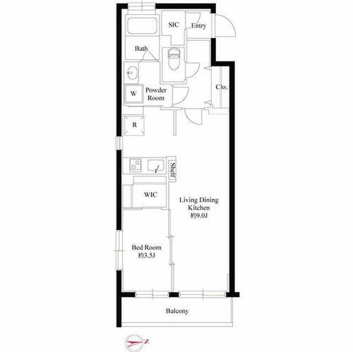
千駄ケ谷駅(東京都)のガスコンロ2クチの賃貸物件(賃貸マンション・アパート) 物件一覧(11ページ目)
毎日のお料理を効率的に楽しみたい!
ガスコンロ2クチの賃貸物件特集
ページ上部の「保存した条件」から確認できます。
ページ上部の「保存した条件」から確認できます。

ページ上部の「お気に入り」から確認できます。
ページ上部の「お気に入り」から確認できます。
