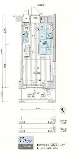
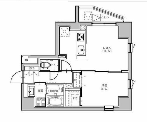
東武伊勢崎・大師線(群馬県)のデザイナーズ物件の賃貸物件(賃貸マンション・アパート) 物件一覧(72ページ目)
「ほかにはない個性的な物件に住みたい」「内装だけでなく、外観もおしゃれな物件にあこがれる」こんな希望を満たすのがデザイナーズ物件です。デザイナーズ物件は、デザイナーのこだわりが詰められたおしゃれな建物であることがポイント。ここでデザイナーズ物件を紹介するので、好みにぴったりな建物を見つけてくださいね。
