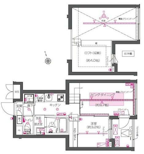
東京メトロ副都心線(東京都)のバス・トイレ別の賃貸物件(賃貸マンション・アパート) 物件一覧(257ページ目)
お部屋探しで重視されることが多いバス・トイレ別。お風呂とトイレが同じ空間にあると居心地の悪さを感じ、ゆっくりできないという方も多いのではないでしょうか?ここでは、ストレスなく快適に暮らせるバス・トイレ別の物件を紹介します。バス・トイレ別の物件は間取りや設備がさまざまなので、理想のお部屋を探してみてくださいね。
