RSS

京都河原町駅(京都府)の賃貸店舗・賃貸事務所・月極駐車場 物件一覧

京都河原町駅(京都府)の貸店舗、貸事務所、月極駐車場などの店舗・事業用物件をご紹介します。貸オフィス、貸ビル、貸倉庫、貸工場などの店舗・事業用物件情報を探すならgoo住宅・不動産。賃料・広さ・間取り・写真・人気のこだわり条件から物件を簡単検索。理想の物件探しをgoo住宅・不動産がサポートします。

294 並び替え
12345 … 8 次へ
チェックした物件を一括で
選択 物件タイプ
画像
所在地/交通
(駅/バス 所要時間)
賃料
管理費等
礼金/敷金
保証金/敷引・償却
使用部分面積
土地面積
築年月
築年数
new

京都府京都市東山区林下町

  • 貸店舗(建物一部)
  • 京都府京都市東山区林下町
    間取り図
京都府京都市東山区林下町
阪急電鉄京都線 京都河原町駅 徒歩12分
京都市営地下鉄東西線 三条京阪駅 徒歩9分
京阪電鉄本線 祇園四条駅 徒歩9分
36.3
万円

-
2ヶ月 / 2ヶ月
なし / -
64.13m2
-
1991年1月(築34年11ヶ月)
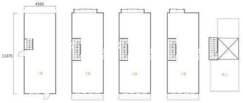
  • 1階
  • 駅から徒歩10分以内
バイリンク(株)

リアライズ花見小路ビル

  • 貸店舗(建物一部)
  • リアライズ花見小路ビル
    間取り図
京都府京都市東山区富永町
阪急電鉄京都線 京都河原町駅 徒歩6分
京阪電鉄本線 祇園四条駅 徒歩2分
京阪電鉄本線 三条駅 徒歩7分
39.8
万円

28,424円
なし / 2ヶ月
なし / -
85.45m2
-
1991年3月(築34年9ヶ月)
  • 即引き渡し可
  • 駅から徒歩5分以内
  • 2階以上
  • エレベーター
(株)ムカイ・エンタープライズ

四条烏丸セントラルビル

  • 貸店舗・事務所
  • 四条烏丸セントラルビル
    間取り図
京都府京都市下京区立売西町
阪急電鉄京都線 京都河原町駅 徒歩3分
京都市営地下鉄烏丸線 四条駅 徒歩3分
阪急電鉄京都線 烏丸駅 徒歩2分
224.4
万円

22,000円
1ヶ月 / 10ヶ月
なし / -
269.76m2
-
2023年5月(築2年7ヶ月)
  • 24時間セキュリティ
  • 即引き渡し可
  • 築3年以内
  • 駅から徒歩5分以内
  • 2階以上
  • エレベーター
(株)レーサム

中和木屋町ビル 2階店舗

  • 貸店舗(建物一部)
  • 中和木屋町ビル 2階店舗
    間取り図
京都府京都市中京区河原町通三条下る2丁目山崎町
阪急電鉄京都線 京都河原町駅 徒歩7分
京阪電鉄本線 三条駅 徒歩5分
京都市営地下鉄東西線 京都市役所前駅 徒歩6分
49.5
万円

なし
なし / なし
3ヶ月 / -
92.51m2
-
2005年1月(築20年11ヶ月)
  • 即引き渡し可
  • 飲食店可
  • 駅から徒歩5分以内
  • 2階以上
(株)プレゼンス

清美ビル

  • 貸店舗(建物一部)
  • 清美ビル
    間取り図
京都府京都市中京区河原町通三条下る大黒町
阪急電鉄京都線 京都河原町駅 徒歩6分
京阪電鉄本線 三条駅 徒歩5分
京都市営地下鉄東西線 京都市役所前駅 徒歩6分
50.46
万円

38,500円
なし / なし
6ヶ月 / -
54.05m2
-
2021年10月(築4年2ヶ月)
  • 即引き渡し可
  • 駐車場(近隣含)
  • 築5年以内
  • 駅から徒歩5分以内
  • 2階以上
  • エレベーター
賃貸のエリッツ 四条烏丸テナント係 (株)エリッツ

下京区茶磨屋町 店舗事務所

  • 貸店舗・事務所
  • 下京区茶磨屋町 店舗事務所
    間取り図
京都府京都市下京区茶磨屋町
阪急電鉄京都線 京都河原町駅 徒歩6分
京阪電鉄本線 清水五条駅 徒歩8分
京阪電鉄本線 祇園四条駅 徒歩7分
66
万円

なし
なし / なし
3ヶ月 / -
113m2
-
1950年1月(築75年11ヶ月)
  • 飲食店可
  • 駅から徒歩7分以内
(株)ムカイ・エンタープライズ

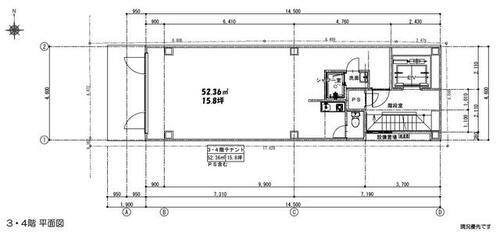
アイカーサ柳馬場

  • 貸店舗(建物一部)
  • アイカーサ柳馬場
    間取り図
京都府京都市下京区永原町
阪急電鉄京都線 京都河原町駅 徒歩8分
阪急電鉄京都線 烏丸駅 徒歩7分
京都市営地下鉄烏丸線 四条駅 徒歩7分
30.8
万円

なし
110万円 / 18万円
なし / 実費
52.36m2
-
2021年1月(築4年11ヶ月)
  • 築5年以内
  • 駅から徒歩7分以内
  • 2階以上
(株)グッドハウジング 四条烏丸店 店舗ネットワーク四条烏丸店

京都府京都市東山区毘沙門町

  • 貸店舗(建物一部)
  • 京都府京都市東山区毘沙門町
京都府京都市東山区毘沙門町
阪急電鉄京都線 京都河原町駅 徒歩14分
京阪電鉄本線 祇園四条駅 徒歩11分
京阪電鉄本線 清水五条駅 徒歩16分
29.7
万円

-
1ヶ月 / 3ヶ月
なし / -
111.78m2
-
1978年12月(築47年)
  • 駅から徒歩15分以内
  • 2階以上
店舗そのままオークション京都市中京・上京担当 (株)tutor

SHICATA BLDG

  • 貸事務所
  • SHICATA BLDG
    間取り図
京都府京都市下京区御旅町
阪急電鉄京都線 京都河原町駅 徒歩1分
京阪電鉄本線 祇園四条駅 徒歩4分
京都市営地下鉄東西線 京都市役所前駅 徒歩11分
111.86
万円

なし
なし / 342.29万円
なし / -
140.09m2
-
1969年9月(築56年3ヶ月)
  • 即引き渡し可
  • 駅から徒歩1分以内
  • 2階以上
  • エレベーター
賃貸のエリッツ 四条烏丸テナント係 (株)エリッツ

SHICATA BLDG

  • 貸事務所
  • SHICATA BLDG
    間取り図
京都府京都市下京区御旅町
阪急電鉄京都線 京都河原町駅 徒歩1分
京阪電鉄本線 祇園四条駅 徒歩4分
京都市営地下鉄東西線 京都市役所前駅 徒歩11分
122.76
万円

なし
なし / 473.12万円
なし / -
153.72m2
-
1969年9月(築56年3ヶ月)
  • 即引き渡し可
  • 駅から徒歩1分以内
  • 2階以上
  • エレベーター
賃貸のエリッツ 四条烏丸テナント係 (株)エリッツ

SHICATA BLDG

  • 貸事務所
  • SHICATA BLDG
    間取り図
京都府京都市下京区御旅町
阪急電鉄京都線 京都河原町駅 徒歩1分
京阪電鉄本線 祇園四条駅 徒歩4分
京都市営地下鉄東西線 京都市役所前駅 徒歩11分
203.5
万円

なし
なし / 12ヶ月
なし / -
305.86m2
-
1969年9月(築56年3ヶ月)
  • 即引き渡し可
  • 駅から徒歩1分以内
  • 2階以上
  • エレベーター
賃貸のエリッツ 四条烏丸テナント係 (株)エリッツ

寺町詩の小路ビル

  • 貸店舗(建物一部)
  • 寺町詩の小路ビル
京都府京都市中京区東大文字町
阪急電鉄京都線 京都河原町駅 徒歩2分
京阪電鉄本線 祇園四条駅 徒歩4分
阪急電鉄京都線 烏丸駅 徒歩4分
53.59
万円

81,200円
48.72万円 / なし
113.68万円 / -
133.98m2
-
1998年1月(築27年11ヶ月)
  • 駅から徒歩5分以内
  • 2階以上
  • エレベーター
(株)ムカイ・エンタープライズ

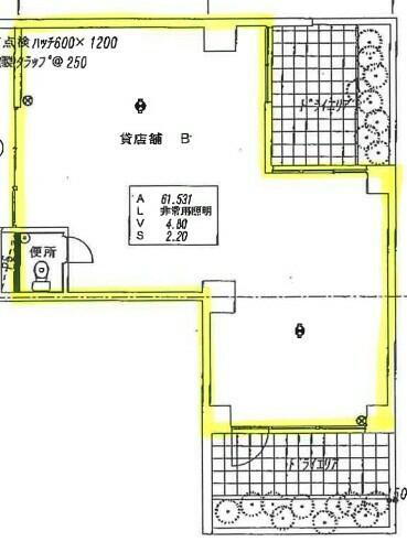
京都府京都市下京区扇酒屋町

  • 貸店舗(建物一部)
  • 京都府京都市下京区扇酒屋町
    間取り図
京都府京都市下京区扇酒屋町
阪急電鉄京都線 京都河原町駅 徒歩10分
京都市営地下鉄烏丸線 四条駅 徒歩3分
阪急電鉄京都線 烏丸駅 徒歩3分
29.7
万円

11,000円
なし / なし
132万円 / 解約時0.50ヶ月償却
61.53m2
-
1995年3月(築30年9ヶ月)
  • 駅から徒歩5分以内
  • 2階以上
(株)ハウスネットワーク 四条店

京阪四条河原町ビル

  • 貸事務所
  • 京阪四条河原町ビル
    間取り図
京都府京都市下京区河原町通松原上る2丁目富永町
阪急電鉄京都線 京都河原町駅 徒歩3分
京阪電鉄本線 祇園四条駅 徒歩7分
京都市営地下鉄烏丸線 四条駅 徒歩11分
37.01
万円

なし
なし / 12ヶ月
なし / -
85.54m2
-
1982年1月(築43年11ヶ月)
  • 即引き渡し可
  • 駐車場(近隣含)
  • 駅から徒歩5分以内
  • 2階以上
  • エレベーター
賃貸のエリッツ 四条烏丸テナント係 (株)エリッツ

京阪四条河原町ビル

  • 貸事務所
  • 京阪四条河原町ビル
    間取り図
京都府京都市下京区河原町通松原上る2丁目富永町
阪急電鉄京都線 京都河原町駅 徒歩3分
京阪電鉄本線 祇園四条駅 徒歩7分
京都市営地下鉄烏丸線 四条駅 徒歩11分
59.38
万円

なし
なし / 12ヶ月
なし / -
137.25m2
-
1982年1月(築43年11ヶ月)
  • 即引き渡し可
  • 駐車場(近隣含)
  • 駅から徒歩5分以内
  • 2階以上
  • エレベーター
賃貸のエリッツ 四条烏丸テナント係 (株)エリッツ

京阪四条河原町ビル

  • 貸事務所
  • 京阪四条河原町ビル
    間取り図
京都府京都市下京区河原町通松原上る2丁目富永町
阪急電鉄京都線 京都河原町駅 徒歩3分
京阪電鉄本線 祇園四条駅 徒歩7分
京都市営地下鉄烏丸線 四条駅 徒歩11分
73.92
万円

なし
なし / 12ヶ月
なし / -
170.82m2
-
1982年1月(築43年11ヶ月)
  • 即引き渡し可
  • 駐車場(近隣含)
  • 駅から徒歩5分以内
  • 2階以上
  • エレベーター
賃貸のエリッツ 四条烏丸テナント係 (株)エリッツ

TM四条寺町ビル

  • 貸事務所
  • TM四条寺町ビル
    間取り図
京都府京都市下京区寺町通四条下る貞安前之町
阪急電鉄京都線 京都河原町駅 徒歩3分
京都市営地下鉄烏丸線 四条駅 徒歩8分
京阪電鉄本線 祇園四条駅 徒歩8分
110
万円

なし
なし / 12ヶ月
なし / -
159.27m2
-
2023年2月(築2年10ヶ月)
  • 即引き渡し可
  • 築3年以内
  • 駅から徒歩5分以内
  • 2階以上
  • エレベーター
賃貸のエリッツ 四条烏丸テナント係 (株)エリッツ

古城ビル

  • 貸店舗(建物一部)
  • 古城ビル
    間取り図
京都府京都市中京区河原町通蛸薬師下る塩屋町
阪急電鉄京都線 京都河原町駅 徒歩3分
京阪電鉄鴨東線 三条駅 徒歩8分
京都市営地下鉄東西線 京都市役所前駅 徒歩8分
143
万円

220,000円
なし / なし
10ヶ月 / -
266.77m2
-
1967年3月(築58年9ヶ月)
  • 即引き渡し可
  • 駐車場(近隣含)
  • 駅から徒歩5分以内
  • 2階以上
賃貸のエリッツ 四条烏丸テナント係 (株)エリッツ

京都府京都市下京区永原町

  • 貸店舗・事務所
  • 京都府京都市下京区永原町
    間取り図
京都府京都市下京区永原町
阪急電鉄京都線 京都河原町駅 徒歩7分
京都市営地下鉄烏丸線 四条駅 徒歩4分
阪急電鉄京都線 烏丸駅 徒歩4分
30.8
万円

33,000円
110万円 / 18万円
なし / -
52.36m2
-
2021年1月(築4年11ヶ月)
  • 即引き渡し可
  • 築5年以内
  • 駅から徒歩5分以内
  • 2階以上
  • エレベーター
(株)GOLLE 本社
チェックした物件を一括で

TM四条寺町ビル

  • 貸店舗・事務所
  • TM四条寺町ビル
    間取り図
京都府京都市下京区貞安前之町
阪急電鉄京都線 京都河原町駅 徒歩4分
京阪電鉄本線 祇園四条駅 徒歩8分
121
万円

なし
なし / 12ヶ月
なし / 100%
159.29m2
-
2023年2月(築2年10ヶ月)
  • 築3年以内
  • 駅から徒歩5分以内
  • 2階以上
  • エレベーター
(株)グッドハウジング 四条烏丸店 店舗ネットワーク四条烏丸店

TM四条寺町ビル

  • 貸店舗・事務所
  • TM四条寺町ビル
    間取り図
京都府京都市下京区貞安前之町
阪急電鉄京都線 京都河原町駅 徒歩4分
京阪電鉄本線 祇園四条駅 徒歩8分
121
万円

なし
なし / 12ヶ月
なし / 100%
159.29m2
-
2023年2月(築2年10ヶ月)
  • 築3年以内
  • 駅から徒歩5分以内
  • 2階以上
  • エレベーター
シャーメゾンショップ (株)MY HOUSE

TM四条寺町ビル

  • 貸店舗・事務所
  • TM四条寺町ビル
    間取り図
京都府京都市下京区貞安前之町
阪急電鉄京都線 京都河原町駅 徒歩4分
京阪電鉄本線 祇園四条駅 徒歩8分
121
万円

なし
なし / 12ヶ月
なし / 100%
159.29m2
-
2023年2月(築2年10ヶ月)
  • 築3年以内
  • 駅から徒歩5分以内
  • 2階以上
  • エレベーター
(株)FirstLine

京都錦HKビル

  • 貸店舗・事務所
  • 京都錦HKビル
    間取り図
京都府京都市中京区富小路通錦小路下る西大文字町
阪急電鉄京都線 京都河原町駅 徒歩5分
阪急電鉄京都線 烏丸駅 徒歩6分
京都市営地下鉄烏丸線 四条駅 徒歩6分
8.8
万円

13,200円
なし / なし
なし / -
18m2
-
1977年3月(築48年9ヶ月)
  • 駅から徒歩5分以内
  • 2階以上
  • エレベーター
ハウスコムFC京都大宮店 (有)住宅宝庫

京都府京都市東山区五条橋東2丁目

  • 貸事務所
  • 京都府京都市東山区五条橋東2丁目
    間取り図
京都府京都市東山区五条橋東2丁目
阪急電鉄京都線 京都河原町駅 徒歩16分
京阪電鉄本線 清水五条駅 徒歩5分
28.6
万円

なし
1ヶ月 / 2ヶ月
なし / -
137.73m2
-
1969年10月(築56年2ヶ月)
  • 即引き渡し可
  • 駅から徒歩5分以内
  • 2階以上
  • エレベーター
(株)ケイ・プランニング

京都府京都市下京区麩屋町通四条下る八文字町

  • 貸店舗(建物一部)
  • 京都府京都市下京区麩屋町通四条下る八文字町
    間取り図
京都府京都市下京区麩屋町通四条下る八文字町
阪急電鉄京都線 京都河原町駅 徒歩5分
阪急電鉄京都線 烏丸駅 徒歩8分
京都市営地下鉄烏丸線 四条駅 徒歩8分
48.4
万円

-
なし / なし
132万円 / -
81.69m2
-
1991年6月(築34年6ヶ月)
  • 1階
  • 駅から徒歩5分以内
(株)ハウスネットワーク 四条店

ハイレックスビル

  • 貸店舗・事務所
  • ハイレックスビル
京都府京都市下京区四条通寺町西入奈良物町
阪急電鉄京都線 京都河原町駅 徒歩5分
京阪電鉄本線 祇園四条駅 徒歩8分
66
万円

なし
なし / なし
720万円 / -
130.42m2
-
1998年11月(築27年1ヶ月)
  • 駅から徒歩5分以内
  • 2階以上
  • エレベーター
(株)ムカイ・エンタープライズ

イクスピリオド京都河原町

  • 貸事務所
  • イクスピリオド京都河原町
    間取り図
京都府京都市下京区高辻通麩屋町西入鍵屋町
阪急電鉄京都線 京都河原町駅 徒歩6分
阪急電鉄京都線 烏丸駅 徒歩9分
京都市営地下鉄烏丸線 四条駅 徒歩9分
6.82
万円

5,500円
1.1ヶ月 / 1ヶ月
なし / -
20.38m2
-
2018年1月(築7年11ヶ月)
  • 1階
  • 即引き渡し可
  • 駐車場(近隣含)
  • 築10年以内
  • 駅から徒歩7分以内
  • エレベーター
賃貸のエリッツ 四条烏丸テナント係 (株)エリッツ

京都府京都市東山区富永町

  • 貸店舗(建物一部)
  • 京都府京都市東山区富永町
    間取り図
京都府京都市東山区富永町
阪急電鉄京都線 京都河原町駅 徒歩9分
京阪電鉄本線 祇園四条駅 徒歩6分
京都市営地下鉄東西線 三条京阪駅 徒歩9分
11.34
万円

9,499円
1ヶ月 / 2ヶ月
なし / -
28.41m2
-
1991年3月(築34年9ヶ月)
  • 即引き渡し可
  • 駅から徒歩7分以内
  • 2階以上
  • エレベーター
(同)Seven Life

ドルチェヴィータ京都六角(テナント)

  • 貸店舗(建物一部)
  • ドルチェヴィータ京都六角(テナント)
    間取り図
京都府京都市中京区大黒町
阪急電鉄京都線 京都河原町駅 徒歩9分
京都市営地下鉄東西線 京都市役所前駅 徒歩6分
京阪電鉄本線 祇園四条駅 徒歩11分
16.5
万円

11,000円
なし / 45万円
なし / -
59m2
-
1988年11月(築37年1ヶ月)
  • 即引き渡し可
  • 駐車場(近隣含)
  • 駅から徒歩7分以内
  • 2階以上
  • エレベーター
賃貸のエリッツ 四条烏丸テナント係 (株)エリッツ

カミュエラ四条

  • 貸店舗・事務所
  • カミュエラ四条
    間取り図
京都府京都市下京区八文字町
阪急電鉄京都線 京都河原町駅 徒歩6分
48.4
万円

なし
なし / なし
3ヶ月 / -
81.69m2
-
1991年6月(築34年6ヶ月)
  • 1階
  • 駅から徒歩7分以内
(株)ムカイ・エンタープライズ

京都府京都市下京区京極町

  • 貸事務所
  • 京都府京都市下京区京極町
    間取り図
京都府京都市下京区京極町
阪急電鉄京都線 京都河原町駅 徒歩8分
京阪電鉄本線 清水五条駅 徒歩7分
京阪電鉄本線 祇園四条駅 徒歩11分
4.84
万円

11,000円
1ヶ月 / 5万円
なし / -
12.83m2
-
1988年11月(築37年1ヶ月)
  • 1階
  • 駅から徒歩7分以内
(株)ハウスネットワーク 四条店

下京区恵美須之町店舗

  • 貸店舗(建物一部)
  • NO PHOTO
京都府京都市下京区寺町通仏光寺下る恵美須之町
阪急電鉄京都線 京都河原町駅 徒歩7分
京阪電鉄本線 祇園四条駅 徒歩11分
京都市営地下鉄烏丸線 四条駅 徒歩12分
36.3
万円

33,000円
なし / なし
200万円 / -
112.65m2
-
1989年7月(築36年5ヶ月)
  • 即引き渡し可
  • 駐車場(近隣含)
  • 駅から徒歩7分以内
  • 2階以上
賃貸のエリッツ 四条烏丸テナント係 (株)エリッツ

枡儀洛央ビル

  • 貸店舗(建物一部)
  • 枡儀洛央ビル
    間取り図
京都府京都市下京区石不動之町
阪急電鉄京都線 京都河原町駅 徒歩8分
京阪電鉄本線 清水五条駅 徒歩7分
京都市営地下鉄烏丸線 四条駅 徒歩10分
57.2
万円

なし
1.1ヶ月 / なし
8ヶ月 / 解約時30.00%償却
91.82m2
-
2013年10月(築12年2ヶ月)
  • 1階
  • 即引き渡し可
  • 駐車場(近隣含)
  • 駅から徒歩7分以内
  • エレベーター
賃貸のエリッツ 四条烏丸テナント係 (株)エリッツ

枡儀洛央ビル

  • 貸店舗(建物一部)
  • 枡儀洛央ビル
    間取り図
京都府京都市下京区石不動之町
阪急電鉄京都線 京都河原町駅 徒歩8分
京阪電鉄本線 清水五条駅 徒歩7分
京都市営地下鉄烏丸線 四条駅 徒歩10分
100.1
万円

なし
1.1ヶ月 / なし
8ヶ月 / 解約時30.00%償却
172.01m2
-
2013年10月(築12年2ヶ月)
  • 1階
  • 即引き渡し可
  • 駐車場(近隣含)
  • 駅から徒歩7分以内
  • エレベーター
賃貸のエリッツ 四条烏丸テナント係 (株)エリッツ

京都府京都市下京区河原町通高辻下る清水町

  • 貸店舗(建物一部)
  • 京都府京都市下京区河原町通高辻下る清水町
    間取り図
京都府京都市下京区河原町通高辻下る清水町
阪急電鉄京都線 京都河原町駅 徒歩8分
京阪電鉄本線 祇園四条駅 徒歩10分
京都市営地下鉄烏丸線 四条駅 徒歩13分
6.93
万円

-
10万円 / 10万円
なし / -
22.18m2
-
1978年4月(築47年8ヶ月)
  • 即引き渡し可
  • 駅から徒歩10分以内
  • 2階以上
若山不動産

ホテルトラベルティン1階店舗

  • 貸店舗(建物一部)
  • ホテルトラベルティン1階店舗
    間取り図
京都府京都市下京区難波町
阪急電鉄京都線 京都河原町駅 徒歩8分
阪急電鉄京都線 烏丸駅 徒歩11分
京都市営地下鉄烏丸線 四条駅 徒歩14分
88
万円

なし
なし / なし
6ヶ月 / -
123.9m2
-
2018年4月(築7年8ヶ月)
  • 1階
  • 即引き渡し可
  • 駐車場(近隣含)
  • 築10年以内
  • 駅から徒歩10分以内
  • エレベーター
賃貸のエリッツ 四条烏丸テナント係 (株)エリッツ

京都府京都市東山区小松町

  • 貸店舗
  • 京都府京都市東山区小松町
    間取り図
京都府京都市東山区小松町
阪急電鉄京都線 京都河原町駅 徒歩12分
京阪電鉄本線 祇園四条駅 徒歩9分
京阪電鉄本線 清水五条駅 徒歩15分
66
万円

なし
なし / 250万円
なし / -
204.72m2
-
1989年8月(築36年4ヶ月)
  • 飲食店可
  • 駅から徒歩10分以内
(有)アイトス

京都府京都市下京区麩屋町通高辻下る鍵屋町

  • 貸店舗・事務所
  • 京都府京都市下京区麩屋町通高辻下る鍵屋町
    間取り図
京都府京都市下京区麩屋町通高辻下る鍵屋町
阪急電鉄京都線 京都河原町駅 徒歩10分
京都市営地下鉄烏丸線 四条駅 徒歩11分
京阪電鉄本線 清水五条駅 徒歩10分
6.82
万円

5,500円
6.82万円 / 1ヶ月
なし / -
20.38m2
-
2018年1月(築7年11ヶ月)
  • 即引き渡し可
  • 築10年以内
  • 駅から徒歩10分以内
  • 2階以上
  • エレベーター
(株)GOLLE 本社

Dビルディング先斗町

  • 貸店舗・事務所
  • Dビルディング先斗町
    間取り図
京都府京都市中京区柏屋町
阪急電鉄京都線 京都河原町駅 徒歩4分
京阪電鉄本線 祇園四条駅 徒歩4分
京阪電鉄本線 三条駅 徒歩9分
404.25
万円

-
なし / なし
10ヶ月 / -
194.46m2
-
2004年4月(築21年8ヶ月)
  • 即引き渡し可
  • 飲食店可
  • 駅から徒歩5分以内
(株)タウンホーム

RINsen Avenueビル

  • 貸店舗(建物一部)
  • RINsen Avenueビル
    間取り図
京都府京都市中京区東木屋町通四条上る2丁目下樵木町
阪急電鉄京都線 京都河原町駅 徒歩5分
京阪電鉄本線 祇園四条駅 徒歩6分
京都市営地下鉄東西線 三条京阪駅 徒歩8分
41.8
万円

44,000円
なし / なし
6ヶ月 / -
54.79m2
-
2002年4月(築23年8ヶ月)
  • 即引き渡し可
  • 飲食店可
  • 駅から徒歩5分以内
  • 2階以上
Route508
チェックした物件を一括で
  • チェックした物件をまとめて
294
表示件数 12345 … 8 次へ
OCN×ドコモ光新規お申込みで合計最大137,280円相当おトク!特典の内訳・適用条件など詳細はこちら

条件を選択

賃料
広さ
物件タイプ
築年数
駅からの時間
こだわり条件
画像
情報の新しさ
フリーワード

京都市下京区の暮らしデータ

人口などの統計情報

世帯数 728744世帯
人口総数 1379529人
転入者数 85315人
転入率(人口1000人当たり)
61.84人
転出者数 80567人
転出率(人口1000人当たり)
58.40人
土地平均価格
住宅地
220880円/m2
商業地
1290411円/m2

京都市下京区の治安・ごみ収集情報

公共料金・インフラ

ガス料金(22m3使用した場合の月額) 大阪瓦斯株式会社4544円
水道料金(口径20mmで20m3の月額) 京都市3014円
下水道料金(20m3を使用した場合の月額) 京都市2013円
下水道普及率 99.5%

安心・安全

建物火災出火件数 158件
人口10000人当たり
1.08件
刑法犯認知件数 8104件
人口1000人当たり
5.54件
ハザード・防災マップ あり

医療

一般病院総数 89ヶ所
一般診療所総数 1622ヶ所
小児科医師数 397人
小児人口10000人当たり
27.26人
産婦人科医師数 201人
15~49歳女性人口1万人当たり
7.16人
介護保険料基準額(月額) 7160円

ごみ

家庭ごみ収集(可燃ごみ) 有料
備考
指定ごみ袋有料。
家庭ごみの分別方式 5分別8種〔燃やすごみ 缶・びん・ペットボトル プラスチック類 小型金属類・スプレー缶 雑がみ〕 拠点回収:移動式拠点回収):古紙(新聞・ダンボール) 雑がみ 紙パック 使用済てんぷら油 古着類 乾電池 ボタン電池 充電式電池 蛍光管 水銀体温計・水銀血圧計 小型家電 磁気テープ類 インクカートリッジ リユースびん 刃物類 使い捨てライター 陶磁器製の食器 せん定枝木の枝 石油類 医薬品・農薬 化学薬品・塗料・ワックス・絵の具 洗浄剤
家庭ごみの戸別収集 一部実施(原則定点としているが、一部地域で狭路等やむを得ない事情がある場合のみ実施。また、ごみ出しが困難な高齢者や障害のある方などの生活支援の一つとして、御自宅の玄関先までごみの収集に伺う「ごみ収集福祉サービス[まごころ収集]」を実施)
粗大ごみ収集 あり
備考
有料。事前申込制。
生ごみ処理機助成金制度 なし
上限金額
-
上限比率
-
暮らしデータ提供元:生活ガイド.com
※行政機関により公表していない地域及びデータがございます。東京23区以外の政令指定都市は、市全体のデータとして表示しています。
※提供データには細心の注意を払っておりますが、調査後に変更がある場合があります。 最新の情報につきましては各市区役所までお問い合わせいただくか、自治体HPなどをご確認ください。

家賃相場

更新日:2025年11月17日

京都河原町駅の家賃相場

  50㎡~80㎡ 80㎡~100㎡ 100㎡~150㎡ 150㎡~200㎡ 200㎡以上
貸事務所 31.4万円 50.7万円 66.6万円 120.8万円 238.4万円
貸店舗 35万円 73.4万円 73.1万円 123.1万円 161.9万円
貸土地 - - - - -
貸ビル・貸倉庫・その他 - - - - -
  月極駐車場
月極駐車場 4.9万円

周辺駅の家賃相場

  烏丸 大宮 西院 西京極
貸事務所 21.5万円 17.9万円 19.3万円 14.8万円 -
貸店舗 23.8万円 19.4万円 24万円 15.2万円 16.6万円
貸土地 - - - - -
貸ビル・貸倉庫・その他 - - - - -
月極駐車場 3万円 2.8万円 1.5万円 1.7万円 1.2万円
※このデータはgoo住宅・不動産に掲載されている店舗の平均賃料(管理費・駐車場代などを除く)を算出したものです。ただし5戸以上の掲載があるものについてのみ対象とします。
※周辺駅の家賃相場は広さ50㎡~80㎡と駐車場の平均賃料を算出したものです。

京都府の人気の街アクセスランキング(店舗・事業用)

※このランキングは2025年10月01日~31日における各ページのアクセス数から算出しています。

他のエリアから探す

特集から探す

間取り図あり月極駐車場・貸し駐車場貸店舗貸事務所貸倉庫

アプリで簡単 物件探し 大手不動産サイトの情報から一括検!プッシュ通知で物件を見逃さない
App Storeからダウンロード Google Playで手に入れよう QRコード