RSS

海老名市(神奈川県) の貸倉庫 物件一覧

神奈川県海老名市の貸倉庫などの店舗・事業用物件をご紹介します。貸オフィス、貸ビル、貸倉庫、貸工場などの店舗・事業用物件情報を探すならgoo住宅・不動産。賃料・広さ・間取り・写真・人気のこだわり条件から物件を簡単検索。理想の物件探しをgoo住宅・不動産がサポートします。

貸倉庫の店舗・事業用物件特集
事務所や店舗が狭く、事業に必要な物品や店舗に置く在庫を保管できないとお悩みではありませんか?建物内に収納スペースを確保できないときは、貸倉庫を借りることがおすすめ。貸倉庫があれば、在庫やすぐに使わない物品を保管できるため、店舗や事務所が狭くても安心です。ここでは、収納場所の確保にお困りの方にチェックしてほしい貸倉庫を紹介します。

貸倉庫の店舗・事業用物件特集

探したい物件のエリア・検索条件を変更して再検索

エリア
検索条件 物件タイプ:貸ビル・貸倉庫・その他
6 並び替え
チェックした物件を一括で
選択 物件タイプ
画像
所在地/交通
(駅/バス 所要時間)
賃料
管理費等
礼金/敷金
保証金/敷引・償却
使用部分面積
土地面積
築年月
築年数

東柏ヶ谷4丁目

  • 貸倉庫
  • 東柏ヶ谷4丁目
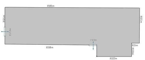
    間取り図
神奈川県海老名市東柏ケ谷4丁目
相鉄本線 さがみ野駅 徒歩6分
相鉄本線 相模大塚駅 徒歩14分
165
万円

なし
2ヶ月 / 3ヶ月
なし / -
672m2
985.48m2
1998年6月(築27年6ヶ月)
  • 1階
  • 駅から徒歩7分以内
(株)アクティブイイダ

栁田倉庫

  • 貸倉庫
  • 栁田倉庫
    間取り図
神奈川県海老名市杉久保南1丁目
小田急小田原線 海老名駅 バス15分/「新道」バス停 停歩3分
55
万円

なし
1ヶ月 / 3ヶ月
なし / -
211.64m2
489.9m2
1987年12月(築38年)
  • 1階
  • 駐車場(近隣含)
(株)アクティブイイダ

大谷南 貸店舗・貸倉庫

  • 貸倉庫
  • 大谷南 貸店舗・貸倉庫
    間取り図
神奈川県海老名市大谷南3丁目
小田急小田原線 海老名駅 徒歩31分
相鉄本線 海老名駅 徒歩29分
12.01
万円

なし
1ヶ月 / 3ヶ月
なし / -
103m2
-
1974年6月(築51年6ヶ月)
  • 1階
厚木倉庫(株)

大谷南 貸店舗・貸倉庫

  • 貸作業所
  • 大谷南 貸店舗・貸倉庫
    間取り図
神奈川県海老名市大谷南3丁目
小田急小田原線 海老名駅 徒歩31分
相鉄本線 海老名駅 徒歩29分
12.01
万円

なし
1ヶ月 / 3ヶ月
なし / -
103m2
-
1974年6月(築51年6ヶ月)
  • 1階
厚木倉庫(株)

C&Cハイツ海老名

  • 貸倉庫
  • C&Cハイツ海老名
    間取り図
神奈川県海老名市中央3丁目
小田急小田原線 海老名駅 徒歩4分
JR相模線 海老名駅 徒歩5分
39.8
万円

-
2ヶ月 / 3ヶ月
なし / -
202.02m2
-
1987年9月(築38年3ヶ月)
  • 即引き渡し可
  • 駅から徒歩5分以内
  • 2階以上
(株)NEWS

大谷南事務所付倉庫

  • 貸倉庫
  • 大谷南事務所付倉庫
    間取り図
神奈川県海老名市大谷南4丁目
JR相模線 社家駅 徒歩10分
50.6
万円

なし
50.6万円 / なし
400万円 / -
463.7m2
-
1992年1月(築33年11ヶ月)
  • 1階
  • 即引き渡し可
  • 駐車場(近隣含)
  • 駅から徒歩10分以内
(株)西田コーポレーションAnnex・1
チェックした物件を一括で
  • チェックした物件をまとめて
6
表示件数

申し訳ございません。条件にあう物件が少なかったため
以下は「伊勢原市と座間市」の物件情報を表示しています。

伊勢原市と座間市の賃貸店舗・賃貸事務所・事業用 物件一覧

チェックした物件を一括で
選択 物件タイプ
画像
所在地/交通
(駅/バス 所要時間)
賃料
管理費等
礼金/敷金
保証金/敷引・償却
使用部分面積
土地面積
築年月
築年数

神奈川県座間市広野台2丁目

  • 貸倉庫
  • 神奈川県座間市広野台2丁目
    間取り図
神奈川県座間市広野台2丁目
小田急小田原線 相武台前駅 徒歩18分
小田急小田原線 小田急相模原駅 徒歩29分
454.29
万円

-
なし / 6ヶ月
なし / -
2676.98m2
-
2015年6月(築10年6ヶ月)
  • 即引き渡し可
  • 駅から徒歩20分以内
  • 2階以上
(株)立和コーポレーション

神奈川県座間市広野台2丁目

  • 貸倉庫
  • 神奈川県座間市広野台2丁目
    間取り図
神奈川県座間市広野台2丁目
小田急小田原線 相武台前駅 徒歩18分
小田急小田原線 小田急相模原駅 徒歩29分
950.39
万円

-
なし / 6ヶ月
なし / -
5600.32m2
-
2015年6月(築10年6ヶ月)
  • 駅から徒歩20分以内
  • 2階以上
(株)立和コーポレーション

小田急相模原駅前 住居付店舗

  • 貸その他
  • 小田急相模原駅前 住居付店舗
    間取り図
神奈川県座間市相模が丘1丁目
小田急小田原線 小田急相模原駅 徒歩1分
29.15
万円

なし
1ヶ月 / 2ヶ月
なし / -
45.13m2
81.98m2
2023年8月(築2年4ヶ月)
  • 1階
  • 即引き渡し可
  • 飲食店可
  • 駐車場(近隣含)
  • 築3年以内
  • 駅から徒歩1分以内
三光ホーム(株)

コーポさつきⅡ

  • 貸倉庫
  • コーポさつきⅡ
    間取り図
神奈川県座間市緑ケ丘4丁目
小田急小田原線 相武台前駅 徒歩7分
5
万円

なし
なし / 2ヶ月
なし / -
43.8m2
-
1992年1月(築33年11ヶ月)
  • 1階
  • 駅から徒歩7分以内
(有)瀬戸不動産

神奈川県座間市ひばりが丘4丁目

  • 貸工場
  • 神奈川県座間市ひばりが丘4丁目
    間取り図
神奈川県座間市ひばりが丘4丁目
相鉄本線 さがみ野駅 徒歩10分
相鉄本線 相模大塚駅 徒歩19分
相鉄本線 かしわ台駅 徒歩29分
275
万円

-
1ヶ月 / なし
6ヶ月 / 解約時1.10ヶ月償却
1064.88m2
-
1962年3月(築63年9ヶ月)
  • 駐車場(近隣含)
  • 駅から徒歩10分以内
(株)ウイングホーム

神奈川県座間市栗原中央5丁目

  • 貸倉庫
  • 神奈川県座間市栗原中央5丁目
    間取り図
神奈川県座間市栗原中央5丁目
相鉄本線 さがみ野駅 バス6分/「栗原交番前」バス停 停歩4分
205.7
万円

なし
1ヶ月 / 3ヶ月
なし / -
2005m2
-
1969年1月(築56年11ヶ月)
  • 1階
  • 即引き渡し可
イチヒロハウジング(有)

伊勢原市串橋倉庫

  • 貸倉庫
  • 伊勢原市串橋倉庫
    間取り図
神奈川県伊勢原市串橋
小田急小田原線 鶴巻温泉駅 徒歩26分
小田急小田原線 伊勢原駅 徒歩38分
27.5
万円

なし
2ヶ月 / 3ヶ月
なし / -
90m2
173.5m2
2023年9月(築2年3ヶ月)
  • 1階
  • 即引き渡し可
  • 駐車場(近隣含)
  • 築3年以内
(有)大東不動産

神奈川県伊勢原市上粕屋

  • 貸寮
  • 神奈川県伊勢原市上粕屋
    間取り図
神奈川県伊勢原市上粕屋
小田急小田原線 伊勢原駅 バス10分/「台久保」バス停 停歩8分
18
万円

なし
1ヶ月 / 2ヶ月
なし / -
130.28m2
216m2
1992年8月(築33年4ヶ月)
  • 駐車場(近隣含)
伊勢原土地(株)

神奈川県伊勢原市高森3丁目

  • 貸倉庫
  • 神奈川県伊勢原市高森3丁目
    間取り図
神奈川県伊勢原市高森3丁目
小田急小田原線 愛甲石田駅 徒歩18分
11
万円

なし
1ヶ月 / 1ヶ月
なし / -
30m2
-
2025年7月
新築
  • 1階
  • 即引き渡し可
  • 駐車場(近隣含)
  • 築1年以内
  • 駅から徒歩20分以内
アパルトマンエージェント(株) 東京支社
チェックした物件を一括で
OCN×ドコモ光新規お申込みで合計最大137,280円相当おトク!特典の内訳・適用条件など詳細はこちら

条件を選択

賃料
広さ
物件タイプ
築年数
駅からの時間
こだわり条件
画像
情報の新しさ
フリーワード

海老名市の暮らしデータ

人口などの統計情報

世帯数 58225世帯
人口総数 139604人
転入者数 6886人
転入率(人口1000人当たり)
49.33人
転出者数 5877人
転出率(人口1000人当たり)
42.10人
土地平均価格
住宅地
154944円/m2
商業地
268000円/m2

海老名市の治安・ごみ収集情報

公共料金・インフラ

ガス料金(22m3使用した場合の月額) 東京瓦斯株式会社(東京地区等)3926円
水道料金(口径20mmで20m3の月額) 神奈川県営水道2509円
下水道料金(20m3を使用した場合の月額) 海老名市1973円
下水道普及率 96.5%

安心・安全

建物火災出火件数 10件
人口10000人当たり
0.73件
刑法犯認知件数 837件
人口1000人当たり
6.13件
ハザード・防災マップ あり

医療

一般病院総数 4ヶ所
一般診療所総数 107ヶ所
小児科医師数 19人
小児人口10000人当たり
10.80人
産婦人科医師数 13人
15~49歳女性人口1万人当たり
4.62人
介護保険料基準額(月額) 5353円

ごみ

家庭ごみ収集(可燃ごみ) 有料
備考
単純従量制。
家庭ごみの分別方式 3分別21種〔可燃ごみ(燃やせるごみ) 資源ごみ(紙類[段ボール、新聞・折込チラシ、飲料用紙パック、本・雑誌類、ミックスペーパー]、布類、ペットボトル、缶類、びん類、容器包装プラスチック、その他プラスチック、小型電気製品、家庭用金属類、家庭用金属類[危険物]、蛍光管、電球、乾電池、使用済み食用油、剪定枝) 不燃ごみ(燃やせないごみ)〕
家庭ごみの戸別収集 実施(燃やせるごみ、紙おむつ、落ち葉・雑草、剪定枝)
粗大ごみ収集 あり
備考
有料。
生ごみ処理機助成金制度 あり
上限金額
50000円
上限比率
75.0%
暮らしデータ提供元:生活ガイド.com
※行政機関により公表していない地域及びデータがございます。東京23区以外の政令指定都市は、市全体のデータとして表示しています。
※提供データには細心の注意を払っておりますが、調査後に変更がある場合があります。 最新の情報につきましては各市区役所までお問い合わせいただくか、自治体HPなどをご確認ください。

家賃相場

更新日:2025年11月10日

海老名市の家賃相場

  50㎡~80㎡ 80㎡~100㎡ 100㎡~150㎡ 150㎡~200㎡ 200㎡以上
貸事務所 13.1万円 - 53.2万円 - 143万円
貸店舗 13.5万円 - - - 105.8万円
貸土地 - - - - 62.1万円
貸ビル・貸倉庫・その他 - - - - -
  月極駐車場
月極駐車場 0.8万円

周辺エリアの家賃相場

  厚木市 大和市 座間市 綾瀬市 高座郡寒川町
貸事務所 18.4万円 19.9万円 - - -
貸店舗 21.9万円 19.7万円 - - -
貸土地 - - - - -
貸ビル・貸倉庫・その他 - - - - -
月極駐車場 1.1万円 1.1万円 1.7万円 0.7万円 0.8万円
※このデータはgoo住宅・不動産に掲載されている店舗の平均賃料(管理費・駐車場代などを除く)を算出したものです。ただし5戸以上の掲載があるものについてのみ対象とします。
※周辺エリアの家賃相場は広さ50㎡~80㎡と駐車場の平均賃料を算出したものです。

神奈川県の人気の街アクセスランキング(店舗・事業用)

※このランキングは2025年10月01日~31日における各ページのアクセス数から算出しています。

神奈川県海老名市の人気の特集から店舗・事業用物件を探す

特徴

他のエリアから探す

海老名市の詳細地域から店舗・事業用物件を探す

扇町大谷北大谷南柏ケ谷門沢橋上今泉上郷上河内河原口国分南下今泉社家杉久保北杉久保南中央中新田中野東柏ケ谷本郷望地

海老名市内の駅から探す

海老名厚木社家門沢橋さがみ野かしわ台

アプリで簡単 物件探し 大手不動産サイトの情報から一括検!プッシュ通知で物件を見逃さない
App Storeからダウンロード Google Playで手に入れよう QRコード