貸店舗・事務所

スムークビル 新所沢駅 貸店舗・事務所

情報提供元
アットホーム
スムークビル
賃料 24.35万円  (管理費等:11,000円)
礼金・敷金 なし / 3ヶ月 保証金/敷引・償却 なし / 解約時15.00%償却
交通
所在地 埼玉県所沢市松葉町周辺地図
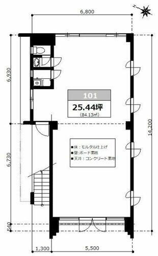
使用部分面積 84.13m2 土地面積 -
築年月 1990年3月 築年数 築35年10ヶ月

詳細情報

賃料 24.35万円  管理費等 11,000円 
敷金 3ヶ月  礼金 なし 
保証金 なし  敷引・償却 解約時15.00%償却 
所在地 埼玉県所沢市松葉町周辺地図
交通
使用部分面積 84.13m2  土地面積  
坪単価 0.96万円  その他一時金 鍵交換(1箇所) 28000円  
権利金 その他費用  
維持費等   都市計画  
用途地域 2種住居  接道状況  
地目   建物構造・所在階/階数 RC 1階/3階建 
建物名 スムークビル  築年月(築年数) 1990年3月(築35年10ヶ月) 
条件等   契約期間 3年 
現況 空  引渡可能時期 即時 
情報提供元 アットホーム [6988398504] 情報公開日
情報更新日 - 次回更新予定日 随時

設備など

24時間セキュリティ - 1階 2階以上 -
即引渡し可 飲食店可 - エレベーター -
駐車場(近隣含) -        
設備 トイレ 
備考 新所沢駅から徒歩3分で通り沿い、販売店・営業所・接骨院・整体院などに最適!設備・条件などについては弊社オリジナル図面参照。図面と現況に相違がある場合は現況優先とします。※1年未満での解約の場合、早期解約違約金が発生します。※解約予告:借り主より3ヶ月前。・賃貸保証等:加入要(エポスカード 初回保証料が総額賃料の100%、月額保証料1000円。大手法人契約の場合は保証会社は不要。) 駐車場:無 築年月:1990/03築 
特記事項  

埼玉県所沢市松葉町 周辺地図情報

地図
※地図上に表示される物件の位置は付近住所に所在することを表すものであり、実際の物件所在地とは異なる場合がございます。
   正確な物件所在地は、取扱い不動産会社にお問い合わせください。

不動産会社情報

お問い合わせ先 商号:(株)公栄
免許番号:埼玉県知事免許(6)第18264号
所在地:所沢市松葉町2-14ローズガーデン301
TEL:04-2935-7270
取引態様:仲介
管理コード:
所属協会など:(公社)埼玉県宅地建物取引業協会会員、(公社)首都圏不動産公正取引協議会加盟
共有する
QRコード

所沢市の暮らしデータ

人口などの統計情報

世帯数 152510世帯
人口総数 343529人
転入者数 15623人
転入率(人口1000人当たり)
45.48人
転出者数 14079人
転出率(人口1000人当たり)
40.98人
土地平均価格
住宅地
177192円/m2
商業地
416667円/m2

所沢市の治安・ごみ収集情報

公共料金・インフラ

ガス料金(22m3使用した場合の月額) 東京瓦斯株式会社(東京地区等)3926円
武州瓦斯株式会社4281円
大東ガス株式会社4335円
水道料金(口径20mmで20m3の月額) 所沢市2332円
下水道料金(20m3を使用した場合の月額) 所沢市1639円
下水道普及率 95.2%

安心・安全

建物火災出火件数 37件
人口10000人当たり
1.08件
刑法犯認知件数 1944件
人口1000人当たり
5.68件
ハザード・防災マップ あり

医療

一般病院総数 20ヶ所
一般診療所総数 225ヶ所
小児科医師数 62人
小児人口10000人当たり
16.41人
産婦人科医師数 36人
15~49歳女性人口1万人当たり
5.34人
介護保険料基準額(月額) 5634円

ごみ

家庭ごみ収集(可燃ごみ) 無料
備考
-
家庭ごみの分別方式 4分別12種〔燃やせるごみ 資源物(容器包装プラスチック、ペットボトル、びん・かん・スプレー缶、新聞、雑誌、雑がみ、段ボール、小型家電製品、古着・古布) 破砕ごみ類 有害ごみ〕集団資源回収:新聞、雑誌・雑がみ、段ボール、布類、スチール缶、アルミ缶、紙パック、生きびん
家庭ごみの戸別収集 一部実施(【ふれあい収集】毎週1回/要支援2以上の65歳以上の高齢者のみ及び障害者手帳2級以上の方のみの、身近な人の協力を得ることができない世帯が対象)
粗大ごみ収集 あり
備考
有料。事前申込制。納付済シール貼付し、収集日に排出。三分類定額制(品目により金額が異なる500円・1,000円・2,000円)。
生ごみ処理機助成金制度 なし
上限金額
-
上限比率
-
暮らしデータ提供元:生活ガイド.com
※行政機関により公表していない地域及びデータがございます。東京23区以外の政令指定都市は、市全体のデータとして表示しています。
※提供データには細心の注意を払っておりますが、調査後に変更がある場合があります。 最新の情報につきましては各市区役所までお問い合わせいただくか、自治体HPなどをご確認ください。
OCN×ドコモ光新規お申込みで合計最大137,280円相当おトク!特典の内訳・適用条件など詳細はこちら

所沢市内の各駅の住みやすさ

掲載情報の著作権は提供元企業等に帰属します。
Copyright:(C) 2025 At Home Co.,Ltd
アプリで簡単 物件探し 大手不動産サイトの情報から一括検!プッシュ通知で物件を見逃さない
App Storeからダウンロード Google Playで手に入れよう QRコード