アプリで簡単 物件探し 通知 共有 アプリならではの機能を使ってみる
賃貸マンション

プレジオ永和EURO JR河内永和駅 1LDK 賃貸(賃貸マンション・アパート)

情報提供元
LIFULL HOME'S
プレジオ永和EURO
賃料 11.1万円  (管理費等:10000円)
礼金・敷金 なし / なし 保証金/敷引・償却 - / -
交通
所在地 大阪府東大阪市長栄寺7-3周辺地図
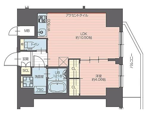
間取り 1LDK 専有面積 36.96m2
築年月 2025年3月 築年数 新築
おすすめポイント
新築1LDK♪ペット飼育可能!インターネット使用料無料!!追い焚き機能や浴室TVと設備も充実☆彡
お問い合わせ先
ハウスコムFC森ノ宮駅前店 株式会社クランホーム
お問い合わせ先
ハウスコムFC森ノ宮駅前店 株式会社クランホーム

詳細情報

賃料 11.1万円 管理費等 10000円
敷金 なし 礼金 なし
保証金 - 敷引・償却 -
更新料 - 契約期間 2年
カード決済 初期費用カード決済可
所在地 大阪府東大阪市長栄寺7-3周辺地図
交通
  • おおさか東線 JR河内永和駅 徒歩1分乗換案内
  • おおさか東線 JR俊徳道駅 徒歩9分乗換案内
建物名 プレジオ永和EURO 
間取り 1LDK 築年月(築年数) 2025年3月 新築
専有面積 36.96㎡ 所在階/階数 13階/15階建
建物構造 RC  方位 北 
現況 空  駐車場 有 16,500円
入居可能時期 即時 住宅保険
情報提供元 LIFULL HOME'S[1449410007940] 情報公開日
情報更新日 次回更新予定日 2025年12月11日

設備など

2階以上 最上階 - 角部屋
駐車場(近隣含) エアコン付き バス・トイレ別
室内洗濯機置き場 追焚機能 オートロック付き
モニタ付インターホン フローリング バルコニー
ガスコンロ可 浴室乾燥機 24時間セキュリティ -
宅配ボックス ペット相談可 二人入居可
設備 上水道・都市ガス・本下水・バス・トイレ別・シャワー・ガスコンロ可・コンロ2口以上・システムキッチン・給湯・追焚機能・シャンプードレッサ・エアコン・室内洗濯機置き場・CS・BS端子・オートロック・エレベーター・バルコニー・フローリング・宅配BOX・駐輪場・インターネット対応・モニタ付インターホン・温水洗浄便座・浴室乾燥機・洗面所独立・防犯カメラ・インターネット無料・クローゼット・シューズインクローク・照明器具 
リフォーム履歴 -
リノベーション履歴 -
備考 インターネット掲載物件に関わらず、大阪市内全域のお部屋探しが可能となっております!複数の業者にお問い合わせすることなく弊社にて正確な最新の空室状況をご確認させていただきます♪初期費用分割決算も可能となっており、ご都合に合わせて支払い回数も選べます!現地で待ち合わせ、営業時間外のご案内、保証人なし、法人契約、初期費用等その他何でもご相談下さい!インターネットに掲載していない非公開物件ご用意してます! 【設備・特記事項備考】専用バス・浴室TV/水道料 2750円/プレジオクラブ24 20000円/賃貸戸数:84戸/保証会社の利用:加入要/保証会社名:エポス/保証会社費用:初回契約時:20%、月額:1%/室内清掃費用:33000円/管理人勤務形態:巡回 
特記事項 見学予約可・二人入居可・ペット相談可・角部屋・初期費用カード決済可

省エネ性能

エネルギー消費性能 -
断熱性能 -
目安光熱費 -

大阪府東大阪市長栄寺7-3 周辺地図情報

地図
※地図上に表示される物件の位置は付近住所に所在することを表すものであり、実際の物件所在地とは異なる場合がございます。
   正確な物件所在地は、取扱い不動産会社にお問い合わせください。
お問い合わせ先
ハウスコムFC森ノ宮駅前店 株式会社クランホーム

不動産会社情報

お問い合わせ先 商号:ハウスコムFC森ノ宮駅前店 株式会社クランホーム
免許番号:大阪府知事(03)第057596号
所在地:大阪府大阪市中央区森ノ宮中央1丁目2-21-1F
TEL:06-4792-0063
取引態様:仲介
管理コード:7940
所属協会など:(公社)近畿地区不動産公正取引協議会、(公社)全日本不動産協会
共有する
QRコード

お電話でのお問い合わせ

電話をかける(携帯・PHS可)
お問い合わせダイヤル
通話無料0037-634-26358
営業時間 09:30~19:00 (定休日:年中無休)
音声案内に従って数字を入力
お問い合わせ番号
55956-2971
不動産会社につながります
不動産会社のスタッフと
直接電話で話せます。
※不動産会社がお電話に出られなかった場合、株式会社LIFULLは電話会社が提供するサービスを介してお客様の発信者番号を受領後、折り返し専用の電話番号を発番してお問合せの不動産会社に通知します(お客様の発信者番号がお問合せの不動産会社に通知されることはございません)
※光IP電話、及びIP電話からはご利用になれません
※0037で始まる電話番号に携帯電話からお問合せいただいた方には、ショートメッセージ(SMS)によるお問合せ完了通知をお届けする場合があります
お問い合わせ先
ハウスコムFC森ノ宮駅前店 株式会社クランホーム

    東大阪市の暮らしデータ

    人口などの統計情報

    世帯数 231950世帯
    人口総数 478539人
    転入者数 19570人
    転入率(人口1000人当たり)
    40.90人
    転出者数 17459人
    転出率(人口1000人当たり)
    36.48人
    土地平均価格
    住宅地
    149705円/m2
    商業地
    243909円/m2

    結婚・育児の助成金

    子育て関連の独自の取り組み 子育て支援電話相談事業(24時間・365日)
    出産祝い あり
    公立保育所数 7所(うち0歳児保育を実施している保育所:3所)
    私立保育所数 25所(うち0歳児保育を実施している保育所:25所)
    保育所入所待機児童数 5人
    認定こども園数 55園 預かり保育実施園数 公立:4園 私立:-
    学校給食 【小学校】完全給食(小学校5・6年生無償化)【中学校】完全給食(無償化)
    公立中学校の学校選択制 未実施
    子ども・学生等医療費助成<通院>対象年齢 18歳3月末まで 子ども・学生等医療費助成<入院>対象年齢 18歳3月末まで

    東大阪市の治安・ごみ収集情報

    公共料金・インフラ

    ガス料金(22m3使用した場合の月額) 大阪瓦斯株式会社4544円
    水道料金(口径20mmで20m3の月額) 東大阪市2598円
    下水道料金(20m3を使用した場合の月額) 東大阪市2087円
    下水道普及率 99.1%

    安心・安全

    建物火災出火件数 107件
    人口10000人当たり
    2.17件
    刑法犯認知件数 4642件
    人口1000人当たり
    9.40件
    ハザード・防災マップ あり

    医療

    一般病院総数 19ヶ所
    一般診療所総数 397ヶ所
    小児科医師数 62人
    小児人口10000人当たり
    12.25人
    産婦人科医師数 41人
    15~49歳女性人口1万人当たり
    4.48人
    介護保険料基準額(月額) 7093円

    ごみ

    家庭ごみ収集(可燃ごみ) 無料
    備考
    一時多量ごみ(引越し時に発生したごみ等)は東大阪都市清掃施設組合に直接持ち込む場合のみ処分が可能であり、有料となる。料金は10kgにつき90円(税込み)。
    家庭ごみの分別方式 5分別5種〔家庭ごみ あきかん・あきびん 不燃の小物 プラスチック製容器包装 ペットボトル〕拠点回収:乾電池 蛍光管 水銀体温計 使用済小型家電 水銀血圧計 古紙類 小型充電式電池 集団回収:新聞 雑誌 雑がみ ダンボール 古布 紙パック アルミ缶 リターナブルびん 廃食油
    家庭ごみの戸別収集 一部実施(一部地域のみ実施)
    粗大ごみ収集 あり
    備考
    有料。戸別収集。事前申込制。電話で10点/回まで受付。1辺の長さが30cm以上で、3辺(高さ・幅・奥行)の長さの合計が3m以下の場合は400円、3mを超える場合は800円となる。
    生ごみ処理機助成金制度 なし
    上限金額
    -
    上限比率
    -
    暮らしデータ提供元:生活ガイド.com
    ※行政機関により公表していない地域及びデータがございます。東京23区以外の政令指定都市は、市全体のデータとして表示しています。
    ※提供データには細心の注意を払っておりますが、調査後に変更がある場合があります。 最新の情報につきましては各市区役所までお問い合わせいただくか、自治体HPなどをご確認ください。
    OCN×ドコモ光新規お申込みで合計最大137,280円相当おトク!特典の内訳・適用条件など詳細はこちら

    東大阪市内の各駅の住みやすさ

    他のエリアから探す

    東大阪市の詳細地域から賃貸物件を探す

    旭町足代足代北足代新町足代南荒川荒本荒本北荒本新町荒本西池島町池之端町出雲井町出雲井本町稲田上町稲田新町稲田本町稲葉今米岩田町瓜生堂永和近江堂大蓮北大蓮東大蓮南柏田西柏田東町柏田本町金岡金物町加納上石切町上小阪上四条町上六万寺町川田河内町川中川俣川俣本町神田町岸田堂北町岸田堂西岸田堂南町衣摺北石切町客坊町喜里川町日下町楠根源氏ケ丘鴻池町鴻池徳庵町鴻池本町鴻池元町小阪小阪本町寿町古箕輪小若江五条町桜町三ノ瀬新喜多四条町七軒家渋川町島之内下小阪下六万寺町俊徳町昭和町新池島町新上小阪新家新家中町新家西町新家東町新鴻池町新庄新庄西新町末広町角田善根寺町太平寺高井田高井田中高井田西高井田本通高井田元町鷹殿町宝町立花町玉串町西玉串町東玉串元町長栄寺長堂寺前町徳庵本町友井豊浦町鳥居町中石切町中鴻池町中小阪中新開中野中野南長瀬町長田長田中長田西長田東南荘町西石切町西岩田西上小阪西鴻池町西堤西堤学園町西堤楠町西堤西西堤本通西西堤本通東額田町布市町箱殿町花園西町花園東町花園本町東石切町東上小阪東鴻池町東豊浦町東山町菱江菱屋西菱屋東瓢箪山町藤戸新田宝持本庄中本町松原御厨御厨栄町御厨中御厨西ノ町御厨東御厨南三島水走南上小阪南鴻池町南四条町箕輪御幸町森河内西森河内東山手町弥生町横小路町横沼町横枕横枕西横枕南吉田吉田下島吉田本町吉原吉松六万寺町若江北町若江西新町若江東町若江本町若江南町若草町

    近辺の市区から探す

    大阪市都島区大阪市福島区大阪市西区大阪市港区大阪市大正区大阪市天王寺区大阪市浪速区大阪市東淀川区大阪市東成区大阪市生野区大阪市旭区大阪市城東区大阪市阿倍野区大阪市住吉区大阪市東住吉区大阪市西成区大阪市淀川区大阪市鶴見区大阪市平野区大阪市北区大阪市中央区吹田市守口市八尾市寝屋川市松原市大東市柏原市摂津市四條畷市

    周辺の駅から探す

    おおさか東線
    JR野江鴫野放出高井田中央JR河内永和JR俊徳道JR長瀬衣摺加美北新加美

    大阪府東大阪市で他のジャンルから探す


    掲載情報の著作権は提供元企業等に帰属します。
    Copyright:(C) 2025 LIFULL Co.,Ltd.
    アプリで簡単 物件探し 大手不動産サイトの情報から一括検!プッシュ通知で物件を見逃さない
    App Storeからダウンロード Google Playで手に入れよう QRコード