アプリで簡単 物件探し 通知 共有 アプリならではの機能を使ってみる
賃貸アパート

レオパレスTAKANAWA 伊予北条駅 1K 賃貸(賃貸マンション・アパート)

情報提供元
アパマンショップ
レオパレスTAKANAWA
賃料 4.1万円  (管理費等:4500円)
礼金・敷金 なし / なし 保証金/敷引・償却 なし / 実費
交通
所在地 愛媛県松山市下難波周辺地図
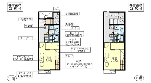
間取り 1K 専有面積 28.02m2
築年月 2008年8月 築年数 築17年5ヶ月
おすすめポイント
引越し費用サービス0円から ダンボールプレゼント!初期費用を抑えたお部屋をお探しいたします!!保証人不要物件もご相談ください【来店予約可】お気軽にお問い合わせください!
お問い合わせ先
アパマンショップ松山北店 株式会社三福綜合不動産
お問い合わせ先
アパマンショップ松山北店 株式会社三福綜合不動産

詳細情報

賃料 4.1万円 管理費等 4500円
敷金 なし 礼金 なし
保証金 なし 敷引・償却 実費
更新料 - 契約期間
カード決済 -
所在地 愛媛県松山市下難波周辺地図
交通
建物名 レオパレスTAKANAWA 
間取り 1K 築年月(築年数) 2008年8月(築17年5ヶ月)
専有面積 28.02㎡ 所在階/階数 2階/2階建
建物構造 木造  方位  
現況 未完成  駐車場 有 4,400円
入居可能時期 即時 住宅保険 あり住宅保険 2年 26680円
情報提供元 アパマンショップ[20231004036450] 情報公開日
情報更新日 - 次回更新予定日 随時

設備など

2階以上 最上階 - 角部屋 -
駐車場(近隣含) エアコン付き バス・トイレ別
室内洗濯機置き場 - 追焚機能 - オートロック付き -
モニタ付インターホン フローリング バルコニー
ガスコンロ可 - 浴室乾燥機 - 24時間セキュリティ -
宅配ボックス - ペット相談可 - 二人入居可 -
設備 駐輪場・バイク置き場・シャワー・エアコン・冷房・暖房・フローリング・バルコニー・バス・トイレ別・収納スペース・モニタ付インターホン 
リフォーム履歴 -
リノベーション履歴 -
備考 [退去時費用 退去費用実費精算※故意・過失等別途実費]環境維持費:1ヶ月550円(税込)、鍵交換費:ご契約時16500円(税込)、退去時清掃費:41800円(税込)、インターネット利用料:有料、更新手数料:16500円(税込)、保証委託料:必要 保証会社利用必須 プラザ賃貸保証 家賃等の100%または120% 難波小学校・1278m 北条北中学校・1545m コンビニ・181m スーパー・580m 病院・2948m 引越し費用サービス0円から ダンボールプレゼント! 初期費用を抑えたお部屋をお探しいたします!!保証人不要物件もご相談ください【来店予約可】お気軽にお問い合わせください! /加盟団体名:(公社)愛媛県宅地建物取引業協会 公取協名:四国地区不動産公正取引協議会加盟 
特記事項

愛媛県松山市下難波 周辺地図情報

地図
※地図上に表示される物件の位置は付近住所に所在することを表すものであり、実際の物件所在地とは異なる場合がございます。
   正確な物件所在地は、取扱い不動産会社にお問い合わせください。
お問い合わせ先
アパマンショップ松山北店 株式会社三福綜合不動産

不動産会社情報

お問い合わせ先 商号:アパマンショップ松山北店 株式会社三福綜合不動産
免許番号:愛媛県知事(15)819
所在地:松山市本町5丁目7-7
TEL:0120-964-972
取引態様:仲介
管理コード:69687827
共有する
QRコード
お問い合わせ先
アパマンショップ松山北店 株式会社三福綜合不動産

    松山市の暮らしデータ

    人口などの統計情報

    世帯数 240734世帯
    人口総数 500231人
    転入者数 15290人
    転入率(人口1000人当たり)
    30.57人
    転出者数 15505人
    転出率(人口1000人当たり)
    31.00人
    土地平均価格
    住宅地
    78247円/m2
    商業地
    211325円/m2

    結婚・育児の助成金

    子育て関連の独自の取り組み (1)松山市に居住する子育て、発達、虐待、いじめ、不登校、問題行動等のこどもに関することや、妊娠・出産についてのさまざまな相談窓口として「こども相談」を設置し、関係機関と連携し、対応している。(2)いじめ相談専用電話「いじめほっとらいん」を設置し、いじめに関する相談に対し学校や教育委員会等関係機関と連携し対応している。(3)LINEを使った相談窓口「こども・子育て・DVらいん相談@まつやま」を開設し、子どもや子育てに関すること等さまざまな相談に対応し、必要に応じて支援につなげている。(4)家族に病気や障害がある等の事情で、本来大人が担う家事や家族の世話等を日常的にしている子ども本人や保護者等の相談専用電話「ヤングケアラーほっとらいん」を設置している。
    出産祝い あり
    公立保育所数 23所(うち0歳児保育を実施している保育所:11所)
    私立保育所数 21所(うち0歳児保育を実施している保育所:21所)
    保育所入所待機児童数 0人
    認定こども園数 48園 預かり保育実施園数 公立:4園 私立:-
    学校給食 【小学校】完全給食【中学校】完全給食
    公立中学校の学校選択制 実施(隣接校区選択制を実施。新入学時、転入転居時において申請可)
    子ども・学生等医療費助成<通院>対象年齢 18歳3月末まで 子ども・学生等医療費助成<入院>対象年齢 18歳3月末まで

    松山市の治安・ごみ収集情報

    公共料金・インフラ

    ガス料金(22m3使用した場合の月額) 四国ガス株式会社7131円
    水道料金(口径20mmで20m3の月額) 松山市3170円
    松山市(中島地区 簡易水道)5678円
    松山市(北条地区 簡易水道)2625円
    下水道料金(20m3を使用した場合の月額) 松山市3385円
    下水道普及率 66.4%

    安心・安全

    建物火災出火件数 70件
    人口10000人当たり
    1.37件
    刑法犯認知件数 3086件
    人口1000人当たり
    6.04件
    ハザード・防災マップ あり

    医療

    一般病院総数 36ヶ所
    一般診療所総数 475ヶ所
    小児科医師数 74人
    小児人口10000人当たり
    12.30人
    産婦人科医師数 54人
    15~49歳女性人口1万人当たり
    5.53人
    介護保険料基準額(月額) 6650円

    ごみ

    家庭ごみ収集(可燃ごみ) 無料
    備考
    -
    家庭ごみの分別方式 【松山・北条地域】7分別10種【中島地域】9分別12種〔可燃ごみ プラスチック製容器包装 ペットボトル 金物・ガラス類 紙類(新聞紙・折りこみチラシ、段ボール、紙パック、本類・雑がみ) 埋立ごみ 水銀ごみ 【中島地域のみ】びん類 缶類〕 拠点回収:使用済小型家電
    家庭ごみの戸別収集 未実施
    粗大ごみ収集 あり
    備考
    戸別収集。はがきでの事前申込制(年6回まで)。1回5点まで申込可能。
    生ごみ処理機助成金制度 あり
    上限金額
    20000円
    上限比率
    50.0%
    暮らしデータ提供元:生活ガイド.com
    ※行政機関により公表していない地域及びデータがございます。東京23区以外の政令指定都市は、市全体のデータとして表示しています。
    ※提供データには細心の注意を払っておりますが、調査後に変更がある場合があります。 最新の情報につきましては各市区役所までお問い合わせいただくか、自治体HPなどをご確認ください。
    OCN×ドコモ光新規お申込みで合計最大137,280円相当おトク!特典の内訳・適用条件など詳細はこちら

    他のエリアから探す

    松山市の詳細地域から賃貸物件を探す

    愛光町会津町朝日ケ丘旭町朝美朝生田町天山粟井河原安城寺町居相生石町石手石手白石石風呂町泉町磯河内市坪北市坪南一番町和泉北和泉南井門町今在家祝谷祝谷東町祝谷町岩崎町上野町内浜町内宮町馬木町梅田町永代町枝松恵原町大街道大可賀大手町小川小栗小栗町越智春日町片山歩行町勝岡町勝山町鹿峰上市鴨川萱町河原町神田町来住町北井門北梅本町北久米町北斎院町北立花町北土居北藤原町北持田町北吉田町衣山木屋町清住喜与町祇園町空港通久保久保田町久万ノ台久米窪田町桑原河野中須賀小坂此花町桜ケ丘三町三番町志津川町東雲町清水町下難波正円寺昭和町新石手新立町新浜町食場町末広町須賀町苞木住吉太山寺町高井町高岡町高砂町鷹子町高浜町高山町拓川町竹原竹原町立花辰巳町谷町樽味千舟町中央束本築山町辻町津吉町鉄砲町問屋町富久町土居田町土居町道後一万道後今市道後北代道後喜多町道後多幸町道後樋又道後姫塚道後町道後緑台道後湯之町土手内土橋町中一万町中須賀中西内中西外中村永木町西石井西一万町錦町西長戸町西垣生町二番町白水台畑寺畑寺町花園町祓川針田町春美町東石井東一万町東方町東長戸東野東垣生町日の出町ひばりケ丘姫原平井町平田町福音寺町福角町藤原藤原町府中船ケ谷町古川北古川西古川南古三津平和通別府町北条北条辻保免上保免中保免西星岡堀江町本町松前町真砂町松江町松末松ノ木味酒町美沢三杉町溝辺町御宝町三津緑町水泥町湊町南梅本町南江戸南久米町南斎院町南土居町南堀端町南町南持田町南吉田町宮田町宮西御幸室町持田町元町紅葉町森松町柳井町山越山越町山西町雄郡湯の山湯渡町余戸中余戸西余戸東余戸南吉藤六軒家町若草町若葉町和気町和田

    近辺の市区から探す

    伊予市東温市伊予郡松前町伊予郡砥部町

    周辺の駅から探す

    予讃線
    伊予亀岡|菊間浅海大浦伊予北条柳原粟井光洋台堀江

    愛媛県松山市で他のジャンルから探す


    掲載情報の著作権は提供元企業等に帰属します。
    Copyright:(C) 2025 APAMAN Co., Ltd.
    アプリで簡単 物件探し 大手不動産サイトの情報から一括検!プッシュ通知で物件を見逃さない
    App Storeからダウンロード Google Playで手に入れよう QRコード