賃貸マンション
ワイズエステムコート新都心天久 2LDK 賃貸(賃貸マンション・アパート)
 
  
    
      | 賃料 | 21万円  (管理費等:10000円) | 
    
      | 礼金・敷金 | 1ヶ月 / 1ヶ月 | 保証金/敷引・償却 | なし / - | 
    
      | 交通 |  | 
    
      | 所在地 | 沖縄県那覇市天久2周辺地図 | 
    
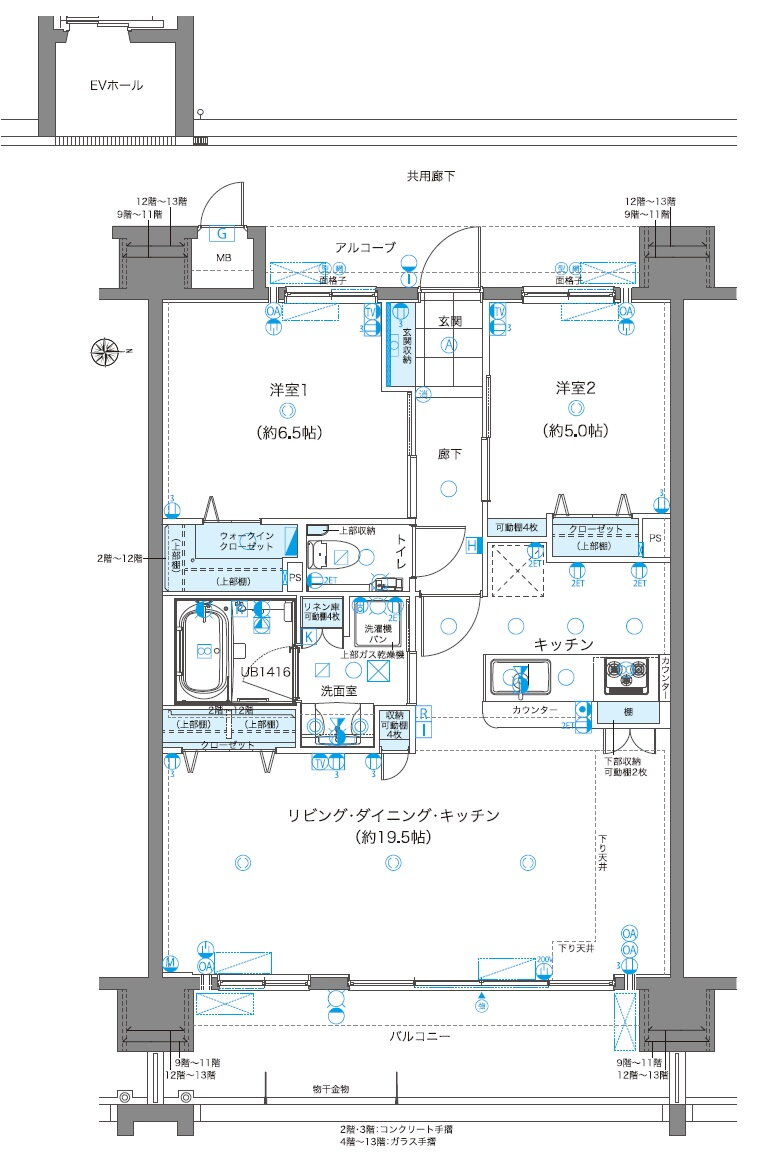
      | 間取り | 2LDK | 専有面積 | 68.4m2 | 
    
      | 築年月 | 2025年9月 | 築年数 | 新築 | 
  
 
 
- おすすめポイント
- 新築分譲マンション!那覇新都心エリアに登場!国道58号線沿い 新築分譲マンション!新都心エリアに登場!国道58号線沿いのアクセス便利な立地★お部屋11階、眺望良好!室内3LDK⇒2LDKへ変更しており、リビング広々!嬉しいエアコン3台設置!※ペット飼育不可。
| 賃料 | 21万円 | 管理費等 | 10000円 | 
| 敷金 | 1ヶ月 | 礼金 | 1ヶ月 | 
| 保証金 | なし | 敷引・償却 | - | 
| 更新料 | - | 契約期間 | 定期借家 3年 | 
| カード決済 | - | 
| 所在地 | 沖縄県那覇市天久2周辺地図 | 
| 交通 |  | 
| 建物名 | ワイズエステムコート新都心天久 | 
| 間取り | 2LDK(洋6.5 洋5 19.5) | 築年月(築年数) | 2025年9月
新築 | 
| 専有面積 | 68.4㎡ | 所在階/階数 | 11階/14階建 | 
| 建物構造 | RC | 方位 | 東 | 
| 現況 |  | 駐車場 | 有 10,000円 | 
| 入居可能時期 | 相談 | 住宅保険 | あり | 
| 情報提供元 | SUUMO[090H100466352956] | 情報公開日 |  | 
| 情報更新日 |  | 次回更新予定日 | 随時 | 
設備など
| 2階以上 | ○ | 最上階 | - | 角部屋 | - | 
| 駐車場(近隣含) | ○ | エアコン付き | ○ | バス・トイレ別 | ○ | 
| 室内洗濯機置き場 | ○ | 追焚機能 | - | オートロック付き | ○ | 
| モニタ付インターホン | ○ | フローリング | ○ | バルコニー | ○ | 
| ガスコンロ可 | - | 浴室乾燥機 | ○ | 24時間セキュリティ | - | 
| 宅配ボックス | ○ | ペット相談可 | - | 二人入居可 | - | 
| 設備 | 冷房・暖房・エアコン・オートロック・バルコニー・バス・トイレ別・トイレ・収納スペース・洗濯機置場・洗面所・エレベーター・BS端子・フローリング・浴室乾燥機・ウォークインクローゼット・温水洗浄便座・システムキッチン・カウンターキッチン・モニタ付インターホン・宅配BOX・対面K・クローゼット・CS・衣類乾燥機・食器洗浄乾燥機・都市ガス・食器乾燥機・ディンプルキー・浴トイレ別・防犯カメラ・洗面所独立・コンロ2口以上・シューズボックス・室内洗濯機置き場 | 
| リフォーム履歴 | - | 
| リノベーション履歴 | - | 
| 備考 | 損保要/保証会社利用必:家賃の60%/仲介手数料1ヶ月/定期借家3年/※ペット飼育不可/バストイレ別/バルコニー/フローリング/TVインターホン/浴室乾燥機/オートロック/室内洗濯置/シューズボックス/システムキッチン/温水洗浄便座/脱衣所/エレベーター/洗面所独立/宅配ボックス/BS・CS/3口以上コンロ/対面式キッチン/防犯カメラ/全居室収納/全居室洋室/ウォークインクロゼット/敷金1ヶ月/全居室フローリング/ディンプルキー/食器洗乾燥機/眺望良好/乾燥機/築2年以内/エアコン3台/クロゼット2ヶ所/トイレ未使用/未入居/バス停徒歩3分以内/LDK18畳以上/都市ガス/玄関収納/礼金1ヶ月/巡回管理/賃貸戸数:50戸 | 
| 特記事項 | 管理人巡回 | 
沖縄県那覇市天久2 周辺地図情報
※地図上に表示される物件の位置は付近住所に所在することを表すものであり、実際の物件所在地とは異なる場合がございます。
   正確な物件所在地は、取扱い不動産会社にお問い合わせください。
 
 
不動産会社情報
| お問い合わせ先 | 商号:(株)エールプロデュース 免許番号:沖縄県知事(3)第4076号
 所在地:沖縄県那覇市泊1-11-9
 TEL:098-996-4091
 取引態様:仲介
 管理コード:
 所属協会など:(一社)九州不動産公正取引協議会加盟、(公社)沖縄県宅地建物取引業協会会員
 | 共有する |  | 
  
  
    人口などの統計情報
    
      
        
          | 世帯数 | 144011世帯 | 
        
          | 人口総数 | 315485人 | 
        
          | 転入者数 | 16486人 
 
              転入率(人口1000人当たり)52.26人 | 
        
          | 転出者数 | 16747人 
 
              転出率(人口1000人当たり)53.08人 | 
        
          | 土地平均価格 | 
              住宅地234158円/m2商業地443211円/m2 | 
      
    
   
    
    結婚・育児の助成金
    
      
        
          | 子育て関連の独自の取り組み | (1)乳幼児をもつ親と子を対象にした在園児との交流保育体験や園行事への参加、給食試食(有料)の実施。(2)子育て世帯への園庭・園舎の開放と育児相談の実施。(3)子育て支援に関する取り組みの周知と情報発信の工夫(「那覇市子育て応援ガイド」の配布とInstagramの活用)。(4)就学前教育・保育施設に従事する職員への研修実施。(5)こども誰でも通園制度試行的事業。 | 
        
          | 出産祝い | なし | 
        
          | 公立保育所数 | 0所(うち0歳児保育を実施している保育所:-) | 
        
          | 私立保育所数 | 74所(うち0歳児保育を実施している保育所:70所) | 
        
          | 保育所入所待機児童数 | 18人 | 
        
          | 認定こども園数 | 63園 | 預かり保育実施園数 | 公立:- 私立:5園 | 
        
          | 学校給食 | 【小学校】完全給食【中学校】完全給食 | 
        
          | 公立中学校の学校選択制 | 一部実施(隣接校選択制。新入学1年生のみ) | 
        
          | 子ども・学生等医療費助成<通院>対象年齢 | 中学校卒業まで | 子ども・学生等医療費助成<入院>対象年齢 | 中学校卒業まで | 
      
    
   
    
    那覇市の治安・ごみ収集情報
    公共料金・インフラ
    
      
        
          | ガス料金(22m3使用した場合の月額) | 沖縄ガス株式会社6056円 | 
        
          | 水道料金(口径20mmで20m3の月額) | 那覇市3040円 | 
        
          | 下水道料金(20m3を使用した場合の月額) | 那覇市1641円 | 
        
          | 下水道普及率 | 98.3% | 
      
    
    安心・安全
    
      
        
          | 建物火災出火件数 | 47件 
              人口10000人当たり1.48件 | 
        
          | 刑法犯認知件数 | 2791件 
              人口1000人当たり8.79件 | 
        
          | ハザード・防災マップ | あり | 
      
    
    医療
    
      
        
          | 一般病院総数 | 15ヶ所 | 
        
          | 一般診療所総数 | 263ヶ所 | 
        
          | 小児科医師数 | 86人 
              小児人口10000人当たり19.61人 | 
        
          | 産婦人科医師数 | 35人 
              15~49歳女性人口1万人当たり5.45人 | 
        
          | 介護保険料基準額(月額) | 6876円 | 
      
    
    ごみ
    
      
        
          | 家庭ごみ収集(可燃ごみ) | 有料 | 
        
          | 家庭ごみの分別方式 | 6分別15種〔もやすごみ もやさないごみ(小型家電、その他) 有害ごみ 危険ごみ 乾電池 資源ごみ(缶、びん、ペットボトル、雑がみ・本類、新聞紙・チラシ、段ボール、紙パック、古布、草木)〕 | 
        
          | 家庭ごみの戸別収集 | 実施 | 
        
          | 粗大ごみ収集 | あり | 
        
          | 生ごみ処理機助成金制度 | なし 
              上限金額-上限比率- | 
      
    
   
  
      
    
      ※行政機関により公表していない地域及びデータがございます。東京23区以外の政令指定都市は、市全体のデータとして表示しています。
      
※提供データには細心の注意を払っておりますが、調査後に変更がある場合があります。 最新の情報につきましては各市区役所までお問い合わせいただくか、自治体HPなどをご確認ください。
    
      那覇市の暮らしデータをもっと見る