賃貸マンション
銘苅 古島駅 1K 賃貸(賃貸マンション・アパート)
 
  
    
      | 賃料 | 6.2万円  (管理費等:6500円) | 
    
      | 礼金・敷金 | 1ヶ月 / なし | 保証金/敷引・償却 | なし / - | 
    
      | 交通 |  | 
    
      | 所在地 | 沖縄県那覇市銘苅3周辺地図 | 
    
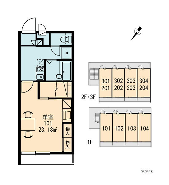
      | 間取り | 1K | 専有面積 | 23.18m2 | 
    
      | 築年月 | 2006年9月 | 築年数 | 築19年2ヶ月 | 
  
 
 
- おすすめポイント
- ☆敷金ゼロ☆仲介手数料無料☆家具家電付☆2人入居可能☆ ☆敷金0、仲介手数料0、家具家電付き(TV、冷蔵庫、洗濯機、電子レンジ、エアコン、カーテン、テーブル)インターネットWi-Fi対応、バストイレ別、室内洗濯機置場、クローゼット有り等々設備も充実☆
| 賃料 | 6.2万円 | 管理費等 | 6500円 | 
| 敷金 | なし | 礼金 | 1ヶ月 | 
| 保証金 | なし | 敷引・償却 | - | 
| 更新料 | - | 契約期間 |  | 
| カード決済 | - | 
| 所在地 | 沖縄県那覇市銘苅3周辺地図 | 
| 交通 | 
  沖縄都市モノレール 古島駅 徒歩8分乗換案内沖縄都市モノレール 市立病院前駅 徒歩16分乗換案内沖縄都市モノレール おもろまち駅 徒歩20分乗換案内 | 
| 建物名 | 銘苅 | 
| 間取り | 1K | 築年月(築年数) | 2006年9月(築19年2ヶ月) | 
| 専有面積 | 23.18㎡ | 所在階/階数 | 2階/3階建 | 
| 建物構造 | RC | 方位 | 北西 | 
| 現況 |  | 駐車場 | 無    近くの駐車場を探す | 
| 入居可能時期 | 2025年10月下旬 | 住宅保険 | あり 2年 19890円 | 
| 情報提供元 | SUUMO[090H100303932669] | 情報公開日 |  | 
| 情報更新日 |  | 次回更新予定日 | 随時 | 
設備など
| 2階以上 | ○ | 最上階 | - | 角部屋 | ○ | 
| 駐車場(近隣含) | - | エアコン付き | ○ | バス・トイレ別 | ○ | 
| 室内洗濯機置き場 | - | 追焚機能 | - | オートロック付き | - | 
| モニタ付インターホン | ○ | フローリング | ○ | バルコニー | ○ | 
| ガスコンロ可 | - | 浴室乾燥機 | ○ | 24時間セキュリティ | - | 
| 宅配ボックス | ○ | ペット相談可 | - | 二人入居可 | ○ | 
| 設備 | 冷房・暖房・エアコン・バルコニー・バス・トイレ別・トイレ・収納スペース・冷蔵庫・フローリング・浴室乾燥機・照明器具・温水洗浄便座・モニタ付インターホン・宅配BOX・駐輪場・ベッド・衣類乾燥機・プロパンガス・浴トイレ別・家具付き・コンロ2口以上・シューズボックス・インターネット対応 | 
| リフォーム履歴 | - | 
| リノベーション履歴 | - | 
| 備考 | 鍵交換代1.65万円/室内清掃費用 41800円 環境維持費 月額550円/保証会社利用必:初回保証料:月額利用料100% 120% 未成年者は親権者連帯保証人必須/仲介手数料不要/普通借家02年0ヶ月/二人入居可/事務所利用不可/☆ご見学の際は現地や最寄駅でのお待ち合わせ可能です☆ ○環境維持費:月額550円(税込)○鍵交換費:16 500円(税込)○保証委託料(個人のみ):利用料の100% 120%〇抗菌施工:18 040円(任意)〇サポートシステムプラス:18 975円(任意)〇インターネットWiFi:2 640円 (税込)/バストイレ別/バルコニー/エアコン/フローリング/TVインターホン/浴室乾燥機/シューズボックス/角住戸/温水洗浄便座/2口コンロ/駐輪場/宅配ボックス/光ファイバー/照明付/電気コンロ/保証人不要/冷蔵庫/仲介手数料不要/洗濯機/電子レンジ/ベッド/家電付/家具付/カーテン付/2駅利用可/3駅以上利用可/駅徒歩10分以内/プロパンガス/年内入居可/年度内入居可/礼金1ヶ月/全室照明付/テレビ/巡回管理/沖縄ファミリーマート 銘苅三丁目店(コンビニ)まで214m/セブンイレブン 那覇新都心銘苅店(コンビニ)まで320m/ACROSS PLAZA(アクロスプラザ)古島駅前(ショッピングセンター)まで486m | 
| 特記事項 | 二人入居可・角部屋・管理人巡回・保証人不要/代行 | 
沖縄県那覇市銘苅3 周辺地図情報
※地図上に表示される物件の位置は付近住所に所在することを表すものであり、実際の物件所在地とは異なる場合がございます。
   正確な物件所在地は、取扱い不動産会社にお問い合わせください。
 
 
不動産会社情報
| お問い合わせ先 | 商号:(株)成家沖縄店 免許番号:国土交通大臣(3)第8091号
 所在地:沖縄県那覇市泉崎1-12-15 Unufa2階
 TEL:098-860-2139
 取引態様:仲介
 管理コード:30428 450888
 所属協会など:(一社)九州不動産公正取引協議会加盟、(公社)沖縄県宅地建物取引業協会会員
 | 共有する |  | 
  
  
    人口などの統計情報
    
      
        
          | 世帯数 | 144011世帯 | 
        
          | 人口総数 | 315485人 | 
        
          | 転入者数 | 16486人 
 
              転入率(人口1000人当たり)52.26人 | 
        
          | 転出者数 | 16747人 
 
              転出率(人口1000人当たり)53.08人 | 
        
          | 土地平均価格 | 
              住宅地234158円/m2商業地443211円/m2 | 
      
    
   
    
    結婚・育児の助成金
    
      
        
          | 子育て関連の独自の取り組み | (1)乳幼児をもつ親と子を対象にした在園児との交流保育体験や園行事への参加、給食試食(有料)の実施。(2)子育て世帯への園庭・園舎の開放と育児相談の実施。(3)子育て支援に関する取り組みの周知と情報発信の工夫(「那覇市子育て応援ガイド」の配布とInstagramの活用)。(4)就学前教育・保育施設に従事する職員への研修実施。(5)こども誰でも通園制度試行的事業。 | 
        
          | 出産祝い | なし | 
        
          | 公立保育所数 | 0所(うち0歳児保育を実施している保育所:-) | 
        
          | 私立保育所数 | 74所(うち0歳児保育を実施している保育所:70所) | 
        
          | 保育所入所待機児童数 | 18人 | 
        
          | 認定こども園数 | 63園 | 預かり保育実施園数 | 公立:- 私立:5園 | 
        
          | 学校給食 | 【小学校】完全給食【中学校】完全給食 | 
        
          | 公立中学校の学校選択制 | 一部実施(隣接校選択制。新入学1年生のみ) | 
        
          | 子ども・学生等医療費助成<通院>対象年齢 | 中学校卒業まで | 子ども・学生等医療費助成<入院>対象年齢 | 中学校卒業まで | 
      
    
   
    
    那覇市の治安・ごみ収集情報
    公共料金・インフラ
    
      
        
          | ガス料金(22m3使用した場合の月額) | 沖縄ガス株式会社6056円 | 
        
          | 水道料金(口径20mmで20m3の月額) | 那覇市3040円 | 
        
          | 下水道料金(20m3を使用した場合の月額) | 那覇市1641円 | 
        
          | 下水道普及率 | 98.3% | 
      
    
    安心・安全
    
      
        
          | 建物火災出火件数 | 47件 
              人口10000人当たり1.48件 | 
        
          | 刑法犯認知件数 | 2791件 
              人口1000人当たり8.79件 | 
        
          | ハザード・防災マップ | あり | 
      
    
    医療
    
      
        
          | 一般病院総数 | 15ヶ所 | 
        
          | 一般診療所総数 | 263ヶ所 | 
        
          | 小児科医師数 | 86人 
              小児人口10000人当たり19.61人 | 
        
          | 産婦人科医師数 | 35人 
              15~49歳女性人口1万人当たり5.45人 | 
        
          | 介護保険料基準額(月額) | 6876円 | 
      
    
    ごみ
    
      
        
          | 家庭ごみ収集(可燃ごみ) | 有料 | 
        
          | 家庭ごみの分別方式 | 6分別15種〔もやすごみ もやさないごみ(小型家電、その他) 有害ごみ 危険ごみ 乾電池 資源ごみ(缶、びん、ペットボトル、雑がみ・本類、新聞紙・チラシ、段ボール、紙パック、古布、草木)〕 | 
        
          | 家庭ごみの戸別収集 | 実施 | 
        
          | 粗大ごみ収集 | あり | 
        
          | 生ごみ処理機助成金制度 | なし 
              上限金額-上限比率- | 
      
    
   
  
      
    
      ※行政機関により公表していない地域及びデータがございます。東京23区以外の政令指定都市は、市全体のデータとして表示しています。
      
※提供データには細心の注意を払っておりますが、調査後に変更がある場合があります。 最新の情報につきましては各市区役所までお問い合わせいただくか、自治体HPなどをご確認ください。
    
      那覇市の暮らしデータをもっと見る