アプリで簡単 物件探し 通知 共有 アプリならではの機能を使ってみる
賃貸マンション

トーソク幟町ビル 女学院前駅 3LDK 賃貸(賃貸マンション・アパート)

情報提供元
SUUMO
トーソク幟町ビル
賃料 16万円  (管理費等:5000円)
礼金・敷金 1ヶ月 / 2ヶ月 保証金/敷引・償却 なし / -
交通
所在地 広島県広島市中区幟町周辺地図
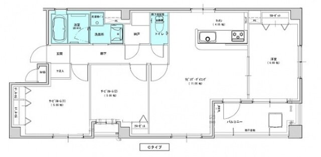
間取り 3LDK 専有面積 72.8m2
築年月 2015年2月 築年数 築10年11ヶ月
おすすめポイント
【JR広島駅・市内中心部まで徒歩圏内♪】 ★★本物件取扱店舗★★【シティホーム十日市センター】【ハイクオリティー賃貸マンション♪人気の「幟町」】広島では高級住宅街です。是非ご覧下さい。
お問い合わせ先
(株)シティホーム十日市センター
お問い合わせ先
(株)シティホーム十日市センター

詳細情報

賃料 16万円 管理費等 5000円
敷金 2ヶ月 礼金 1ヶ月
保証金 なし 敷引・償却 -
更新料 - 契約期間
カード決済 -
所在地 広島県広島市中区幟町周辺地図
交通
建物名 トーソク幟町ビル 
間取り 3LDK(洋6.5 洋6 洋5 LDK12) 築年月(築年数) 2015年2月(築10年11ヶ月)
専有面積 72.8㎡ 所在階/階数 9階/10階建
建物構造 鉄骨  方位 南 
現況   駐車場 近有 27,500円
入居可能時期 相談 住宅保険 あり 2年 20000円
情報提供元 SUUMO[080H100475959219] 情報公開日
情報更新日 次回更新予定日 随時

設備など

2階以上 最上階 - 角部屋
駐車場(近隣含) エアコン付き - バス・トイレ別
室内洗濯機置き場 追焚機能 オートロック付き
モニタ付インターホン フローリング バルコニー
ガスコンロ可 浴室乾燥機 24時間セキュリティ -
宅配ボックス ペット相談可 - 二人入居可
設備 オートロック・バルコニー・バス・トイレ別・トイレ・収納スペース・洗濯機置場・洗面所・エレベーター・BS端子・追焚機能・フローリング・浴室乾燥機・ガスコンロ可・シャンプードレッサ・システムキッチン・モニタ付インターホン・宅配BOX・駐輪場・風呂・クローゼット・CS・衣類乾燥機・浴トイレ別・防犯カメラ・洗面所独立・バイク置き場・コンロ2口以上・シューズボックス・インターネット対応・室内洗濯機置き場 
リフォーム履歴 -
リノベーション履歴 -
備考 二人入居可/子供可/●参考写真・参考動画になります。現況を優先致します。●アフターサービス:お部屋の採寸や近隣駐車場探しはお気軽にお任せください●学生割引キャンペーン(現在学生証をお持ちの方対象)●オンライン内覧可能(遠方の方対象)シティホーム【紙屋町】センターではSUUMOや他WEB媒体で気になる物件がございましたら他店舗・他業者様の物件でもまとめてご案内可能です。/バストイレ別/ガスコンロ対応/クロゼット/フローリング/シャワー付洗面台/TVインターホン/浴室乾燥機/オートロック/室内洗濯置/陽当り良好/シューズボックス/システムキッチン/南向き/追焚機能浴室/角住戸/脱衣所/エレベーター/洗面所独立/駐輪場/宅配ボックス/光ファイバー/閑静な住宅地/BS・CS/3口以上コンロ/防犯カメラ/グリル付/全居室洋室/単身者相談/東南角住戸/バイク置場/全居室フローリング/ガスレンジ付/デザイナーズ/玄関ホール/キッチンに窓/敷金2ヶ月/眺望良好/1フロア2住戸/浴室に窓/24時間換気システム/3駅以上利用可/3沿線以上利用可/路面電車沿線/バス2路線/駅前/駅徒歩5分以内/駅徒歩10分以内/バス停徒歩3分以内/高層階/敷地内ごみ置き場/築5年以内/全居室6畳以上/洗面所にドア/三面鏡付洗面化粧台/南面バルコニー/天井高シューズクロゼット/高速ネット対応/年度内入居可/IT重説 対応物件/通風良好/プロマート八丁堀店(スーパー)まで373m/セブンイレブン広島幟町東店(コンビニ)まで210m/ファミリーマート上幟町店(コンビニ)まで276m/ウォンツ銀山店(ドラッグストア)まで434m/広島幟町中特ビル内郵便局(郵便局)まで124m/もみじ銀行広島中央支店(銀行)まで599m/賃貸戸数:18戸 
特記事項 二人入居可・角部屋・日当り良好・閑静な住宅街・デザイナーズ物件

省エネ性能

エネルギー消費性能 -
断熱性能 -
目安光熱費 -

広島県広島市中区幟町 周辺地図情報

地図
※地図上に表示される物件の位置は付近住所に所在することを表すものであり、実際の物件所在地とは異なる場合がございます。
   正確な物件所在地は、取扱い不動産会社にお問い合わせください。
お問い合わせ先
(株)シティホーム十日市センター

不動産会社情報

お問い合わせ先 商号:(株)シティホーム十日市センター
免許番号:国土交通大臣(6)第5598号
所在地:広島県広島市中区榎町 1-8 第18やたがいビル1F
TEL:082-532-1333
取引態様:仲介
管理コード:
所属協会など: 中国地区不動産公正取引協議会加盟、(公社)全日本不動産協会広島県本部会員
共有する
QRコード
お問い合わせ先
(株)シティホーム十日市センター

    広島市中区の暮らしデータ

    人口などの統計情報

    世帯数 554462世帯
    人口総数 1178773人
    転入者数 61028人
    転入率(人口1000人当たり)
    51.77人
    転出者数 62233人
    転出率(人口1000人当たり)
    52.79人
    土地平均価格
    住宅地
    115999円/m2
    商業地
    556537円/m2

    結婚・育児の助成金

    子育て関連の独自の取り組み 地域の身近な場所でおむつ替え・授乳等が出来る赤ちゃん安心おでかけ事業「にこにこベビールーム」を実施。
    出産祝い なし
    公立保育所数 87所(うち0歳児保育を実施している保育所:69所)
    私立保育所数 95所(うち0歳児保育を実施している保育所:94所)
    保育所入所待機児童数 0人
    認定こども園数 70園 預かり保育実施園数 公立:- 私立:50園
    学校給食 【小学校】完全給食【中学校】完全給食 家庭弁当等との選択制/デリバリー形式[運搬:ランチボックス、内容:完全給食]
    公立中学校の学校選択制 一部実施
    子ども・学生等医療費助成<通院>対象年齢 小学校卒業まで 子ども・学生等医療費助成<入院>対象年齢 中学校卒業まで

    広島市中区の治安・ごみ収集情報

    公共料金・インフラ

    ガス料金(22m3使用した場合の月額) 広島ガス株式会社5505円
    水道料金(口径20mmで20m3の月額) 広島市2453円
    下水道料金(20m3を使用した場合の月額) 広島市2260円
    下水道普及率 96.5%

    安心・安全

    建物火災出火件数 147件
    人口10000人当たり
    1.22件
    刑法犯認知件数 7080件
    人口1000人当たり
    5.90件
    ハザード・防災マップ あり

    医療

    一般病院総数 73ヶ所
    一般診療所総数 1206ヶ所
    小児科医師数 261人
    小児人口10000人当たり
    17.38人
    産婦人科医師数 126人
    15~49歳女性人口1万人当たり
    5.32人
    介護保険料基準額(月額) 6400円

    ごみ

    家庭ごみ収集(可燃ごみ) 無料
    備考
    -
    家庭ごみの分別方式 7分別12種〔可燃ごみ ペットボトル リサイクルプラ その他プラ 不燃ごみ(ライター、陶磁器・その他不燃ごみ) 資源ごみ(紙類[新聞紙、ダンボール、雑誌・チラシ・菓子箱等]、ガラス類、金属類、布類) 有害ごみ〕
    家庭ごみの戸別収集 未実施
    粗大ごみ収集 あり
    備考
    有料。事前申込制。大型ごみ受付センターへの予約が必要。納付券を貼り付けたものを収集。大型ごみあんしんサポート(住宅内からの搬出を支援)あり。
    生ごみ処理機助成金制度 なし
    上限金額
    -
    上限比率
    -
    暮らしデータ提供元:生活ガイド.com
    ※行政機関により公表していない地域及びデータがございます。東京23区以外の政令指定都市は、市全体のデータとして表示しています。
    ※提供データには細心の注意を払っておりますが、調査後に変更がある場合があります。 最新の情報につきましては各市区役所までお問い合わせいただくか、自治体HPなどをご確認ください。
    OCN×ドコモ光新規お申込みで合計最大137,280円相当おトク!特典の内訳・適用条件など詳細はこちら

    他のエリアから探す

    広島市中区の詳細地域から賃貸物件を探す

    榎町江波栄町江波西江波二本松江波東江波本町江波南大手町加古町銀山町上幟町上八丁堀紙屋町河原町小網町光南国泰寺町小町堺町昭和町住吉町千田町宝町竹屋町立町田中町鶴見町鉄砲町寺町十日市町土橋町中島町中町西川口町西十日市町西白島町西平塚町猫屋町幟町白島北町白島九軒町白島中町羽衣町橋本町八丁堀東千田町東白島町東平塚町平野町広瀬北町広瀬町袋町富士見町舟入川口町舟入幸町舟入中町舟入本町舟入町舟入南堀川町本川町本通三川町南千田西町南千田東町南竹屋町南吉島基町薬研堀弥生町吉島新町吉島町吉島西吉島東

    近辺の市区から探す

    広島市東区広島市南区広島市西区広島市安佐南区広島市安芸区広島市佐伯区廿日市市安芸郡府中町安芸郡海田町安芸郡坂町

    周辺の駅から探す

    山陽本線
    安芸中野海田市向洋天神川広島新白島横川西広島新井口
    広島電鉄白島線
    白島家庭裁判所前縮景園前女学院前八丁堀
    広島電鉄本線
    広島駅稲荷町銀山町胡町八丁堀立町紙屋町東紙屋町西原爆ドーム前

    広島県広島市中区で他のジャンルから探す


    掲載情報の著作権は提供元企業等に帰属します。
    Copyright:(C) 2025 Recruit Co., Ltd.
    アプリで簡単 物件探し 大手不動産サイトの情報から一括検!プッシュ通知で物件を見逃さない
    App Storeからダウンロード Google Playで手に入れよう QRコード