アプリで簡単 物件探し 通知 共有 アプリならではの機能を使ってみる
賃貸マンション

ザ・パークハウス三軒茶屋 西太子堂駅 1LDK 賃貸(賃貸マンション・アパート)

情報提供元
SUUMO
ザ・パークハウス三軒茶屋
賃料 20.5万円  (管理費等:12000円)
礼金・敷金 20.5万円 / 41万円 保証金/敷引・償却 なし / -
交通
所在地 東京都世田谷区若林1周辺地図
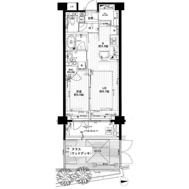
間取り 1LDK 専有面積 45.75m2
築年月 2012年2月 築年数 築13年11ヶ月
おすすめポイント
分譲タイプ!!ウッドデッキテラスで夜空を見らがらお酒でも バストイレ別・脱衣所・独立洗面台・ウォークインクローゼット・L字型キッチン・浴室乾燥機・モニターホン・オートロック・床暖房・宅配BOX・エレベーター・ウッドデッキテラス

詳細情報

賃料 20.5万円 管理費等 12000円
敷金 41万円 礼金 20.5万円
保証金 なし 敷引・償却 -
更新料 - 契約期間
カード決済 初期費用カード決済可
所在地 東京都世田谷区若林1周辺地図
交通
  • 東急世田谷線 西太子堂駅 徒歩2分乗換案内
  • 東急田園都市線 三軒茶屋駅 徒歩8分乗換案内
建物名 ザ・パークハウス三軒茶屋 
間取り 1LDK(洋5.5 LDK13) 築年月(築年数) 2012年2月(築13年11ヶ月)
専有面積 45.75㎡ 所在階/階数 1階/5階建
建物構造 RC  方位 東 
現況   駐車場 近有 48,000円
入居可能時期 相談 住宅保険 あり 2年 20000円
情報提供元 SUUMO[030H100459867251] 情報公開日
情報更新日 次回更新予定日 随時

設備など

2階以上 - 最上階 - 角部屋
駐車場(近隣含) エアコン付き バス・トイレ別
室内洗濯機置き場 追焚機能 オートロック付き
モニタ付インターホン フローリング バルコニー
ガスコンロ可 - 浴室乾燥機 24時間セキュリティ -
宅配ボックス ペット相談可 - 二人入居可
設備 冷房・暖房・エアコン・オートロック・バス・トイレ別・トイレ・収納スペース・洗濯機置場・洗面所・エレベーター・CATV・追焚機能・フローリング・浴室乾燥機・ウォークインクローゼット・シャンプードレッサ・温水洗浄便座・システムキッチン・カウンターキッチン・モニタ付インターホン・宅配BOX・駐輪場・風呂・クローゼット・専用庭・衣類乾燥機・都市ガス・ディンプルキー・浴トイレ別・防犯カメラ・洗面所独立・インターネット対応・室内洗濯機置き場・バルコニー 
リフォーム履歴 -
リノベーション履歴 -
備考 保証会社利用可:総賃料50%から/普通借家2年/二人入居可/子供可/平置駐/更新料 新賃料 30.75万円/バストイレ別/エアコン/フローリング/シャワー付洗面台/TVインターホン/浴室乾燥機/オートロック/室内洗濯置/陽当り良好/システムキッチン/追焚機能浴室/角住戸/温水洗浄便座/脱衣所/エレベーター/洗面所独立/洗面化粧台/駐輪場/宅配ボックス/CATV/光ファイバー/外壁タイル張り/閑静な住宅地/防犯カメラ/分譲賃貸/ウォークインクロゼット/保証人不要/CATVインターネット/二人入居相談/専用庭/ディンプルキー/ダブルロックキー/L字型キッチン/ウッドデッキ/始発駅/3駅以上利用可/3沿線以上利用可/路面電車沿線/バス2路線/駅徒歩5分以内/敷地内ごみ置き場/LDK12畳以上/都市ガス/保証会社利用可/初期費用カード決済可/通風良好/巡回管理/ユニクロキャロットタワー三軒茶屋とうきゅう店(ショッピングセンター)まで653m/まいばすけっと三軒茶屋駅西店(スーパー)まで396m/ナチュラルローソン若林一丁目店(コンビニ)まで218m/アインズ&トルペCarrot St.SANCHA店(ドラッグストア)まで653m/キッチンオリジン三軒茶屋二丁目店(飲食店)まで491m/世田谷区立太子堂小学校(小学校)まで433m 
特記事項 二人入居可・分譲タイプ・角部屋・外観タイル張り・管理人巡回・日当り良好・閑静な住宅街・保証人不要/代行 ・初期費用カード決済可

省エネ性能

エネルギー消費性能 -
断熱性能 -
目安光熱費 -

東京都世田谷区若林1 周辺地図情報

地図
※地図上に表示される物件の位置は付近住所に所在することを表すものであり、実際の物件所在地とは異なる場合がございます。
   正確な物件所在地は、取扱い不動産会社にお問い合わせください。

不動産会社情報

お問い合わせ先 商号:(株)リアルリンクス
免許番号:東京都知事(4)第91492号
所在地:東京都世田谷区太子堂4-3-2 ハイム太子堂1階
TEL:03-5431-3065
取引態様:仲介
管理コード:SAKURAI
所属協会など:(公社)首都圏不動産公正取引協議会加盟、(公社)東京都宅地建物取引業協会会員
共有する
QRコード

    世田谷区の暮らしデータ

    人口などの統計情報

    世帯数 491717世帯
    人口総数 918141人
    転入者数 64326人
    転入率(人口1000人当たり)
    70.06人
    転出者数 59597人
    転出率(人口1000人当たり)
    64.91人
    土地平均価格
    住宅地
    676200円/m2
    商業地
    1209125円/m2

    結婚・育児の助成金

    子育て関連の独自の取り組み (1)産後ケア事業(産後の母子を対象に母体ケア、乳児ケア、育児相談・指導などを行う)。(2)新教科「日本語」教育(2007年より世田谷区立の全小・中学校にて実施)(3)せたがや0→1(ぜろいち)子育てエール(5ヶ月から11ヶ月の子供を育てる家庭への見守り訪問事業)(4)世田谷区バースデーサポート事業(1歳を迎える子供のいる家庭へ子育て支援用品等の購入に使用できるデジタルギフト贈呈。※条件あり)(5)子育てステーションの設置(利便性の高い駅前に点在。多機能子育て支援拠点施設)
    出産祝い あり
    公立保育所数 44所(うち0歳児保育を実施している保育所:20所)
    私立保育所数 172所(うち0歳児保育を実施している保育所:158所)
    保育所入所待機児童数 58人
    認定こども園数 7園 預かり保育実施園数 公立:7園 私立:45園
    学校給食 【小学校】完全給食【中学校】完全給食
    公立中学校の学校選択制 未実施
    子ども・学生等医療費助成<通院>対象年齢 18歳3月末まで 子ども・学生等医療費助成<入院>対象年齢 18歳3月末まで

    世田谷区の治安・ごみ収集情報

    公共料金・インフラ

    ガス料金(22m3使用した場合の月額) 東京瓦斯株式会社(東京地区等)3926円
    水道料金(口径20mmで20m3の月額) 東京都水道局2816円
    下水道料金(20m3を使用した場合の月額) 東京都下水道局2068円
    下水道普及率 99.9%

    安心・安全

    建物火災出火件数 141件
    人口10000人当たり
    1.49件
    刑法犯認知件数 4084件
    人口1000人当たり
    4.33件
    ハザード・防災マップ あり

    医療

    一般病院総数 27ヶ所
    一般診療所総数 952ヶ所
    小児科医師数 349人
    小児人口10000人当たり
    33.26人
    産婦人科医師数 66人
    15~49歳女性人口1万人当たり
    3.00人
    介護保険料基準額(月額) 6280円

    ごみ

    家庭ごみ収集(可燃ごみ) 無料
    備考
    -
    家庭ごみの分別方式 3分別14種〔可燃ごみ 不燃ごみ(小型家電製品・金属類、ガラス陶磁器類、乾電池・白熱電球・LED電球類・割れた蛍光管、ライター) 資源ごみ(古紙[新聞、雑誌類、紙パック、ダンボール]、ガラスびん、缶、ペットボトル、蛍光管、スプレー缶・カセットボンベ)〕
    家庭ごみの戸別収集 一部実施(65歳以上のひとり暮らし高齢者または高齢者のみの世帯で、世帯全員が介護保険法の要介護2または2程度、ひとり暮らしの障害者または障害者のみの世帯)
    粗大ごみ収集 あり
    備考
    有料。戸別収集。事前申込制。粗大ごみ処理券を購入し、添付。持ち込みも可能。
    生ごみ処理機助成金制度 なし
    上限金額
    -
    上限比率
    -
    暮らしデータ提供元:生活ガイド.com
    ※行政機関により公表していない地域及びデータがございます。東京23区以外の政令指定都市は、市全体のデータとして表示しています。
    ※提供データには細心の注意を払っておりますが、調査後に変更がある場合があります。 最新の情報につきましては各市区役所までお問い合わせいただくか、自治体HPなどをご確認ください。
    OCN×ドコモ光新規お申込みで合計最大137,280円相当おトク!特典の内訳・適用条件など詳細はこちら

    他のエリアから探す

    世田谷区の詳細地域から賃貸物件を探す

    赤堤池尻宇奈根梅丘大蔵大原岡本奥沢尾山台粕谷鎌田上馬上北沢上祖師谷上野毛上用賀北烏山北沢喜多見給田経堂駒沢豪徳寺桜丘桜新町桜上水三軒茶屋下馬新町成城瀬田世田谷祖師谷太子堂玉川玉川台玉川田園調布玉堤代沢代田千歳台弦巻等々力中町野毛野沢八幡山羽根木東玉川深沢船橋松原三宿南烏山宮坂用賀若林

    近辺の市区から探す

    千代田区中央区港区新宿区文京区品川区目黒区大田区渋谷区中野区杉並区豊島区板橋区練馬区武蔵野市三鷹市調布市狛江市川崎市幸区川崎市中原区川崎市高津区川崎市多摩区川崎市宮前区

    周辺の駅から探す

    東急世田谷線
    三軒茶屋西太子堂若林松陰神社前世田谷上町
    東急田園都市線
    渋谷池尻大橋三軒茶屋駒沢大学桜新町用賀二子玉川

    マンションライブラリーを見る

    ザ・パークハウス三軒茶屋

    東京都世田谷区で他のジャンルから探す


    掲載情報の著作権は提供元企業等に帰属します。
    Copyright:(C) 2025 Recruit Co., Ltd.
    アプリで簡単 物件探し 大手不動産サイトの情報から一括検!プッシュ通知で物件を見逃さない
    App Storeからダウンロード Google Playで手に入れよう QRコード