アプリで簡単 物件探し 通知 共有 アプリならではの機能を使ってみる
賃貸マンション

インプルーブ西早稲田 面影橋駅 3LDK 賃貸(賃貸マンション・アパート)

情報提供元
SUUMO
インプルーブ西早稲田 外観
賃料 25.5万円  (管理費等:15000円)
礼金・敷金 なし / 1ヶ月 保証金/敷引・償却 なし / -
交通
所在地 東京都新宿区西早稲田3周辺地図
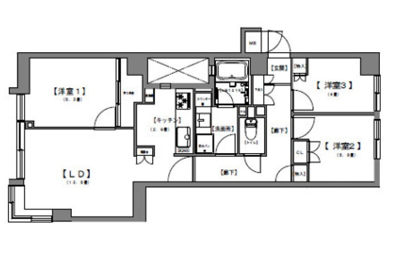
間取り 3LDK 専有面積 64.93m2
築年月 1987年7月 築年数 築38年6ヶ月
おすすめポイント
★礼金不要★温水洗浄便座★宅配BOX★オートロック★駐輪場★ ★システムキッチン・3口ガスコンロ★独立洗面台★室内洗濯機置場★エアコン★クロゼット★シューズボックス★モニタ付インターホン★防犯カメラ★メールBOX★株式会社ユウキ・ホーム03-5730-0066★
お問い合わせ先
(株)ユウキ・ホーム麻布十番サテライト店
お問い合わせ先
(株)ユウキ・ホーム麻布十番サテライト店

詳細情報

賃料 25.5万円 管理費等 15000円
敷金 1ヶ月 礼金 なし
保証金 なし 敷引・償却 -
更新料 - 契約期間
カード決済 -
所在地 東京都新宿区西早稲田3周辺地図
交通
  • 都電荒川線 面影橋駅 徒歩3分乗換案内
  • 東京メトロ副都心線 西早稲田駅 徒歩6分乗換案内
  • JR山手線 高田馬場駅 徒歩13分乗換案内
建物名 インプルーブ西早稲田 
間取り 3LDK(LDK) 築年月(築年数) 1987年7月(築38年6ヶ月)
専有面積 64.93㎡ 所在階/階数 地下1階/地上6階地下1階建
建物構造 RC  方位  
現況   駐車場 無    近くの駐車場を探す
入居可能時期 即時 住宅保険 あり 0年 22000円
情報提供元 SUUMO[030H100473523013] 情報公開日
情報更新日 次回更新予定日 随時

設備など

2階以上 最上階 - 角部屋 -
駐車場(近隣含) - エアコン付き バス・トイレ別
室内洗濯機置き場 追焚機能 - オートロック付き
モニタ付インターホン フローリング - バルコニー -
ガスコンロ可 浴室乾燥機 - 24時間セキュリティ -
宅配ボックス ペット相談可 - 二人入居可 -
設備 冷房・暖房・エアコン・オートロック・バス・トイレ別・トイレ・収納スペース・洗濯機置場・洗面所・エレベーター・ガスコンロ可・温水洗浄便座・システムキッチン・モニタ付インターホン・宅配BOX・駐輪場・クローゼット・都市ガス・浴トイレ別・防犯カメラ・洗面所独立・コンロ2口以上・シューズボックス・室内洗濯機置き場 
リフォーム履歴 -
リノベーション履歴 -
備考 鍵交換代/室内清掃費用:99000円 エアコンクリーニング費用:16500円/台/保証会社利用必:初回保証料:総賃料等の60% 詳細はお問い合わせ下さい。/単身者可/2年未満解約時賃料のみ1ヶ月違約金有り 駐輪場:※詳細はお問い合わせください/バストイレ別/エアコン/ガスコンロ対応/クロゼット/TVインターホン/オートロック/室内洗濯置/シューズボックス/システムキッチン/温水洗浄便座/エレベーター/洗面所独立/洗面化粧台/駐輪場/宅配ボックス/即入居可/礼金不要/3口以上コンロ/防犯カメラ/グリル付/保証人不要/3駅以上利用可/3沿線以上利用可/駅徒歩5分以内/敷地内ごみ置き場/都市ガス/保証会社利用可/巡回管理/ファミリーマート 西早稲田店(コンビニ)まで261m/三徳西早稲田店(スーパー)まで402m/スギ薬局 高田馬場店(ドラッグストア)まで418m 
特記事項 管理人巡回・保証人不要/代行

省エネ性能

エネルギー消費性能 -
断熱性能 -
目安光熱費 -

東京都新宿区西早稲田3 周辺地図情報

地図
※地図上に表示される物件の位置は付近住所に所在することを表すものであり、実際の物件所在地とは異なる場合がございます。
   正確な物件所在地は、取扱い不動産会社にお問い合わせください。
お問い合わせ先
(株)ユウキ・ホーム麻布十番サテライト店

不動産会社情報

お問い合わせ先 商号:(株)ユウキ・ホーム麻布十番サテライト店
免許番号:東京都知事(5)第76214号
所在地:東京都港区麻布十番2-19-10 桂麻布十番ビル1階
TEL:03-6435-0195
取引態様:仲介
管理コード:aaaa 508290
所属協会など:(公社)首都圏不動産公正取引協議会加盟、(公社)東京都宅地建物取引業協会会員
共有する
QRコード
お問い合わせ先
(株)ユウキ・ホーム麻布十番サテライト店

    新宿区の暮らしデータ

    人口などの統計情報

    世帯数 222461世帯
    人口総数 349226人
    転入者数 46749人
    転入率(人口1000人当たり)
    133.86人
    転出者数 41291人
    転出率(人口1000人当たり)
    118.24人
    土地平均価格
    住宅地
    875917円/m2
    商業地
    5390517円/m2

    結婚・育児の助成金

    子育て関連の独自の取り組み (1)新宿区子ども未来基金(子どもの育ちを支援する区民等の自主的な活動への支援等)。(2)しんじゅく子育て応援ナビ(スマートフォンによる子育て情報の提供)。(3)産前産後支援事業(ヘルパーや産後ドゥーラの派遣)。(4)ホームスタート(先輩ママ、パパが家庭を訪問し子育て支援)。(5)多世代近居同居助成(近居・同居にかかる子世帯と親世帯の費用を一部助成)。(6)次世代育成転居助成(子育て世帯へ民間賃貸住宅への住み替えにかかる費用を一部助成)。(7)ひとり親家庭休養ホーム。(8)ベビーシッター利用支援。(9)障害児通所支援の利用者負担を軽減。(10)障害児通所施設における給食費の負担を軽減。
    出産祝い あり
    公立保育所数 11所(うち0歳児保育を実施している保育所:11所)
    私立保育所数 54所(うち0歳児保育を実施している保育所:39所)
    保育所入所待機児童数 0人
    認定こども園数 17園 預かり保育実施園数 公立:4園 私立:9園
    学校給食 【小学校】完全給食【中学校】完全給食
    公立中学校の学校選択制 実施(新入学時のみ)
    子ども・学生等医療費助成<通院>対象年齢 18歳3月末まで 子ども・学生等医療費助成<入院>対象年齢 18歳3月末まで

    新宿区の治安・ごみ収集情報

    公共料金・インフラ

    ガス料金(22m3使用した場合の月額) 東京瓦斯株式会社(東京地区等)3926円
    水道料金(口径20mmで20m3の月額) 東京都水道局2816円
    下水道料金(20m3を使用した場合の月額) 東京都下水道局2068円
    下水道普及率 100.0%

    安心・安全

    建物火災出火件数 168件
    人口10000人当たり
    4.81件
    刑法犯認知件数 5537件
    人口1000人当たり
    15.85件
    ハザード・防災マップ あり

    医療

    一般病院総数 13ヶ所
    一般診療所総数 766ヶ所
    小児科医師数 237人
    小児人口10000人当たり
    78.56人
    産婦人科医師数 153人
    15~49歳女性人口1万人当たり
    17.39人
    介護保険料基準額(月額) 6600円

    ごみ

    家庭ごみ収集(可燃ごみ) 無料
    備考
    日量10kgを超える臨時のごみは有料。
    家庭ごみの分別方式 3分別14種〔燃やすごみ 金属・陶器・ガラスごみ(陶器・刃物・ガラス類、蛍光ランプ・水銀体温計・水銀血圧計、ライター) 資源(資源プラスチック[製品プラスチック・容器包装プラスチック]、古紙[新聞、チラシ・雑誌・本、紙パック、段ボール]、びん、缶、ペットボトル、スプレー缶・カセットボンベ、乾電池)〕 拠点回収:使用済小型電子機器等 紙パック 白色トレイ 乾電池
    家庭ごみの戸別収集 一部実施(高齢者・障害者世帯等のごみ出しを支援)
    粗大ごみ収集 あり
    備考
    有料。事前申込制。家庭から排出される粗大ごみに限る。大きさにより400~3,200円。
    生ごみ処理機助成金制度 なし
    上限金額
    -
    上限比率
    -
    暮らしデータ提供元:生活ガイド.com
    ※行政機関により公表していない地域及びデータがございます。東京23区以外の政令指定都市は、市全体のデータとして表示しています。
    ※提供データには細心の注意を払っておりますが、調査後に変更がある場合があります。 最新の情報につきましては各市区役所までお問い合わせいただくか、自治体HPなどをご確認ください。
    OCN×ドコモ光新規お申込みで合計最大137,280円相当おトク!特典の内訳・適用条件など詳細はこちら

    他のエリアから探す

    新宿区の詳細地域から賃貸物件を探す

    愛住町赤城下町赤城元町揚場町荒木町市谷加賀町市谷甲良町市谷砂土原町市谷左内町市谷鷹匠町市谷田町市谷台町市谷長延寺町市谷仲之町市谷船河原町市谷本村町市谷薬王寺町市谷柳町市谷山伏町岩戸町榎町大久保改代町神楽坂片町歌舞伎町上落合河田町喜久井町北新宿北町北山伏町細工町左門町三栄町信濃町下落合下宮比町白銀町新小川町新宿水道町須賀町住吉町高田馬場箪笥町大京町築地町津久戸町筑土八幡町天神町戸塚町富久町戸山内藤町中井中落合中里町中町納戸町西落合西五軒町西新宿西早稲田二十騎町払方町原町馬場下町東榎町東五軒町百人町袋町舟町弁天町南榎町南町南元町南山伏町山吹町矢来町横寺町余丁町四谷四谷坂町四谷三栄町四谷本塩町若葉若松町若宮町早稲田鶴巻町早稲田町早稲田南町

    近辺の市区から探す

    川口市千代田区中央区港区文京区台東区墨田区江東区品川区目黒区世田谷区渋谷区中野区杉並区豊島区北区荒川区板橋区練馬区足立区武蔵野市

    周辺の駅から探す

    山手線
    原宿代々木新宿新大久保高田馬場目白池袋大塚巣鴨
    東京メトロ副都心線
    千川要町池袋雑司が谷西早稲田東新宿新宿三丁目北参道明治神宮前
    都電荒川線
    東池袋四丁目都電雑司ヶ谷鬼子母神前学習院下面影橋早稲田

    東京都新宿区で他のジャンルから探す


    掲載情報の著作権は提供元企業等に帰属します。
    Copyright:(C) 2025 Recruit Co., Ltd.
    アプリで簡単 物件探し 大手不動産サイトの情報から一括検!プッシュ通知で物件を見逃さない
    App Storeからダウンロード Google Playで手に入れよう QRコード