賃貸マンション
レジディア神田岩本町II 岩本町駅 ワンルーム 賃貸(賃貸マンション・アパート)
| 賃料 |
10.9万円 (管理費等:10000円) |
| 礼金・敷金 |
なし / なし |
保証金/敷引・償却 |
なし / - |
| 交通 |
|
| 所在地 |
東京都千代田区岩本町2周辺地図
|
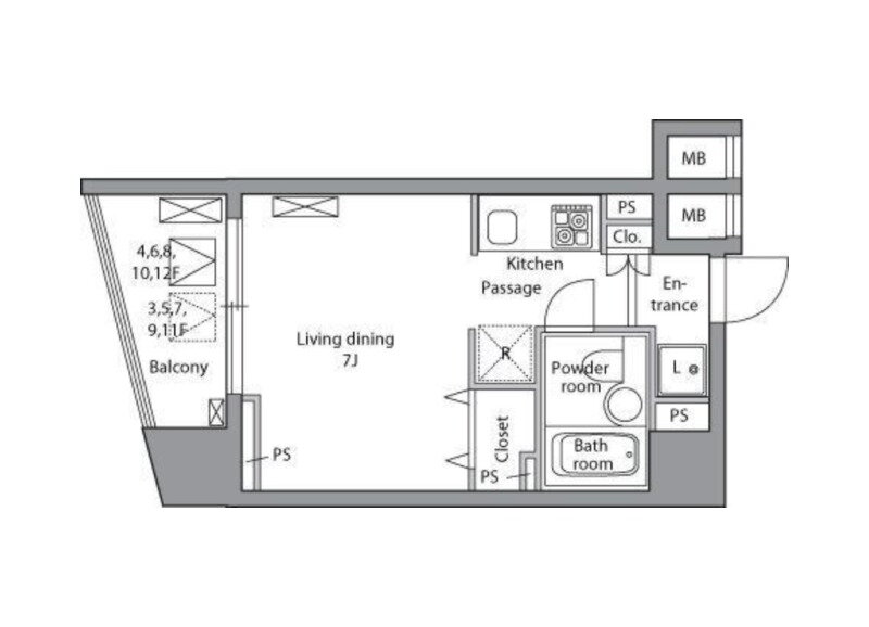
| 間取り |
ワンルーム |
専有面積 |
22.71m2 |
| 築年月 |
2007年4月 |
築年数 |
築18年8ヶ月 |
- おすすめポイント
- 人気高級レジデンス募集都心エリアのお部屋探しはお任せ下さい。 衣食住のライフスタイルまでトータルでご提案させて頂きます。審査初期費用等の全てのご要望に全力でお答え致します。内見詳細は03-5843-0940までお電話下さいませ。
| 賃料 |
10.9万円 |
管理費等 |
10000円 |
| 敷金 |
なし |
礼金 |
なし |
| 保証金 |
なし |
敷引・償却 |
- |
| 更新料 |
- |
契約期間 |
|
| カード決済 |
初期費用カード決済可 |
| 所在地 |
東京都千代田区岩本町2周辺地図
|
| 交通 |
- 都営新宿線 岩本町駅 徒歩2分乗換案内
- 東京メトロ日比谷線 小伝馬町駅 徒歩6分乗換案内
- 東京メトロ日比谷線 秋葉原駅 徒歩6分乗換案内
|
| 建物名 |
レジディア神田岩本町II |
| 間取り |
ワンルーム(洋7) |
築年月(築年数) |
2007年4月(築18年8ヶ月)
|
| 専有面積 |
22.71㎡ |
所在階/階数 |
7階/13階建
|
| 建物構造 |
RC |
方位 |
南東 |
| 現況 |
|
駐車場 |
有 44,000円 |
| 入居可能時期 |
即時 |
住宅保険 |
あり 2年 21500円 |
| 情報提供元 |
SUUMO[030H100471117288] |
情報公開日 |
|
| 情報更新日 |
|
次回更新予定日 |
随時 |
設備など
| 2階以上 |
○ |
最上階 |
- |
角部屋 |
- |
| 駐車場(近隣含) |
○ |
エアコン付き |
○ |
バス・トイレ別 |
- |
| 室内洗濯機置き場 |
○ |
追焚機能 |
- |
オートロック付き |
○ |
| モニタ付インターホン |
○ |
フローリング |
○ |
バルコニー |
○ |
| ガスコンロ可 |
- |
浴室乾燥機 |
○ |
24時間セキュリティ |
- |
| 宅配ボックス |
○ |
ペット相談可 |
- |
二人入居可 |
- |
| 設備 |
冷房・暖房・エアコン・オートロック・バルコニー・トイレ・収納スペース・洗濯機置場・エレベーター・BS端子・フローリング・浴室乾燥機・温水洗浄便座・システムキッチン・モニタ付インターホン・宅配BOX・駐輪場・クローゼット・CS・衣類乾燥機・IHクッキングヒータ・シューズボックス・インターネット対応・室内洗濯機置き場 |
| リフォーム履歴 |
- |
| リノベーション履歴 |
- |
| 備考 |
鍵交換代 22000円税込/インターネット利*料 1650円/月額 更新料 1ヶ月/保証会社利用必:40%、更新時:10,000円、*額:1,000円/普通借家02年/幅広い観点から物件をご提案させて頂きます。BRISSはチームで物件を提案からご案内させて頂きますので効率良く短時間でお部屋探しが可能でございます。入居後から退去後まで出来る限りのサポートをさせて頂きます。また、夜間の対応もしておりますので休日の貴重なお時間を使わずにお部屋探しができます。/バルコニー/エアコン/クロゼット/フローリング/TVインターホン/浴室乾燥機/オートロック/室内洗濯置/シューズボックス/システムキッチン/温水洗浄便座/脱衣所/エレベーター/駐輪場/宅配ボックス/光ファイバー/即入居可/BS・CS/IHクッキングヒーター/全居室洋室/保証人不要/24時間緊急通報システム/CS/3駅以上利用可/3沿線以上利用可/駅徒歩5分以内/24時間ゴミ出し可/敷地内ごみ置き場/東南向き/全居室6畳以上/BS/高速ネット対応/敷金・礼金不要/初期費用カード決済可/巡回管理/まいばすけっと岩本町2丁目店(スーパー)まで10m/マルエツ小伝馬町駅前店(スーパー)まで525m/デイリーヤマザキ岩本町3丁目店(コンビニ)まで134m/エフワン秋葉原駅前店(ショッピングセンター)まで547m/スギ薬局岩本町店(ドラッグストア)まで198m/JR総武本線 馬喰町駅徒歩7分/賃貸戸数:48戸 |
| 特記事項 |
管理人巡回・保証人不要/代行 ・初期費用カード決済可 |
東京都千代田区岩本町2 周辺地図情報
※地図上に表示される物件の位置は付近住所に所在することを表すものであり、実際の物件所在地とは異なる場合がございます。
正確な物件所在地は、取扱い不動産会社にお問い合わせください。
不動産会社情報
| お問い合わせ先 |
商号:(株)BRISS 免許番号:東京都知事(2)第103074号 所在地:東京都中央区築地2-10-10 GY築地ビル4階 TEL:03-5843-0940 取引態様:貸主 管理コード:13201139 所属協会など:(公社)首都圏不動産公正取引協議会加盟、(公社)全日本不動産協会東京都本部会員
|
共有する |
|
人口などの統計情報
| 世帯数 |
36963世帯 |
| 人口総数 |
68755人 |
| 転入者数 |
8663人
- 転入率(人口1000人当たり)
- 126.00人
|
| 転出者数 |
7904人
- 転出率(人口1000人当たり)
- 114.96人
|
| 土地平均価格 |
- 住宅地
- 3460000円/m2
- 商業地
- 5812393円/m2
|
結婚・育児の助成金
| 子育て関連の独自の取り組み |
誕生準備手当(妊娠20週以降の妊婦に4.5万円)。 |
| 出産祝い |
なし |
| 公立保育所数 |
6所(うち0歳児保育を実施している保育所:6所) |
| 私立保育所数 |
18所(うち0歳児保育を実施している保育所:18所) |
| 保育所入所待機児童数 |
0人 |
| 認定こども園数 |
1園 |
預かり保育実施園数 |
公立:8園 私立:1園 |
| 学校給食 |
【小学校】完全給食【中学校】完全給食 |
| 公立中学校の学校選択制 |
実施 |
| 子ども・学生等医療費助成<通院>対象年齢 |
18歳3月末まで |
子ども・学生等医療費助成<入院>対象年齢 |
18歳3月末まで |
千代田区の治安・ごみ収集情報
公共料金・インフラ
| ガス料金(22m3使用した場合の月額) |
東京瓦斯株式会社(東京地区等)3926円 |
| 水道料金(口径20mmで20m3の月額) |
東京都水道局2816円 |
| 下水道料金(20m3を使用した場合の月額) |
東京都下水道局2068円 |
| 下水道普及率 |
100.0% |
安心・安全
| 建物火災出火件数 |
133件
- 人口10000人当たり
- 19.95件
|
| 刑法犯認知件数 |
2376件
- 人口1000人当たり
- 35.63件
|
| ハザード・防災マップ |
あり |
医療
| 一般病院総数 |
15ヶ所 |
| 一般診療所総数 |
555ヶ所 |
| 小児科医師数 |
44人
- 小児人口10000人当たり
- 47.85人
|
| 産婦人科医師数 |
33人
- 15~49歳女性人口1万人当たり
- 19.79人
|
| 介護保険料基準額(月額) |
5600円 |
ごみ
| 家庭ごみ収集(可燃ごみ) |
一部有料
|
| 家庭ごみの分別方式 |
5分別13種〔燃やすごみ 燃やさないごみ 資源(新聞、雑誌、段ボール、紙パック、その他の紙類、びん、かん、ペットボトル) プラスチック 蛍光管等(乾電池・スプレー缶)〕 拠点回収:資源(使用済小型家電 古布 廃食料油) |
| 家庭ごみの戸別収集 |
一部実施(新規集積所・共同集積所を廃止、分散した際に戸別収集となる) |
| 粗大ごみ収集 |
あり
|
| 生ごみ処理機助成金制度 |
あり
- 上限金額
- 30000円
- 上限比率
- 66.7%
|
※行政機関により公表していない地域及びデータがございます。東京23区以外の政令指定都市は、市全体のデータとして表示しています。
※提供データには細心の注意を払っておりますが、調査後に変更がある場合があります。 最新の情報につきましては各市区役所までお問い合わせいただくか、自治体HPなどをご確認ください。
千代田区の暮らしデータをもっと見る