アプリで簡単 物件探し 通知 共有 アプリならではの機能を使ってみる
賃貸マンション

王子神谷パークサイドハイツ 王子神谷駅 3LDK 賃貸(賃貸マンション・アパート)

情報提供元
アットホーム
王子神谷パークサイドハイツ
賃料 19.8万円  (管理費等:12000円)
礼金・敷金 2ヶ月 / 1ヶ月 保証金/敷引・償却 なし / -
交通
所在地 東京都北区王子5丁目周辺地図
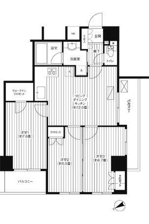
間取り 3LDK 専有面積 68.33m2
築年月 2006年12月 築年数 築19年1ヶ月
おすすめポイント
楽器相談・二人入居可・閑静な住宅街・角部屋・管理人日勤・保証人不要/代行
お問い合わせ先
リロの不動産 (株)日商ベックス 代々木店
お問い合わせ先
リロの不動産 (株)日商ベックス 代々木店

詳細情報

賃料 19.8万円 管理費等 12000円
敷金 1ヶ月 礼金 2ヶ月
保証金 なし 敷引・償却 -
更新料 新賃料の1ヶ月分 契約期間 2年
カード決済 -
所在地 東京都北区王子5丁目周辺地図
交通
  • 東京メトロ南北線 王子神谷駅 徒歩1分乗換案内
  • JR京浜東北・根岸線 東十条駅 徒歩12分乗換案内
  • 東京メトロ南北線 志茂駅 徒歩19分乗換案内
建物名 王子神谷パークサイドハイツ 
間取り 3LDK(LDK12・洋室7.6・洋室5.5・洋室6.7) 築年月(築年数) 2006年12月(築19年1ヶ月)
専有面積 68.33㎡ 所在階/階数 7階/15階建
建物構造 RC  方位 南西 
現況 空  駐車場 有 31,900円
入居可能時期 相談 住宅保険 あり
情報提供元 アットホーム[1190677014] 情報公開日
情報更新日 - 次回更新予定日 随時

設備など

2階以上 最上階 - 角部屋
駐車場(近隣含) エアコン付き バス・トイレ別
室内洗濯機置き場 追焚機能 オートロック付き
モニタ付インターホン フローリング バルコニー
ガスコンロ可 - 浴室乾燥機 24時間セキュリティ -
宅配ボックス ペット相談可 - 二人入居可
設備 冷房・暖房・エアコン・オートロック・バルコニー・バス・トイレ別・トイレ・洗濯機置場・室内洗濯機置き場・洗面所・シャワー・エレベーター・CATV・BS端子・追焚機能・都市ガス・洗面台・フローリング・浴室乾燥機・ウォークインクローゼット・温水洗浄便座・システムキッチン・モニタ付インターホン・宅配BOX・駐輪場・クローゼット・CS・2面バルコニー・防犯カメラ・洗面所独立・シューズボックス・光ファイバー(ブロードバンド)・3口以上コンロ・CATVインターネット 
リフォーム履歴 -
リノベーション履歴 -
備考 内覧予約随時受付中☆ お問い合わせは日商ベックス代々木店へ♪ 何かお困りな事などありましたらお気軽にご相談ください☆ ご要望にぴったりなお部屋を、一緒にお探しします♪・賃貸保証等:加入要(初回契約時:40%、更新時:1%、月額:1%)・鍵交換代:あり22,000円~・駐車場敷金:1ヶ月・管理形態/管理員の勤務形態:日勤・自転車置き場2台無料♪アップライト・電子エレクトーン演奏可♪・バイク置場:なし・駐輪場:有・仲介手数料:1.1ヶ月/退去時ハウスクリーニング 90195円 
特記事項 楽器相談・二人入居可・閑静な住宅街・角部屋・管理人日勤・保証人不要/代行

省エネ性能

エネルギー消費性能 -
断熱性能 -
目安光熱費 -

東京都北区王子5丁目 周辺地図情報

地図
※地図上に表示される物件の位置は付近住所に所在することを表すものであり、実際の物件所在地とは異なる場合がございます。
   正確な物件所在地は、取扱い不動産会社にお問い合わせください。
お問い合わせ先
リロの不動産 (株)日商ベックス 代々木店
アピールポイント
陽当り・風通し良好・明るいお部屋♪遮音等級LL-45フローリング、防音等級TS-30サッシ♪自転車置き場1台無料♪

不動産会社情報

お問い合わせ先 商号:リロの不動産 (株)日商ベックス 代々木店
免許番号:国土交通大臣免許(10)第3273号
所在地:渋谷区代々木1丁目45-1日商代々木ビル
TEL:03-3379-7744
取引態様:仲介
管理コード:00013435821_321
所属協会など:(一社)全国住宅産業協会会員、(公社)首都圏不動産公正取引協議会加盟
共有する
QRコード
お問い合わせ先
リロの不動産 (株)日商ベックス 代々木店

    北区の暮らしデータ

    人口などの統計情報

    世帯数 189579世帯
    人口総数 357701人
    転入者数 34161人
    転入率(人口1000人当たり)
    95.50人
    転出者数 27589人
    転出率(人口1000人当たり)
    77.13人
    土地平均価格
    住宅地
    588417円/m2
    商業地
    1236700円/m2

    結婚・育児の助成金

    子育て関連の独自の取り組み (1)子育て福袋事業(安心ママパパヘルパー事業等の案内)。(2)みんなでお祝い輝きバースデー事業。(3)子どもかがやき顕彰。(4)ひとり親家庭等相談支援事業。(5)子どもの居場所づくり(子ども食堂)支援事業。(6)生活困窮世帯・ひとり親世帯等の小学生、中学生への学習支援。(7)区立学校給食費補助金制度(給食費無償化)。
    出産祝い なし
    公立保育所数 42所(うち0歳児保育を実施している保育所:36所)
    私立保育所数 55所(うち0歳児保育を実施している保育所:45所)
    保育所入所待機児童数 8人
    認定こども園数 3園 預かり保育実施園数 公立:0園 私立:21園
    学校給食 【小学校】完全給食【中学校】完全給食
    公立中学校の学校選択制 未実施
    子ども・学生等医療費助成<通院>対象年齢 18歳3月末まで 子ども・学生等医療費助成<入院>対象年齢 18歳3月末まで

    北区の治安・ごみ収集情報

    公共料金・インフラ

    ガス料金(22m3使用した場合の月額) 東京瓦斯株式会社(東京地区等)3926円
    水道料金(口径20mmで20m3の月額) 東京都水道局2816円
    下水道料金(20m3を使用した場合の月額) 東京都下水道局2068円
    下水道普及率 100.0%

    安心・安全

    建物火災出火件数 58件
    人口10000人当たり
    1.63件
    刑法犯認知件数 2052件
    人口1000人当たり
    5.78件
    ハザード・防災マップ あり

    医療

    一般病院総数 17ヶ所
    一般診療所総数 294ヶ所
    小児科医師数 97人
    小児人口10000人当たり
    26.35人
    産婦人科医師数 23人
    15~49歳女性人口1万人当たり
    2.82人
    介護保険料基準額(月額) 6290円

    ごみ

    家庭ごみ収集(可燃ごみ) 無料
    備考
    日量10kgを超える場合又は臨時ごみは有料。
    家庭ごみの分別方式 5分別10種〔可燃ごみ 不燃ごみ 古紙(新聞、雑誌、ダンボール、雑紙) 資源物(ビン、カン、ペットボトル) プラスチック〕 拠点回収:紙パック 発泡トレイ 古布 廃食油 水銀入り乾電池
    家庭ごみの戸別収集 一部実施(北区内一部地域と、ご自身で集積所までごみを運び出すことが困難であり、身近な人の協力を得ることができない65歳以上又は障害のある方で、北区清掃事務所に申し出のあった方が対象)
    粗大ごみ収集 あり
    備考
    有料。事前申込制。
    生ごみ処理機助成金制度 あり
    上限金額
    20000円
    上限比率
    50.0%
    暮らしデータ提供元:生活ガイド.com
    ※行政機関により公表していない地域及びデータがございます。東京23区以外の政令指定都市は、市全体のデータとして表示しています。
    ※提供データには細心の注意を払っておりますが、調査後に変更がある場合があります。 最新の情報につきましては各市区役所までお問い合わせいただくか、自治体HPなどをご確認ください。
    OCN×ドコモ光新規お申込みで合計最大137,280円相当おトク!特典の内訳・適用条件など詳細はこちら

    北区内の各駅の住みやすさ

    他のエリアから探す

    北区の詳細地域から賃貸物件を探す

    赤羽赤羽北赤羽台赤羽西赤羽南岩淵町浮間王子王子本町上十条上中里神谷岸町桐ケ丘栄町志茂昭和町十条台十条仲原滝野川田端田端新町豊島中里中十条西が丘西ケ原東十条東田端堀船

    近辺の市区から探す

    さいたま市南区川口市草加市蕨市戸田市和光市八潮市千代田区中央区港区新宿区文京区台東区墨田区江東区目黒区渋谷区中野区杉並区豊島区荒川区板橋区練馬区足立区葛飾区

    周辺の駅から探す

    京浜東北・根岸線
    西川口川口赤羽東十条王子上中里田端西日暮里
    東京メトロ南北線
    本駒込駒込西ケ原王子王子神谷志茂赤羽岩淵

    東京都北区で他のジャンルから探す


    掲載情報の著作権は提供元企業等に帰属します。
    Copyright:(C) 2025 At Home Co.,Ltd
    アプリで簡単 物件探し 大手不動産サイトの情報から一括検!プッシュ通知で物件を見逃さない
    App Storeからダウンロード Google Playで手に入れよう QRコード