アプリで簡単 物件探し 通知 共有 アプリならではの機能を使ってみる
賃貸マンション

ヒューリック浅草一丁目 浅草駅 1LDK 賃貸(賃貸マンション・アパート)

情報提供元
アットホーム
ヒューリック浅草一丁目
賃料 24万円  (管理費等:10000円)
礼金・敷金 なし / 1ヶ月 保証金/敷引・償却 なし / -
交通
所在地 東京都台東区浅草1丁目周辺地図
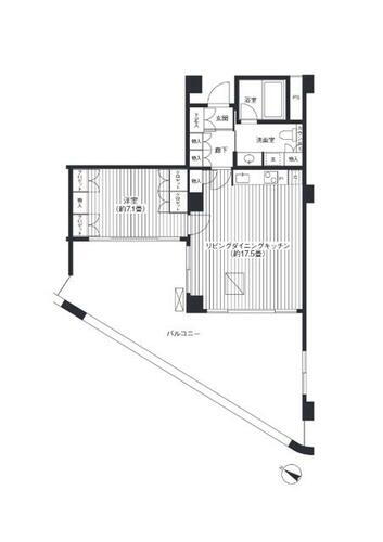
間取り 1LDK 専有面積 63.55m2
築年月 1990年4月 築年数 築35年9ヶ月
おすすめポイント
閑静な住宅街・外観タイル張り・保証人不要/代行
お問い合わせ先
リロの不動産 (株)日商ベックス 代々木店
お問い合わせ先
リロの不動産 (株)日商ベックス 代々木店

詳細情報

賃料 24万円 管理費等 10000円
敷金 1ヶ月 礼金 なし
保証金 なし 敷引・償却 -
更新料 新賃料の1ヶ月分 契約期間 2年
カード決済 -
所在地 東京都台東区浅草1丁目周辺地図
交通
  • つくばエクスプレス 浅草駅 徒歩1分乗換案内
  • 東京メトロ銀座線 田原町駅 徒歩5分乗換案内
  • 東京メトロ銀座線 浅草駅 徒歩5分乗換案内
建物名 ヒューリック浅草一丁目 
間取り 1LDK(LDK17.5・洋室7.1) 築年月(築年数) 1990年4月(築35年9ヶ月)
専有面積 63.55㎡ 所在階/階数 6階/8階建
建物構造 RC  方位 西 
現況 空  駐車場 有 44,000円
入居可能時期 即時 住宅保険 あり
情報提供元 アットホーム[1187475914] 情報公開日
情報更新日 - 次回更新予定日 随時

設備など

2階以上 最上階 - 角部屋 -
駐車場(近隣含) エアコン付き バス・トイレ別
室内洗濯機置き場 - 追焚機能 - オートロック付き
モニタ付インターホン フローリング バルコニー
ガスコンロ可 - 浴室乾燥機 - 24時間セキュリティ -
宅配ボックス ペット相談可 - 二人入居可 -
設備 エアコン・オートロック・バルコニー・バス・トイレ別・トイレ・収納スペース・洗面所・シャワー・エレベーター・BS端子・洗面台・フローリング・温水洗浄便座・システムキッチン・モニタ付インターホン・宅配BOX・クローゼット・IHクッキングヒータ・防犯カメラ・洗面所独立・コンロ2口以上・シューズボックス 
リフォーム履歴 -
リノベーション履歴 -
備考 内覧予約随時受付中☆ お問い合わせは日商ベックス代々木店へ♪ 何かお困りな事などありましたらお気軽にご相談ください☆ ご要望にぴったりなお部屋を、一緒にお探しします♪・賃貸保証等:加入要(初回契約時:40%、更新時:1%、月額:1%)・鍵交換代:あり22,000円~・維持費等:ヒーツシステム料3,344円/月・駐車場敷金:1ヶ月・ご内見は現地・オンライン相談可能です!・バイク置場:なし・駐輪場:なし・仲介手数料:1.1ヶ月/退去時ハウスクリーニング 90876円 
特記事項 閑静な住宅街・外観タイル張り・保証人不要/代行

省エネ性能

エネルギー消費性能 -
断熱性能 -
目安光熱費 -

東京都台東区浅草1丁目 周辺地図情報

地図
※地図上に表示される物件の位置は付近住所に所在することを表すものであり、実際の物件所在地とは異なる場合がございます。
   正確な物件所在地は、取扱い不動産会社にお問い合わせください。
お問い合わせ先
リロの不動産 (株)日商ベックス 代々木店
アピールポイント
オール電化・ヒーツシステム採用です。浅草駅徒歩1分!広々としたお部屋です♪

不動産会社情報

お問い合わせ先 商号:リロの不動産 (株)日商ベックス 代々木店
免許番号:国土交通大臣免許(10)第3273号
所在地:渋谷区代々木1丁目45-1日商代々木ビル
TEL:03-3379-7744
取引態様:仲介
管理コード:00013310402_321
所属協会など:(一社)全国住宅産業協会会員、(公社)首都圏不動産公正取引協議会加盟
共有する
QRコード
お問い合わせ先
リロの不動産 (株)日商ベックス 代々木店

    台東区の暮らしデータ

    人口などの統計情報

    世帯数 121557世帯
    人口総数 212388人
    転入者数 25608人
    転入率(人口1000人当たり)
    120.57人
    転出者数 19506人
    転出率(人口1000人当たり)
    91.84人
    土地平均価格
    住宅地
    741667円/m2
    商業地
    1973458円/m2

    結婚・育児の助成金

    子育て関連の独自の取り組み (1)弱視等治療用眼鏡助成(9歳未満の児童が弱視等の治療用眼鏡を修理した場合及び保険で認められない期間に買い換えた場合、当該費用の一部を助成)。(2)にぎやか家庭応援プラン(第3子以降のお子さんの出生、小学校・中学校入学時に3万円相当のお祝品を贈呈)。(3)バスレクリエーション(ひとり親家庭を対象に日帰りのバスハイクを年2回実施)。
    出産祝い あり
    公立保育所数 11所(うち0歳児保育を実施している保育所:8所)
    私立保育所数 36所(うち0歳児保育を実施している保育所:26所)
    保育所入所待機児童数 0人
    認定こども園数 5園 預かり保育実施園数 公立:10園 私立:7園
    学校給食 【小学校】完全給食【中学校】完全給食
    公立中学校の学校選択制 実施
    子ども・学生等医療費助成<通院>対象年齢 18歳3月末まで 子ども・学生等医療費助成<入院>対象年齢 18歳3月末まで

    台東区の治安・ごみ収集情報

    公共料金・インフラ

    ガス料金(22m3使用した場合の月額) 東京瓦斯株式会社(東京地区等)3926円
    水道料金(口径20mmで20m3の月額) 東京都水道局2816円
    下水道料金(20m3を使用した場合の月額) 東京都下水道局2068円
    下水道普及率 100.0%

    安心・安全

    建物火災出火件数 65件
    人口10000人当たり
    3.07件
    刑法犯認知件数 2805件
    人口1000人当たり
    13.27件
    ハザード・防災マップ あり

    医療

    一般病院総数 7ヶ所
    一般診療所総数 277ヶ所
    小児科医師数 28人
    小児人口10000人当たり
    15.85人
    産婦人科医師数 16人
    15~49歳女性人口1万人当たり
    3.13人
    介護保険料基準額(月額) 6900円

    ごみ

    家庭ごみ収集(可燃ごみ) 無料
    備考
    日量10kgを超える臨時のごみは有料。
    家庭ごみの分別方式 3分別10種〔可燃ごみ 不燃ごみ 資源(新聞、雑誌・雑がみ、段ボール、紙パック、ペットボトル、缶、びん、食品発泡トレイ・カップ)〕 拠点回収:古布 ビデオテープ類 乾電池 廃食油 紙パック 小型家電 蛍光灯
    家庭ごみの戸別収集 実施
    粗大ごみ収集 あり
    備考
    有料。一般家庭に限る。
    生ごみ処理機助成金制度 なし
    上限金額
    -
    上限比率
    -
    暮らしデータ提供元:生活ガイド.com
    ※行政機関により公表していない地域及びデータがございます。東京23区以外の政令指定都市は、市全体のデータとして表示しています。
    ※提供データには細心の注意を払っておりますが、調査後に変更がある場合があります。 最新の情報につきましては各市区役所までお問い合わせいただくか、自治体HPなどをご確認ください。
    OCN×ドコモ光新規お申込みで合計最大137,280円相当おトク!特典の内訳・適用条件など詳細はこちら

    台東区内の各駅の住みやすさ

    他のエリアから探す

    台東区の詳細地域から賃貸物件を探す

    秋葉原浅草浅草橋池之端今戸入谷上野上野桜木雷門北上野清川蔵前小島寿駒形下谷千束台東鳥越西浅草日本堤根岸橋場花川戸東浅草東上野松が谷三筋三ノ輪元浅草谷中柳橋竜泉

    近辺の市区から探す

    川口市草加市浦安市千代田区中央区港区新宿区文京区墨田区江東区品川区目黒区渋谷区中野区豊島区北区荒川区板橋区練馬区足立区葛飾区江戸川区

    周辺の駅から探す

    東京メトロ銀座線
    浅草田原町稲荷町上野上野広小路末広町
    つくばエクスプレス
    秋葉原新御徒町浅草南千住北千住青井六町

    東京都台東区で他のジャンルから探す


    掲載情報の著作権は提供元企業等に帰属します。
    Copyright:(C) 2025 At Home Co.,Ltd
    アプリで簡単 物件探し 大手不動産サイトの情報から一括検!プッシュ通知で物件を見逃さない
    App Storeからダウンロード Google Playで手に入れよう QRコード