賃貸マンション
東京都文京区千駄木3丁目 千駄木駅 2LDK 賃貸(賃貸マンション・アパート)
| 賃料 |
18万円 (管理費等:8000円) |
| 礼金・敷金 |
1ヶ月 / 1ヶ月 |
保証金/敷引・償却 |
なし / - |
| 交通 |
|
| 所在地 |
東京都文京区千駄木3丁目周辺地図
|
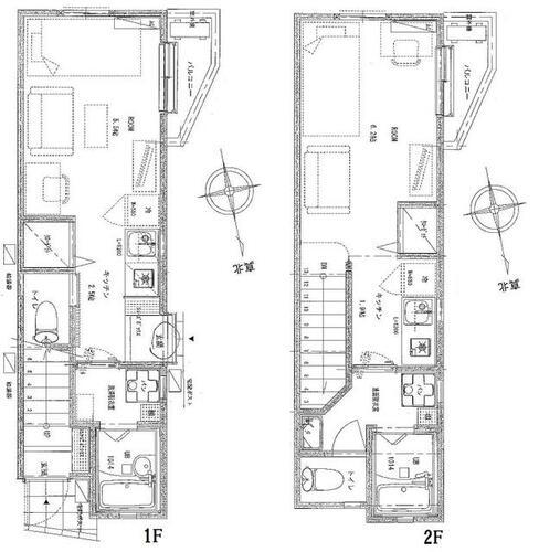
| 間取り |
2LDK |
専有面積 |
57.14m2 |
| 築年月 |
1983年6月 |
築年数 |
築42年6ヶ月 |
- おすすめポイント
- 二人入居可・分譲タイプ・ルームシェア可
| 賃料 |
18万円 |
管理費等 |
8000円 |
| 敷金 |
1ヶ月 |
礼金 |
1ヶ月 |
| 保証金 |
なし |
敷引・償却 |
- |
| 更新料 |
新賃料の1ヶ月分 |
契約期間 |
2年 |
| カード決済 |
- |
| 所在地 |
東京都文京区千駄木3丁目周辺地図
|
| 交通 |
- 東京メトロ千代田線 千駄木駅 徒歩2分乗換案内
- JR山手線 西日暮里駅 徒歩10分乗換案内
- JR京浜東北・根岸線 日暮里駅 徒歩10分乗換案内
|
| 建物名 |
|
| 間取り |
2LDK |
築年月(築年数) |
1983年6月(築42年6ヶ月)
|
| 専有面積 |
57.14㎡ |
所在階/階数 |
4階/10階建
|
| 建物構造 |
SRC |
方位 |
|
| 現況 |
空 |
駐車場 |
無 近くの駐車場を探す
|
| 入居可能時期 |
即時 |
住宅保険 |
ありAIGリビングパートナー 2年 18000円 |
| 情報提供元 |
アットホーム[6987197328] |
情報公開日 |
|
| 情報更新日 |
- |
次回更新予定日 |
随時 |
設備など
| 2階以上 |
○ |
最上階 |
- |
角部屋 |
- |
| 駐車場(近隣含) |
- |
エアコン付き |
○ |
バス・トイレ別 |
○ |
| 室内洗濯機置き場 |
○ |
追焚機能 |
○ |
オートロック付き |
- |
| モニタ付インターホン |
○ |
フローリング |
○ |
バルコニー |
○ |
| ガスコンロ可 |
- |
浴室乾燥機 |
○ |
24時間セキュリティ |
- |
| 宅配ボックス |
- |
ペット相談可 |
- |
二人入居可 |
○ |
| 設備 |
エアコン・給湯・バルコニー・バス・トイレ別・収納スペース・洗濯機置場・室内洗濯機置き場・シャワー・エレベーター・追焚機能・都市ガス・洗面台・フローリング・浴室乾燥機・照明器具・シャンプードレッサ・温水洗浄便座・システムキッチン・モニタ付インターホン・駐輪場・クローゼット・洗面所独立・シューズボックス・光ファイバー(ブロードバンド)・3口以上コンロ |
| リフォーム履歴 |
- |
| リノベーション履歴 |
- |
| 備考 |
賃貸保証等:利用可(日本賃貸保証 JIDトリオ 30%)・ご質問、内見ご希望の際は、電話ではなく、WEBフォームより、ご希望の日時等をご記入の上、メールにて、お問い合わせ頂けますようお願い致します。・駐輪場:有 |
| 特記事項 |
二人入居可・分譲タイプ・ルームシェア可 |
東京都文京区千駄木3丁目 周辺地図情報
※地図上に表示される物件の位置は付近住所に所在することを表すものであり、実際の物件所在地とは異なる場合がございます。
正確な物件所在地は、取扱い不動産会社にお問い合わせください。
アピールポイント
ご質問、内見ご希望の際は、電話ではなく、WEBフォームより、ご希望の日時等をご記入の上、メールにて、お問い合わせ頂けますようお願い致します。
不動産会社情報
| お問い合わせ先 |
商号:(株)宅建 免許番号:東京都知事免許(16)第6564号 所在地:北区田端1丁目21-8NSKビル1F TEL:03-3821-3927 取引態様:仲介 管理コード: 所属協会など:(公社)東京都宅地建物取引業協会会員、(公社)首都圏不動産公正取引協議会加盟
|
共有する |
|
人口などの統計情報
| 世帯数 |
133564世帯 |
| 人口総数 |
232177人 |
| 転入者数 |
23087人
- 転入率(人口1000人当たり)
- 99.44人
|
| 転出者数 |
20326人
- 転出率(人口1000人当たり)
- 87.55人
|
| 土地平均価格 |
- 住宅地
- 1119571円/m2
- 商業地
- 1933636円/m2
|
結婚・育児の助成金
| 子育て関連の独自の取り組み |
(1)おうち家事・育児サポート事業(区が指定した事業者の家事・育児サポートを一定の負担で利用できる[おうち・家事育児サポート券]を希望者に配布。満3歳未満の乳幼児を養育する世帯が対象)。(2)ひとり親家庭子育て訪問支援券(区が指定した事業者のベビーシッターサービスを一定の負担で利用できる[子育て訪問支援券])を希望者に配付。(3)ネウボラ事業(妊娠から出産、子育て期にわたる切れ目ない支援を行う妊娠・出産包括支援事業)。(4)文京版スターティング・ストロング・プロジェクト(区教育センターを中心とした医師、教員、心理職等で構成された専門家チームが、区内の幼稚園・保育園等を訪問し、職員と協働して子どもに専門的発達支援を行い、子どもたちの健やかな育ちを支える)。 |
| 出産祝い |
なし |
| 公立保育所数 |
19所(うち0歳児保育を実施している保育所:14所) |
| 私立保育所数 |
77所(うち0歳児保育を実施している保育所:67所) |
| 保育所入所待機児童数 |
2人 |
| 認定こども園数 |
1園 |
預かり保育実施園数 |
公立:10園 私立:14園 |
| 学校給食 |
【小学校】完全給食【中学校】完全給食 |
| 公立中学校の学校選択制 |
実施(新入学時又は他市区町村からの転入時[一人につき一度]のみ) |
| 子ども・学生等医療費助成<通院>対象年齢 |
18歳3月末まで |
子ども・学生等医療費助成<入院>対象年齢 |
18歳3月末まで |
文京区の治安・ごみ収集情報
公共料金・インフラ
| ガス料金(22m3使用した場合の月額) |
東京瓦斯株式会社(東京地区等)3926円 |
| 水道料金(口径20mmで20m3の月額) |
東京都水道局2816円 |
| 下水道料金(20m3を使用した場合の月額) |
東京都下水道局2068円 |
| 下水道普及率 |
100.0% |
安心・安全
| 建物火災出火件数 |
61件
- 人口10000人当たり
- 2.54件
|
| 刑法犯認知件数 |
1104件
- 人口1000人当たり
- 4.60件
|
| ハザード・防災マップ |
あり |
医療
| 一般病院総数 |
9ヶ所 |
| 一般診療所総数 |
309ヶ所 |
| 小児科医師数 |
253人
- 小児人口10000人当たり
- 85.84人
|
| 産婦人科医師数 |
159人
- 15~49歳女性人口1万人当たり
- 27.49人
|
| 介護保険料基準額(月額) |
6107円 |
ごみ
| 家庭ごみ収集(可燃ごみ) |
無料
|
| 家庭ごみの分別方式 |
3分別9種〔可燃ごみ 不燃ごみ 資源(新聞、雑誌、ダンボール、雑がみ、ビン、カン、ペットボトル)〕 拠点回収:資源(紙パック 乾電池 発泡スチロール食品トレイ 衣類 プラスチック製ボトル容器 インクカートリッジ 蛍光管 水銀使用計器類、携帯電話、スマートフォン) |
| 家庭ごみの戸別収集 |
一部実施(訪問収集) |
| 粗大ごみ収集 |
あり
|
| 生ごみ処理機助成金制度 |
あり
- 上限金額
- 20000円
- 上限比率
- 50.0%
|
※行政機関により公表していない地域及びデータがございます。東京23区以外の政令指定都市は、市全体のデータとして表示しています。
※提供データには細心の注意を払っておりますが、調査後に変更がある場合があります。 最新の情報につきましては各市区役所までお問い合わせいただくか、自治体HPなどをご確認ください。
文京区の暮らしデータをもっと見る