アプリで簡単 物件探し 通知 共有 アプリならではの機能を使ってみる
賃貸マンション

デュオ・スカーラ麹町 麹町駅 1LDK 賃貸(賃貸マンション・アパート)

情報提供元
アットホーム
デュオ・スカーラ麹町
賃料 18万円  (管理費等:15000円)
礼金・敷金 2ヶ月 / 1ヶ月 保証金/敷引・償却 なし / -
交通
所在地 東京都千代田区麹町2丁目周辺地図
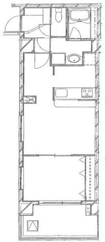
間取り 1LDK 専有面積 46.62m2
築年月 2003年6月 築年数 築22年7ヶ月
おすすめポイント
二人入居可・分譲タイプ・角部屋・外観タイル張り・管理人巡回

詳細情報

賃料 18万円 管理費等 15000円
敷金 1ヶ月 礼金 2ヶ月
保証金 なし 敷引・償却 -
更新料 新賃料の1ヶ月分 契約期間 2年
カード決済 -
所在地 東京都千代田区麹町2丁目周辺地図
交通
  • 東京メトロ有楽町線 麹町駅 徒歩3分乗換案内
  • 東京メトロ半蔵門線 半蔵門駅 徒歩3分乗換案内
建物名 デュオ・スカーラ麹町 
間取り 1LDK(洋 6 LDK 11) 築年月(築年数) 2003年6月(築22年7ヶ月)
専有面積 46.62㎡ 所在階/階数 7階/10階建
建物構造 RC  方位 南 
現況 居住中  駐車場
入居可能時期 2026年1月下旬 住宅保険 あり借家人賠償 2年 26000円
情報提供元 アットホーム[6988501416] 情報公開日
情報更新日 - 次回更新予定日 随時

設備など

2階以上 最上階 - 角部屋
駐車場(近隣含) - エアコン付き バス・トイレ別
室内洗濯機置き場 追焚機能 オートロック付き
モニタ付インターホン フローリング バルコニー
ガスコンロ可 - 浴室乾燥機 24時間セキュリティ -
宅配ボックス ペット相談可 - 二人入居可
設備 エアコン・給湯・オートロック・バルコニー・バス・トイレ別・トイレ・収納スペース・洗濯機置場・室内洗濯機置き場・洗面所・シャワー・エレベーター・CATV・BS端子・追焚機能・都市ガス・洗面台・フローリング・浴室乾燥機・温水洗浄便座・システムキッチン・カウンターキッチン・モニタ付インターホン・宅配BOX・クローゼット・CS・モニタ付オートロック・ディンプルキー・オートバス・洗面所独立・シューズボックス・光ファイバー(ブロードバンド)・3口以上コンロ 
リフォーム履歴 -
リノベーション履歴 -
備考 ペット・SOHO不可礼金2ヶ月更新事務手数料:33,000円・賃貸保証等:加入要(全保連 初回保証料:総賃料の60% 年間保証料:13,000円 口座振替手数料:月額330円)・鍵交換代:あり29,700円~・管理形態/管理員の勤務形態:巡回・誠心誠意ご対応させて頂きます。お気軽にお問合せください!/24時間メンテナンスサービス(2年毎・加入必須) 16500円 
特記事項 二人入居可・分譲タイプ・角部屋・外観タイル張り・管理人巡回

省エネ性能

エネルギー消費性能 -
断熱性能 -
目安光熱費 -

東京都千代田区麹町2丁目 周辺地図情報

地図
※地図上に表示される物件の位置は付近住所に所在することを表すものであり、実際の物件所在地とは異なる場合がございます。
   正確な物件所在地は、取扱い不動産会社にお問い合わせください。
アピールポイント
【仲介手数料無料】にできる物件多数ございます☆費用のご相談だけでも、お気軽にお問合せくださいませ♪インターネットに載っている物件はほぼ全てご紹介可能ですので、お気軽にお問合せください!

不動産会社情報

お問い合わせ先 商号:エターナルホームズ(株)
免許番号:東京都知事免許(1)第111640号
所在地:千代田区飯田橋4丁目5番地16号エル千代田ビル301号室
TEL:03-6261-4410
取引態様:仲介
管理コード:
所属協会など:(公社)全日本不動産協会会員、(公社)首都圏不動産公正取引協議会加盟
共有する
QRコード

    千代田区の暮らしデータ

    人口などの統計情報

    世帯数 36963世帯
    人口総数 68755人
    転入者数 8663人
    転入率(人口1000人当たり)
    126.00人
    転出者数 7904人
    転出率(人口1000人当たり)
    114.96人
    土地平均価格
    住宅地
    3460000円/m2
    商業地
    5812393円/m2

    結婚・育児の助成金

    子育て関連の独自の取り組み 誕生準備手当(妊娠20週以降の妊婦に4.5万円)。
    出産祝い なし
    公立保育所数 6所(うち0歳児保育を実施している保育所:6所)
    私立保育所数 18所(うち0歳児保育を実施している保育所:18所)
    保育所入所待機児童数 0人
    認定こども園数 1園 預かり保育実施園数 公立:8園 私立:1園
    学校給食 【小学校】完全給食【中学校】完全給食
    公立中学校の学校選択制 実施
    子ども・学生等医療費助成<通院>対象年齢 18歳3月末まで 子ども・学生等医療費助成<入院>対象年齢 18歳3月末まで

    千代田区の治安・ごみ収集情報

    公共料金・インフラ

    ガス料金(22m3使用した場合の月額) 東京瓦斯株式会社(東京地区等)3926円
    水道料金(口径20mmで20m3の月額) 東京都水道局2816円
    下水道料金(20m3を使用した場合の月額) 東京都下水道局2068円
    下水道普及率 100.0%

    安心・安全

    建物火災出火件数 133件
    人口10000人当たり
    19.95件
    刑法犯認知件数 2376件
    人口1000人当たり
    35.63件
    ハザード・防災マップ あり

    医療

    一般病院総数 15ヶ所
    一般診療所総数 555ヶ所
    小児科医師数 44人
    小児人口10000人当たり
    47.85人
    産婦人科医師数 33人
    15~49歳女性人口1万人当たり
    19.79人
    介護保険料基準額(月額) 5600円

    ごみ

    家庭ごみ収集(可燃ごみ) 一部有料
    備考
    10kg以上有料。45リットル1袋200円。
    家庭ごみの分別方式 5分別13種〔燃やすごみ 燃やさないごみ 資源(新聞、雑誌、段ボール、紙パック、その他の紙類、びん、かん、ペットボトル) プラスチック 蛍光管等(乾電池・スプレー缶)〕 拠点回収:資源(使用済小型家電 古布 廃食料油)
    家庭ごみの戸別収集 一部実施(新規集積所・共同集積所を廃止、分散した際に戸別収集となる)
    粗大ごみ収集 あり
    備考
    有料。事前申込制。
    生ごみ処理機助成金制度 あり
    上限金額
    30000円
    上限比率
    66.7%
    暮らしデータ提供元:生活ガイド.com
    ※行政機関により公表していない地域及びデータがございます。東京23区以外の政令指定都市は、市全体のデータとして表示しています。
    ※提供データには細心の注意を払っておりますが、調査後に変更がある場合があります。 最新の情報につきましては各市区役所までお問い合わせいただくか、自治体HPなどをご確認ください。
    OCN×ドコモ光新規お申込みで合計最大137,280円相当おトク!特典の内訳・適用条件など詳細はこちら

    千代田区内の各駅の住みやすさ

    他のエリアから探す

    千代田区の詳細地域から賃貸物件を探す

    飯田橋一番町岩本町内神田鍛冶町神田淡路町神田和泉町神田岩本町神田小川町神田鍛冶町神田北乗物町神田紺屋町神田佐久間河岸神田佐久間町神田猿楽町神田神保町神田須田町神田駿河台神田多町神田司町神田富山町神田錦町神田西福田町神田練塀町神田東紺屋町神田東松下町神田美倉町神田三崎町紀尾井町九段北九段南麹町五番町三番町外神田永田町西神田二番町隼町東神田一ツ橋平河町富士見四番町六番町

    近辺の市区から探す

    川口市中央区港区新宿区文京区台東区墨田区江東区品川区目黒区世田谷区渋谷区中野区杉並区豊島区北区荒川区板橋区練馬区足立区葛飾区江戸川区

    周辺の駅から探す

    東京メトロ有楽町線
    護国寺江戸川橋飯田橋市ケ谷麹町永田町|桜田門|有楽町銀座一丁目
    東京メトロ半蔵門線
    渋谷表参道青山一丁目永田町半蔵門九段下神保町大手町三越前

    東京都千代田区で他のジャンルから探す


    掲載情報の著作権は提供元企業等に帰属します。
    Copyright:(C) 2025 At Home Co.,Ltd
    アプリで簡単 物件探し 大手不動産サイトの情報から一括検!プッシュ通知で物件を見逃さない
    App Storeからダウンロード Google Playで手に入れよう QRコード