アプリで簡単 物件探し 通知 共有 アプリならではの機能を使ってみる
賃貸マンション

メインステージ川口リンクス 川口駅 2K 賃貸(賃貸マンション・アパート)

情報提供元
アットホーム
メインステージ川口リンクス
賃料 9.5万円  (管理費等:15000円)
礼金・敷金 なし / なし 保証金/敷引・償却 なし / -
交通
所在地 埼玉県川口市原町周辺地図
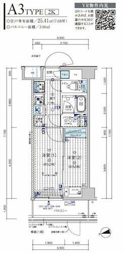
間取り 2K 専有面積 25.41m2
築年月 2022年9月 築年数 築3年4ヶ月
おすすめポイント
分譲タイプ・外観タイル張り・フリーレント・管理人巡回・24時間換気システム・最上階・初期費用カード決済可

詳細情報

賃料 9.5万円 管理費等 15000円
敷金 なし 礼金 なし
保証金 なし 敷引・償却 -
更新料 - 契約期間 2年
カード決済 初期費用カード決済可
所在地 埼玉県川口市原町周辺地図
交通
  • JR京浜東北・根岸線 川口駅 徒歩11分乗換案内
  • JR京浜東北・根岸線 西川口駅 徒歩22分乗換案内
  • 埼玉高速鉄道 川口元郷駅 徒歩29分乗換案内
建物名 メインステージ川口リンクス 
間取り 2K(洋 5・3 K 2) 築年月(築年数) 2022年9月(築3年4ヶ月)
専有面積 25.41㎡ 所在階/階数 6階/6階建
建物構造 RC  方位 西 
現況 空  駐車場 -   近くの駐車場を探す
入居可能時期 即時 住宅保険 あり 2年 15000円
情報提供元 アットホーム[6988798857] 情報公開日
情報更新日 - 次回更新予定日 随時

設備など

2階以上 最上階 角部屋 -
駐車場(近隣含) - エアコン付き バス・トイレ別
室内洗濯機置き場 追焚機能 - オートロック付き
モニタ付インターホン フローリング バルコニー
ガスコンロ可 - 浴室乾燥機 24時間セキュリティ -
宅配ボックス ペット相談可 - 二人入居可 -
設備 冷房・暖房・エアコン・オートロック・バルコニー・バス・トイレ別・トイレ・洗濯機置場・室内洗濯機置き場・洗面所・シャワー・エレベーター・BS端子・都市ガス・洗面台・フローリング・浴室乾燥機・シャンプードレッサ・温水洗浄便座・モニタ付インターホン・宅配BOX・駐輪場・クローゼット・CS・モニタ付オートロック・ディンプルキー・防犯カメラ・洗面所独立・バイク置き場・コンロ2口以上・シューズボックス・光ファイバー(ブロードバンド)・インターネット対応・インターネット無料 
リフォーム履歴 -
リノベーション履歴 -
備考 賃貸保証等:加入要(初回保証料50%~)・鍵交換代:あり29,700円~・フリーレントあり:1ヶ月(フリーレント30日)・バルコニー:3.96平米・管理形態/管理員の勤務形態:巡回・コスト感覚の鋭いお客様に嬉しいニュース!フリーレント1ヶ月有で、更に礼金敷金(保証金)0円。・バイク置場:有・駐輪場:有・仲介手数料:不要/24時間サポート代 16500円 
特記事項 分譲タイプ・外観タイル張り・フリーレント・管理人巡回・24時間換気システム・最上階・初期費用カード決済可

省エネ性能

エネルギー消費性能 -
断熱性能 -
目安光熱費 -

埼玉県川口市原町 周辺地図情報

地図
※地図上に表示される物件の位置は付近住所に所在することを表すものであり、実際の物件所在地とは異なる場合がございます。
   正確な物件所在地は、取扱い不動産会社にお問い合わせください。
アピールポイント
お金のこと、暮らしを考えるのと同じくらい大事ですよね?フリーレント1ヶ月有で、更に礼金敷金(保証金)0円。不審者の侵入に目を光らせる防犯カメラ完備、更に安心も二重なダブルロックドア仕様なので、ピッキング対策に有利です。また留守番いらずの宅配BOX付で、その上スマホやPCの使用には不可欠なインターネット使用料無料の物件だから、スマホやPCのヘビーユーザーは特にうってつけです。ちなみにお出かけの多い人も助かる常時ゴミ出し可です。新婚さんにも嬉しい2K。実際の空間をご自身で体感ください。

不動産会社情報

お問い合わせ先 商号:(株)コリンズハウス
免許番号:東京都知事免許(1)第105794号
所在地:千代田区神田佐久間町1丁目8-4アルテール秋葉原1007
TEL:03-6822-7693
取引態様:仲介
管理コード:ATN02
所属協会など:(公社)東京都宅地建物取引業協会会員、(公社)首都圏不動産公正取引協議会加盟
共有する
QRコード

    川口市の暮らしデータ

    人口などの統計情報

    世帯数 266756世帯
    人口総数 606315人
    転入者数 34070人
    転入率(人口1000人当たり)
    56.19人
    転出者数 26834人
    転出率(人口1000人当たり)
    44.26人
    土地平均価格
    住宅地
    249610円/m2
    商業地
    718600円/m2

    結婚・育児の助成金

    子育て関連の独自の取り組み -
    出産祝い あり
    公立保育所数 41所(うち0歳児保育を実施している保育所:17所)
    私立保育所数 92所(うち0歳児保育を実施している保育所:82所)
    保育所入所待機児童数 10人
    認定こども園数 5園 預かり保育実施園数 公立:0園 私立:36園
    学校給食 【小学校】完全給食【中学校】完全給食
    公立中学校の学校選択制 未実施
    子ども・学生等医療費助成<通院>対象年齢 中学校卒業まで 子ども・学生等医療費助成<入院>対象年齢 中学校卒業まで

    川口市の治安・ごみ収集情報

    公共料金・インフラ

    ガス料金(22m3使用した場合の月額) 東京瓦斯株式会社(東京地区等)3926円
    大東ガス株式会社4335円
    水道料金(口径20mmで20m3の月額) 川口市3553円
    下水道料金(20m3を使用した場合の月額) 川口市1998円
    下水道普及率 88.8%

    安心・安全

    建物火災出火件数 94件
    人口10000人当たり
    1.58件
    刑法犯認知件数 4437件
    人口1000人当たり
    7.47件
    ハザード・防災マップ あり

    医療

    一般病院総数 21ヶ所
    一般診療所総数 339ヶ所
    小児科医師数 88人
    小児人口10000人当たり
    12.52人
    産婦人科医師数 34人
    15~49歳女性人口1万人当たり
    2.68人
    介護保険料基準額(月額) 6077円

    ごみ

    家庭ごみ収集(可燃ごみ) 無料
    備考
    施設への自己搬入においては100kgまで無料。100kgを超えた分につき、30円/10kgの処分手数料が必要。
    家庭ごみの分別方式 3分別13種〔一般ごみ 有害ごみ 資源物(プラスチック製容器包装、びん、飲料かん、金属類、ペットボトル、繊維類、紙類[紙パック、新聞紙、雑誌・雑紙、ダンボール、紙製容器包装])〕 拠点回収:乾電池
    家庭ごみの戸別収集 一部実施(ふれあい収集)
    粗大ごみ収集 あり
    備考
    有料。戸別収集。事前申込制。
    生ごみ処理機助成金制度 あり
    上限金額
    24000円
    上限比率
    50.0%
    暮らしデータ提供元:生活ガイド.com
    ※行政機関により公表していない地域及びデータがございます。東京23区以外の政令指定都市は、市全体のデータとして表示しています。
    ※提供データには細心の注意を払っておりますが、調査後に変更がある場合があります。 最新の情報につきましては各市区役所までお問い合わせいただくか、自治体HPなどをご確認ください。

    川口市内の各駅の住みやすさ

    他のエリアから探す

    川口市の詳細地域から賃貸物件を探す

    青木赤井朝日新井町安行出羽飯塚飯原町江戸江戸袋大字赤井大字赤山大字新井宿大字安行大字安行北谷大字安行吉蔵大字安行小山大字安行慈林大字安行藤八大字安行西立野大字安行原大字安行吉岡大字安行領家大字安行領根岸大字伊刈大字石神大字大竹大字木曽呂大字久左衛門新田大字行衛大字源左衛門新田大字小谷場大字神戸大字差間大字里大字芝大字長蔵新田大字辻大字藤兵衛新田大字戸塚大字新堀大字西新井宿大字西立野大字榛松大字蓮沼大字東内野大字東本郷大字前野宿大字道合大字峯金山町上青木上青木西川口北園町北原台幸町栄町坂下町桜町差間在家町芝下芝新町芝園町芝高木芝塚原芝中田芝西芝東町芝樋ノ爪芝富士芝宮根町末広長蔵戸塚戸塚境町戸塚鋏町戸塚東戸塚南中青木仲町並木並木元町新堀町西青木西川口榛松八幡木鳩ヶ谷本町鳩ヶ谷緑町原町東川口東本郷東領家本町本蓮本前川前上町前川前川町三ツ和南町南鳩ヶ谷南前川宮町元郷柳崎柳根町弥平領家

    近辺の市区から探す

    さいたま市中央区さいたま市桜区さいたま市浦和区さいたま市南区さいたま市緑区草加市越谷市蕨市戸田市朝霞市和光市八潮市千代田区新宿区文京区台東区墨田区中野区豊島区北区荒川区板橋区練馬区足立区

    周辺の駅から探す

    京浜東北・根岸線
    浦和南浦和西川口川口赤羽東十条王子上中里
    埼玉高速鉄道
    赤羽岩淵川口元郷南鳩ヶ谷鳩ヶ谷新井宿戸塚安行

    マンションライブラリーを見る

    メインステージ川口リンクス

    埼玉県川口市で他のジャンルから探す


    掲載情報の著作権は提供元企業等に帰属します。
    Copyright:(C) 2025 At Home Co.,Ltd
    アプリで簡単 物件探し 大手不動産サイトの情報から一括検!プッシュ通知で物件を見逃さない
    App Storeからダウンロード Google Playで手に入れよう QRコード