アプリで簡単 物件探し 通知 共有 アプリならではの機能を使ってみる
中古マンション

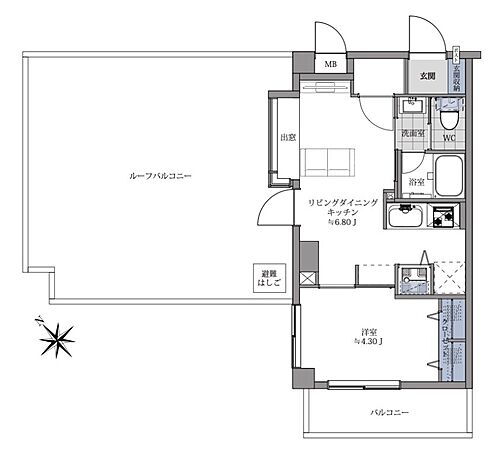
東京都渋谷区西原1丁目36-6 5階 1LDK

情報提供元
LIFULL HOME'S
幡ヶ谷と初台のちょうど中間。人気アドレス渋谷西原の平成築マンション
価格 4699万円  (管理費等:6,700円)
修繕積立金 14,107円
交通
所在地 東京都渋谷区西原1丁目36-6周辺地図
間取り 1LDK 専有面積 30.4m2(壁芯)
所在階/階数 5階/6階建 方位 南西
築年月 1995年1月 築年数 築30年11ヶ月
おすすめポイント
◆新規フルリノベーション♪広々21平米のルーフバルコニー付き角部屋で陽当り・眺望良好です! ◆安心のオートロック完備。新耐震基準マンション ◆幡ヶ谷駅は都営新宿線と直結運行もあり都心アクセス良好!
外観タイル張り・角部屋
お問い合わせ先
ハウスドゥ 神楽坂 日本新都市リアルタ株式会社
物件を見たい、物件や住環境の詳しい情報やローン相談など、
お問い合わせ先
ハウスドゥ 神楽坂 日本新都市リアルタ株式会社

詳細情報

価格 4699万円 管理費等 6,700円
駐車場 空無 修繕積立金 14,107円
所在地 東京都渋谷区西原1丁目36-6周辺地図
交通
  • 京王電鉄京王線 幡ヶ谷駅 徒歩6分乗換案内
  • 東京メトロ千代田線 代々木上原駅 徒歩14分乗換案内
物件名
築年月(築年数) 1995年1月(築30年11ヶ月) 間取り 1LDK
総戸数 42戸 専有面積 30.4m2(壁芯)
所在階/階数 5階/6階建 バルコニー面積 21.85m2
方位 南西 建物構造 RC
管理形態 全部委託 管理員の勤務形態 日勤
維持費等 土地権利 所有権
用途地域 1種住居 借地期間・地代
現況 空室 引渡可能年月 相談
情報提供元 LIFULL HOME'S [1354210002337] 情報公開日
情報更新日 次回更新予定日 2025年11月19日

設備など

ペット相談可 - 即入居可 - 南向き -
角部屋 駐車場空き有り - トランクルーム -
オートロック 宅配ボックス - 浴室乾燥機
床暖房 - ウォークインクローゼット - 管理人常駐 -
最上階 - 2階以上 タワーマンション -
設備 リフォーム・上水道・都市ガス・本下水・バス・トイレ別・シャワー・コンロ2口以上・システムキッチン・給湯・追焚機能・室内洗濯機置き場・オートロック・エレベーター・バルコニー・フローリング・駐輪場・モニタ付インターホン・温水洗浄便座・浴室乾燥機・洗面所独立・防犯カメラ・クローゼット・シューズボックス・照明器具
リフォーム履歴 ■共用部
2022年12月実施
大規模修繕工事実施
・備考
【新規リノベーション2026年1月末完了予定】フローリング貼替/クロス貼替/建具・玄関収納交換/キッチン交換/浴室交換/トイレ交換/洗面交換/給湯器交換■給排水管交換(一部既存) 等
※実施年月は、施工箇所の中で最も古いものを表示しています
リノベーション履歴 -
備考 【物件周辺の生活情報】
・学校
渋谷区立 西原小学校(450m)、渋谷区立 代々木中学校(450m)
・買い物
スーパー(550m)、コンビニ(140m)、ドラッグストア(550m)、商店街(500m)
・その他施設
総合病院(550m)、公園(350m)、銀行(500m)、代々木郵便局(180m)
施工会社:(株)佐藤秀工務店
◆仲介手数料33%引き!◆(正規手数料から、538,890円のお値引きです!)【新規リノベーション2026年1月末完了予定】■フローリング貼替■壁・天井クロス貼替■建具・玄関収納交換■システムキッチン交換(浄水機付)■ユニットバス交換(追焚き・浴室換気乾燥暖房機能付)■トイレ交換■洗面化粧台交換■洗濯水栓・防水パン交換■給湯器交換■給排水管交換(一部既存) 等 【駐車場備考】月額28,000~33,000円 【設備・特記事項備考】専用バス・専用トイレ・耐震構造
国土法届出:不要
ルーフバルコニー使用料:700円
特記事項 外観タイル張り・角部屋

省エネ性能

エネルギー消費性能 -
断熱性能 -
目安光熱費 -

東京都渋谷区西原1丁目36-6 周辺地図情報

地図
※地図上に表示される物件の位置は付近住所に所在することを表すものであり、実際の物件所在地とは異なる場合がございます。
   正確な物件所在地は、取扱い不動産会社にお問い合わせください。
物件を見たい、物件や住環境の詳しい情報やローン相談など、
お問い合わせ先
ハウスドゥ 神楽坂 日本新都市リアルタ株式会社

不動産会社情報

お問い合わせ先 商号:ハウスドゥ 神楽坂 日本新都市リアルタ株式会社
免許番号:東京都知事(03)第096605号
所在地:東京都新宿区白銀町1-17 東邦神楽坂ビル2F
取引態様:媒介
管理コード:2337
所属協会など:(公財)東日本不動産流通機構
共有する
QRコード

お電話でのお問い合わせ

電話をかける(携帯・PHS可)
お問い合わせダイヤル
通話無料0037-634-05759
営業時間 10:00~21:00 (定休日:毎週火曜日)
音声案内に従って数字を入力
お問い合わせ番号
63224-2977
不動産会社につながります
不動産会社のスタッフと
直接電話で話せます。
※不動産会社がお電話に出られなかった場合、株式会社LIFULLは電話会社が提供するサービスを介してお客様の発信者番号を受領後、折り返し専用の電話番号を発番してお問合せの不動産会社に通知します(お客様の発信者番号がお問合せの不動産会社に通知されることはございません)
※光IP電話、及びIP電話からはご利用になれません
※0037で始まる電話番号に携帯電話からお問合せいただいた方には、ショートメッセージ(SMS)によるお問合せ完了通知をお届けする場合があります
物件を見たい、物件や住環境の詳しい情報やローン相談など、
お問い合わせ先
ハウスドゥ 神楽坂 日本新都市リアルタ株式会社

渋谷区の暮らしデータ

人口などの統計情報

世帯数 149856世帯
人口総数 230609人
転入者数 24064人
転入率(人口1000人当たり)
104.35人
転出者数 22282人
転出率(人口1000人当たり)
96.62人
土地平均価格
住宅地
1394400円/m2
商業地
6619444円/m2

結婚・育児の助成金

子育て関連の独自の取り組み (1)待機児解消のため区立保育室を2ヶ所設置。(2)認可外保育施設に待機児専用の受入枠を23名分確保。(3)スマートフォンアプリ「LINE」を活用した子育て情報の配信サービス。(4)渋谷区子育てネウボラ事業。妊娠から出産そして子育てまでの切れ目のない支援を行う、フィンランド発祥の出産・子育て支援の場「ネウボラ」にならい、それらの支援機能を担う関係所管を「渋谷区子育てネウボラ」に集約。保健師をはじめとするさまざまな専門職員や関係職員が連携して、妊娠、出産、子育て期のさまざまな悩み、不安等の相談に応じたり、健診を行ったり、地域のみんなで子育てをする場として設けている。
出産祝い あり
公立保育所数 18所(うち0歳児保育を実施している保育所:13所)
私立保育所数 39所(うち0歳児保育を実施している保育所:30所)
保育所入所待機児童数 0人
認定こども園数 11園 預かり保育実施園数 公立:5園 私立:13園
学校給食 【小学校】完全給食【中学校】完全給食
公立中学校の学校選択制 実施(選択希望制)
子ども・学生等医療費助成<通院>対象年齢 18歳3月末まで 子ども・学生等医療費助成<入院>対象年齢 18歳3月末まで

渋谷区の治安・ごみ収集情報

公共料金・インフラ

ガス料金(22m3使用した場合の月額) 東京瓦斯株式会社(東京地区等)3926円
水道料金(口径20mmで20m3の月額) 東京都水道局2816円
下水道料金(20m3を使用した場合の月額) 東京都下水道局2068円
下水道普及率 100.0%

安心・安全

建物火災出火件数 110件
人口10000人当たり
4.51件
刑法犯認知件数 3388件
人口1000人当たり
13.89件
ハザード・防災マップ あり

医療

一般病院総数 15ヶ所
一般診療所総数 722ヶ所
小児科医師数 70人
小児人口10000人当たり
29.57人
産婦人科医師数 68人
15~49歳女性人口1万人当たり
11.68人
介護保険料基準額(月額) 6170円

ごみ

家庭ごみ収集(可燃ごみ) 無料
備考
可燃ごみ・不燃ごみ・資源のうち、一時大量排出については有料。
家庭ごみの分別方式 3分別13種〔可燃ごみ 不燃ごみ(金属類、割れ物・刃物などの危険物、ライター) 資源(新聞、雑誌、段ボール、びん、缶、ペットボトル、スプレー缶・カセットボンベ、蛍光管、プラスチック)〕 拠点回収:小型家電 衣類 紙パック 食品用発泡スチロールトレイ 食用油 おもちゃ 食器・調理器具 集団回収:新聞 雑誌 段ボール 紙パック 布類 びん 缶 ペットボトル
家庭ごみの戸別収集 一部実施
粗大ごみ収集 あり
備考
事前申込制(一辺の長さが30cmを超えるもの)。
生ごみ処理機助成金制度 あり
上限金額
20000円
上限比率
50.0%

渋谷区の住まいの給付金

中古購入

利子補給制度 なし
補助/助成金制度 なし

増築・改築・改修

利子補給制度 なし
補助/助成金制度 あり
上限金額
(1)10万円(2)150万円
備考
(1)【住宅簡易改修支援事業】5万円以上の工事対象(ただし、事務所等の住宅以外の用途に供する部分及び集合住宅の共用部分や新築・増築に該当する工事は対象外。「マンション管理計画認定制度」の認定を受けているマンションに住民共用の宅配ボックス設置の場合は、集合住宅の共用部分も対象)。総費用の20%(上限10万円)を助成。(2)【木造住宅耐震改修助成】1981年5月末以前に建築された建築物が対象。所有者個人(所有者死亡、長期入院等の際は、その配偶者、子又は父母)が居住する木造住宅等の建築物に対し無料耐震診断を行い、大地震で倒壊の可能性ありと診断された建物の耐震改修工事費用の1/2(限度額は、建築基準法適合の場合100万円、不適合56万円。高齢者は適合150万円、不適合106万円)。
暮らしデータ提供元:生活ガイド.com
※行政機関により公表していない地域及びデータがございます。東京23区以外の政令指定都市は、市全体のデータとして表示しています。
※提供データには細心の注意を払っておりますが、調査後に変更がある場合があります。 最新の情報につきましては各市区役所までお問い合わせいただくか、自治体HPなどをご確認ください。
OCN×ドコモ光新規お申込みで合計最大137,280円相当おトク!特典の内訳・適用条件など詳細はこちら

渋谷区内の各駅の住みやすさ

住宅ローンの返済額一覧

物件価格 4699万円に対して、年率 で、頭金 の場合
↓ボーナス 35年間 30年間 25年間 20年間 15年間 10年間
0万円 108,999円/月 125,629円/月 148,925円/月 183,888円/月 242,183円/月 358,810円/月
5万円 99,914円/月 116,653円/月 140,059円/月 175,129円/月 233,532円/月 350,265円/月
10万円 90,828円/月 107,678円/月 131,192円/月 166,371円/月 224,880円/月 341,720円/月
15万円 81,743円/月 98,702円/月 122,325円/月 157,612円/月 216,229円/月 333,174円/月
20万円 72,657円/月 89,726円/月 113,458円/月 148,853円/月 207,577円/月 324,629円/月
25万円 63,572円/月 80,751円/月 104,592円/月 140,095円/月 198,926円/月 316,084円/月
30万円 ローン不可 71,775円/月 95,725円/月 131,336円/月 190,274円/月 307,539円/月
支払い利息合計 3,807,920円~ 3,255,160円~ 2,703,200円~ 2,155,600円~ 1,612,270円~ 1,073,420円~
※元利均等返済方式で試算しています。 「円」の単位以下の端数金額は「切り捨て」として計算しております。
※金利は、固定金利として計算しております。
※上記の住宅ローン返済額一覧は、あくまで試算であり、将来の金利動向により、実際のご返済額とは異なります。
※ボーナス支払総額が総支払額の50%を超えている場合、上記の表では「ローン不可」となります。
※住宅ローン返済額一覧の数値は、住宅ローンのお申し込みやご融資をお約束するものではございません。
物件を見たい、物件や住環境の詳しい情報やローン相談など、
お問い合わせ先
ハウスドゥ 神楽坂 日本新都市リアルタ株式会社

掲載情報の著作権は提供元企業等に帰属します。
Copyright:(C) 2025 LIFULL Co.,Ltd.
アプリで簡単 物件探し 大手不動産サイトの情報から一括検!プッシュ通知で物件を見逃さない
App Storeからダウンロード Google Playで手に入れよう QRコード