アプリで簡単 物件探し 通知 共有 アプリならではの機能を使ってみる
中古マンション

上野アインスタワー 16階 2LDK

情報提供元
LIFULL HOME'S
上野アインスタワー
価格 10990万円  (管理費等:16,820円)
修繕積立金 21,110円
交通
所在地 東京都台東区東上野5丁目周辺地図
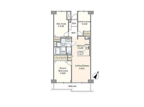
間取り 2LDK 専有面積 60.05m2(壁芯)
所在階/階数 16階/地上19階地下2階建 方位
築年月 2002年2月 築年数 築23年11ヶ月
おすすめポイント
マイホーム探しには、生活費、教育費、老後費、人生の三大支出も加味した、将来の家計を考慮することが大切です。弊社では住宅FPアドバイザーが、お客様の将来設計を見据えたコンサルティングを実施します。
ペット相談可
物件を見たい、物件や住環境の詳しい情報やローン相談など、
お問い合わせ先
ME不動産城北株式会社

詳細情報

価格 10990万円 管理費等 16,820円
駐車場   修繕積立金 21,110円
所在地 東京都台東区東上野5丁目周辺地図
交通
物件名 上野アインスタワー
築年月(築年数) 2002年2月(築23年11ヶ月) 間取り 2LDK
総戸数 109戸 専有面積 60.05m2(壁芯)
所在階/階数 16階/地上19階地下2階建 バルコニー面積 6.27m2
方位 建物構造 SRC
管理形態 全部委託 管理員の勤務形態 常駐
維持費等 土地権利 所有権
用途地域 商業地域 借地期間・地代
現況 空室 引渡可能年月 即時
情報提供元 LIFULL HOME'S [1538400005890] 情報公開日
情報更新日 次回更新予定日 2025年12月25日

設備など

ペット相談可 即入居可 南向き
角部屋 - 駐車場空き有り - トランクルーム
オートロック 宅配ボックス 浴室乾燥機
床暖房 ウォークインクローゼット 管理人常駐 -
最上階 - 2階以上 タワーマンション -
設備 リフォーム・上水道・都市ガス・バス・トイレ別・コンロ2口以上・システムキッチン・給湯・追焚機能・シャンプードレッサ・エアコン・トランクルーム・ウォークインクローゼット・オートロック・エレベーター・バルコニー・フローリング・宅配BOX・駐輪場・バイク置き場・床暖房・モニタ付インターホン・温水洗浄便座・浴室乾燥機・食器洗浄乾燥機・ディスポーザー・シューズボックス・照明器具・オートバス
リフォーム履歴 ■水回り
2025年07月実施
キッチン/浴室/トイレ/洗面所
■内装
2025年07月実施
壁・天井(クロス・塗装等)/床(フローリング等)/建具(室内ドア等)
・備考
UB、洗面、トイレ、システムキッチン、建具、クロス、床暖マット、フローリング
※実施年月は、施工箇所の中で最も古いものを表示しています
リノベーション履歴 -
備考 【物件周辺の生活情報】
・学校
台東区立上野小学校(200m)、台東区立忍岡中学校(1,060m)
・その他施設
総合病院(710m)
洗濯機置き場、共有持分:964.94平米×6005/724119有 民泊・宿泊施設不可 ペット飼育:可(犬及び猫は1匹まで(その他詳細は細則参照)) 専有面積:トランクルーム面積0.41平米含  【設備・特記事項備考】専用バス・専用トイレ・電気コンロ・全居室収納
国土法届出:不要
販売戸数:1戸
法令等制限:駐車場、駐輪場、バイク置き場の空き状況は管理会社へ要確認 
特記事項 ペット相談可

省エネ性能

エネルギー消費性能 -
断熱性能 -
目安光熱費 -

東京都台東区東上野5丁目 周辺地図情報

地図
※地図上に表示される物件の位置は付近住所に所在することを表すものであり、実際の物件所在地とは異なる場合がございます。
   正確な物件所在地は、取扱い不動産会社にお問い合わせください。
物件を見たい、物件や住環境の詳しい情報やローン相談など、
お問い合わせ先
ME不動産城北株式会社

不動産会社情報

お問い合わせ先 商号:ME不動産城北株式会社
免許番号:東京都知事(01)第111203号
所在地:東京都板橋区大谷口2丁目1番1号
取引態様:媒介
管理コード:5890
所属協会など:(公財)東日本不動産流通機構、(公社)首都圏不動産公正取引協議会、(公社)全日本不動産協会東京都本部
共有する
QRコード

お電話でのお問い合わせ

電話をかける(携帯・PHS可)
お問い合わせダイヤル
通話無料0037-619-05558
営業時間 09:00~18:30 (定休日:水曜日)
音声案内に従って数字を入力
お問い合わせ番号
77765-2973
不動産会社につながります
不動産会社のスタッフと
直接電話で話せます。
※不動産会社がお電話に出られなかった場合、株式会社LIFULLは電話会社が提供するサービスを介してお客様の発信者番号を受領後、折り返し専用の電話番号を発番してお問合せの不動産会社に通知します(お客様の発信者番号がお問合せの不動産会社に通知されることはございません)
※光IP電話、及びIP電話からはご利用になれません
※0037で始まる電話番号に携帯電話からお問合せいただいた方には、ショートメッセージ(SMS)によるお問合せ完了通知をお届けする場合があります
物件を見たい、物件や住環境の詳しい情報やローン相談など、
お問い合わせ先
ME不動産城北株式会社

台東区の暮らしデータ

人口などの統計情報

世帯数 121557世帯
人口総数 212388人
転入者数 25608人
転入率(人口1000人当たり)
120.57人
転出者数 19506人
転出率(人口1000人当たり)
91.84人
土地平均価格
住宅地
741667円/m2
商業地
1973458円/m2

結婚・育児の助成金

子育て関連の独自の取り組み (1)弱視等治療用眼鏡助成(9歳未満の児童が弱視等の治療用眼鏡を修理した場合及び保険で認められない期間に買い換えた場合、当該費用の一部を助成)。(2)にぎやか家庭応援プラン(第3子以降のお子さんの出生、小学校・中学校入学時に3万円相当のお祝品を贈呈)。(3)バスレクリエーション(ひとり親家庭を対象に日帰りのバスハイクを年2回実施)。
出産祝い あり
公立保育所数 11所(うち0歳児保育を実施している保育所:8所)
私立保育所数 36所(うち0歳児保育を実施している保育所:26所)
保育所入所待機児童数 0人
認定こども園数 5園 預かり保育実施園数 公立:10園 私立:7園
学校給食 【小学校】完全給食【中学校】完全給食
公立中学校の学校選択制 実施
子ども・学生等医療費助成<通院>対象年齢 18歳3月末まで 子ども・学生等医療費助成<入院>対象年齢 18歳3月末まで

台東区の治安・ごみ収集情報

公共料金・インフラ

ガス料金(22m3使用した場合の月額) 東京瓦斯株式会社(東京地区等)3926円
水道料金(口径20mmで20m3の月額) 東京都水道局2816円
下水道料金(20m3を使用した場合の月額) 東京都下水道局2068円
下水道普及率 100.0%

安心・安全

建物火災出火件数 65件
人口10000人当たり
3.07件
刑法犯認知件数 2805件
人口1000人当たり
13.27件
ハザード・防災マップ あり

医療

一般病院総数 7ヶ所
一般診療所総数 277ヶ所
小児科医師数 28人
小児人口10000人当たり
15.85人
産婦人科医師数 16人
15~49歳女性人口1万人当たり
3.13人
介護保険料基準額(月額) 6900円

ごみ

家庭ごみ収集(可燃ごみ) 無料
備考
日量10kgを超える臨時のごみは有料。
家庭ごみの分別方式 3分別10種〔可燃ごみ 不燃ごみ 資源(新聞、雑誌・雑がみ、段ボール、紙パック、ペットボトル、缶、びん、食品発泡トレイ・カップ)〕 拠点回収:古布 ビデオテープ類 乾電池 廃食油 紙パック 小型家電 蛍光灯
家庭ごみの戸別収集 実施
粗大ごみ収集 あり
備考
有料。一般家庭に限る。
生ごみ処理機助成金制度 なし
上限金額
-
上限比率
-

台東区の住まいの給付金

中古購入

利子補給制度 なし
補助/助成金制度 なし

増築・改築・改修

利子補給制度 あり
上限金額
-
備考
【住宅修繕資金融資あっせん】居住部分の床面積が280m2以下で、自身が居住するための住宅に対する修繕工事費の80%以内(最高500万円まで)の融資を金融機関にあっせんし、利子の一部を区が補給。契約利率は年度ごとに異なる(2024年度、契約利率1.50%)。利子補給率0.5%、償還期間は5・7・10年で、金額により異なる。申込者の主な資格は区内に1年以上居住し、最終償還時の年齢が75歳未満であること、返済能力を有すること等。
補助/助成金制度 あり
上限金額
(1)200万円(2)--(3)--(4)20万円
備考
(1)【耐震診断助成】(木造住宅)診断費用全額、20万円以内(非木造住宅)診断費用の1/2、50万円以内【補強設計助成(木造住宅のみ)】設計費用の1/2、10万円以内【耐震改修工事助成(住宅のみ)】旧耐震基準住宅は改修工事費用の1/2、150万円以内(重点地域は2/3、200万円以内)新耐震基準木造住宅は1/2、100万円以内。別途段階耐震改修工事助成あり(2)【高齢者住宅改修予防給付】(3)【高齢者住宅設備改修給付】(2)(3)について65歳以上の高齢者の住宅のバリアフリー化に助成。(4)【子育て世帯住宅リフォーム支援制度】子育て世帯のリフォーム工事費(税別)の1/3、20万円を限度として助成。
暮らしデータ提供元:生活ガイド.com
※行政機関により公表していない地域及びデータがございます。東京23区以外の政令指定都市は、市全体のデータとして表示しています。
※提供データには細心の注意を払っておりますが、調査後に変更がある場合があります。 最新の情報につきましては各市区役所までお問い合わせいただくか、自治体HPなどをご確認ください。
OCN×ドコモ光新規お申込みで合計最大137,280円相当おトク!特典の内訳・適用条件など詳細はこちら

台東区内の各駅の住みやすさ

住宅ローンの返済額一覧

物件価格 10990万円に対して、年率 で、頭金 の場合
↓ボーナス 35年間 30年間 25年間 20年間 15年間 10年間
0万円 272,305円/月 313,849円/月 372,048円/月 459,392円/月 605,026円/月 896,385円/月
5万円 263,219円/月 304,874円/月 363,182円/月 450,633円/月 596,374円/月 887,839円/月
10万円 254,134円/月 295,898円/月 354,315円/月 441,875円/月 587,723円/月 879,294円/月
15万円 245,048円/月 286,922円/月 345,448円/月 433,116円/月 579,072円/月 870,749円/月
20万円 235,963円/月 277,947円/月 336,581円/月 424,357円/月 570,420円/月 862,204円/月
25万円 226,877円/月 268,971円/月 327,715円/月 415,599円/月 561,769円/月 853,659円/月
30万円 217,792円/月 259,995円/月 318,848円/月 406,840円/月 553,117円/月 845,114円/月
支払い利息合計 9,489,870円~ 8,104,360円~ 6,730,100円~ 5,366,560円~ 4,014,010円~ 2,672,420円~
※元利均等返済方式で試算しています。 「円」の単位以下の端数金額は「切り捨て」として計算しております。
※金利は、固定金利として計算しております。
※上記の住宅ローン返済額一覧は、あくまで試算であり、将来の金利動向により、実際のご返済額とは異なります。
※ボーナス支払総額が総支払額の50%を超えている場合、上記の表では「ローン不可」となります。
※住宅ローン返済額一覧の数値は、住宅ローンのお申し込みやご融資をお約束するものではございません。
物件を見たい、物件や住環境の詳しい情報やローン相談など、
お問い合わせ先
ME不動産城北株式会社

掲載情報の著作権は提供元企業等に帰属します。
Copyright:(C) 2025 LIFULL Co.,Ltd.
アプリで簡単 物件探し 大手不動産サイトの情報から一括検!プッシュ通知で物件を見逃さない
App Storeからダウンロード Google Playで手に入れよう QRコード