アプリで簡単 物件探し 通知 共有 アプリならではの機能を使ってみる
中古マンション

鎌倉岩瀬ハイツ 1階 3LDK

情報提供元
SUUMO
鎌倉岩瀬ハイツ 2025年5月撮影
価格 4690万円  (管理費等:1万1000円/月(一部委託(管理員なし)))
修繕積立金 13,440円
交通
所在地 神奈川県鎌倉市岩瀬1周辺地図
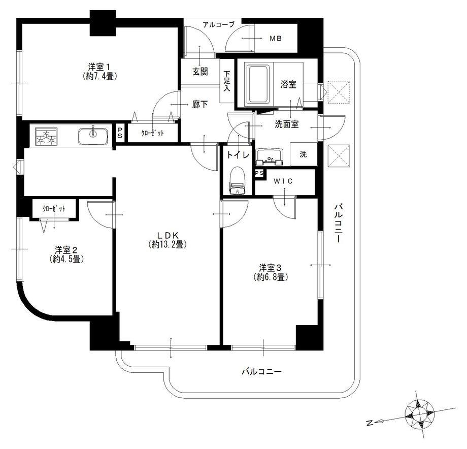
間取り 3LDK 専有面積 78.1m2(23.62坪)(壁芯)
所在階/階数 1階/7階建 方位
築年月 1984年8月 築年数 築41年4ヶ月
おすすめポイント
○新耐震基準のマンションです◎○1階住戸のため、下階への足音などを気にせずお過ごしいただけます○LDKは約15.6畳、ご家族が自然と集う広々とした空間♪○ウォークインクローゼットを2か所新設。豊富な収納スペースをご用意!○大船駅直結の商業施設「アトレ大船」や「大船ルミネウィング」では、ショッピングやグルメが楽しめます♪リノベーション内容(2025年10月完了)■システムキッチン■ユニットバス(追焚機能付)■トイレ(温水洗浄便座)■フローリング■壁、天井クロス、他
物件を見たい、物件や住環境の詳しい情報やローン相談など、
お問い合わせ先
(株)マイプレイス

詳細情報

価格 4690万円 管理費等 1万1000円/月(一部委託(管理員なし))
駐車場 空無 修繕積立金 13,440円
所在地 神奈川県鎌倉市岩瀬1周辺地図
交通
物件名 鎌倉岩瀬ハイツ
築年月(築年数) 1984年8月(築41年4ヶ月) 間取り 3LDK
総戸数 76戸 専有面積 78.1m2(23.62坪)(壁芯)
所在階/階数 1階/7階建 バルコニー面積 8.08m2
方位 建物構造 SRC
管理形態
維持費等 土地権利 所有権
用途地域 1種住居 借地期間・地代
現況 引渡可能年月 相談
情報提供元 SUUMO [030Z78041344] 情報公開日
情報更新日 次回更新予定日 随時

設備など

ペット相談可 - 即入居可 - 南向き
角部屋 - 駐車場空き有り - トランクルーム -
オートロック - 宅配ボックス - 浴室乾燥機
床暖房 - ウォークインクローゼット 管理人常駐 -
最上階 - 2階以上 - タワーマンション -
設備 バルコニー・トイレ・収納スペース・エレベーター・浴室乾燥機・ウォークインクローゼット・温水洗浄便座・システムキッチン・モニタ付インターホン・風呂・浄水器・衣類乾燥機・リフォーム・バイク置き場・駐輪場・リノベーション
リフォーム履歴 2025年10月完了
 水回り設備交換:キッチン・浴室・トイレ
 内装リフォーム:壁・床
※年月は一番古いリフォーム箇所を表します
リノベーション履歴 -
備考 <物件名>鎌倉岩瀬ハイツ/<駐車場>空無/<土地権利>所有権/<間取り>3LDK/<リフォーム>●リフォーム:2025年10月完了(水回り設備交換:キッチン・浴室・トイレ、内装リフォーム:壁・床)※年月は一番古いリフォーム箇所を表します/<特徴>◆リノベーション物件◆≪売主≫ならではの充実した物件資料と豊富な知識!、年内引渡可・2沿線以上利用可・スーパー 徒歩10分以内・市街地が近い・内装リフォーム
販売戸数:1戸/管理費等帯:11000円/修繕積立金帯:13440円
法令等制限:アルコーブ面積:1.28平米
特記事項

省エネ性能

エネルギー消費性能 -
断熱性能 -
目安光熱費 -

神奈川県鎌倉市岩瀬1 周辺地図情報

地図
※地図上に表示される物件の位置は付近住所に所在することを表すものであり、実際の物件所在地とは異なる場合がございます。
   正確な物件所在地は、取扱い不動産会社にお問い合わせください。
物件を見たい、物件や住環境の詳しい情報やローン相談など、
お問い合わせ先
(株)マイプレイス

不動産会社情報

お問い合わせ先 商号:(株)マイプレイス
免許番号:国土交通大臣(4)第007356号
所在地:東京都中央区日本橋小舟町8ー1 ヒューリック小舟町ビル6階
TEL:03-5652-8343
取引態様:売主
管理コード:4250389(572745)
共有する
QRコード
物件を見たい、物件や住環境の詳しい情報やローン相談など、
お問い合わせ先
(株)マイプレイス

鎌倉市の暮らしデータ

人口などの統計情報

世帯数 75607世帯
人口総数 175625人
転入者数 7562人
転入率(人口1000人当たり)
43.06人
転出者数 6984人
転出率(人口1000人当たり)
39.77人
土地平均価格
住宅地
214476円/m2
商業地
975500円/m2

結婚・育児の助成金

子育て関連の独自の取り組み (1)かまくらこども相談窓口きらきらの運営。(2)「かまくら子育てナビきらきら」の発行・配布。
出産祝い なし
公立保育所数 4所(うち0歳児保育を実施している保育所:4所)
私立保育所数 24所(うち0歳児保育を実施している保育所:24所)
保育所入所待機児童数 34人
認定こども園数 6園 預かり保育実施園数 公立:- 私立:15園
学校給食 【小学校】完全給食【中学校】家庭弁当等との選択制/デリバリー形式[運搬:ランチボックス、内容:完全給食]
公立中学校の学校選択制 未実施
子ども・学生等医療費助成<通院>対象年齢 18歳3月末まで 子ども・学生等医療費助成<入院>対象年齢 18歳3月末まで

鎌倉市の治安・ごみ収集情報

公共料金・インフラ

ガス料金(22m3使用した場合の月額) 東京瓦斯株式会社(東京地区等)3926円
水道料金(口径20mmで20m3の月額) 神奈川県営水道2988円
下水道料金(20m3を使用した場合の月額) 鎌倉市2754円
下水道普及率 97.8%

安心・安全

建物火災出火件数 28件
人口10000人当たり
1.62件
刑法犯認知件数 645件
人口1000人当たり
3.73件
ハザード・防災マップ あり

医療

一般病院総数 11ヶ所
一般診療所総数 184ヶ所
小児科医師数 29人
小児人口10000人当たり
15.35人
産婦人科医師数 21人
15~49歳女性人口1万人当たり
6.66人
介護保険料基準額(月額) 5500円

ごみ

家庭ごみ収集(可燃ごみ) 有料
備考
指定ごみ袋有料。
家庭ごみの分別方式 4分別21種〔資源物(飲食用カン、飲食用ビン、植木剪定材、ミックスペーパー、新聞紙、雑誌・古本、ボール紙・クラフト紙、紙パック、ダンボール、布類、ペットボトル、容器包装プラスチック、使用済み食用油、製品プラスチック) 燃やすごみ 燃えないごみ 危険・有害ごみ(蛍光管、乾電池、体温計・温度計、スプレーカン・カセットボンベ、割れたガラス・陶磁器・鏡・刃物類・電球)〕
家庭ごみの戸別収集 一部実施(【声かけふれあい収集】[1]介護保険の居宅サービスを日常的に利用している高齢者のみで構成されている世帯。[2]身体障害者手帳1級又は2級の交付を受けている障害者のみで構成されている世帯。[3]精神障害者保健福祉手帳1級又は2級の交付を受けており、居宅介護を日常的に利用している障害者のみで構成されている世帯。[4]前3号に規定する高齢者及び障害者で構成されている世帯。[5]前各号に規定する世帯と同等の状態にあると市長が認めた世帯)
粗大ごみ収集 あり
備考
有料。事前申込制。
生ごみ処理機助成金制度 あり
上限金額
30000円
上限比率
75.0%

鎌倉市の住まいの給付金

中古購入

利子補給制度 なし
補助/助成金制度 なし

増築・改築・改修

利子補給制度 なし
補助/助成金制度 あり
上限金額
120万円
備考
【耐震改修工事費等補助金交付制度】市または市が指定した事業者が行った「現地耐震診断」の結果、総合評点が1.0未満の木造住宅を耐震改修する場合、補助金を受けることができる。1981年5月31日以前に建築工事に着手した一戸建て住宅、二世帯住宅などが対象。費用の1/2、かつ上限100万円(低所得者世帯等は上限120万円)を補助。
暮らしデータ提供元:生活ガイド.com
※行政機関により公表していない地域及びデータがございます。東京23区以外の政令指定都市は、市全体のデータとして表示しています。
※提供データには細心の注意を払っておりますが、調査後に変更がある場合があります。 最新の情報につきましては各市区役所までお問い合わせいただくか、自治体HPなどをご確認ください。
OCN×ドコモ光新規お申込みで合計最大137,280円相当おトク!特典の内訳・適用条件など詳細はこちら

鎌倉市内の各駅の住みやすさ

住宅ローンの返済額一覧

物件価格 4690万円に対して、年率 で、頭金 の場合
↓ボーナス 35年間 30年間 25年間 20年間 15年間 10年間
0万円 108,766円/月 125,360円/月 148,606円/月 183,494円/月 241,664円/月 358,041円/月
5万円 99,680円/月 116,384円/月 139,739円/月 174,735円/月 233,013円/月 349,496円/月
10万円 90,595円/月 107,409円/月 130,873円/月 165,976円/月 224,361円/月 340,951円/月
15万円 81,509円/月 98,433円/月 122,006円/月 157,218円/月 215,710円/月 332,405円/月
20万円 72,424円/月 89,457円/月 113,139円/月 148,459円/月 207,058円/月 323,860円/月
25万円 63,338円/月 80,481円/月 104,272円/月 139,700円/月 198,407円/月 315,315円/月
30万円 ローン不可 71,506円/月 95,406円/月 130,942円/月 189,755円/月 306,770円/月
支払い利息合計 3,799,640円~ 3,248,320円~ 2,697,500円~ 2,151,040円~ 1,608,850円~ 1,071,140円~
※元利均等返済方式で試算しています。 「円」の単位以下の端数金額は「切り捨て」として計算しております。
※金利は、固定金利として計算しております。
※上記の住宅ローン返済額一覧は、あくまで試算であり、将来の金利動向により、実際のご返済額とは異なります。
※ボーナス支払総額が総支払額の50%を超えている場合、上記の表では「ローン不可」となります。
※住宅ローン返済額一覧の数値は、住宅ローンのお申し込みやご融資をお約束するものではございません。
物件を見たい、物件や住環境の詳しい情報やローン相談など、
お問い合わせ先
(株)マイプレイス

掲載情報の著作権は提供元企業等に帰属します。
Copyright:(C) 2025 Recruit Co., Ltd.
アプリで簡単 物件探し 大手不動産サイトの情報から一括検!プッシュ通知で物件を見逃さない
App Storeからダウンロード Google Playで手に入れよう QRコード