アプリで簡単 物件探し 通知 共有 アプリならではの機能を使ってみる
中古マンション

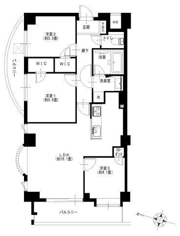
ジェイパーク戸越銀座ブランシェール 2階 3LDK

情報提供元
SUUMO
ジェイパーク戸越銀座ブランシェール
価格 11290万円  (管理費等:1万4870円/月(委託(通勤)))
修繕積立金 26,550円
交通
所在地 東京都品川区荏原2周辺地図
間取り 3LDK 専有面積 69.15m2(20.91坪)(壁芯)
所在階/階数 2階/7階建 方位 南西
築年月 2001年2月 築年数 築24年10ヶ月
おすすめポイント
○オートロック・宅配ボックス付きマンション○犬・猫2匹まで飼育可(細則有)○南西向き角住戸、2面採光の明るく開放感のあるお部屋♪○床暖房や食洗機、1418サイズの浴室などワンランク上の充実した設備○ウォークインクローゼットを2か所新設!整理しやすい室内です○周辺には、武蔵小山商店街パルムや戸越銀座商店街があり、毎日のお買い物に便利です○京陽小学校まで徒歩6分、お子様が通いやすい距離♪リノベーション内容(2025年10月完了)■システムキッチン■ユニットバス(追焚機能付)■洗面化粧台■トイレ(温水洗浄便座)■フローリング■壁、天井クロス、他
ペット相談可・角部屋・管理人日勤
物件を見たい、物件や住環境の詳しい情報やローン相談など、
お問い合わせ先
(株)マイプレイス

詳細情報

価格 11290万円 管理費等 1万4870円/月(委託(通勤))
駐車場 空無 修繕積立金 26,550円
所在地 東京都品川区荏原2周辺地図
交通
物件名 ジェイパーク戸越銀座ブランシェール
築年月(築年数) 2001年2月(築24年10ヶ月) 間取り 3LDK
総戸数 42戸 専有面積 69.15m2(20.91坪)(壁芯)
所在階/階数 2階/7階建 バルコニー面積 12.75m2
方位 南西 建物構造 RC
管理形態 委託管理
維持費等 土地権利 所有権
用途地域 準工業 借地期間・地代
現況 引渡可能年月 相談
情報提供元 SUUMO [030Z78774608] 情報公開日
情報更新日 次回更新予定日 随時

設備など

ペット相談可 即入居可 - 南向き -
角部屋 駐車場空き有り - トランクルーム -
オートロック - 宅配ボックス 浴室乾燥機
床暖房 ウォークインクローゼット 管理人常駐 -
最上階 - 2階以上 タワーマンション -
設備 バルコニー・トイレ・洗面所・エレベーター・管理人日勤・浴室乾燥機・ウォークインクローゼット・シャンプードレッサ・温水洗浄便座・システムキッチン・モニタ付インターホン・風呂・対面K・浄水器・床暖房・2面バルコニー・衣類乾燥機・食器洗浄乾燥機・リフォーム・駐輪場・宅配BOX・リノベーション
リフォーム履歴 2025年10月完了
 水回り設備交換:キッチン・浴室・トイレ
 内装リフォーム:壁・床・全室
※年月は一番古いリフォーム箇所を表します
リノベーション履歴 -
備考 <物件名>ジェイパーク戸越銀座ブランシェール/<駐車場>空無/委託(日勤)/<土地権利>所有権/<間取り>3LDK/<リフォーム>●リフォーム:2025年10月完了(水回り設備交換:キッチン・浴室・トイレ、内装リフォーム:壁・床・全室)※年月は一番古いリフォーム箇所を表します/<特徴>◆リノベーション物件◆≪売主≫ならではの充実した物件資料と豊富な知識!、年内引渡可・スーパー 徒歩10分以内・内装リフォーム・システムキッチン・浴室乾燥機
販売戸数:1戸/管理費等帯:14870円/修繕積立金帯:26550円
特記事項 ペット相談可・角部屋・管理人日勤

省エネ性能

エネルギー消費性能 -
断熱性能 -
目安光熱費 -

東京都品川区荏原2 周辺地図情報

地図
※地図上に表示される物件の位置は付近住所に所在することを表すものであり、実際の物件所在地とは異なる場合がございます。
   正確な物件所在地は、取扱い不動産会社にお問い合わせください。
物件を見たい、物件や住環境の詳しい情報やローン相談など、
お問い合わせ先
(株)マイプレイス

不動産会社情報

お問い合わせ先 商号:(株)マイプレイス
免許番号:国土交通大臣(4)第007356号
所在地:東京都中央区日本橋小舟町8ー1 ヒューリック小舟町ビル6階
TEL:03-5652-8343
取引態様:売主
管理コード:4250417(573032)
共有する
QRコード
物件を見たい、物件や住環境の詳しい情報やローン相談など、
お問い合わせ先
(株)マイプレイス

品川区の暮らしデータ

人口などの統計情報

世帯数 237447世帯
人口総数 408280人
転入者数 35306人
転入率(人口1000人当たり)
86.47人
転出者数 30642人
転出率(人口1000人当たり)
75.05人
土地平均価格
住宅地
966818円/m2
商業地
1410833円/m2

結婚・育児の助成金

子育て関連の独自の取り組み (1)特別保育(延長保育・休日保育・年末保育・病後児保育・病児保育)の実施。(2)育児休業明け入園予約制度。(3)短時間就労対応型保育。(4)子育てかんがるープラン(子育てプランを作成する支援)。(5)幼保一体施設。(6)園児の保護者による一日保育士体験。(7)9年間の一貫したカリキュラム(品川区立学校教育要領)。(8)すまいるスクール。(9)保育園・幼稚園・小学校の保幼小ジョイント事業。(10)しながわこどもぽけっと。(11)産後の家事・育児支援のヘルパー等の利用助成。(12)区立学校における給食および補助教材費の無償化。特別支援学校給食費補助事業(13)多胎児家庭の家事・育児支援のヘルパー等の利用助成。(14)医療的ケア児受入れ(常時の人工呼吸器を除く)。
出産祝い あり
公立保育所数 41所(うち0歳児保育を実施している保育所:32所)
私立保育所数 98所(うち0歳児保育を実施している保育所:94所)
保育所入所待機児童数 0人
認定こども園数 11園 預かり保育実施園数 公立:9園 私立:16園
学校給食 【小学校】完全給食【中学校】完全給食
公立中学校の学校選択制 実施(新入学時のみ自由選択制により実施)
子ども・学生等医療費助成<通院>対象年齢 18歳3月末まで 子ども・学生等医療費助成<入院>対象年齢 18歳3月末まで

品川区の治安・ごみ収集情報

公共料金・インフラ

ガス料金(22m3使用した場合の月額) 東京瓦斯株式会社(東京地区等)3926円
水道料金(口径20mmで20m3の月額) 東京都水道局2816円
下水道料金(20m3を使用した場合の月額) 東京都下水道局2068円
下水道普及率 100.0%

安心・安全

建物火災出火件数 106件
人口10000人当たり
2.51件
刑法犯認知件数 2146件
人口1000人当たり
5.08件
ハザード・防災マップ あり

医療

一般病院総数 15ヶ所
一般診療所総数 498ヶ所
小児科医師数 123人
小児人口10000人当たり
26.07人
産婦人科医師数 75人
15~49歳女性人口1万人当たり
7.59人
介護保険料基準額(月額) 6500円

ごみ

家庭ごみ収集(可燃ごみ) 無料
備考
1回45リットル4袋まで無料。超えた分は46円/kg。
家庭ごみの分別方式 3分別14種〔燃やすごみ 陶器・ガラス・金属ごみ 資源(製品プラスチック・プラスチック製容器包装、ペットボトル、飲食用びん、飲食用缶、新聞、段ボール、雑誌、紙パック、雑がみ、蛍光灯、水銀体温計・水銀血圧計、乾電池)〕 拠点回収:資源4種(古着・古布 廃食用油 不用園芸土 小型家電)
家庭ごみの戸別収集 実施
粗大ごみ収集 あり
備考
有料。事前申込制。一部収集できない品目あり。
生ごみ処理機助成金制度 あり
上限金額
20000円
上限比率
33.3%

品川区の住まいの給付金

中古購入

利子補給制度 なし
補助/助成金制度 なし

増築・改築・改修

利子補給制度 なし
補助/助成金制度 あり
上限金額
20万円
備考
【住宅改善工事助成事業】自己居住住宅について区内施工業者を利用し、環境またはバリアフリー等に配慮した改修工事を行う場合に、工事費用の10%(助成限度額20万円)を助成。その他条件あり。
暮らしデータ提供元:生活ガイド.com
※行政機関により公表していない地域及びデータがございます。東京23区以外の政令指定都市は、市全体のデータとして表示しています。
※提供データには細心の注意を払っておりますが、調査後に変更がある場合があります。 最新の情報につきましては各市区役所までお問い合わせいただくか、自治体HPなどをご確認ください。
OCN×ドコモ光新規お申込みで合計最大137,280円相当おトク!特典の内訳・適用条件など詳細はこちら

住宅ローンの返済額一覧

物件価格 11290万円に対して、年率 で、頭金 の場合
↓ボーナス 35年間 30年間 25年間 20年間 15年間 10年間
0万円 280,092円/月 322,825円/月 382,688円/月 472,530円/月 622,329円/月 922,020円/月
5万円 271,007円/月 313,849円/月 373,822円/月 463,771円/月 613,677円/月 913,475円/月
10万円 261,921円/月 304,874円/月 364,955円/月 455,013円/月 605,026円/月 904,930円/月
15万円 252,836円/月 295,898円/月 356,088円/月 446,254円/月 596,374円/月 896,385円/月
20万円 243,750円/月 286,922円/月 347,221円/月 437,495円/月 587,723円/月 887,839円/月
25万円 234,665円/月 277,947円/月 338,355円/月 428,737円/月 579,072円/月 879,294円/月
30万円 225,579円/月 268,971円/月 329,488円/月 419,978円/月 570,420円/月 870,749円/月
支払い利息合計 9,760,410円~ 8,335,720円~ 6,922,100円~ 5,519,680円~ 4,128,550円~ 2,748,620円~
※元利均等返済方式で試算しています。 「円」の単位以下の端数金額は「切り捨て」として計算しております。
※金利は、固定金利として計算しております。
※上記の住宅ローン返済額一覧は、あくまで試算であり、将来の金利動向により、実際のご返済額とは異なります。
※ボーナス支払総額が総支払額の50%を超えている場合、上記の表では「ローン不可」となります。
※住宅ローン返済額一覧の数値は、住宅ローンのお申し込みやご融資をお約束するものではございません。
物件を見たい、物件や住環境の詳しい情報やローン相談など、
お問い合わせ先
(株)マイプレイス

掲載情報の著作権は提供元企業等に帰属します。
Copyright:(C) 2025 Recruit Co., Ltd.
アプリで簡単 物件探し 大手不動産サイトの情報から一括検!プッシュ通知で物件を見逃さない
App Storeからダウンロード Google Playで手に入れよう QRコード