アプリで簡単 物件探し 通知 共有 アプリならではの機能を使ってみる
中古マンション

エストヴォーレ上北台 9階 3LDK

情報提供元
SUUMO
エストヴォーレ上北台 スーパー他生活施設までアクセスしやすい便利なエリア◎<BR>お仕事で遅くなった日や、急にお弁当が要ると言われたときなどに頼りになります。
価格 4150万円  (管理費等:1万3000円/月(委託(通勤)))
修繕積立金 7,610円
交通
所在地 東京都東大和市立野2周辺地図
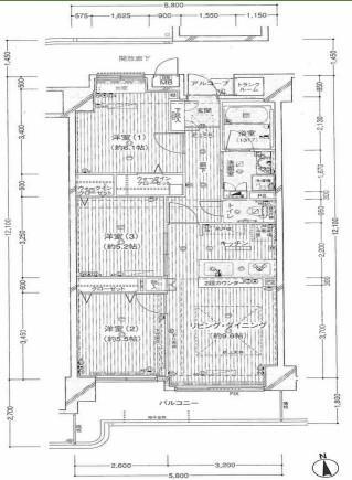
間取り 3LDK 専有面積 68.59m2(壁芯)
所在階/階数 9階/10階建 方位
築年月 2003年10月 築年数 築22年2ヶ月
おすすめポイント
~リライズホームのページをご覧くださり、誠にありがとうございます~☆多摩モノレール線「上北台」駅徒歩30秒☆通勤、通学に便利な「立川」方面まで乗り換えなしで1本のアクセス◎【Planning Point】◆生活の質を高める設備・仕様◆☆2025年11月リノベーション完了予定☆◆家事効率の良い【3LDK】の間取りです◆南向きなので、自然光だけでもポカポカ暖かく過ごせそうですね◆目の届きやすい対面キッチン【周辺環境】◇ベルク…徒歩3分◇ローソン…徒歩3分『詳しい資料のご請求』だけでも全く大丈夫です。ご見学のご希望など、ぜひお気軽にお問合せください♪
日当り良好・管理人日勤
お問い合わせ先
リライズホーム(株)武蔵野店
物件を見たい、物件や住環境の詳しい情報やローン相談など、
お問い合わせ先
リライズホーム(株)武蔵野店

詳細情報

価格 4150万円 管理費等 1万3000円/月(委託(通勤))
駐車場   修繕積立金 7,610円
所在地 東京都東大和市立野2周辺地図
交通
  • 多摩都市モノレール 上北台駅 徒歩1分乗換案内
物件名 エストヴォーレ上北台
築年月(築年数) 2003年10月(築22年2ヶ月) 間取り 3LDK
総戸数 専有面積 68.59m2(壁芯)
所在階/階数 9階/10階建 バルコニー面積 9.91m2
方位 建物構造 RC
管理形態 委託管理
維持費等 土地権利 所有権
用途地域 商業地域 借地期間・地代
現況 引渡可能年月 相談
情報提供元 SUUMO [030Z78743089] 情報公開日
情報更新日 次回更新予定日 随時

設備など

ペット相談可 - 即入居可 - 南向き
角部屋 - 駐車場空き有り - トランクルーム -
オートロック - 宅配ボックス - 浴室乾燥機 -
床暖房 - ウォークインクローゼット - 管理人常駐 -
最上階 - 2階以上 タワーマンション -
設備 バルコニー・収納スペース・管理人日勤・システムキッチン・対面K・2面バルコニー・リフォーム・リノベーション
リフォーム履歴 2025年11月完了予定
 水回り設備交換:キッチン・浴室・トイレ
 内装リフォーム:壁・床・全室
 その他:建具新設 他
※年月は一番古いリフォーム箇所を表します
リノベーション履歴 -
備考 <物件名>エストヴォーレ上北台/委託(日勤)/<土地権利>所有権/<間取り>3LDK/<リフォーム>●リフォーム:2025年11月完了予定(水回り設備交換:キッチン・浴室・トイレ、内装リフォーム:壁・床・全室、その他:建具新設 他)※年月は一番古いリフォーム箇所を表します/<特徴>☆駅近30秒×11月リノベーション完了予定☆室内綺麗な状態でお住まい可、2沿線以上利用可・スーパー 徒歩10分以内・市街地が近い・南向き・システムキッチン
販売戸数:1戸/管理費等帯:13000円/修繕積立金帯:7610円
特記事項 日当り良好・管理人日勤

省エネ性能

エネルギー消費性能 -
断熱性能 -
目安光熱費 -

東京都東大和市立野2 周辺地図情報

地図
※地図上に表示される物件の位置は付近住所に所在することを表すものであり、実際の物件所在地とは異なる場合がございます。
   正確な物件所在地は、取扱い不動産会社にお問い合わせください。
物件を見たい、物件や住環境の詳しい情報やローン相談など、
お問い合わせ先
リライズホーム(株)武蔵野店

不動産会社情報

お問い合わせ先 商号:リライズホーム(株)武蔵野店
免許番号:東京都知事(2)第100614号
所在地:東京都武蔵野市境2-2-12 清本ビル2階
TEL:0120-151301
取引態様:媒介
共有する
QRコード
物件を見たい、物件や住環境の詳しい情報やローン相談など、
お問い合わせ先
リライズホーム(株)武蔵野店

東大和市の暮らしデータ

人口などの統計情報

世帯数 36291世帯
人口総数 85085人
転入者数 3883人
転入率(人口1000人当たり)
45.64人
転出者数 3209人
転出率(人口1000人当たり)
37.72人
土地平均価格
住宅地
170200円/m2
商業地
189000円/m2

結婚・育児の助成金

子育て関連の独自の取り組み (1)病児・病後児保育室の「お迎えサービス」(病児・病後児保育室の保育士等が保護者に代わって保育園に児童をお迎えに行き、ドクターの診察の上病児・病後児保育室で保育を行う。タクシー代無料)。(2)保育士の人材派遣会社からの紹介料の補助(紹介料[60万円程度]の半額)。(3)保育士等が通勤に利用する駐車場利用料を施設が負担している場合にその半額を補助(施設負担額の1/2、1施設最大5万円/月)。(4)保育に関する相談を行う保育コンシェルジュを配置。(5)学童保育所の開所時間を午後7時まで延長。また、学童保育所事業以外に児童館等でランドセル来館事業を実施している。
出産祝い あり
公立保育所数 1所(うち0歳児保育を実施している保育所:0所)
私立保育所数 16所(うち0歳児保育を実施している保育所:15所)
保育所入所待機児童数 0人
認定こども園数 2園 預かり保育実施園数 公立:- 私立:2園
学校給食 【小学校】完全給食【中学校】完全給食
公立中学校の学校選択制 未実施
子ども・学生等医療費助成<通院>対象年齢 18歳3月末まで 子ども・学生等医療費助成<入院>対象年齢 18歳3月末まで

東大和市の治安・ごみ収集情報

公共料金・インフラ

ガス料金(22m3使用した場合の月額) 東京瓦斯株式会社(東京地区等)3926円
水道料金(口径20mmで20m3の月額) 東京都水道局2816円
下水道料金(20m3を使用した場合の月額) 東大和市2017円
下水道普及率 100.0%

安心・安全

建物火災出火件数 9件
人口10000人当たり
1.07件
刑法犯認知件数 471件
人口1000人当たり
5.61件
ハザード・防災マップ あり

医療

一般病院総数 2ヶ所
一般診療所総数 53ヶ所
小児科医師数 21人
小児人口10000人当たり
20.73人
産婦人科医師数 1人
15~49歳女性人口1万人当たり
0.63人
介護保険料基準額(月額) 5400円

ごみ

家庭ごみ収集(可燃ごみ) 有料
備考
可燃ごみ・不燃ごみ及び容器包装プラスチックは有料。それ以外の資源物は無料。
家庭ごみの分別方式 4分別15種〔可燃ごみ 不燃ごみ 資源物(容器包装プラスチック、ペットボトル、びん、缶、新聞紙、雑誌・雑がみ、段ボール、布類、スプレー缶類) 有害ごみ(乾電池、蛍光管、ライター、水銀体温計等)〕 拠点回収:使用済小型家電 使用済インクカートリッジ 使用済携帯電話 紙パック 不用食器 缶 ペットボトル 乾電池 蛍光管 使い捨てコンタクトレンズ空ケース 使用済みプラスチック容器
家庭ごみの戸別収集 実施
粗大ごみ収集 あり
備考
有料。事前申込制。
生ごみ処理機助成金制度 あり
上限金額
20000円
上限比率
50.0%

東大和市の住まいの給付金

中古購入

利子補給制度 なし
補助/助成金制度 なし

増築・改築・改修

利子補給制度 なし
補助/助成金制度 あり
上限金額
(1)5万円(2)30万円(3)30万円
備考
(1)【木造住宅耐震診断費助成金】1981年5月31日以前に着工された木造2階建て以下の戸建て住宅を対象に耐震診断費用の一部を助成。費用の1/3(上限5万円)。他要件あり。(2)【木造住宅耐震改修費助成金】1981年5月31日以前に着工された木造2階建て以下の戸建て住宅を対象に耐震改修費用の一部を助成。費用の1/3(上限30万円)。他要件あり。(3)【木造住宅除去費助成金】1981年5月31日以前に着工された木造2階建て以下の戸建て住宅を対象に除去費用の一部を助成。費用の1/3(上限30万円)。他要件あり。※(1)~(3)申請期限:2024年12月15日まで
暮らしデータ提供元:生活ガイド.com
※行政機関により公表していない地域及びデータがございます。東京23区以外の政令指定都市は、市全体のデータとして表示しています。
※提供データには細心の注意を払っておりますが、調査後に変更がある場合があります。 最新の情報につきましては各市区役所までお問い合わせいただくか、自治体HPなどをご確認ください。
OCN×ドコモ光新規お申込みで合計最大137,280円相当おトク!特典の内訳・適用条件など詳細はこちら

東大和市内の各駅の住みやすさ

他のエリアから探す

東大和市の詳細地域から中古マンション物件を探す

上北台湖畔桜が丘蔵敷高木立野南街

近辺の市区から探す

所沢市狭山市入間市入間郡三芳町立川市武蔵野市府中市昭島市小金井市小平市日野市東村山市国分寺市国立市福生市清瀬市東久留米市武蔵村山市多摩市羽村市あきる野市西東京市西多摩郡瑞穂町

周辺の駅から探す

多摩モノレール
泉体育館砂川七番玉川上水桜街道上北台

マンションライブラリーを見る

エストヴォーレ上北台

住宅ローンの返済額一覧

物件価格 4150万円に対して、年率 で、頭金 の場合
↓ボーナス 35年間 30年間 25年間 20年間 15年間 10年間
0万円 94,748円/月 109,204円/月 129,454円/月 159,845円/月 210,519円/月 311,897円/月
5万円 85,663円/月 100,228円/月 120,587円/月 151,087円/月 201,867円/月 303,352円/月
10万円 76,577円/月 91,252円/月 111,721円/月 142,328円/月 193,216円/月 294,807円/月
15万円 67,492円/月 82,277円/月 102,854円/月 133,569円/月 184,564円/月 286,262円/月
20万円 58,406円/月 73,301円/月 93,987円/月 124,811円/月 175,913円/月 277,716円/月
25万円 49,321円/月 64,325円/月 85,120円/月 116,052円/月 167,261円/月 269,171円/月
30万円 ローン不可 55,350円/月 76,254円/月 107,293円/月 158,610円/月 260,626円/月
支払い利息合計 3,312,500円~ 2,832,160円~ 2,351,900円~ 1,875,280円~ 1,402,750円~ 933,860円~
※元利均等返済方式で試算しています。 「円」の単位以下の端数金額は「切り捨て」として計算しております。
※金利は、固定金利として計算しております。
※上記の住宅ローン返済額一覧は、あくまで試算であり、将来の金利動向により、実際のご返済額とは異なります。
※ボーナス支払総額が総支払額の50%を超えている場合、上記の表では「ローン不可」となります。
※住宅ローン返済額一覧の数値は、住宅ローンのお申し込みやご融資をお約束するものではございません。
物件を見たい、物件や住環境の詳しい情報やローン相談など、
お問い合わせ先
リライズホーム(株)武蔵野店

掲載情報の著作権は提供元企業等に帰属します。
Copyright:(C) 2025 Recruit Co., Ltd.
アプリで簡単 物件探し 大手不動産サイトの情報から一括検!プッシュ通知で物件を見逃さない
App Storeからダウンロード Google Playで手に入れよう QRコード