アプリで簡単 物件探し 通知 共有 アプリならではの機能を使ってみる
中古マンション

シーアイハイツ町田I棟 12階 4LDK

情報提供元
SUUMO
シーアイハイツ町田I棟
価格 1780万円  (管理費等:1万1400円/月(委託(通勤)))
修繕積立金 17,100円
交通
所在地 東京都町田市山崎町周辺地図
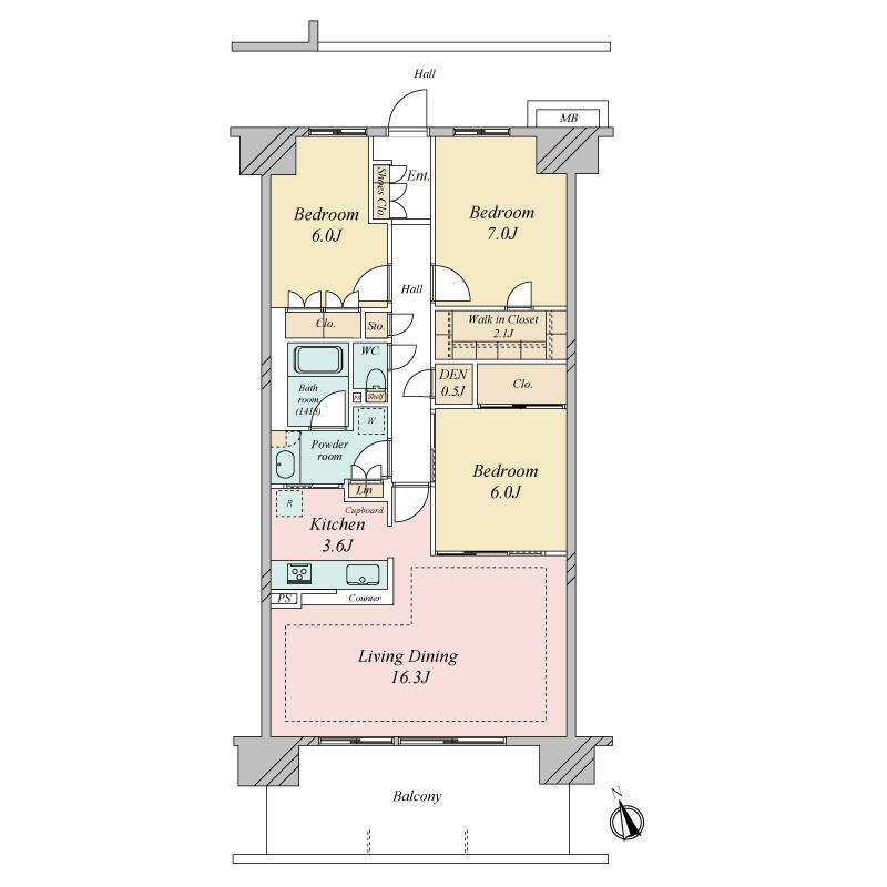
間取り 4LDK 専有面積 97.77m2(29.57坪)(壁芯)
所在階/階数 12階/14階建 方位
築年月 1987年1月 築年数 築38年10ヶ月
おすすめポイント
●おすすめポイント・14階建の12階部分 ・専有面積97.77㎡・北、東、南の角部屋 ・3面バルコニー ・浴室換気乾燥機、追い炊き機能付きの浴室・温水洗浄機能付きトイレ ・食器洗い機付きのキッチン・LDK15帖以上・ペット飼育可(犬と猫どちらか1匹)*別途飼育細則参照●周辺環境・町田山崎北郵便局まで約520m(徒歩約7分)・ミニストップ町田山崎団地店まで約860m(徒歩約11分)・町田市立七国山小学校まで約840m(徒歩約11分)・町田市立山崎中学校まで約930m(徒歩約12分)
ペット相談可・角部屋・管理人日勤
お問い合わせ先
住友林業ホームサービス(株)町田店
物件を見たい、物件や住環境の詳しい情報やローン相談など、
お問い合わせ先
住友林業ホームサービス(株)町田店

詳細情報

価格 1780万円 管理費等 1万1400円/月(委託(通勤))
駐車場   修繕積立金 17,100円
所在地 東京都町田市山崎町周辺地図
交通
  • 小田急線 町田駅 バス23分/「下山崎」バス停 停歩3分乗換案内
物件名 シーアイハイツ町田I棟
築年月(築年数) 1987年1月(築38年10ヶ月) 間取り 4LDK
総戸数 81戸 専有面積 97.77m2(29.57坪)(壁芯)
所在階/階数 12階/14階建 バルコニー面積 22.09m2
方位 建物構造 RC
管理形態 委託管理
維持費等 土地権利 所有権
用途地域 1種中高 借地期間・地代
現況 引渡可能年月 相談
情報提供元 SUUMO [030Z77961548] 情報公開日
情報更新日 次回更新予定日 随時

設備など

ペット相談可 即入居可 - 南向き
角部屋 駐車場空き有り - トランクルーム -
オートロック - 宅配ボックス - 浴室乾燥機
床暖房 - ウォークインクローゼット - 管理人常駐 -
最上階 - 2階以上 タワーマンション -
設備 トイレ・洗面所・管理人日勤・浴室乾燥機・シャンプードレッサ・温水洗浄便座・システムキッチン・風呂・衣類乾燥機・食器洗浄乾燥機
リフォーム履歴 -
リノベーション履歴 -
備考 <物件名>シーアイハイツ町田I棟/委託(日勤)/<土地権利>所有権/<間取り>4LDK/<特徴>~専有面積97.77平米の4LDK~、システムキッチン・浴室乾燥機・角住戸・シャワー付洗面化粧台・温水洗浄便座
販売戸数:1戸/管理費等帯:11400円/修繕積立金帯:17100円
特記事項 ペット相談可・角部屋・管理人日勤

省エネ性能

エネルギー消費性能 -
断熱性能 -
目安光熱費 -

東京都町田市山崎町 周辺地図情報

地図
※地図上に表示される物件の位置は付近住所に所在することを表すものであり、実際の物件所在地とは異なる場合がございます。
   正確な物件所在地は、取扱い不動産会社にお問い合わせください。
物件を見たい、物件や住環境の詳しい情報やローン相談など、
お問い合わせ先
住友林業ホームサービス(株)町田店

不動産会社情報

お問い合わせ先 商号:住友林業ホームサービス(株)町田店
免許番号:国土交通大臣(16)第000220号
所在地:東京都町田市森野1-33-11 町田森野ビル1階
TEL:0120-524063
取引態様:専任媒介
管理コード:SMB35929
共有する
QRコード
物件を見たい、物件や住環境の詳しい情報やローン相談など、
お問い合わせ先
住友林業ホームサービス(株)町田店

町田市の暮らしデータ

人口などの統計情報

世帯数 191703世帯
人口総数 430380人
転入者数 18835人
転入率(人口1000人当たり)
43.76人
転出者数 16447人
転出率(人口1000人当たり)
38.22人
土地平均価格
住宅地
153542円/m2
商業地
593091円/m2

結婚・育児の助成金

子育て関連の独自の取り組み (1)子育て家庭が気軽に相談等を行える場所として、身近な保育園を利用登録する「マイ保育園事業」を実施。(2)認可外幼児教育施設に通う児童(4・5歳児)の保護者に対し、経済的負担軽減のために補助金を交付。(3)市内の待機児童解消と利用者の選択肢拡充のため、2017年度から駅近くに送迎保育ステーションを開設。(4)2021年度から学童保育クラブで高学年児童の受け入れを開始。(5)保育園や幼稚園等の余裕スペースを活用して、小学生を一時的に預かる「学童一時預かり事業」を実施。(6)ひとり親家庭への宅食事業では、ふるさと納税やガバメントクラウドファンディングによる寄附を活用。
出産祝い あり
公立保育所数 5所(うち0歳児保育を実施している保育所:5所)
私立保育所数 71所(うち0歳児保育を実施している保育所:59所)
保育所入所待機児童数 28人
認定こども園数 14園 預かり保育実施園数 公立:- 私立:24園
学校給食 【小学校】完全給食【中学校】完全給食(1校※小中一貫校) 家庭弁当等との選択制/デリバリー形式[運搬:ランチボックス、内容:完全給食](19校) 2025年度までに、中学校給食センター方式により、デリバリー形式[運搬:食缶、内容:完全給食]となります。
公立中学校の学校選択制 実施(自由選択制[受入枠の範囲で選択可能/受入枠のない場合は希望不可])
子ども・学生等医療費助成<通院>対象年齢 18歳3月末まで 子ども・学生等医療費助成<入院>対象年齢 18歳3月末まで

町田市の治安・ごみ収集情報

公共料金・インフラ

ガス料金(22m3使用した場合の月額) 東京瓦斯株式会社(東京地区等)3926円
水道料金(口径20mmで20m3の月額) 東京都水道局2816円
下水道料金(20m3を使用した場合の月額) 町田市2068円
下水道普及率 99.1%

安心・安全

建物火災出火件数 75件
人口10000人当たり
1.74件
刑法犯認知件数 2396件
人口1000人当たり
5.56件
ハザード・防災マップ あり

医療

一般病院総数 16ヶ所
一般診療所総数 341ヶ所
小児科医師数 55人
小児人口10000人当たり
11.11人
産婦人科医師数 21人
15~49歳女性人口1万人当たり
2.54人
介護保険料基準額(月額) 6040円

ごみ

家庭ごみ収集(可燃ごみ) 有料
備考
指定ごみ袋有料。おむつ専用袋・ボランティア袋は無料。
家庭ごみの分別方式 4分別17種〔可燃ごみ 不燃ごみ 有害ごみ(乾電池、蛍光管、水銀体温計、ライター) 資源(剪定枝、ビン、カン、ペットボトル、古紙[新聞、雑誌、ダンボール、雑がみ、シュレッダーにかけた紙、紙パック]、古着)〕【JR横浜線以南地域】5分別18種〔上記+容器包装プラスチック〕ただし、拠点回収は除く。
家庭ごみの戸別収集 実施(ただし集合住宅は集積所収集)
粗大ごみ収集 あり
備考
有料。事前申込制。
生ごみ処理機助成金制度 あり
上限金額
20000円
上限比率
50.0%

町田市の住まいの給付金

中古購入

利子補給制度 なし
補助/助成金制度 なし

増築・改築・改修

利子補給制度 なし
補助/助成金制度 あり
上限金額
(1)10万円(2)130万円
備考
(1)【町田市住宅バリアフリー化改修助成制度】市内業者の行うバリアフリー改修工事の経費の4/5、上限10万円。(2)【木造住宅耐震改修事業助成制度】1981年5月31日以前に着工した住宅は全ての助成金が対象。1981年6月1日から2000年5月31日までに着工した住宅は、精密耐震診断の助成金が対象。助成金は、精密耐震診断は経費の1/2、上限10万円。耐震設計改修事業は経費の1/2、120万円が上限。耐震設計は経費の1/2、上限10万円。耐震改修は経費の1/2、50万円が上限。その他要件あり。
暮らしデータ提供元:生活ガイド.com
※行政機関により公表していない地域及びデータがございます。東京23区以外の政令指定都市は、市全体のデータとして表示しています。
※提供データには細心の注意を払っておりますが、調査後に変更がある場合があります。 最新の情報につきましては各市区役所までお問い合わせいただくか、自治体HPなどをご確認ください。

この物件を見た人はこんな物件も見ています

OCN×ドコモ光新規お申込みで合計最大137,280円相当おトク!特典の内訳・適用条件など詳細はこちら

町田市内の各駅の住みやすさ

住宅ローンの返済額一覧

物件価格 1780万円に対して、年率 で、頭金 の場合
↓ボーナス 35年間 30年間 25年間 20年間 15年間 10年間
0万円 33,226円/月 38,296円/月 45,397円/月 56,055円/月 73,825円/月 109,377円/月
5万円 24,141円/月 29,320円/月 36,531円/月 47,296円/月 65,174円/月 100,832円/月
10万円 ローン不可 20,344円/月 27,664円/月 38,538円/月 56,522円/月 92,287円/月
15万円 ローン不可 ローン不可 ローン不可 29,779円/月 47,871円/月 83,742円/月
20万円 ローン不可 ローン不可 ローン不可 ローン不可 39,220円/月 75,197円/月
25万円 ローン不可 ローン不可 ローン不可 ローン不可 ローン不可 66,652円/月
30万円 ローン不可 ローン不可 ローン不可 ローン不可 ローン不可 58,106円/月
支払い利息合計 1,158,700円~ 992,560円~ 824,400円~ 659,440円~ 494,890円~ 331,460円~
※元利均等返済方式で試算しています。 「円」の単位以下の端数金額は「切り捨て」として計算しております。
※金利は、固定金利として計算しております。
※上記の住宅ローン返済額一覧は、あくまで試算であり、将来の金利動向により、実際のご返済額とは異なります。
※ボーナス支払総額が総支払額の50%を超えている場合、上記の表では「ローン不可」となります。
※住宅ローン返済額一覧の数値は、住宅ローンのお申し込みやご融資をお約束するものではございません。
物件を見たい、物件や住環境の詳しい情報やローン相談など、
お問い合わせ先
住友林業ホームサービス(株)町田店

掲載情報の著作権は提供元企業等に帰属します。
Copyright:(C) 2025 Recruit Co., Ltd.
アプリで簡単 物件探し 大手不動産サイトの情報から一括検!プッシュ通知で物件を見逃さない
App Storeからダウンロード Google Playで手に入れよう QRコード