中古マンション
秀和幡ヶ谷レジデンス 4階 1LDK
 
  
    
      | 価格 | 3480万円  (管理費等:1万600円/月(一部委託(通勤))) | 
    
      | 修繕積立金 | 10,600円 | 
    
      | 交通 |  | 
    
      | 所在地 | 東京都渋谷区千駄ヶ谷1周辺地図 | 
    
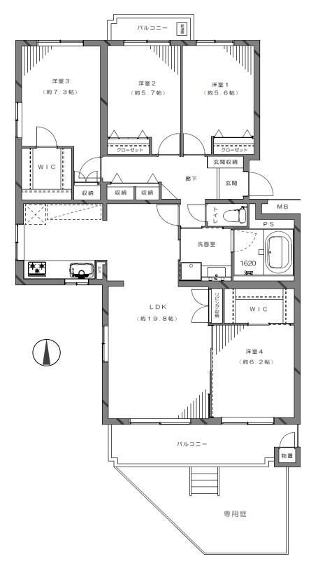
      | 間取り | 1LDK | 専有面積 | 35.1m2(壁芯) | 
    
      | 所在階/階数 | 4階/10階建 | 方位 | 北東 | 
    
      | 築年月 | 1974年11月 | 築年数 | 築51年 | 
  
 
 
- おすすめポイント
- ◇◆SREリアルティ(旧ソニー不動産)は不動産における透明性と公平性を重視した、エージェントがお部屋探しを全面的にサポート致します。◇◆ 【ACCESS】◎京王線「幡ヶ谷」駅 徒歩4分◎京王線「笹塚」駅 徒歩11分◎千代田線・小田急線「代々木上原」駅 徒歩14分 【POINT】◎駅徒歩4分の好立地!◎3駅4路線利用可能!!◎2024年11月にリノベーション済み!◎収納充実の1LDK!WIC(ウォークインクローゼット)有り
 日当り良好・管理人日勤
    
    
  
    - お問い合わせ先
- SREホールディングス(株)大手町オフィス
 
  
    物件を見たい、物件や住環境の詳しい情報やローン相談など、
    
    
    
      - お問い合わせ先
- SREホールディングス(株)大手町オフィス
 
 
| 価格 | 3480万円 | 管理費等 | 1万600円/月(一部委託(通勤)) | 
| 駐車場 |  | 修繕積立金 | 10,600円 | 
| 所在地 | 東京都渋谷区千駄ヶ谷1周辺地図 | 
| 交通 | 
  京王新線 幡ヶ谷駅 徒歩4分乗換案内京王線 笹塚駅 徒歩11分乗換案内小田急線(新宿~相模大野) 代々木上原駅 徒歩14分乗換案内 | 
| 物件名 | 秀和幡ヶ谷レジデンス | 
| 築年月(築年数) | 1974年11月(築51年) | 間取り | 1LDK | 
| 総戸数 |  | 専有面積 | 35.1m2(壁芯) | 
| 所在階/階数 | 4階/10階建 | バルコニー面積 | 5.4m2 | 
| 方位 | 北東 | 建物構造 | SRC | 
| 管理形態 |  | 
| 維持費等 | 駐輪場(年額)4,800円 | 土地権利 | 所有権 | 
| 用途地域 | 1種住居 | 借地期間・地代 |  | 
| 現況 |  | 引渡可能年月 | 即時 | 
| 情報提供元 | SUUMO [030Z78656541] | 情報公開日 |  | 
| 情報更新日 |  | 次回更新予定日 | 随時 | 
設備など
| ペット相談可 | - | 即入居可 | ○ | 南向き | - | 
| 角部屋 | - | 駐車場空き有り | - | トランクルーム | - | 
| オートロック | - | 宅配ボックス | - | 浴室乾燥機 | - | 
| 床暖房 | - | ウォークインクローゼット | ○ | 管理人常駐 | - | 
| 最上階 | - | 2階以上 | ○ | タワーマンション | - | 
| 設備 | 収納スペース・エレベーター・ウォークインクローゼット・システムキッチン・管理人日勤・リフォーム・駐輪場・リノベーション・シューズインクローク | 
| リフォーム履歴 | 2024年11月完了 水回り設備交換:キッチン・浴室
 内装リフォーム:壁・床・全室
 ※年月は一番古いリフォーム箇所を表します
 | 
| リノベーション履歴 | - | 
| 備考 | <物件名>秀和幡ヶ谷レジデンス/<土地権利>所有権/<間取り>1LDK/<リフォーム>●リフォーム:2024年11月完了(水回り設備交換:キッチン・浴室、内装リフォーム:壁・床・全室)※年月は一番古いリフォーム箇所を表します/<特徴>京王線「幡ヶ谷」4分!3駅3路線利用可。収納充実リノベ1LDKで快適!!、即引渡可・2沿線以上利用可・スーパー 徒歩10分以内・システムキッチン・陽当り良好 販売戸数:1戸/管理費等帯:10600円/修繕積立金帯:10600円
 | 
| 特記事項 | 日当り良好・管理人日勤 | 
東京都渋谷区千駄ヶ谷1 周辺地図情報
※地図上に表示される物件の位置は付近住所に所在することを表すものであり、実際の物件所在地とは異なる場合がございます。
   正確な物件所在地は、取扱い不動産会社にお問い合わせください。
 
 
  
    物件を見たい、物件や住環境の詳しい情報やローン相談など、
    
    
    
      - お問い合わせ先
- SREホールディングス(株)大手町オフィス
 
 
不動産会社情報
| お問い合わせ先 | 商号:SREホールディングス(株)大手町オフィス 免許番号:国土交通大臣(2)第009297号
 所在地:東京都千代田区大手町1-6-1 大手町ビル1階
 TEL:03-6274-6552
 取引態様:媒介
 管理コード:◇北村◇他社◇DORIRU田尾☆xZ2mNaQG
 | 共有する |  | 
  
    物件を見たい、物件や住環境の詳しい情報やローン相談など、
    
    
    
      - お問い合わせ先
- SREホールディングス(株)大手町オフィス
 
 
  
  
    人口などの統計情報
    
      
        
          | 世帯数 | 149856世帯 | 
        
          | 人口総数 | 230609人 | 
        
          | 転入者数 | 24064人 
 
              転入率(人口1000人当たり)104.35人 | 
        
          | 転出者数 | 22282人 
 
              転出率(人口1000人当たり)96.62人 | 
        
          | 土地平均価格 | 
              住宅地1394400円/m2商業地6619444円/m2 | 
      
    
   
    
    結婚・育児の助成金
    
      
        
          | 子育て関連の独自の取り組み | (1)待機児解消のため区立保育室を2ヶ所設置。(2)認可外保育施設に待機児専用の受入枠を23名分確保。(3)スマートフォンアプリ「LINE」を活用した子育て情報の配信サービス。(4)渋谷区子育てネウボラ事業。妊娠から出産そして子育てまでの切れ目のない支援を行う、フィンランド発祥の出産・子育て支援の場「ネウボラ」にならい、それらの支援機能を担う関係所管を「渋谷区子育てネウボラ」に集約。保健師をはじめとするさまざまな専門職員や関係職員が連携して、妊娠、出産、子育て期のさまざまな悩み、不安等の相談に応じたり、健診を行ったり、地域のみんなで子育てをする場として設けている。 | 
        
          | 出産祝い | あり | 
        
          | 公立保育所数 | 18所(うち0歳児保育を実施している保育所:13所) | 
        
          | 私立保育所数 | 39所(うち0歳児保育を実施している保育所:30所) | 
        
          | 保育所入所待機児童数 | 0人 | 
        
          | 認定こども園数 | 11園 | 預かり保育実施園数 | 公立:5園 私立:13園 | 
        
          | 学校給食 | 【小学校】完全給食【中学校】完全給食 | 
        
          | 公立中学校の学校選択制 | 実施(選択希望制) | 
        
          | 子ども・学生等医療費助成<通院>対象年齢 | 18歳3月末まで | 子ども・学生等医療費助成<入院>対象年齢 | 18歳3月末まで | 
      
    
   
    
    渋谷区の治安・ごみ収集情報
    公共料金・インフラ
    
      
        
          | ガス料金(22m3使用した場合の月額) | 東京瓦斯株式会社(東京地区等)3926円 | 
        
          | 水道料金(口径20mmで20m3の月額) | 東京都水道局2816円 | 
        
          | 下水道料金(20m3を使用した場合の月額) | 東京都下水道局2068円 | 
        
          | 下水道普及率 | 100.0% | 
      
    
    安心・安全
    
      
        
          | 建物火災出火件数 | 110件 
              人口10000人当たり4.51件 | 
        
          | 刑法犯認知件数 | 3388件 
              人口1000人当たり13.89件 | 
        
          | ハザード・防災マップ | あり | 
      
    
    医療
    
      
        
          | 一般病院総数 | 15ヶ所 | 
        
          | 一般診療所総数 | 722ヶ所 | 
        
          | 小児科医師数 | 70人 
              小児人口10000人当たり29.57人 | 
        
          | 産婦人科医師数 | 68人 
              15~49歳女性人口1万人当たり11.68人 | 
        
          | 介護保険料基準額(月額) | 6170円 | 
      
    
    ごみ
    
      
        
          | 家庭ごみ収集(可燃ごみ) | 無料 | 
        
          | 家庭ごみの分別方式 | 3分別13種〔可燃ごみ 不燃ごみ(金属類、割れ物・刃物などの危険物、ライター) 資源(新聞、雑誌、段ボール、びん、缶、ペットボトル、スプレー缶・カセットボンベ、蛍光管、プラスチック)〕 拠点回収:小型家電 衣類 紙パック 食品用発泡スチロールトレイ 食用油 おもちゃ 食器・調理器具 集団回収:新聞 雑誌 段ボール 紙パック 布類 びん 缶 ペットボトル | 
        
          | 家庭ごみの戸別収集 | 一部実施 | 
        
          | 粗大ごみ収集 | あり | 
        
          | 生ごみ処理機助成金制度 | あり 
              上限金額20000円上限比率50.0% | 
      
    
   
  
      渋谷区の住まいの給付金
                  中古購入
    
    増築・改築・改修
    
      
        
          | 利子補給制度 | なし | 
        
          | 補助/助成金制度 | あり 
              上限金額(1)10万円(2)150万円 | 
      
    
          
    
      ※行政機関により公表していない地域及びデータがございます。東京23区以外の政令指定都市は、市全体のデータとして表示しています。
      
※提供データには細心の注意を払っておりますが、調査後に変更がある場合があります。 最新の情報につきましては各市区役所までお問い合わせいただくか、自治体HPなどをご確認ください。
    
      渋谷区の暮らしデータをもっと見る
     
 
    
  
  
    物件を見たい、物件や住環境の詳しい情報やローン相談など、
    
    
    
      - お問い合わせ先
- SREホールディングス(株)大手町オフィス