アプリで簡単 物件探し 通知 共有 アプリならではの機能を使ってみる
中古マンション

ライオンズマンション南平台 4階 2LDK

情報提供元
SUUMO
ライオンズマンション南平台 帰宅途中にショッピングやカフェを楽しんだり、利便性の良いこの地の生活は人々を魅了します。心行くままに季節の流れを感じ、ゆったりとした一時を。時間の流れを取戻し、休日はスローライフを。
価格 8980万円  (管理費等:1万3200円/月(委託(通勤)))
修繕積立金 25,920円
交通
所在地 東京都渋谷区南平台町周辺地図
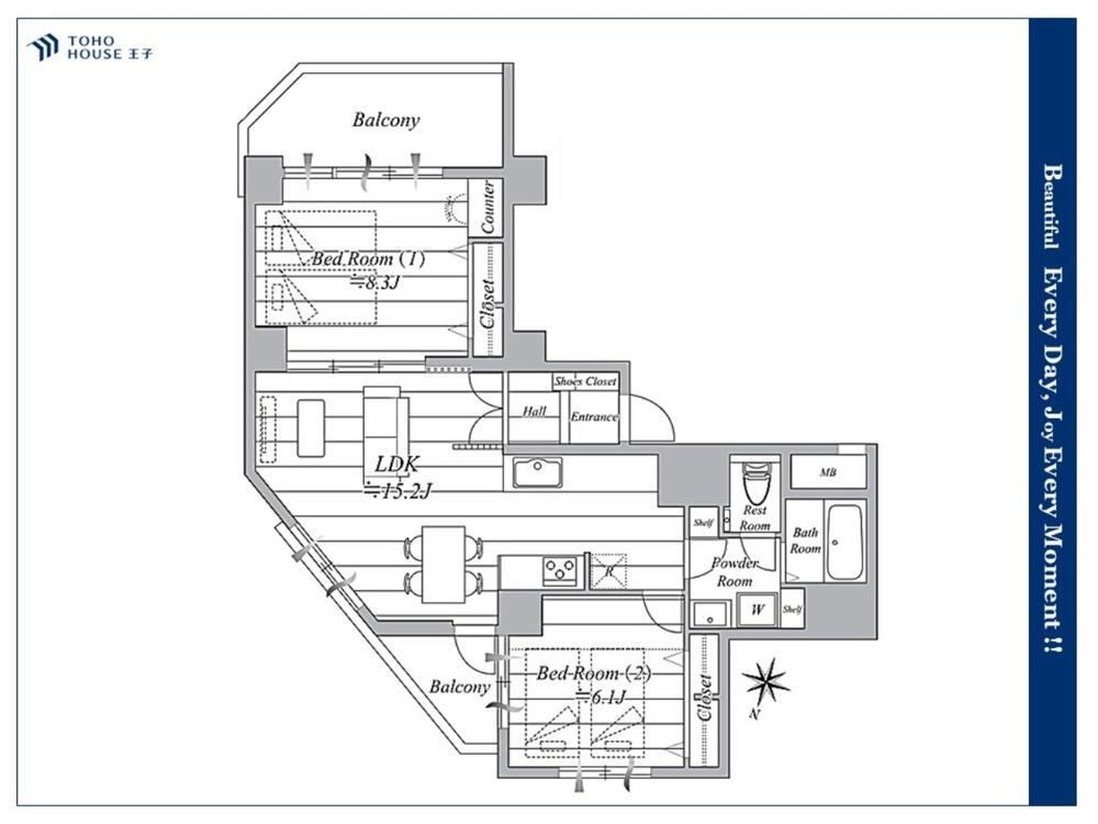
間取り 2LDK 専有面積 63.39m2
所在階/階数 4階/13階建 方位 南東
築年月 1970年2月 築年数 築55年9ヶ月
おすすめポイント
□□ Report from Toho House Oji □□【TOHO HOUSE CLUBでのアフターサービス】ご購入後の「おウチ」と「お金」のご相談窓口をご用意しております!・金利上昇時のリスクヘッジ、借換え相談、繰上返済のタイミング、各種保険の見直し・・・etc・おウチの設備保証や定期点検、駆け付けサービス・・・etc購入前のタイミングは勿論、購入後のご不安につきましてもご相談可能です!まずはお気軽に現地をご覧下さいませ。物件の詳細について、ご見学希望のお客様は下記番号までお気軽にご連絡下さい。お問い合わせ専用フリーダイヤル : 0120-891-040
日当り良好・閑静な住宅街・角部屋・管理人日勤
お問い合わせ先
東宝ハウスライフソリューションズグループ(株)東宝ハウス王子3課
物件を見たい、物件や住環境の詳しい情報やローン相談など、
お問い合わせ先
東宝ハウスライフソリューションズグループ(株)東宝ハウス王子3課

詳細情報

価格 8980万円 管理費等 1万3200円/月(委託(通勤))
駐車場 空無 修繕積立金 25,920円
所在地 東京都渋谷区南平台町周辺地図
交通
物件名 ライオンズマンション南平台
築年月(築年数) 1970年2月(築55年9ヶ月) 間取り 2LDK
総戸数 76戸 専有面積 63.39m2
所在階/階数 4階/13階建 バルコニー面積 10.55m2
方位 南東 建物構造 SRC
管理形態 委託管理
維持費等 土地権利 所有権
用途地域 2種住居 借地期間・地代
現況 引渡可能年月 即時
情報提供元 SUUMO [030Z78372942] 情報公開日
情報更新日 次回更新予定日 随時

設備など

ペット相談可 - 即入居可 南向き -
角部屋 駐車場空き有り - トランクルーム -
オートロック - 宅配ボックス 浴室乾燥機
床暖房 - ウォークインクローゼット - 管理人常駐 -
最上階 - 2階以上 タワーマンション -
設備 バルコニー・トイレ・収納スペース・洗面所・エレベーター・管理人日勤・浴室乾燥機・シャンプードレッサ・温水洗浄便座・システムキッチン・モニタ付インターホン・風呂・浄水器・2面バルコニー・衣類乾燥機・食器洗浄乾燥機・リフォーム・バイク置き場・駐輪場・宅配BOX
リフォーム履歴 2025年8月完了
 水回り設備交換:キッチン・浴室・トイレ
 内装リフォーム:壁・床
※年月は一番古いリフォーム箇所を表します
リノベーション履歴 -
備考 <物件名>ライオンズマンション南平台/<駐車場>空無/委託(日勤)/<土地権利>所有権/<間取り>2LDK/<リフォーム>●リフォーム:2025年8月完了(水回り設備交換:キッチン・浴室・トイレ、内装リフォーム:壁・床)※年月は一番古いリフォーム箇所を表します/<用途地域>商業地域あり/<特徴>高級住宅街「南平台町」の一角に佇む、品格漂うヴィンテージマンション。、即引渡可・2沿線以上利用可・テニスコートが近い・スーパー 徒歩10分以内・市街地が近い
販売戸数:1戸/管理費等帯:13200円/修繕積立金帯:25920円
特記事項 日当り良好・閑静な住宅街・角部屋・管理人日勤

省エネ性能

エネルギー消費性能 -
断熱性能 -
目安光熱費 -

東京都渋谷区南平台町 周辺地図情報

地図
※地図上に表示される物件の位置は付近住所に所在することを表すものであり、実際の物件所在地とは異なる場合がございます。
   正確な物件所在地は、取扱い不動産会社にお問い合わせください。
物件を見たい、物件や住環境の詳しい情報やローン相談など、
お問い合わせ先
東宝ハウスライフソリューションズグループ(株)東宝ハウス王子3課

不動産会社情報

お問い合わせ先 商号:東宝ハウスライフソリューションズグループ(株)東宝ハウス王子3課
免許番号:東京都知事(1)第110657号
所在地:東京都北区王子本町1-17-6
TEL:0120-891040
取引態様:媒介
管理コード:●多胡和
共有する
QRコード
物件を見たい、物件や住環境の詳しい情報やローン相談など、
お問い合わせ先
東宝ハウスライフソリューションズグループ(株)東宝ハウス王子3課

渋谷区の暮らしデータ

人口などの統計情報

世帯数 149856世帯
人口総数 230609人
転入者数 24064人
転入率(人口1000人当たり)
104.35人
転出者数 22282人
転出率(人口1000人当たり)
96.62人
土地平均価格
住宅地
1394400円/m2
商業地
6619444円/m2

結婚・育児の助成金

子育て関連の独自の取り組み (1)待機児解消のため区立保育室を2ヶ所設置。(2)認可外保育施設に待機児専用の受入枠を23名分確保。(3)スマートフォンアプリ「LINE」を活用した子育て情報の配信サービス。(4)渋谷区子育てネウボラ事業。妊娠から出産そして子育てまでの切れ目のない支援を行う、フィンランド発祥の出産・子育て支援の場「ネウボラ」にならい、それらの支援機能を担う関係所管を「渋谷区子育てネウボラ」に集約。保健師をはじめとするさまざまな専門職員や関係職員が連携して、妊娠、出産、子育て期のさまざまな悩み、不安等の相談に応じたり、健診を行ったり、地域のみんなで子育てをする場として設けている。
出産祝い あり
公立保育所数 18所(うち0歳児保育を実施している保育所:13所)
私立保育所数 39所(うち0歳児保育を実施している保育所:30所)
保育所入所待機児童数 0人
認定こども園数 11園 預かり保育実施園数 公立:5園 私立:13園
学校給食 【小学校】完全給食【中学校】完全給食
公立中学校の学校選択制 実施(選択希望制)
子ども・学生等医療費助成<通院>対象年齢 18歳3月末まで 子ども・学生等医療費助成<入院>対象年齢 18歳3月末まで

渋谷区の治安・ごみ収集情報

公共料金・インフラ

ガス料金(22m3使用した場合の月額) 東京瓦斯株式会社(東京地区等)3926円
水道料金(口径20mmで20m3の月額) 東京都水道局2816円
下水道料金(20m3を使用した場合の月額) 東京都下水道局2068円
下水道普及率 100.0%

安心・安全

建物火災出火件数 110件
人口10000人当たり
4.51件
刑法犯認知件数 3388件
人口1000人当たり
13.89件
ハザード・防災マップ あり

医療

一般病院総数 15ヶ所
一般診療所総数 722ヶ所
小児科医師数 70人
小児人口10000人当たり
29.57人
産婦人科医師数 68人
15~49歳女性人口1万人当たり
11.68人
介護保険料基準額(月額) 6170円

ごみ

家庭ごみ収集(可燃ごみ) 無料
備考
可燃ごみ・不燃ごみ・資源のうち、一時大量排出については有料。
家庭ごみの分別方式 3分別13種〔可燃ごみ 不燃ごみ(金属類、割れ物・刃物などの危険物、ライター) 資源(新聞、雑誌、段ボール、びん、缶、ペットボトル、スプレー缶・カセットボンベ、蛍光管、プラスチック)〕 拠点回収:小型家電 衣類 紙パック 食品用発泡スチロールトレイ 食用油 おもちゃ 食器・調理器具 集団回収:新聞 雑誌 段ボール 紙パック 布類 びん 缶 ペットボトル
家庭ごみの戸別収集 一部実施
粗大ごみ収集 あり
備考
事前申込制(一辺の長さが30cmを超えるもの)。
生ごみ処理機助成金制度 あり
上限金額
20000円
上限比率
50.0%

渋谷区の住まいの給付金

中古購入

利子補給制度 なし
補助/助成金制度 なし

増築・改築・改修

利子補給制度 なし
補助/助成金制度 あり
上限金額
(1)10万円(2)150万円
備考
(1)【住宅簡易改修支援事業】5万円以上の工事対象(ただし、事務所等の住宅以外の用途に供する部分及び集合住宅の共用部分や新築・増築に該当する工事は対象外。「マンション管理計画認定制度」の認定を受けているマンションに住民共用の宅配ボックス設置の場合は、集合住宅の共用部分も対象)。総費用の20%(上限10万円)を助成。(2)【木造住宅耐震改修助成】1981年5月末以前に建築された建築物が対象。所有者個人(所有者死亡、長期入院等の際は、その配偶者、子又は父母)が居住する木造住宅等の建築物に対し無料耐震診断を行い、大地震で倒壊の可能性ありと診断された建物の耐震改修工事費用の1/2(限度額は、建築基準法適合の場合100万円、不適合56万円。高齢者は適合150万円、不適合106万円)。
暮らしデータ提供元:生活ガイド.com
※行政機関により公表していない地域及びデータがございます。東京23区以外の政令指定都市は、市全体のデータとして表示しています。
※提供データには細心の注意を払っておりますが、調査後に変更がある場合があります。 最新の情報につきましては各市区役所までお問い合わせいただくか、自治体HPなどをご確認ください。

この物件を見た人はこんな物件も見ています

OCN×ドコモ光新規お申込みで合計最大137,280円相当おトク!特典の内訳・適用条件など詳細はこちら

渋谷区内の各駅の住みやすさ

住宅ローンの返済額一覧

物件価格 8980万円に対して、年率 で、頭金 の場合
↓ボーナス 35年間 30年間 25年間 20年間 15年間 10年間
0万円 220,128円/月 253,712円/月 300,760円/月 371,367円/月 489,096円/月 724,627円/月
5万円 211,042円/月 244,737円/月 291,893円/月 362,609円/月 480,445円/月 716,082円/月
10万円 201,957円/月 235,761円/月 283,026円/月 353,850円/月 471,793円/月 707,537円/月
15万円 192,871円/月 226,785円/月 274,159円/月 345,091円/月 463,142円/月 698,992円/月
20万円 183,786円/月 217,809円/月 265,293円/月 336,333円/月 454,490円/月 690,447円/月
25万円 174,700円/月 208,834円/月 256,426円/月 327,574円/月 445,839円/月 681,902円/月
30万円 165,615円/月 199,858円/月 247,559円/月 318,815円/月 437,187円/月 673,356円/月
支払い利息合計 7,675,530円~ 6,555,040円~ 5,443,400円~ 4,340,560円~ 3,246,610円~ 2,161,460円~
※元利均等返済方式で試算しています。 「円」の単位以下の端数金額は「切り捨て」として計算しております。
※金利は、固定金利として計算しております。
※上記の住宅ローン返済額一覧は、あくまで試算であり、将来の金利動向により、実際のご返済額とは異なります。
※ボーナス支払総額が総支払額の50%を超えている場合、上記の表では「ローン不可」となります。
※住宅ローン返済額一覧の数値は、住宅ローンのお申し込みやご融資をお約束するものではございません。
物件を見たい、物件や住環境の詳しい情報やローン相談など、
お問い合わせ先
東宝ハウスライフソリューションズグループ(株)東宝ハウス王子3課

掲載情報の著作権は提供元企業等に帰属します。
Copyright:(C) 2025 Recruit Co., Ltd.
アプリで簡単 物件探し 大手不動産サイトの情報から一括検!プッシュ通知で物件を見逃さない
App Storeからダウンロード Google Playで手に入れよう QRコード