中古住宅
東京都清瀬市上清戸2 清瀬駅 中古一戸建て・中古住宅
| 価格 |
3580万円
|
| 交通 |
|
| 所在地 |
東京都清瀬市上清戸2周辺地図
|
| 間取り |
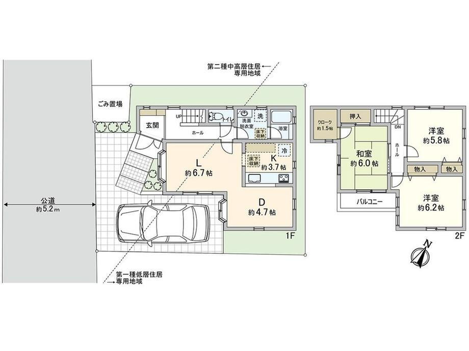
3LDK |
| 建物面積 |
80.01m2(24.20坪)(登記) |
土地面積 |
84.01m2(25.41坪)(登記) |
| 築年月 |
1997年3月 |
築年数 |
築28年8ヶ月 |
- おすすめポイント
- -物件のおすすめポイント-▼立地・西武池袋・豊島線「清瀬」駅 徒歩9分▼特徴・LDが分かれた間取り・各洋室・和室に収納有、和室は約1.5帖のWIC付・ガーデニングを楽しめる花壇有・駐車スペース有(車種による)▼周辺環境・スーパー「西友清瀬店」徒歩7分(約550m)※清瀬市では、用途地域に関する都市計画決定で第一種低層住居専用地域の敷地面積の最低限度120平米と定められていますが、本物件は計画決定以前に存在していたため分割しない限り再建築が可能です。■ ご希望の住まい探しをお手伝いします ━━━━━・・・物件の詳細・ご相談はお気軽にお問い合わせください。
- お問い合わせ先
- 三井のリハウスひばりが丘センター三井不動産リアルティ(株)
物件を見たい、物件や住環境の詳しい情報やローン相談など、
- お問い合わせ先
- 三井のリハウスひばりが丘センター三井不動産リアルティ(株)
| 価格 |
3580万円 |
| 所在地 |
東京都清瀬市上清戸2周辺地図
|
| 交通 |
|
| 間取り |
3LDK |
築年月(築年数) |
1997年3月(築28年8ヶ月) |
| 建物面積 |
80.01m2(24.20坪)(登記) |
建物構造・規模 |
木造2階建
|
| 土地面積 |
84.01m2(25.41坪)(登記) |
土地権利 |
所有権 |
| 私道面積 |
|
借地期間・地代 |
|
| 接道状況 |
西5.1m接面6m |
駐車場 |
|
| 用途地域 |
1種低層 |
都市計画 |
|
| 建ぺい率/容積率 |
50%/100% |
現況 |
|
| 地目 |
|
引渡可能時期 |
即時 |
| 情報提供元 |
SUUMO [030Z78238357] |
情報公開日 |
|
| 情報更新日 |
|
次回更新予定日 |
随時 |
設備など
| 1種低層地域 |
○ |
即入居可 |
○ |
売主・代理 |
- |
| 駐車2台以上 |
- |
平屋 |
- |
本下水 |
○ |
| 都市ガス |
○ |
カウンターキッチン |
- |
床暖房 |
- |
| ウォークインクローゼット |
○ |
バリアフリー |
- |
|
|
| 設備 |
バルコニー・収納スペース・都市ガス・ウォークインクローゼット・システムキッチン・風呂・対面K・床下収納・上水道・本下水 |
| リフォーム履歴 |
- |
| リノベーション履歴 |
- |
| 備考 |
<物件名>上清戸2(清瀬駅) 3580万円/<土地権利>所有権/<間取り>3LDK/<用途地域>2種中高あり/<その他制限事項>本物件は計画決定以前に存在していたため分割しない限り再建築が可能です。/<特徴>■三井のリハウス■全居室2面以上の採光を確保南面にバルコニーを設置、スーパー 徒歩10分以内・システムキッチン・LDK15畳以上・和室・対面式キッチン 販売戸数:1戸 法令等制限:高度地区、準防火地域、清瀬市では、用途地域に関する都市計画決定で第一種低層住居専用地域の敷地面積の最低限度120平米と定められていますが |
| 特記事項 |
|
東京都清瀬市上清戸2 周辺地図情報
※地図上に表示される物件の位置は付近住所に所在することを表すものであり、実際の物件所在地とは異なる場合がございます。
正確な物件所在地は、取扱い不動産会社にお問い合わせください。
物件を見たい、物件や住環境の詳しい情報やローン相談など、
- お問い合わせ先
- 三井のリハウスひばりが丘センター三井不動産リアルティ(株)
不動産会社情報
| お問い合わせ先 |
商号:三井のリハウスひばりが丘センター三井不動産リアルティ(株)
免許番号:国土交通大臣(15)第000777号 所在地:東京都西東京市ひばりが丘北3-3-51 KATURA BLD2階 TEL:00786-01793753 取引態様:専任媒介 管理コード:FEPAQA0B |
共有する |
|
物件を見たい、物件や住環境の詳しい情報やローン相談など、
- お問い合わせ先
- 三井のリハウスひばりが丘センター三井不動産リアルティ(株)
人口などの統計情報
| 世帯数 |
34918世帯 |
| 人口総数 |
74596人 |
| 転入者数 |
3801人
- 転入率(人口1000人当たり)
- 50.95人
|
| 転出者数 |
3328人
- 転出率(人口1000人当たり)
- 44.61人
|
| 土地平均価格 |
- 住宅地
- 202400円/m2
- 商業地
- 463500円/m2
|
結婚・育児の助成金
| 子育て関連の独自の取り組み |
(1)清瀬市ホームビジター派遣事業(就学前の乳幼児がいる家庭に対し、研修を受けたボランティアが訪問し、話を聞き、家事や育事を一緒に取り組むことで親が心の安定を取り戻すきっかけを作ります)。(2)きよせ・チルドレンファーストチケット事業(未就学児の保護者が市内の子育てサービスや商店で利用できる1万円分のデジタル商品券)。 |
| 出産祝い |
あり |
| 公立保育所数 |
3所(うち0歳児保育を実施している保育所:2所) |
| 私立保育所数 |
12所(うち0歳児保育を実施している保育所:12所) |
| 保育所入所待機児童数 |
9人 |
| 認定こども園数 |
1園 |
預かり保育実施園数 |
公立:- 私立:6園 |
| 学校給食 |
【小学校】完全給食【中学校】完全給食 |
| 公立中学校の学校選択制 |
実施(新入学時のみ[新入学前の指定の申請期間のみ申請を受付]) |
| 子ども・学生等医療費助成<通院>対象年齢 |
18歳3月末まで |
子ども・学生等医療費助成<入院>対象年齢 |
18歳3月末まで |
清瀬市の治安・ごみ収集情報
公共料金・インフラ
| ガス料金(22m3使用した場合の月額) |
東京瓦斯株式会社(東京地区等)3926円 |
| 水道料金(口径20mmで20m3の月額) |
東京都水道局2816円 |
| 下水道料金(20m3を使用した場合の月額) |
清瀬市1918円 |
| 下水道普及率 |
100.0% |
安心・安全
| 建物火災出火件数 |
13件
- 人口10000人当たり
- 1.71件
|
| 刑法犯認知件数 |
384件
- 人口1000人当たり
- 5.04件
|
| ハザード・防災マップ |
あり |
医療
| 一般病院総数 |
9ヶ所 |
| 一般診療所総数 |
45ヶ所 |
| 小児科医師数 |
7人
- 小児人口10000人当たり
- 8.22人
|
| 産婦人科医師数 |
1人
- 15~49歳女性人口1万人当たり
- 0.69人
|
| 介護保険料基準額(月額) |
6239円 |
ごみ
| 家庭ごみ収集(可燃ごみ) |
有料
|
| 家庭ごみの分別方式 |
3分別13種〔可燃ごみ 不燃ごみ 資源ごみ(ビン、カン、古紙類[新聞、雑誌、ダンボール、シュレッダーくず、雑紙]、古布、容器包装プラスチック、剪定枝、落葉)〕 |
| 家庭ごみの戸別収集 |
実施(戸別収集対象外:資源物[古紙・古布・びん・かん]及び拠点回収対象物) |
| 粗大ごみ収集 |
あり
|
| 生ごみ処理機助成金制度 |
あり
- 上限金額
- 30000円
- 上限比率
- 50.0%
|
清瀬市の住まいの給付金
中古購入
増築・改築・改修
| 利子補給制度 |
なし |
| 補助/助成金制度 |
あり
- 上限金額
- (1)10万円(2)100万円
|
※行政機関により公表していない地域及びデータがございます。東京23区以外の政令指定都市は、市全体のデータとして表示しています。
※提供データには細心の注意を払っておりますが、調査後に変更がある場合があります。 最新の情報につきましては各市区役所までお問い合わせいただくか、自治体HPなどをご確認ください。
清瀬市の暮らしデータをもっと見る
物件を見たい、物件や住環境の詳しい情報やローン相談など、
- お問い合わせ先
- 三井のリハウスひばりが丘センター三井不動産リアルティ(株)