アプリで簡単 物件探し 通知 共有 アプリならではの機能を使ってみる
中古住宅

東京都西東京市住吉町5 ひばりヶ丘駅 中古一戸建て・中古住宅

情報提供元
SUUMO
東京都西東京市住吉町5 ひばりヶ丘駅 中古一戸建て・中古住宅
価格 5880万円
交通
所在地 東京都西東京市住吉町5周辺地図
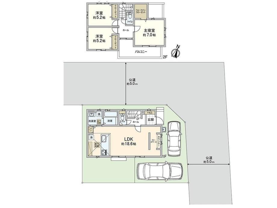
間取り 3LDK
建物面積 87.76m2(26.54坪)(登記) 土地面積 110.02m2(33.28坪)(登記)
築年月 2023年8月 築年数 築2年3ヶ月
おすすめポイント
-物件のおすすめポイント-▼立地・西武池袋・豊島線「ひばりヶ丘」駅 徒歩14分・第一種低層住居専用地域内▼特徴・全居室2面以上の採光を確保・食洗機搭載の対面式キッチン、パントリー有・リビング内にカウンター付のフリースペース有・主寝室は約7帖の広さ、WICを設置・各階にトイレ有・南面にバルコニーを設置・駐車スペース2台分有(車種制限有)▼周辺環境・小平市立小平第十小学校 徒歩5分(約330m)・スーパー「マルエツ保谷住吉店」徒歩7分(約550m)■ ご希望の住まい探しをお手伝いします ━━━━━・・・物件の詳細・ご相談はお気軽にお問い合わせください。
日当り良好・角地
お問い合わせ先
三井のリハウスひばりが丘センター三井不動産リアルティ(株)
物件を見たい、物件や住環境の詳しい情報やローン相談など、
お問い合わせ先
三井のリハウスひばりが丘センター三井不動産リアルティ(株)

詳細情報

価格 5880万円
所在地 東京都西東京市住吉町5周辺地図
交通
  • 西武池袋線 ひばりヶ丘駅 徒歩14分乗換案内
間取り 3LDK 築年月(築年数) 2023年8月(築2年3ヶ月)
建物面積 87.76m2(26.54坪)(登記) 建物構造・規模 木造2階建
土地面積 110.02m2(33.28坪)(登記) 土地権利 所有権
私道面積 借地期間・地代
接道状況 北東5m接面7.1m 北西5m接面9.9m 二方道路 駐車場
用途地域 1種低層 都市計画
建ぺい率/容積率 40%/80% 現況
地目 引渡可能時期 相談
情報提供元 SUUMO [030Z78252335] 情報公開日
情報更新日 次回更新予定日 随時

設備など

1種低層地域 即入居可 - 売主・代理 -
駐車2台以上 - 平屋 - 本下水
都市ガス カウンターキッチン - 床暖房 -
ウォークインクローゼット バリアフリー -
設備 バルコニー・収納スペース・都市ガス・ウォークインクローゼット・システムキッチン・風呂・庭・対面K・トイレ2ヶ所・床下収納・食器洗浄乾燥機・上水道・本下水
リフォーム履歴 -
リノベーション履歴 -
備考 <物件名>住吉町5(ひばりヶ丘駅) 5880万円/<土地権利>所有権/<間取り>3LDK/<特徴>■三井のリハウス■陽当り良好な角地LDKはゆとりのある約18.6帖、LDK18畳以上・スーパー 徒歩10分以内・システムキッチン・陽当り良好・全居室収納
販売戸数:1戸
特記事項 日当り良好・角地

省エネ性能

エネルギー消費性能 -
断熱性能 -
目安光熱費 -

東京都西東京市住吉町5 周辺地図情報

地図
※地図上に表示される物件の位置は付近住所に所在することを表すものであり、実際の物件所在地とは異なる場合がございます。
   正確な物件所在地は、取扱い不動産会社にお問い合わせください。
物件を見たい、物件や住環境の詳しい情報やローン相談など、
お問い合わせ先
三井のリハウスひばりが丘センター三井不動産リアルティ(株)

不動産会社情報

お問い合わせ先 商号:三井のリハウスひばりが丘センター三井不動産リアルティ(株)
免許番号:国土交通大臣(15)第000777号
所在地:東京都西東京市ひばりが丘北3-3-51 KATURA BLD2階
TEL:00786-01793753
取引態様:専任媒介
管理コード:FEPAQA0C
共有する
QRコード
物件を見たい、物件や住環境の詳しい情報やローン相談など、
お問い合わせ先
三井のリハウスひばりが丘センター三井不動産リアルティ(株)

西東京市の暮らしデータ

人口などの統計情報

世帯数 96896世帯
人口総数 205899人
転入者数 11521人
転入率(人口1000人当たり)
55.95人
転出者数 10520人
転出率(人口1000人当たり)
51.09人
土地平均価格
住宅地
295714円/m2
商業地
595750円/m2

結婚・育児の助成金

子育て関連の独自の取り組み (1)西東京市安全・安心いーなメール。(2)西東京市子育て応援アプリいこいこ。(3)西東京市子どもLINE相談
出産祝い なし
公立保育所数 13所(うち0歳児保育を実施している保育所:8所)
私立保育所数 28所(うち0歳児保育を実施している保育所:27所)
保育所入所待機児童数 5人
認定こども園数 0園 預かり保育実施園数 公立:- 私立:14園
学校給食 【小学校】完全給食【中学校】家庭弁当等との選択制[内容:完全給食]
公立中学校の学校選択制 実施(新入学前の10月申請のみ)
子ども・学生等医療費助成<通院>対象年齢 18歳3月末まで 子ども・学生等医療費助成<入院>対象年齢 18歳3月末まで

西東京市の治安・ごみ収集情報

公共料金・インフラ

ガス料金(22m3使用した場合の月額) 東京瓦斯株式会社(東京地区等)3926円
水道料金(口径20mmで20m3の月額) 東京都水道局2816円
下水道料金(20m3を使用した場合の月額) 西東京市1612円
下水道普及率 100.0%

安心・安全

建物火災出火件数 40件
人口10000人当たり
1.93件
刑法犯認知件数 932件
人口1000人当たり
4.49件
ハザード・防災マップ あり

医療

一般病院総数 5ヶ所
一般診療所総数 151ヶ所
小児科医師数 30人
小児人口10000人当たり
12.25人
産婦人科医師数 9人
15~49歳女性人口1万人当たり
2.13人
介護保険料基準額(月額) 6347円

ごみ

家庭ごみ収集(可燃ごみ) 有料
備考
可燃、不燃、プラスチック容器包装類については指定収集袋(有料)で徴収。資源物は無料。
家庭ごみの分別方式 16分別20種〔可燃ごみ 不燃ごみ 有害ごみ 危険物 ビン カン ペットボトル スプレー缶 ライター 古紙(新聞・チラシ、段ボール、飲料用パック、シュレッダー紙、雑誌・雑紙) 古布類 プラスチック容器包装類 金属類 廃食用油 小型家電 剪定枝〕
家庭ごみの戸別収集 実施
粗大ごみ収集 あり
備考
有料。
生ごみ処理機助成金制度 なし
上限金額
-
上限比率
-

西東京市の住まいの給付金

中古購入

利子補給制度 なし
補助/助成金制度 なし

増築・改築・改修

利子補給制度 なし
補助/助成金制度 あり
上限金額
90万円
備考
【木造住宅耐震改修等助成金】1981年5月31日以前に建築された住宅(居住の用に供しているもしくは店舗等との併用住宅)のうち、耐震診断の結果、地震に対する安全性の向上を目的として行う住宅が対象。耐震改修工事は工事費用の1/2以内で上限90万円。除却工事(建替えに伴うものを含む)は、1/3以内で上限30万円。
暮らしデータ提供元:生活ガイド.com
※行政機関により公表していない地域及びデータがございます。東京23区以外の政令指定都市は、市全体のデータとして表示しています。
※提供データには細心の注意を払っておりますが、調査後に変更がある場合があります。 最新の情報につきましては各市区役所までお問い合わせいただくか、自治体HPなどをご確認ください。

この物件を見た人はこんな物件も見ています

OCN×ドコモ光新規お申込みで合計最大137,280円相当おトク!特典の内訳・適用条件など詳細はこちら

西東京市内の各駅の住みやすさ

住宅ローンの返済額一覧

物件価格 5880万円に対して、年率 で、頭金 の場合
↓ボーナス 35年間 30年間 25年間 20年間 15年間 10年間
0万円 139,656円/月 160,963円/月 190,812円/月 235,608円/月 310,299円/月 459,728円/月
5万円 130,571円/月 151,988円/月 181,945円/月 226,849円/月 301,648円/月 451,183円/月
10万円 121,485円/月 143,012円/月 173,078円/月 218,091円/月 292,996円/月 442,638円/月
15万円 112,400円/月 134,036円/月 164,212円/月 209,332円/月 284,345円/月 434,093円/月
20万円 103,314円/月 125,061円/月 155,345円/月 200,573円/月 275,693円/月 425,547円/月
25万円 94,229円/月 116,085円/月 146,478円/月 191,815円/月 267,042円/月 417,002円/月
30万円 85,144円/月 107,109円/月 137,611円/月 183,056円/月 258,390円/月 408,457円/月
支払い利息合計 4,877,710円~ 4,165,400円~ 3,459,000円~ 2,758,400円~ 2,063,150円~ 1,373,580円~
※元利均等返済方式で試算しています。 「円」の単位以下の端数金額は「切り捨て」として計算しております。
※金利は、固定金利として計算しております。
※上記の住宅ローン返済額一覧は、あくまで試算であり、将来の金利動向により、実際のご返済額とは異なります。
※ボーナス支払総額が総支払額の50%を超えている場合、上記の表では「ローン不可」となります。
※住宅ローン返済額一覧の数値は、住宅ローンのお申し込みやご融資をお約束するものではございません。
物件を見たい、物件や住環境の詳しい情報やローン相談など、
お問い合わせ先
三井のリハウスひばりが丘センター三井不動産リアルティ(株)

掲載情報の著作権は提供元企業等に帰属します。
Copyright:(C) 2025 Recruit Co., Ltd.
アプリで簡単 物件探し 大手不動産サイトの情報から一括検!プッシュ通知で物件を見逃さない
App Storeからダウンロード Google Playで手に入れよう QRコード