アプリで簡単 物件探し 通知 共有 アプリならではの機能を使ってみる
中古住宅

東京都大田区西馬込1 西馬込駅 中古一戸建て・中古住宅

情報提供元
SUUMO
東京都大田区西馬込1 西馬込駅 中古一戸建て・中古住宅
価格 7980万円
交通
所在地 東京都大田区西馬込1周辺地図
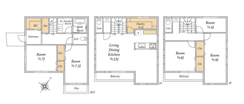
間取り 4SLDK
建物面積 117.32m2(35.48坪)(登記) 土地面積 113.29m2(34.27坪)(実測)
築年月 1976年6月 築年数 築49年5ヶ月
おすすめポイント
◇◆間口12m超・角地・土地34坪超の整形地♪◆◇◆◇始発の『西馬込駅』徒歩6分で快適な新生活をお過ごしください♪◇◆☆━━━…‥・ 物件の特徴 ・‥…━━━☆◆通勤通学に便利な都営浅草線始発駅『西馬込』駅 利用可能♪◆リフォームのご相談も承ります♪◆周辺は閑静な住宅地につき落ち着いた街並みでお過ごし頂けます♪◆スーパー、コンビニ、公園等、生活環境良好♪是非、現地をご確認ください!☆━━━…‥・ ━☆━ ・‥…━━━☆
日当り良好・駐車場2台分・角地
お問い合わせ先
(株)アドキャスト等々力支店
物件を見たい、物件や住環境の詳しい情報やローン相談など、
お問い合わせ先
(株)アドキャスト等々力支店

詳細情報

価格 7980万円
所在地 東京都大田区西馬込1周辺地図
交通
間取り 4SLDK 築年月(築年数) 1976年6月(築49年5ヶ月)
建物面積 117.32m2(35.48坪)(登記) 建物構造・規模 木造2階建
土地面積 113.29m2(34.27坪)(実測) 土地権利 所有権
私道面積 10.86m2 借地期間・地代
接道状況 南西5.9m接面12.3m 北西4m接面10.7m 二方道路 駐車場
用途地域 1種中高 都市計画
建ぺい率/容積率 60%/150% 現況
地目 引渡可能時期 相談
情報提供元 SUUMO [030Z75374709] 情報公開日
情報更新日 次回更新予定日 随時

設備など

1種低層地域 - 即入居可 - 売主・代理 -
駐車2台以上 平屋 - 本下水
都市ガス カウンターキッチン - 床暖房 -
ウォークインクローゼット - バリアフリー -
設備 都市ガス・上水道・本下水・駐車場2台分
リフォーム履歴 -
リノベーション履歴 -
備考 <物件名>西馬込1(西馬込駅) 7980万円/<駐車場>カーポート/<土地権利>所有権/<間取り>4LDK+2S(納戸)/<特徴>◆◇【西馬込エリア!】耐震補強工事実施済みとなります♪◇◆、駐車2台可・2沿線以上利用可・スーパー 徒歩10分以内・市街地が近い・陽当り良好
販売戸数:1戸
法令等制限:景観法による規制有、高度地区、準防火地域、接道と段差有
特記事項 日当り良好・駐車場2台分・角地

省エネ性能

エネルギー消費性能 -
断熱性能 -
目安光熱費 -

東京都大田区西馬込1 周辺地図情報

地図
※地図上に表示される物件の位置は付近住所に所在することを表すものであり、実際の物件所在地とは異なる場合がございます。
   正確な物件所在地は、取扱い不動産会社にお問い合わせください。
物件を見たい、物件や住環境の詳しい情報やローン相談など、
お問い合わせ先
(株)アドキャスト等々力支店

不動産会社情報

お問い合わせ先 商号:(株)アドキャスト等々力支店
免許番号:東京都知事(4)第086581号
所在地:東京都世田谷区等々力3-9-5 T-STATION STYLE BUILD 1階
TEL:0120-442180
取引態様:一般媒介
共有する
QRコード
物件を見たい、物件や住環境の詳しい情報やローン相談など、
お問い合わせ先
(株)アドキャスト等々力支店

大田区の暮らしデータ

人口などの統計情報

世帯数 399628世帯
人口総数 733634人
転入者数 55358人
転入率(人口1000人当たり)
75.46人
転出者数 47162人
転出率(人口1000人当たり)
64.29人
土地平均価格
住宅地
524720円/m2
商業地
895412円/m2

結婚・育児の助成金

子育て関連の独自の取り組み 区内保育施設の人材の確保・定着を支援し、また保育の質の向上を目的とする研修実施の他、若年層保育士の定着促進と中堅・ベテラン層保育士の同一施設における継続勤務を奨励することで保育士の質の向上を図る保育士応援手当を交付している。
出産祝い あり
公立保育所数 37所(うち0歳児保育を実施している保育所:26所)
私立保育所数 155所(うち0歳児保育を実施している保育所:104所)
保育所入所待機児童数 0人
認定こども園数 0園 預かり保育実施園数 公立:0園 私立:45園
学校給食 【小学校】完全給食【中学校】完全給食
公立中学校の学校選択制 未実施
子ども・学生等医療費助成<通院>対象年齢 18歳3月末まで 子ども・学生等医療費助成<入院>対象年齢 18歳3月末まで

大田区の治安・ごみ収集情報

公共料金・インフラ

ガス料金(22m3使用した場合の月額) 東京瓦斯株式会社(東京地区等)3926円
水道料金(口径20mmで20m3の月額) 東京都水道局2816円
下水道料金(20m3を使用した場合の月額) 東京都下水道局2068円
下水道普及率 100.0%

安心・安全

建物火災出火件数 118件
人口10000人当たり
1.58件
刑法犯認知件数 3851件
人口1000人当たり
5.15件
ハザード・防災マップ あり

医療

一般病院総数 24ヶ所
一般診療所総数 613ヶ所
小児科医師数 149人
小児人口10000人当たり
19.74人
産婦人科医師数 66人
15~49歳女性人口1万人当たり
3.96人
介護保険料基準額(月額) 6600円

ごみ

家庭ごみ収集(可燃ごみ) 無料
備考
1日平均10kgを超える量の家庭廃棄物を排出する場合、超える量1kgにつき46円。臨時に排出する場合、1kgにつき46円。
家庭ごみの分別方式 3分別11種〔可燃ごみ 不燃ごみ 資源9品目(新聞・チラシ、雑誌・雑がみ、紙パック、段ボール、飲食用びん、飲食用かん、食品トレイ、ペットボトル、発泡スチロール)〕 拠点回収:使用済小型家電10品目(携帯電話 携帯音楽プレーヤー 携帯ゲーム機器 デジタルカメラ ポータブルビデオカメラ ポータブルカーナビ 電子辞書 卓上計算機 ACアダプター USBメモリ) 廃食用油 古着
家庭ごみの戸別収集 一部実施(次のいずれかに該当する者のみで構成される世帯で、自ら集積所までごみを持ち出すことが困難であり、また他の者の協力を得ることができない世帯。[1]要介護2以上に認定されていること。[2]身体障害者障害程度1級及び2級に認定されていること。[3]その他、区長が認める者)
粗大ごみ収集 あり
備考
有料。ただし、区が指定する受入施設に自ら持ち込む場合は、手数料は5割以内の減額又は免除。事前申込制。
生ごみ処理機助成金制度 なし
上限金額
-
上限比率
-

大田区の住まいの給付金

中古購入

利子補給制度 なし
補助/助成金制度 なし

増築・改築・改修

利子補給制度 なし
補助/助成金制度 あり
上限金額
(1)150万円(2)50万円(3)37.9万円
備考
(1)【耐震改修工事】1981年5月31日以前の基準で建てられた建築物の耐震改修費用を助成。例えば、木造住宅で前面道路が4m以上の場合や4m未満の前面道路を道路拡幅した場合は、耐震改修工事に要する費用の2/3、上限150万円を助成。前面道路が4m未満で道路拡幅しない場合は、耐震改修工事に要する費用の1/2、上限100万円を助成。(2)【住宅リフォーム助成事業】原則助成対象額の10%、上限10万円~50万円(工事内容により異なる)。子育て支援や新しい生活様式への対応工事は、助成対象額の20%、上限10万円。他要件あり。(3)【高齢者自立支援住宅改修助成事業】助成種目に応じ10.6万円~37.9万円の補助あり。
暮らしデータ提供元:生活ガイド.com
※行政機関により公表していない地域及びデータがございます。東京23区以外の政令指定都市は、市全体のデータとして表示しています。
※提供データには細心の注意を払っておりますが、調査後に変更がある場合があります。 最新の情報につきましては各市区役所までお問い合わせいただくか、自治体HPなどをご確認ください。

この物件を見た人はこんな物件も見ています

OCN×ドコモ光新規お申込みで合計最大137,280円相当おトク!特典の内訳・適用条件など詳細はこちら

住宅ローンの返済額一覧

物件価格 7980万円に対して、年率 で、頭金 の場合
↓ボーナス 35年間 30年間 25年間 20年間 15年間 10年間
0万円 194,169円/月 223,793円/月 265,293円/月 327,574円/月 431,420円/月 639,176円/月
5万円 185,084円/月 214,818円/月 256,426円/月 318,815円/月 422,768円/月 630,631円/月
10万円 175,998円/月 205,842円/月 247,559円/月 310,057円/月 414,117円/月 622,086円/月
15万円 166,913円/月 196,866円/月 238,692円/月 301,298円/月 405,465円/月 613,540円/月
20万円 157,827円/月 187,891円/月 229,826円/月 292,539円/月 396,814円/月 604,995円/月
25万円 148,742円/月 178,915円/月 220,959円/月 283,781円/月 388,162円/月 596,450円/月
30万円 139,656円/月 169,939円/月 212,092円/月 275,022円/月 379,511円/月 587,905円/月
支払い利息合計 6,772,750円~ 5,784,200円~ 4,803,300円~ 3,830,240円~ 2,864,930円~ 1,907,340円~
※元利均等返済方式で試算しています。 「円」の単位以下の端数金額は「切り捨て」として計算しております。
※金利は、固定金利として計算しております。
※上記の住宅ローン返済額一覧は、あくまで試算であり、将来の金利動向により、実際のご返済額とは異なります。
※ボーナス支払総額が総支払額の50%を超えている場合、上記の表では「ローン不可」となります。
※住宅ローン返済額一覧の数値は、住宅ローンのお申し込みやご融資をお約束するものではございません。
物件を見たい、物件や住環境の詳しい情報やローン相談など、
お問い合わせ先
(株)アドキャスト等々力支店

掲載情報の著作権は提供元企業等に帰属します。
Copyright:(C) 2025 Recruit Co., Ltd.
アプリで簡単 物件探し 大手不動産サイトの情報から一括検!プッシュ通知で物件を見逃さない
App Storeからダウンロード Google Playで手に入れよう QRコード