アプリで簡単 物件探し 通知 共有 アプリならではの機能を使ってみる
中古住宅

東京都文京区小日向1 茗荷谷駅 中古一戸建て・中古住宅

情報提供元
SUUMO
東京都文京区小日向1 茗荷谷駅 中古一戸建て・中古住宅
価格 19800万円
交通
所在地 東京都文京区小日向1周辺地図
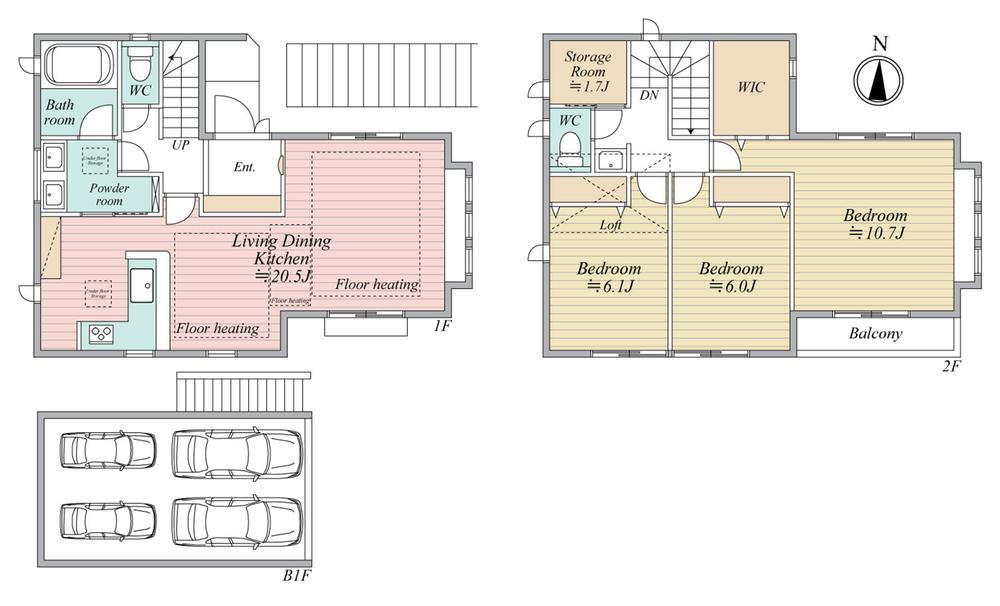
間取り 3SLDK
建物面積 160.29m2、うち地下車庫52.65m2 土地面積 100.01m2
築年月 2018年5月 築年数 築7年6ヶ月
おすすめポイント
前面道路が公道、道路幅5.5mの敷地約30坪、建物約32坪!資産性も◎室内の使用感も少なく、大変きれいにお使いになっている中古戸建ですので、簡易的なリフォームのみでもOK
日当り良好・閑静な住宅街・駐車場3台分以上・浴室1坪以上
お問い合わせ先
(株)ランディックス目黒センター
物件を見たい、物件や住環境の詳しい情報やローン相談など、
お問い合わせ先
(株)ランディックス目黒センター

詳細情報

価格 19800万円
所在地 東京都文京区小日向1周辺地図
交通
  • 東京メトロ丸ノ内線 茗荷谷駅 徒歩10分乗換案内
  • 東京メトロ有楽町線 江戸川橋駅 徒歩10分乗換案内
  • 東京メトロ東西線 神楽坂駅 徒歩18分乗換案内
間取り 3SLDK 築年月(築年数) 2018年5月(築7年6ヶ月)
建物面積 160.29m2、うち地下車庫52.65m2 建物構造・規模 木造地上2階地下1階建
土地面積 100.01m2 土地権利 所有権
私道面積 借地期間・地代
接道状況 東5.5m接面7.5m 駐車場
用途地域 1種低層 都市計画
建ぺい率/容積率 60%/150% 現況
地目 引渡可能時期 相談
情報提供元 SUUMO [030Z78520210] 情報公開日
情報更新日 次回更新予定日 随時

設備など

1種低層地域 即入居可 - 売主・代理 -
駐車2台以上 平屋 - 本下水
都市ガス カウンターキッチン - 床暖房 -
ウォークインクローゼット バリアフリー -
設備 バルコニー・トイレ・収納スペース・洗面所・都市ガス・浴室乾燥機・ウォークインクローゼット・シャンプードレッサ・温水洗浄便座・システムキッチン・風呂・対面K・トイレ2ヶ所・衣類乾燥機・上水道・本下水・省エネ給湯器
リフォーム履歴 -
リノベーション履歴 -
備考 <物件名>小日向1(茗荷谷駅) 1億9800万円/<駐車場>地下車庫/<土地権利>所有権/<間取り>3LDK+S(納戸)/<特徴>【ほぼ土地値】の築浅戸建て!LDK20帖超/主寝室10帖超/全洋室6帖超!、駐車3台以上可・2沿線以上利用可・LDK20畳以上・省エネ給湯器・スーパー 徒歩10分以内
販売戸数:1戸
特記事項 日当り良好・閑静な住宅街・駐車場3台分以上・浴室1坪以上

省エネ性能

エネルギー消費性能 -
断熱性能 -
目安光熱費 -

東京都文京区小日向1 周辺地図情報

地図
※地図上に表示される物件の位置は付近住所に所在することを表すものであり、実際の物件所在地とは異なる場合がございます。
   正確な物件所在地は、取扱い不動産会社にお問い合わせください。
物件を見たい、物件や住環境の詳しい情報やローン相談など、
お問い合わせ先
(株)ランディックス目黒センター

不動産会社情報

お問い合わせ先 商号:(株)ランディックス目黒センター
免許番号:東京都知事(5)第081306号
所在地:東京都目黒区下目黒1-2-14 Landix目黒ビル
TEL:03-6420-3016
取引態様:一般媒介
管理コード:山本 片岡
共有する
QRコード
物件を見たい、物件や住環境の詳しい情報やローン相談など、
お問い合わせ先
(株)ランディックス目黒センター

文京区の暮らしデータ

人口などの統計情報

世帯数 133564世帯
人口総数 232177人
転入者数 23087人
転入率(人口1000人当たり)
99.44人
転出者数 20326人
転出率(人口1000人当たり)
87.55人
土地平均価格
住宅地
1119571円/m2
商業地
1933636円/m2

結婚・育児の助成金

子育て関連の独自の取り組み (1)おうち家事・育児サポート事業(区が指定した事業者の家事・育児サポートを一定の負担で利用できる[おうち・家事育児サポート券]を希望者に配布。満3歳未満の乳幼児を養育する世帯が対象)。(2)ひとり親家庭子育て訪問支援券(区が指定した事業者のベビーシッターサービスを一定の負担で利用できる[子育て訪問支援券])を希望者に配付。(3)ネウボラ事業(妊娠から出産、子育て期にわたる切れ目ない支援を行う妊娠・出産包括支援事業)。(4)文京版スターティング・ストロング・プロジェクト(区教育センターを中心とした医師、教員、心理職等で構成された専門家チームが、区内の幼稚園・保育園等を訪問し、職員と協働して子どもに専門的発達支援を行い、子どもたちの健やかな育ちを支える)。
出産祝い なし
公立保育所数 19所(うち0歳児保育を実施している保育所:14所)
私立保育所数 77所(うち0歳児保育を実施している保育所:67所)
保育所入所待機児童数 2人
認定こども園数 1園 預かり保育実施園数 公立:10園 私立:14園
学校給食 【小学校】完全給食【中学校】完全給食
公立中学校の学校選択制 実施(新入学時又は他市区町村からの転入時[一人につき一度]のみ)
子ども・学生等医療費助成<通院>対象年齢 18歳3月末まで 子ども・学生等医療費助成<入院>対象年齢 18歳3月末まで

文京区の治安・ごみ収集情報

公共料金・インフラ

ガス料金(22m3使用した場合の月額) 東京瓦斯株式会社(東京地区等)3926円
水道料金(口径20mmで20m3の月額) 東京都水道局2816円
下水道料金(20m3を使用した場合の月額) 東京都下水道局2068円
下水道普及率 100.0%

安心・安全

建物火災出火件数 61件
人口10000人当たり
2.54件
刑法犯認知件数 1104件
人口1000人当たり
4.60件
ハザード・防災マップ あり

医療

一般病院総数 9ヶ所
一般診療所総数 309ヶ所
小児科医師数 253人
小児人口10000人当たり
85.84人
産婦人科医師数 159人
15~49歳女性人口1万人当たり
27.49人
介護保険料基準額(月額) 6107円

ごみ

家庭ごみ収集(可燃ごみ) 無料
備考
1回当たりに45リットル袋で4袋を超えるごみは有料。
家庭ごみの分別方式 3分別9種〔可燃ごみ 不燃ごみ 資源(新聞、雑誌、ダンボール、雑がみ、ビン、カン、ペットボトル)〕 拠点回収:資源(紙パック 乾電池 発泡スチロール食品トレイ 衣類 プラスチック製ボトル容器 インクカートリッジ 蛍光管 水銀使用計器類、携帯電話、スマートフォン)
家庭ごみの戸別収集 一部実施(訪問収集)
粗大ごみ収集 あり
備考
有料。事前申込制。
生ごみ処理機助成金制度 あり
上限金額
20000円
上限比率
50.0%

文京区の住まいの給付金

中古購入

利子補給制度 なし
補助/助成金制度 なし

増築・改築・改修

利子補給制度 なし
補助/助成金制度 あり
上限金額
(1)50万円(2)40万円(3)300万円(4)--(5)--(6)--(7)20万円
備考
(1)【耐震診断助成】旧耐震の建築物が対象。木造は新耐震も対象。(2)【耐震改修設計助成】旧耐震の非木造住宅、分譲マンションが対象。(3)【耐震改修工事助成】旧耐震の木造住宅、非木造住宅、分譲マンションが対象。木造住宅は新耐震も対象。(4)【特定緊急輸送道路沿道建築物耐震化促進事業】設計、改修、除却の助成。(5)【一般緊急輸送道路沿道建築物耐震化促進事業】診断、設計、改修、除却の助成。(6)【緊急道路障害物除去路線沿道建築物耐震化促進事業】診断、設計、改修、除却の助成。(7)【高齢者等住宅修築資金助成】高齢者(65歳以上)又は障害者を含む世帯に属する者がバリアフリー化等の工事を行う場合、工事費の10%(上限20万円)を助成。
暮らしデータ提供元:生活ガイド.com
※行政機関により公表していない地域及びデータがございます。東京23区以外の政令指定都市は、市全体のデータとして表示しています。
※提供データには細心の注意を払っておりますが、調査後に変更がある場合があります。 最新の情報につきましては各市区役所までお問い合わせいただくか、自治体HPなどをご確認ください。

この物件を見た人はこんな物件も見ています

OCN×ドコモ光新規お申込みで合計最大137,280円相当おトク!特典の内訳・適用条件など詳細はこちら

文京区内の各駅の住みやすさ

住宅ローンの返済額一覧

物件価格 19800万円に対して、年率 で、頭金 の場合
↓ボーナス 35年間 30年間 25年間 20年間 15年間 10年間
0万円 500,999円/月 577,435円/月 684,512円/月 845,212円/月 1,113,156円/月 1,649,211円/月
5万円 491,914円/月 568,460円/月 675,646円/月 836,453円/月 1,104,504円/月 1,640,666円/月
10万円 482,828円/月 559,484円/月 666,779円/月 827,695円/月 1,095,853円/月 1,632,121円/月
15万円 473,743円/月 550,508円/月 657,912円/月 818,936円/月 1,087,201円/月 1,623,576円/月
20万円 464,657円/月 541,533円/月 649,045円/月 810,177円/月 1,078,550円/月 1,615,031円/月
25万円 455,572円/月 532,557円/月 640,179円/月 801,419円/月 1,069,899円/月 1,606,486円/月
30万円 446,486円/月 523,581円/月 631,312円/月 792,660円/月 1,061,247円/月 1,597,940円/月
支払い利息合計 17,441,350円~ 14,895,320円~ 12,369,300円~ 9,863,360円~ 7,377,410円~ 4,911,540円~
※元利均等返済方式で試算しています。 「円」の単位以下の端数金額は「切り捨て」として計算しております。
※金利は、固定金利として計算しております。
※上記の住宅ローン返済額一覧は、あくまで試算であり、将来の金利動向により、実際のご返済額とは異なります。
※ボーナス支払総額が総支払額の50%を超えている場合、上記の表では「ローン不可」となります。
※住宅ローン返済額一覧の数値は、住宅ローンのお申し込みやご融資をお約束するものではございません。
物件を見たい、物件や住環境の詳しい情報やローン相談など、
お問い合わせ先
(株)ランディックス目黒センター

掲載情報の著作権は提供元企業等に帰属します。
Copyright:(C) 2025 Recruit Co., Ltd.
アプリで簡単 物件探し 大手不動産サイトの情報から一括検!プッシュ通知で物件を見逃さない
App Storeからダウンロード Google Playで手に入れよう QRコード