芸備線(広島県)の賃貸店舗・賃貸事務所・月極駐車場 物件一覧

路線

芸備線

変更する

条件

指定なし

変更する
414が該当しました。

貸駐車場
南部ガレージ

  • NEW
    NO PHOTO

    1.98万円

    管理費等-

    敷金1.98万円

    礼金なし

    面積 -
    • 最寄り駅JR山陽本線 広島駅 徒歩6分
    その他の交通
    住所広島県広島市南区荒神町
    • 駅から徒歩7分以内
    明治事務所 慶風社(株)

  • ウイング八丁堀ビル

    21.92万円

    管理費等なし

    敷金6ヶ月

    礼金なし

    面積 86.53m2
    1982年4月(築43年8ヶ月)
    • 最寄り駅JR山陽本線 広島駅 徒歩18分
    • 広島電鉄本線 銀山町駅 徒歩1分
    • アストラムライン 県庁前駅 徒歩13分
    その他の交通
    住所広島県広島市中区幟町
    • 駅から徒歩1分以内
    • 2階以上
    • エレベーター
    ホームメイトFC広島庚午店 (株)IEYASU不動産 

  • 広島県広島市安佐北区口田1丁目

    19.8万円

    管理費等-

    敷金3ヶ月

    礼金1ヶ月

    面積 406.33m2
    • 最寄り駅芸備線 安芸矢口駅 徒歩4分
    • 可部線 七軒茶屋駅 徒歩25分
    • 可部線 梅林駅 徒歩30分
    その他の交通
    住所広島県広島市安佐北区口田1丁目
    • 即引き渡し可
    • 駅から徒歩5分以内
    (株)ミライアル不動産

貸店舗(建物一部)
広島県三次市南畑敷町

  • 広島県三次市南畑敷町

    7.7万円

    管理費等-

    敷金3ヶ月

    礼金1ヶ月

    面積 36.82m2
    1995年2月(築30年10ヶ月)
    • 最寄り駅芸備線 八次駅 徒歩10分
    • 福塩線 八次駅 徒歩10分
    • 芸備線 三次駅 徒歩23分
    その他の交通
    住所広島県三次市南畑敷町
    • 即引き渡し可
    • 駐車場(近隣含)
    • 駅から徒歩10分以内
    • 2階以上
    (株)ミライアル不動産

  • NO PHOTO

    0.88万円

    管理費等-

    敷金0.88万円

    礼金なし

    面積 -
    • 最寄り駅芸備線 矢賀駅 徒歩13分
    • 芸備線 矢賀駅 徒歩13分
    その他の交通
    住所広島県広島市東区中山南2丁目
    • 即引き渡し可
    • 駅から徒歩15分以内
    明治事務所 慶風社(株)

  • 広島県広島市東区光町1丁目

    19.8万円

    管理費等なし

    敷金6ヶ月

    礼金1ヶ月

    面積 54.14m2
    1984年1月(築41年11ヶ月)
    • 最寄り駅広島電鉄本線 広島駅駅 徒歩14分
    その他の交通
    住所広島県広島市東区光町1丁目
    • 1階
    • 駐車場(近隣含)
    • 駅から徒歩15分以内
    • エレベーター
    (株)CLOUD 賃貸住宅サービスFC 八丁堀店

  • 広島県広島市安佐北区上深川町

    3.3万円

    管理費等-

    敷金1ヶ月

    礼金なし

    面積 -
    • 最寄り駅芸備線 上深川駅 徒歩16分
    • 芸備線 中深川駅 徒歩23分
    その他の交通
    住所広島県広島市安佐北区上深川町
    • 即引き渡し可
    • 駅から徒歩20分以内
    明治事務所 慶風社(株)

  • 広島県安芸高田市向原町坂

    27.5万円

    管理費等-

    敷金5ヶ月

    礼金1ヶ月

    面積 728.77m2
    1994年1月(築31年11ヶ月)
    • 最寄り駅芸備線 向原駅 徒歩17分
    その他の交通
    住所広島県安芸高田市向原町坂
    • 即引き渡し可
    • 駐車場(近隣含)
    • 駅から徒歩20分以内
    (有)兼光 かねみつ不動産

  • 広島県広島市安佐北区口田4丁目

    5.5万円

    管理費等-

    敷金3ヶ月

    礼金1ヶ月

    面積 46m2
    1980年11月(築45年1ヶ月)
    • 最寄り駅芸備線 安芸矢口駅 徒歩18分
    その他の交通
    住所広島県広島市安佐北区口田4丁目
    • 即引き渡し可
    • 駅から徒歩20分以内
    • 2階以上
    ナカハマホーム(株)

  • NO PHOTO

    0.6万円

    管理費等-

    敷金なし

    礼金なし

    面積 -
    • 最寄り駅芸備線 矢賀駅 徒歩30分
    その他の交通
    住所広島県広島市東区中山鏡が丘
    • 即引き渡し可
    (株)ハッチ・ワーク

【会員ランク特典 dスマホローン利息無料】ご契約日から30日間、会員ランクに応じたお借入残高まで利息0円!

貸店舗・事務所
広島県広島市中区鉄砲町

  • 広島県広島市中区鉄砲町

    25.3万円

    管理費等-

    敷金1ヶ月

    礼金5ヶ月

    面積 94.98m2
    2002年4月(築23年8ヶ月)
    • 最寄り駅JR山陽本線 広島駅 徒歩15分
    • 広島電鉄本線 胡町駅 徒歩2分
    • アストラムライン 県庁前駅 徒歩9分
    その他の交通
    住所広島県広島市中区鉄砲町
    • 駅から徒歩5分以内
    • 2階以上
    (株)スポット

  • 深川5丁目倉庫1725401

    36.3万円

    管理費等1,210円

    敷金4ヶ月

    礼金なし

    面積 329.6m2
    1991年3月(築34年9ヶ月)
    • 最寄り駅芸備線 中深川駅 徒歩7分
    その他の交通
    住所広島県広島市安佐北区深川5丁目
    • 1階
    • 即引き渡し可
    • 駅から徒歩7分以内
    大東建託リーシング(株) 広島店

  • 広島県広島市東区光町2丁目

    9.24万円

    管理費等なし

    敷金3ヶ月

    礼金1ヶ月

    面積 27.9m2
    1988年6月(築37年6ヶ月)
    • 最寄り駅JR山陽本線 広島駅 徒歩9分
    • JR山陽新幹線 広島駅 徒歩9分
    • 広島電鉄本線 広島駅駅 徒歩12分
    その他の交通
    住所広島県広島市東区光町2丁目
    • 24時間セキュリティ
    • 駅から徒歩10分以内
    • 2階以上
    • エレベーター
    (株)シティホーム テナント課

  • 広島県広島市東区尾長西1丁目

    16.5万円

    管理費等-

    敷金10ヶ月

    礼金1ヶ月

    面積 66m2
    1978年7月(築47年5ヶ月)
    • 最寄り駅芸備線 広島駅 徒歩15分
    • 可部線 広島駅 徒歩17分
    • JR山陽新幹線 広島駅 徒歩17分
    その他の交通
    住所広島県広島市東区尾長西1丁目
    • 1階
    • 即引き渡し可
    • 飲食店可
    • 駅から徒歩15分以内
    部屋店FC広島大学前店 (株)BIGMAN

  • 広島県広島市東区牛田早稲田1丁目

    9万円

    管理費等なし

    敷金3ヶ月

    礼金1ヶ月

    面積 34.02m2
    1991年1月(築34年11ヶ月)
    • 最寄り駅JR山陽本線 広島駅 徒歩27分
    • アストラムライン 牛田駅 徒歩16分
    • 広島電鉄白島線 白島駅 徒歩19分
    その他の交通
    住所広島県広島市東区牛田早稲田1丁目
    • 1階
    • 飲食店可
    • 駅から徒歩20分以内
    ホームメイトFC広島庚午店 (株)IEYASU不動産 

貸事務所
ハイオス広島

  • ハイオス広島

    8.8万円

    管理費等なし

    敷金3ヶ月

    礼金1ヶ月

    面積 11.9m2
    1990年1月(築35年11ヶ月)
    • 最寄り駅JR山陽本線 広島駅 徒歩18分
    • 広島電鉄白島線 縮景園前駅 徒歩3分
    • アストラムライン 県庁前駅 徒歩11分
    その他の交通
    住所広島県広島市中区上八丁堀
    • 即引き渡し可
    • 駅から徒歩5分以内
    • 2階以上
    ホームメイトFC広島庚午店 (株)IEYASU不動産 

貸駐車場
南部ガレージ

  • NO PHOTO

    1.98万円

    管理費等-

    敷金1.98万円

    礼金なし

    面積 -
    • 最寄り駅JR山陽本線 広島駅 徒歩6分
    その他の交通
    住所広島県広島市南区荒神町
    • 駅から徒歩7分以内
    パナソニックホームズ不動産(株) 山陽営業所 広島店

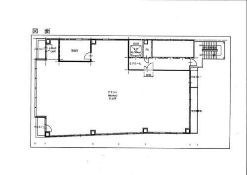
  • 広島県広島市南区大須賀町

    75.93万円

    管理費等75,926円

    敷金6ヶ月

    礼金なし

    面積 190.16m2
    1997年11月(築28年1ヶ月)
    • 最寄り駅JR山陽本線 広島駅 徒歩6分
    • 広島電鉄本線 広島駅駅 徒歩6分
    • JR山陽新幹線 広島駅 徒歩10分
    その他の交通
    住所広島県広島市南区大須賀町
    • 駐車場(近隣含)
    • 駅から徒歩7分以内
    • 2階以上
    • エレベーター
    RONS(株)

  • 広島県広島市安佐北区口田1丁目

    8.25万円

    管理費等-

    敷金3ヶ月

    礼金1ヶ月

    面積 46m2
    1982年3月(築43年9ヶ月)
    • 最寄り駅芸備線 安芸矢口駅 徒歩7分
    その他の交通
    住所広島県広島市安佐北区口田1丁目
    • 駐車場(近隣含)
    • 駅から徒歩7分以内
    • 2階以上
    RONS(株)

  • 広島県広島市安佐北区深川5丁目

    36.3万円

    管理費等1,210円

    敷金4ヶ月

    礼金なし

    面積 329.6m2
    1991年3月(築34年9ヶ月)
    • 最寄り駅芸備線 中深川駅 徒歩9分
    • 芸備線 下深川駅 徒歩18分
    その他の交通
    住所広島県広島市安佐北区深川5丁目
    • 1階
    • 即引き渡し可
    • 駐車場(近隣含)
    • 駅から徒歩10分以内
    (株)シティホーム テナント課

dカードGOLD入会&利用さらに対象公共料金などすべて支払いで合計最大dポイント(期間・用途限定)7000ポイントプレゼント

  • 広島県安芸郡府中町鶴江1丁目

    0.8万円

    管理費等なし

    敷金1ヶ月

    礼金なし

    面積 -
    • 最寄り駅芸備線 矢賀駅 徒歩12分
    その他の交通
    住所広島県安芸郡府中町鶴江1丁目
    • 駅から徒歩15分以内
    (有)広陵土地

貸店舗・事務所
ハピネス府中町本町

  • ハピネス府中町本町

    7.5万円

    管理費等なし

    敷金3ヶ月

    礼金なし

    面積 41.8m2
    1988年8月(築37年4ヶ月)
    • 最寄り駅芸備線 矢賀駅 徒歩14分
    • 呉線 天神川駅 徒歩14分
    • JR山陽本線 向洋駅 徒歩30分
    その他の交通
    住所広島県安芸郡府中町本町1丁目
    • 駅から徒歩15分以内
    • 2階以上
    (株)良和ハウス 府中店

  • 広島県広島市安佐北区口田南8丁目

    6.16万円

    管理費等-

    敷金3ヶ月

    礼金1ヶ月

    面積 38.87m2
    1991年1月(築34年11ヶ月)
    • 最寄り駅芸備線 安芸矢口駅 徒歩16分
    • 芸備線 玖村駅 徒歩28分
    その他の交通
    住所広島県広島市安佐北区口田南8丁目
    • 駅から徒歩20分以内
    • 2階以上
    • エレベーター
    RONS(株)

  • 広島県広島市安佐北区口田南8丁目

    19.69万円

    管理費等-

    敷金3ヶ月

    礼金1ヶ月

    面積 107.96m2
    1991年1月(築34年11ヶ月)
    • 最寄り駅芸備線 安芸矢口駅 徒歩16分
    • 芸備線 玖村駅 徒歩28分
    その他の交通
    住所広島県広島市安佐北区口田南8丁目
    • 駅から徒歩20分以内
    • 2階以上
    • エレベーター
    RONS(株)

貸事務所
ハイオス広島

  • ハイオス広島

    9.9万円

    管理費等なし

    敷金3ヶ月

    礼金1ヶ月

    面積 18.51m2
    1990年1月(築35年11ヶ月)
    • 最寄り駅JR山陽本線 広島駅 徒歩18分
    • 広島電鉄白島線 縮景園前駅 徒歩3分
    • アストラムライン 県庁前駅 徒歩11分
    その他の交通
    住所広島県広島市中区上八丁堀
    • 駅から徒歩5分以内
    • 2階以上
    ホームメイトFC広島庚午店 (株)IEYASU不動産 

  • 牛田東2丁目駐車場

    1.1万円

    管理費等-

    敷金1ヶ月

    礼金なし

    面積 -
    • 最寄り駅JR山陽新幹線 広島駅 徒歩29分
    • 広島電鉄白島線 白島駅 徒歩23分
    • アストラムライン 牛田駅 徒歩22分
    その他の交通
    住所広島県広島市東区牛田東2丁目
    塚本電建(有)

  • 牛田東2丁目駐車場

    1.2万円

    管理費等-

    敷金1ヶ月

    礼金なし

    面積 -
    • 最寄り駅JR山陽新幹線 広島駅 徒歩29分
    • 広島電鉄白島線 白島駅 徒歩23分
    • アストラムライン 牛田駅 徒歩22分
    その他の交通
    住所広島県広島市東区牛田東2丁目
    塚本電建(有)

貸店舗(建物一部)
広島県広島市南区西荒神町

  • 広島県広島市南区西荒神町

    9.9万円

    管理費等なし

    敷金6ヶ月

    礼金1ヶ月

    面積 22.64m2
    2001年3月(築24年9ヶ月)
    • 最寄り駅広島電鉄本線 広島駅駅 徒歩6分
    • JR山陽新幹線 広島駅 徒歩7分
    • JR山陽本線 広島駅 徒歩7分
    その他の交通
    住所広島県広島市南区西荒神町
    • 1階
    • 即引き渡し可
    • 駐車場(近隣含)
    • 駅から徒歩7分以内
    (株)ファンルーム テナント専門店

  • 広島県広島市南区大須賀町

    75.93万円

    管理費等75,926円

    敷金6ヶ月

    礼金1ヶ月

    面積 190.16m2
    1997年11月(築28年1ヶ月)
    • 最寄り駅広島電鉄本線 広島駅駅 徒歩6分
    • 可部線 広島駅 徒歩6分
    • JR山陽本線 広島駅 徒歩6分
    その他の交通
    住所広島県広島市南区大須賀町
    • 駐車場(近隣含)
    • 駅から徒歩7分以内
    • 2階以上
    • エレベーター
    ピタットハウス広島駅前店 (株)大和興産

  • 広島県広島市安佐北区落合5丁目

    16.5万円

    管理費等2,200円

    敷金4ヶ月

    礼金なし

    面積 85.84m2
    1994年7月(築31年5ヶ月)
    • 最寄り駅芸備線 玖村駅 徒歩8分
    • 芸備線 下深川駅 徒歩26分
    • 可部線 梅林駅 徒歩28分
    その他の交通
    住所広島県広島市安佐北区落合5丁目
    • 1階
    • 駐車場(近隣含)
    • 駅から徒歩10分以内
    (株)ファンルーム テナント専門店

ahamo光 10ギガ基本料金ワンコインキャンペーン実施中 光ネット回線とスマホ代あわせて最大6か月間月々3,470円(税込) 適用条件など詳細はこちら

  • 落合5丁目事務所48623

    16.5万円

    管理費等2,200円

    敷金4ヶ月

    礼金なし

    面積 85.84m2
    1994年7月(築31年5ヶ月)
    • 最寄り駅芸備線 玖村駅 徒歩8分
    その他の交通
    住所広島県広島市安佐北区落合5丁目
    • 1階
    • 駅から徒歩10分以内
    大東建託リーシング(株) 広島店

  • 広島県三次市江田川之内町

    22万円

    管理費等-

    敷金6ヶ月

    礼金1ヶ月

    面積 231.08m2
    1990年5月(築35年7ヶ月)
    • 最寄り駅芸備線 塩町駅 徒歩11分
    • 芸備線 神杉駅 徒歩11分
    その他の交通
    住所広島県三次市江田川之内町
    • 1階
    • 即引き渡し可
    • 駐車場(近隣含)
    • 駅から徒歩15分以内
    (株)ミライアル不動産

貸店舗・事務所
広島県広島市東区曙5丁目

  • 広島県広島市東区曙5丁目

    19.8万円

    管理費等なし

    敷金6ヶ月

    礼金1ヶ月

    面積 130.45m2
    1983年6月(築42年6ヶ月)
    • 最寄り駅芸備線 矢賀駅 徒歩11分
    • JR山陽本線 天神川駅 徒歩13分
    • 呉線 天神川駅 徒歩13分
    その他の交通
    住所広島県広島市東区曙5丁目
    • 1階
    • 即引き渡し可
    • 駐車場(近隣含)
    • 駅から徒歩15分以内
    (株)シティホーム テナント課

  • 尾長西1丁目 平面駐車場

    0.88万円

    管理費等-

    敷金1ヶ月

    礼金1ヶ月

    面積 -
    • 最寄り駅芸備線 広島駅 徒歩14分
    • JR山陽新幹線 広島駅 徒歩17分
    • 芸備線 矢賀駅 徒歩19分
    その他の交通
    住所広島県広島市東区尾長西1丁目
    • 駅から徒歩15分以内
    (株)マツヤ

貸店舗(建物一部)
広島県広島市安佐北区亀崎1丁目

  • 広島県広島市安佐北区亀崎1丁目

    13.2万円

    管理費等-

    敷金100万円

    礼金1ヶ月

    面積 46.34m2
    2001年11月(築24年1ヶ月)
    • 最寄り駅芸備線 下深川駅 徒歩15分
    • 芸備線 中深川駅 徒歩17分
    • 芸備線 玖村駅 徒歩24分
    その他の交通
    住所広島県広島市安佐北区亀崎1丁目
    • 飲食店可
    • 駅から徒歩15分以内
    • 2階以上
    ピタットハウス広島駅前店 (株)大和興産

  • 広島県安芸高田市甲田町下甲立

    11万円

    管理費等-

    敷金2ヶ月

    礼金1ヶ月

    面積 845m2
    • 最寄り駅芸備線 上川立駅 徒歩33分
    その他の交通
    住所広島県安芸高田市甲田町下甲立
    • 即引き渡し可
    (株)ミライアル不動産

貸事務所
庁舎前ビル

  • 庁舎前ビル

    9.9万円

    管理費等-

    敷金3ヶ月

    礼金1ヶ月

    面積 43m2
    2002年3月(築23年9ヶ月)
    • 最寄り駅JR山陽本線 広島駅 徒歩17分
    • 広島電鉄白島線 女学院前駅 徒歩3分
    • 広島電鉄白島線 八丁堀駅 徒歩8分
    その他の交通
    住所広島県広島市中区上八丁堀
    • 即引き渡し可
    • 駅から徒歩5分以内
    • 2階以上
    • エレベーター
    (株)ミタカ産業

貸店舗
橋本町貸店舗

  • 橋本町貸店舗

    55万円

    管理費等-

    敷金330万円

    礼金55万円

    面積 110.17m2
    2002年2月(築23年10ヶ月)
    • 最寄り駅JR山陽本線 広島駅 徒歩13分
    • 広島電鉄本線 銀山町駅 徒歩3分
    • 広島電鉄本線 八丁堀駅 徒歩7分
    その他の交通
    住所広島県広島市中区橋本町
    • 1階
    • 即引き渡し可
    • 駅から徒歩5分以内
    (株)ミタカ産業

  • 広島県広島市中区橋本町

    2.5万円

    管理費等-

    敷金2ヶ月

    礼金なし

    面積 -
    • 最寄り駅JR山陽本線 広島駅 徒歩13分
    • 広島電鉄本線 銀山町駅 徒歩4分
    • 広島電鉄白島線 八丁堀駅 徒歩8分
    その他の交通
    住所広島県広島市中区橋本町
    • 即引き渡し可
    • 駅から徒歩5分以内
    (株)ミタカ産業

  • 広島県広島市東区戸坂山崎町

    17.6万円

    管理費等なし

    敷金6ヶ月

    礼金なし

    面積 101m2
    1979年5月(築46年7ヶ月)
    • 最寄り駅芸備線 戸坂駅 徒歩9分
    • アストラムライン 西原駅 徒歩22分
    • アストラムライン 祇園新橋北駅 徒歩29分
    その他の交通
    住所広島県広島市東区戸坂山崎町
    • 駐車場(近隣含)
    • 駅から徒歩10分以内
    • 2階以上
    (株)良和ハウス テナント事業部

路線

芸備線

変更する

条件

指定なし

変更する

OCN×ドコモ光新規お申込みで合計最大137,280円相当おトク!特典の内訳・適用条件など詳細はこちら

条件を追加する

広島県の人気の街アクセスランキング(店舗・事業用)

駅別ランキング

エリア別ランキング

路線別ランキング

他の地域のランキングをもっと見る

※このランキングは2025年10月01日~31日における各ページのアクセス数から算出しています。

住まいのコラム

その他の条件から探す

  1. goo住宅・不動産
  2. 店舗・事業用
  3. 広島県
  4. 芸備線の店舗・事業用 物件一覧

お役立ち情報