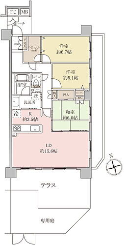
下総中山駅(千葉県)の3LDKの中古マンション 物件一覧
夫婦やカップルだけでなく、子どものいるファミリー世帯など幅広い層におすすめの3LDK中古マンションを紹介します。3LDKは個室が多いため、家族構成を問わず暮らしやすいことがポイント。寝室・収納部屋・書斎など、家族の希望にあわせて使い方を変えられますよ。広々とした空間はゆったりくつろげるため、充実した暮らしを実現できるでしょう。
