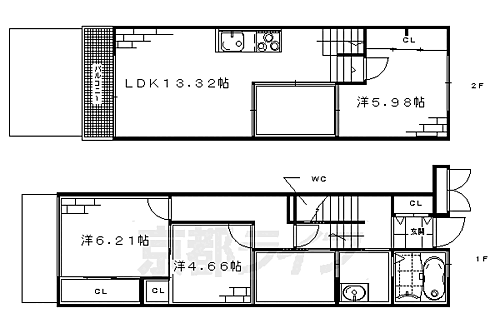
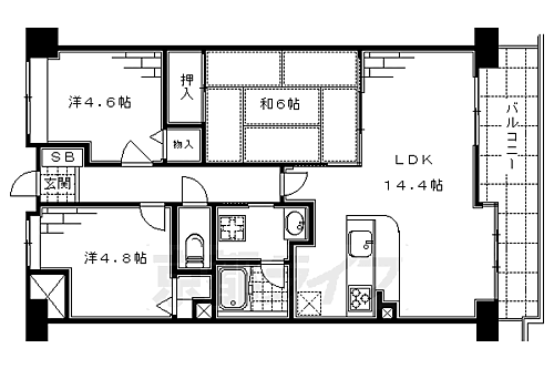
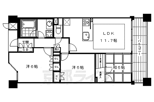
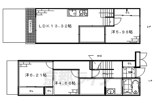
京阪電気鉄道京阪線(大阪府)の3LDKの賃貸物件(賃貸マンション・アパート) 物件一覧(15ページ目)
広々とした家で快適に生活したいと考える方におすすめの3LDK物件を紹介します。リビングのほかに3つもお部屋があるので、子ども部屋が欲しい方やそれぞれの個室を確保したい夫婦にぴったり。物件のなかには新しい設備を用意しているところもあるので、複数の物件を比較して、住みやすそうなお部屋を探してみてくださいね。
