神戸電鉄有馬線(兵庫県)の2LDKの賃貸物件(賃貸マンション・アパート) 物件一覧
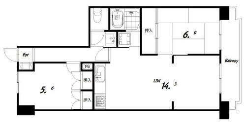
2人以上、または小さい赤ちゃんがいるファミリーにおすすめの2LDK物件。リビングとは別に2部屋付いているので、寝室や収納スペースなど、さまざまな使い方ができます。子どもが大きくなれば子ども部屋にもできるので、長く住めることも魅力です。ここでは、快適に暮らせる2LDK物件を紹介します。間取りや家賃をチェックして、希望にぴったりな物件を見つけましょう。
