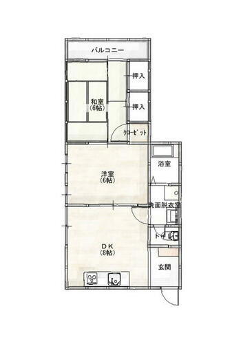
若松駅(福岡県)の2DKの賃貸物件(賃貸マンション・アパート) 物件一覧
こだわりの間取りで新生活をスタート!
2DKの賃貸物件特集
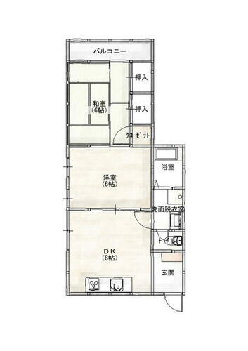
若松駅(福岡県)の2DKの賃貸物件(賃貸マンション・アパート) 物件一覧
こだわりの間取りで新生活をスタート!
2DKの賃貸物件特集
ページ上部の「保存した条件」から確認できます。
ページ上部の「保存した条件」から確認できます。

ページ上部の「お気に入り」から確認できます。
ページ上部の「お気に入り」から確認できます。
