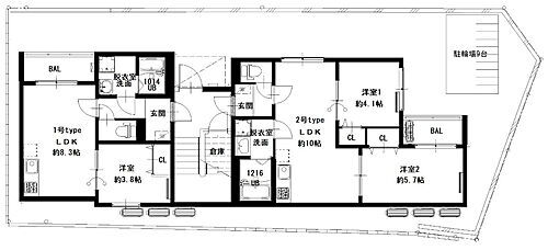
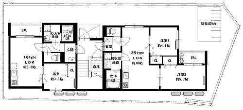
神戸電鉄粟生線(兵庫県)のバイク置場の賃貸物件(賃貸マンション・アパート) 物件一覧(4ページ目)
バイク置き場にもう困らない!
バイク置き場ありの賃貸物件
神戸電鉄粟生線(兵庫県)のバイク置場の賃貸物件(賃貸マンション・アパート) 物件一覧(4ページ目)
バイク置き場にもう困らない!
バイク置き場ありの賃貸物件
ページ上部の「保存した条件」から確認できます。
ページ上部の「保存した条件」から確認できます。

ページ上部の「お気に入り」から確認できます。
ページ上部の「お気に入り」から確認できます。
