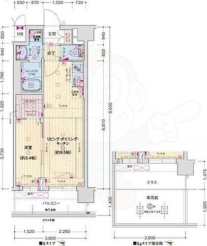
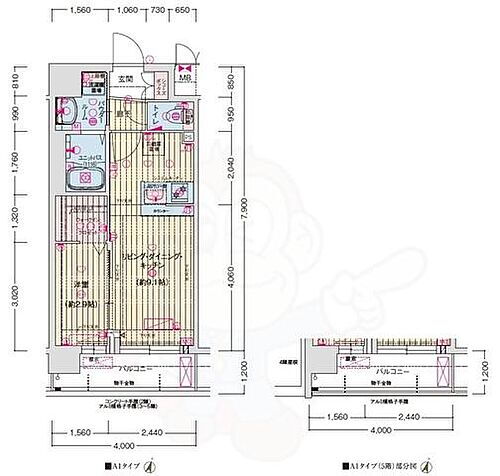
京阪電気鉄道京阪線(大阪府)のカウンターキッチンの賃貸物件(賃貸マンション・アパート) 物件一覧(9ページ目)
毎日の料理も楽しくなりそう
カウンターキッチンのある賃貸物件特集
京阪電気鉄道京阪線(大阪府)のカウンターキッチンの賃貸物件(賃貸マンション・アパート) 物件一覧(9ページ目)
毎日の料理も楽しくなりそう
カウンターキッチンのある賃貸物件特集
ページ上部の「保存した条件」から確認できます。
ページ上部の「保存した条件」から確認できます。

ページ上部の「お気に入り」から確認できます。
ページ上部の「お気に入り」から確認できます。
